7751 N Cricket Drive Citrus Springs, FL 34434
Pending MLS# W7879062
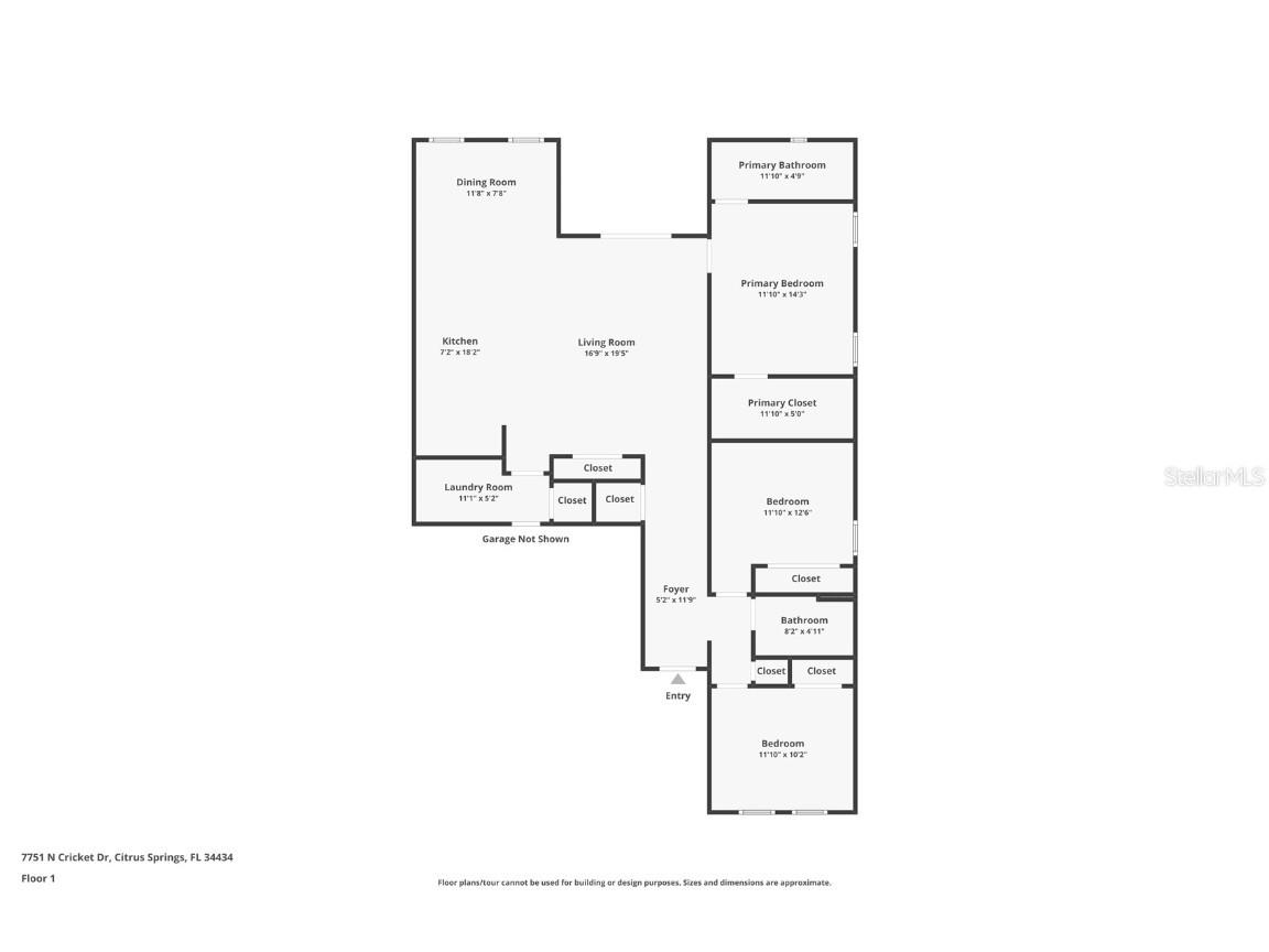
3 beds 2 baths 1,554 sq ft Single Family
Details for 7751 N Cricket Drive
MLS# W7879062
Description for 7751 N Cricket Drive, Citrus Springs, FL, 34434
Under contract-accepting backup offers. Welcome to your dream home in the charming community of Citrus Springs, FL! This beautiful single-family home boasts 3 bedrooms and 2 bathrooms, perfect for a growing family or those who love to entertain. With 1,554 living square feet, there is plenty of space to spread out and make this house your own. The attached 2-car garage provides convenience and extra storage space. Enjoy the warm Florida weather on your spacious patio, or spend your weekends exploring local treasures such as Three Sisters Springs, Rainbow River State Park, Homosassa Springs Wildlife State Park, and the scenic Withlacoochee River—all just a short drive away. This property is located in a peaceful neighborhood, surrounded by lush greenery and close to all the amenities you could need. Don’t miss the opportunity to make this house your forever home. Schedule a showing today and see for yourself why Citrus Springs is the perfect place to call home.
Listing Information
Property Type: Residential, Single Family Residence
Status: Pending
Bedrooms: 3
Bathrooms: 2
Lot Size: 0.27 Acres
Square Feet: 1,554 sq ft
Year Built: 2025
Garage: Yes
Stories: 1 Story
Construction: Block,Stucco
Subdivision: Citrus Spgs Unit 07
Foundation: Slab
County: Citrus
Room Information
Main Floor
Primary Bedroom: 14x11
Living Room: 19x16
Kitchen: 18x7
Bathrooms
Full Baths: 2
Additonal Room Information
Laundry: Laundry Room
Interior Features
Appliances: Dishwasher, Dryer, Microwave, Range, Refrigerator, Washer
Flooring: Luxury Vinyl
Additional Interior Features: Ceiling Fan(s), Split Bedrooms, Walk-In Closet(s)
Utilities
Water: Public
Sewer: Septic Tank
Other Utilities: Cable Available,Electricity Available
Cooling: Ceiling Fan(s), Central Air
Heating: Electric, Central
Exterior / Lot Features
Attached Garage: Attached Garage
Garage Spaces: 2
Roof: Shingle
Lot Dimensions: 65x136
Additional Exterior/Lot Features: Lighting
Driving Directions
Head west on W Citrus Springs Blvd toward N Cricket Dr, Turn right at the 1st cross street onto N Cricket Dr, Destination will be on the right.
Financial Considerations
Terms: Cash,Conventional,FHA,VA Loan
Tax/Property ID: 18E-17S-10-0070-07330-0110
Tax Amount: 182.6
Tax Year: 2024
A broker reciprocity listing courtesy: HORIZON PALM REALTY GROUP
Based on information provided by Stellar MLS as distributed by the MLS GRID. Information from the Internet Data Exchange is provided exclusively for consumers’ personal, non-commercial use, and such information may not be used for any purpose other than to identify prospective properties consumers may be interested in purchasing. This data is deemed reliable but is not guaranteed to be accurate by Edina Realty, Inc., or by the MLS. Edina Realty, Inc., is not a multiple listing service (MLS), nor does it offer MLS access.
Copyright 2026 Stellar MLS as distributed by the MLS GRID. All Rights Reserved.
Sales History & Tax Summary for 7751 N Cricket Drive
Sales History
| Date | Price | Change |
|---|---|---|
| Currently not available. | ||
Tax Summary
| Tax Year | Estimated Market Value | Total Tax |
|---|---|---|
| Currently not available. | ||
Data powered by ATTOM Data Solutions. Copyright© 2026. Information deemed reliable but not guaranteed.
Schools
Schools nearby 7751 N Cricket Drive
| Schools in attendance boundaries | Grades | Distance | Rating |
|---|---|---|---|
| Loading... | |||
| Schools nearby | Grades | Distance | Rating |
|---|---|---|---|
| Loading... | |||
Data powered by ATTOM Data Solutions. Copyright© 2026. Information deemed reliable but not guaranteed.
The schools shown represent both the assigned schools and schools by distance based on local school and district attendance boundaries. Attendance boundaries change based on various factors and proximity does not guarantee enrollment eligibility. Please consult your real estate agent and/or the school district to confirm the schools this property is zoned to attend. Information is deemed reliable but not guaranteed.
SchoolDigger ® Rating
The SchoolDigger rating system is a 1-5 scale with 5 as the highest rating. SchoolDigger ranks schools based on test scores supplied by each state's Department of Education. They calculate an average standard score by normalizing and averaging each school's test scores across all tests and grades.
Coming soon properties will soon be on the market, but are not yet available for showings.