7768 Fairway Woods Drive Sarasota, FL 34238
For Sale MLS# A4668745
2 beds 2 baths 1,956 sq ft Condo
Details for 7768 Fairway Woods Drive
MLS# A4668745
Description for 7768 Fairway Woods Drive, Sarasota, FL, 34238
* Price Improvement ! * HOA paid in FULL for 2026 ! * Taxes are Low ! * The Seller is Motivated - Make an Offer ! * HOA covers the exterior & most importantly, the roof ! * Paradise is Found! * Fabulous View ! * Over 2,000 sq ft of living space including the spacious lanai ! * Brand-New Kitchen ! * Brand-New Master Bathroom! * Brand-New HVAC System ! * Interior Freshly Painted ! Nestled in a private enclave, Fairway Woods is just 5 miles to Siesta Key Beach, ranked #1 in the U.S. & #4 in the world by Tripadvisor. From the moment you pass through the gates, you are surrounded by majestic old-growth trees. As you step inside, you are greeted by soaring ceilings & award-winning architecture. With over $100,000 in upgrades, this home exudes elegance and “wows” with large sliders and kitchen windows that overlook the lush grounds of Fairway Woods. Move-in ready, this 2nd story corner unit has a wet bar & wood burning fireplace, 2 bedrooms plus a den that’s fully functional as a 3rd bedroom, 2 full baths, a screened-in lanai, and a 2-car garage. Wake up as the morning sun glistens through your bedroom window. Make your way to the living area where you are greeted by an uninterrupted vista of the serene, wooded expanse outside your private lanai. The formal dining area is ideal for entertaining. The kitchen is a chef’s dream, with stone countertops, new appliances, large pantry & solid wood cabinetry. An in-kitchen casual dining area that easily seats four overlooks the gorgeous landscape, surrounding you in nature. The over-sized stately primary bedroom features a luxurious soaking tub, large walk-in shower, dual vanities, & sizable walk-in closet. The 2nd bedroom features a dedicated full bath whereby use of pocket doors creates a private retreat for your guests. The home has an in-unit laundry room with new washer & dryer, was re-piped in 2016, is equipped with a newer Rheem water heater, new lighting, newer flooring, & a 75” Samsung smart TV, adding to the appeal & value of this distinctive property. Nature lovers, sports enthusiasts, and patrons of the arts have the best of Sarasota at their fingertips. In addition to the top-rated TPC golf course nearby, you will find an abundance of outdoor activities including waterfront dining, boating, biking, hiking & fishing. The Legacy Trail, Marie Selby Botanical Gardens, & the YMCA are all within easy reach. Easy access to the interstate & state-of-the-art medical facilities, pet-friendly Fairway Woods is a 20-minute drive to Sarasota’s Bayfront, with its world-class shopping, dining, & cultural events. The home is under 5 miles from Pine View, consistently ranked as one of the top ten U.S. schools. Costco, Lowes, Publix & Target are under 2 miles away, and new Trader Joe’s & Whole Foods are in the works. In addition to the building’s exterior, the HOA covers maintenance of the lush mature landscaping, gated entry, and community amenities including a heated pool and hot tub, and an outdoor kitchen and grilling station, available for private parties. Morning strolls are a delight and are perfect for bird watching as you meander among the 26 beautifully curated acres. Varied activities and enrichment classes such as Yoga, Tai Chi, Water Aerobics, Mah Jong & a monthly Book Club are offered. Community gatherings, including holiday parties & weekly relaxed get-togethers are held to get to know your friendly neighbors. Come, relax & rejuvenate. Paradise is yours!
Listing Information
Property Type: Residential, Condominium
Status: Active
Bedrooms: 2
Bathrooms: 2
Square Feet: 1,956 sq ft
Year Built: 1985
Garage: Yes
Stories: 1 Story
Construction: Block,Stucco
Subdivision: Fairway Woods
Foundation: Slab
County: Sarasota
School Information
Elementary: Gulf Gate Elementary
Middle: Sarasota Middle
High: Riverview High
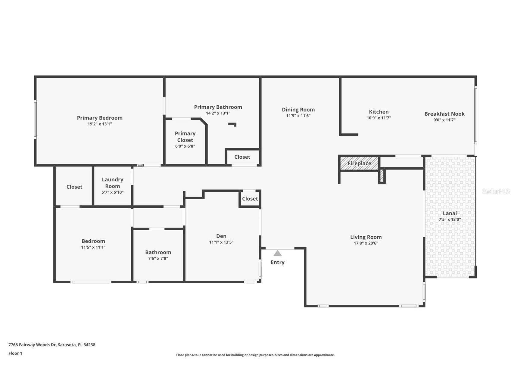
Room Information
Main Floor
Laundry: 6x5.5
Living Room: 18x18
Porch: 9x5
Porch: 8x17
Dinette: 9x11
Den: 11x11
Bedroom 2: 11x11
Primary Bedroom: 13x20
Kitchen: 11x11
Dining Room: 12x15
Bathrooms
Full Baths: 2
Additonal Room Information
Laundry: Inside, Laundry Room
Interior Features
Appliances: Electric Water Heater, Range Hood, Washer, Dishwasher, Disposal, Dryer, Range, Refrigerator
Flooring: Ceramic Tile,Luxury Vinyl
Doors/Windows: Blinds, Window Treatments
Fireplaces: Wood Burning, Living Room
Additional Interior Features: Walk-In Closet(s), Wet Bar, Eat-In Kitchen, Ceiling Fan(s), Vaulted Ceiling(s), Built-in Features, Window Treatments, High Ceilings, Solid Surface Counters, Stone Counters, Wood Cabinets, Separate/Formal Dining Room, Main Level Primary
Utilities
Water: Public
Sewer: Public Sewer
Other Utilities: Cable Connected,Electricity Connected,Municipal Utilities,Sewer Connected,Underground Utilities,Water Connected
Cooling: Ceiling Fan(s), Central Air
Heating: Central
Exterior / Lot Features
Garage Spaces: 2
Parking Description: driveway, Garage, Tandem, Garage Door Opener
Roof: Tile
Pool: Association, Community
Lot View: Lake,Pond,Trees/Woods,Water
Additional Exterior/Lot Features: Front Porch, Rear Porch, Patio, Porch, Covered, Screened, Landscaped, Cul-de-Sac, Near Public Transit, Private Road, Dead End, Buyer Approval Required, Near Golf Course
Out Buildings: Other
Community Features
Community Features: Golf Carts OK, Community Mailbox, Gated, Clubhouse, Pool, Lake
Security Features: Gated Community, Smoke Detector(s)
Association Amenities: Pool, Clubhouse, Maintenance Grounds, Gated, Spa/Hot Tub
HOA Dues Include: Common Areas, Pest Control, Reserve Fund, Road Maintenance, Maintenance Structure, Pool(s), Insurance, Maintenance Grounds, Trash, Taxes
Driving Directions
Off of Beneva Road, between Palmer Ranch Parkway and Sarasota Square Blvd. Go east on Fairway Woods Blvd and then turn right (south). Upstairs unit is on the right, just before the cul de sac.
Financial Considerations
Terms: Cash,Conventional,VA Loan
Tax/Property ID: 0114052036
Tax Amount: 4008
Tax Year: 2025
A broker reciprocity listing courtesy: MICHAEL SAUNDERS & COMPANY
Based on information provided by Stellar MLS as distributed by the MLS GRID. Information from the Internet Data Exchange is provided exclusively for consumers’ personal, non-commercial use, and such information may not be used for any purpose other than to identify prospective properties consumers may be interested in purchasing. This data is deemed reliable but is not guaranteed to be accurate by Edina Realty, Inc., or by the MLS. Edina Realty, Inc., is not a multiple listing service (MLS), nor does it offer MLS access.
Copyright 2026 Stellar MLS as distributed by the MLS GRID. All Rights Reserved.
Payment Calculator
Interest rate and annual percentage rate (APR) are based on current market conditions, are for informational purposes only, are subject to change without notice and may be subject to pricing add-ons related to property type, loan amount, loan-to-value, credit score and other variables. Estimated closing costs used in the APR calculation are assumed to be paid by the borrower at closing. If the closing costs are financed, the loan, APR and payment amounts will be higher. If the down payment is less than 20%, mortgage insurance may be required and could increase the monthly payment and APR. Contact us for details. Additional loan programs may be available. Accuracy is not guaranteed, and all products may not be available in all borrower's geographical areas and are based on their individual situation. This is not a credit decision or a commitment to lend.
Sales History & Tax Summary for 7768 Fairway Woods Drive
Sales History
| Date | Price | |
|---|---|---|
| Currently not available. | ||
Tax Summary
| Tax Year | Estimated Market Value | Total Tax |
|---|---|---|
| Currently not available. | ||
Data powered by ATTOM Data Solutions. Copyright© 2026. Information deemed reliable but not guaranteed.
Schools
Schools nearby 7768 Fairway Woods Drive
| Schools in attendance boundaries | Grades | Distance | Rating |
|---|---|---|---|
| Loading... | |||
| Schools nearby | Grades | Distance | Rating |
|---|---|---|---|
| Loading... | |||
Data powered by ATTOM Data Solutions. Copyright© 2026. Information deemed reliable but not guaranteed.
The schools shown represent both the assigned schools and schools by distance based on local school and district attendance boundaries. Attendance boundaries change based on various factors and proximity does not guarantee enrollment eligibility. Please consult your real estate agent and/or the school district to confirm the schools this property is zoned to attend. Information is deemed reliable but not guaranteed.
SchoolDigger ® Rating
The SchoolDigger rating system is a 1-5 scale with 5 as the highest rating. SchoolDigger ranks schools based on test scores supplied by each state's Department of Education. They calculate an average standard score by normalizing and averaging each school's test scores across all tests and grades.
Coming soon properties will soon be on the market, but are not yet available for showings.