$250,000
7880 54th Avenue N #77 Saint Petersburg, FL 33709
For Sale MLS# TB8365026
3 beds 2 baths 1,404 sq ft Single Family
Details for 7880 54th Avenue N #77
MLS# TB8365026
Description for 7880 54th Avenue N #77, Saint Petersburg, FL, 33709
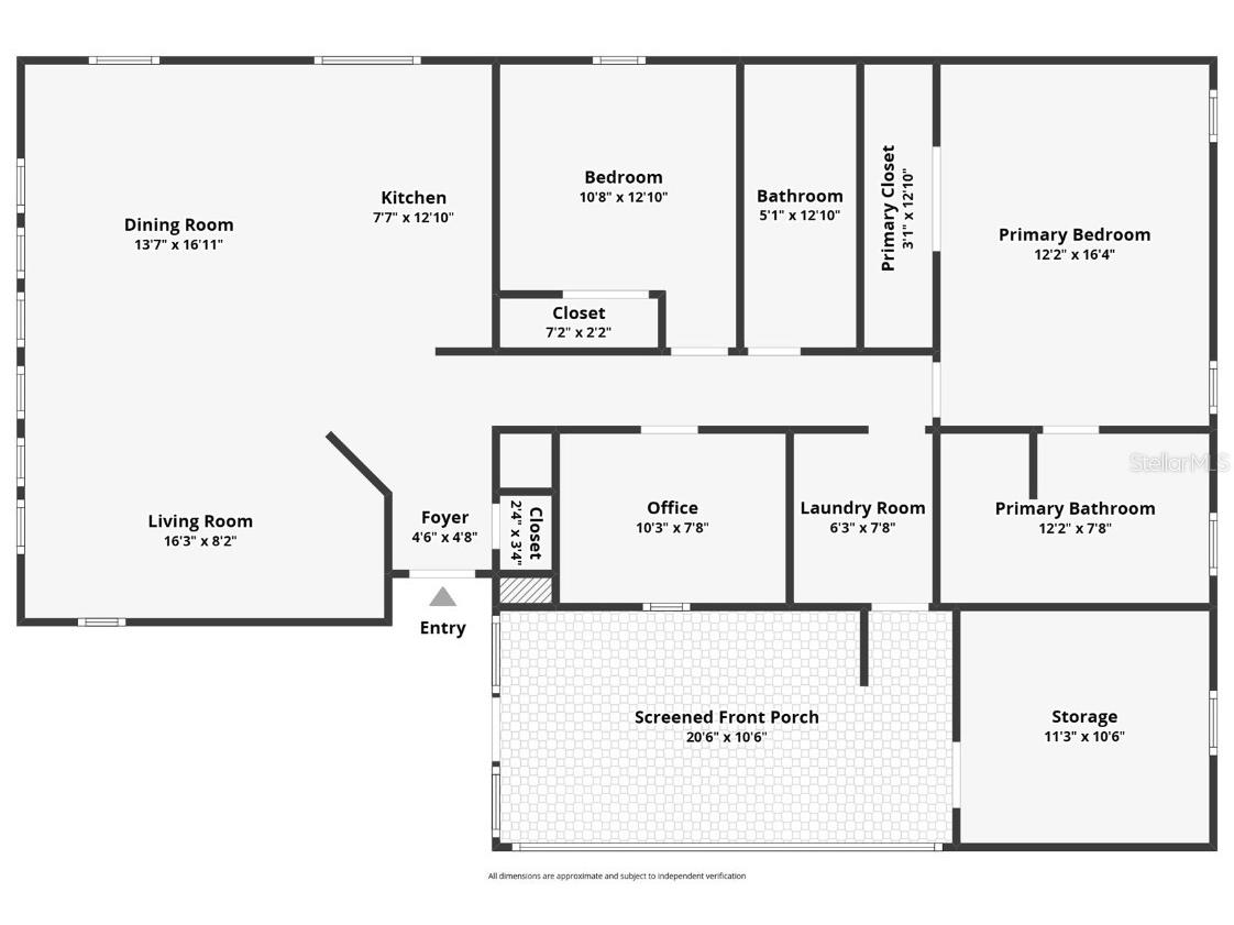
**Charming 3-Bedroom Home in Desirable Club Chalet 55+Community ** Welcome to this inviting 3-bedroom, 2-bath home situated on a desirable corner lot in the vibrant Club Chalet community. Built by Jacobson Home Builders in 2004, this residence combines comfort and functionality, making it the perfect place for your next chapter. As you step inside, you'll be greeted by an open living and dining area that flows seamlessly into the well-appointed kitchen. The kitchen features ample cabinets, new dishwasher 2021, new faucet 2024. Laundry room is conveniently located with wash sink. The third bedroom is versatile, ideal for use as a home office with built-ins, allowing for a productive workspace. Enjoy your mornings and evenings on the screened-in porch, where you can unwind while overlooking the serene pond with a fountain—a perfect backdrop for relaxation. The property also includes a 4 x 8 above-ground planter in the backyard, ideal for gardening enthusiasts. This home has been well-maintained, with a roof replaced in April 2020 that comes with a transferable warranty, and termite treatment completed in April 2022 by Hughes Stations, including a yearly contract for peace of mind. The unit is secured with tie-downs and features an outside sprinkler system installed in January 2015 to keep your yard lush. Living in Club Chalet means enjoying a wealth of community amenities, including a heated pool, clubhouse, and a variety of recreational activities such as shuffleboard and community dinners. With a low monthly fee of just $267, which covers water, sewer, lawn maintenance, internet, cable, and garbage collection, you can enjoy a carefree lifestyle. Conveniently located close to beautiful beaches, restaurants, and grocery stores, this golf cart-friendly community makes it easy to explore your surroundings. Plus, downtown St. Petersburg is just 20 minutes away, offering a vibrant mix of dining, shopping, and entertainment options. Don’t miss the opportunity to make this lovely home your own and enjoy the wonderful lifestyle that Club Chalet has to offer!
Listing Information
Property Type: Residential, Manufactured Home
Status: Active
Bedrooms: 3
Bathrooms: 2
Square Feet: 1,404 sq ft
Year Built: 2004
Stories: 1 Story
Construction: Wood Frame
Subdivision: Club Chalet Unrec Mhp
Foundation: Other
County: Pinellas
Room Information
Main Floor
Bathroom 2: 5x12
Bedroom 3: 10x10
Bedroom 2: 10x8
Primary Bathroom: 7x12
Primary Bedroom: 12x16
Laundry: 6x7
Kitchen: 12x10
Dining Room: 10x12
Living Room: 11x13
Bathrooms
Full Baths: 2
Additonal Room Information
Laundry: Laundry Room
Interior Features
Appliances: Electric Water Heater, Range, Refrigerator, Washer, Dryer, Microwave
Flooring: Carpet,Ceramic Tile
Additional Interior Features: Ceiling Fan(s)
Utilities
Sewer: Public Sewer
Other Utilities: Cable Connected,Electricity Connected,Sewer Connected,Water Not Available
Cooling: Ceiling Fan(s), Central Air
Heating: Central
Exterior / Lot Features
Roof: Shingle
Pool: Association, Community
Additional Exterior/Lot Features: Sprinkler/Irrigation, Garden, Buyer Approval Required
Waterfront Details
Water Front Features: Pond
Community Features
Community Features: Golf Carts OK, Pool, Clubhouse
Association Amenities: Clubhouse, Maintenance Grounds, Shuffleboard Court, Pool, Cable TV, Laundry
HOA Dues Include: Internet, Cable TV, Water, Trash, Association Management, Road Maintenance, Pool(s), Maintenance Grounds, Sewer
Homeowners Association: Yes
HOA Dues: $267 / Monthly
Driving Directions
54th Ave N to 7880 54th Ave N address
Financial Considerations
Terms: Cash
Tax/Property ID: 01-31-15-16797-000-0770
Tax Amount: 3020.91
Tax Year: 2024
A broker reciprocity listing courtesy: COPELAND MORGAN LLC
Based on information provided by Stellar MLS as distributed by the MLS GRID. Information from the Internet Data Exchange is provided exclusively for consumers’ personal, non-commercial use, and such information may not be used for any purpose other than to identify prospective properties consumers may be interested in purchasing. This data is deemed reliable but is not guaranteed to be accurate by Edina Realty, Inc., or by the MLS. Edina Realty, Inc., is not a multiple listing service (MLS), nor does it offer MLS access.
Copyright 2026 Stellar MLS as distributed by the MLS GRID. All Rights Reserved.
Payment Calculator
Interest rate and annual percentage rate (APR) are based on current market conditions, are for informational purposes only, are subject to change without notice and may be subject to pricing add-ons related to property type, loan amount, loan-to-value, credit score and other variables. Estimated closing costs used in the APR calculation are assumed to be paid by the borrower at closing. If the closing costs are financed, the loan, APR and payment amounts will be higher. If the down payment is less than 20%, mortgage insurance may be required and could increase the monthly payment and APR. Contact us for details. Additional loan programs may be available. Accuracy is not guaranteed, and all products may not be available in all borrower's geographical areas and are based on their individual situation. This is not a credit decision or a commitment to lend.
Sales History & Tax Summary for 7880 54th Avenue N #77
Sales History
| Date | Price | |
|---|---|---|
| Currently not available. | ||
Tax Summary
| Tax Year | Estimated Market Value | Total Tax |
|---|---|---|
| Currently not available. | ||
Data powered by ATTOM Data Solutions. Copyright© 2026. Information deemed reliable but not guaranteed.
Schools
Schools nearby 7880 54th Avenue N #77
| Schools in attendance boundaries | Grades | Distance | Rating |
|---|---|---|---|
| Loading... | |||
| Schools nearby | Grades | Distance | Rating |
|---|---|---|---|
| Loading... | |||
Data powered by ATTOM Data Solutions. Copyright© 2026. Information deemed reliable but not guaranteed.
The schools shown represent both the assigned schools and schools by distance based on local school and district attendance boundaries. Attendance boundaries change based on various factors and proximity does not guarantee enrollment eligibility. Please consult your real estate agent and/or the school district to confirm the schools this property is zoned to attend. Information is deemed reliable but not guaranteed.
SchoolDigger ® Rating
The SchoolDigger rating system is a 1-5 scale with 5 as the highest rating. SchoolDigger ranks schools based on test scores supplied by each state's Department of Education. They calculate an average standard score by normalizing and averaging each school's test scores across all tests and grades.
Coming soon properties will soon be on the market, but are not yet available for showings.