$319,000
7935 Moonstone Drive #26-101 Sarasota, FL 34233
For Sale MLS# TB8453315
3 beds 2 baths 1,252 sq ft Condo
Details for 7935 Moonstone Drive #26-101
MLS# TB8453315
Description for 7935 Moonstone Drive #26-101, Sarasota, FL, 34233
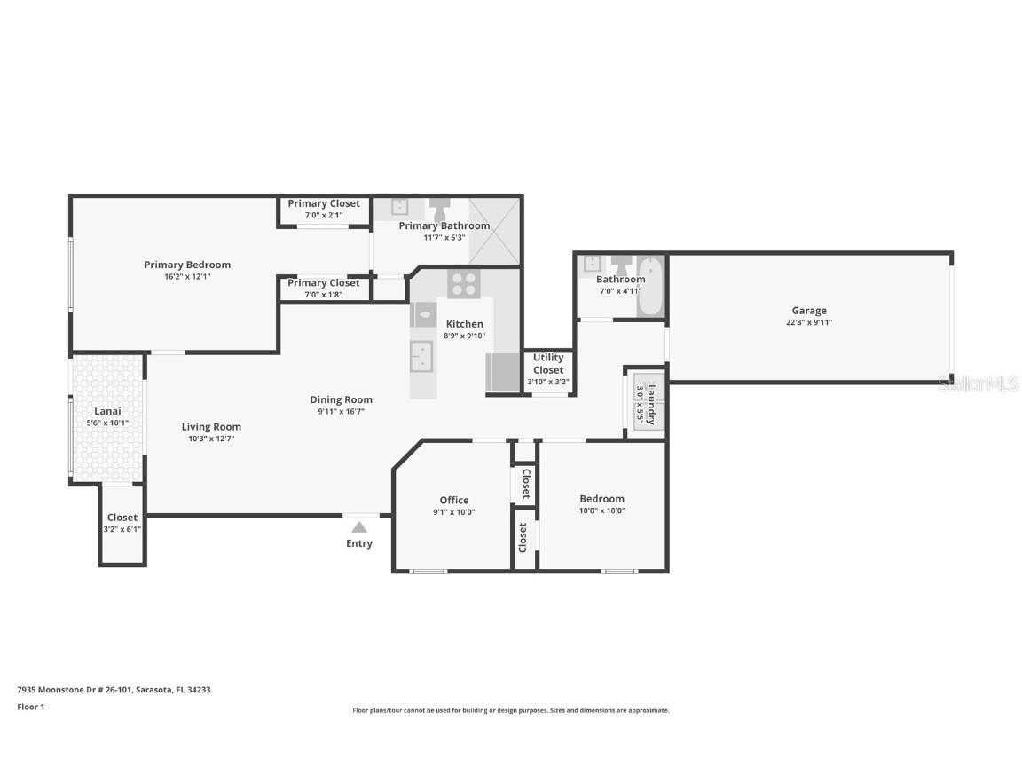
Welcome home to your slice of paradise in the highly sought-after, gated Stonehaven community of Palmer Ranch! This beautifully FURNISHED 3-bedroom, 2-bathroom ground floor townhome will make moving a breeze. You'll love all the thoughtful updates, including a brand new HVAC system. You'll enjoy the view from the screened, covered, PRIVATE lanai. Step inside to discover a light, bright, open floor plan featuring high ceilings and natural sunlight that truly reflects pristine care. The tastefully appointed kitchen features a breakfast bar, granite countertops, and stainless steel appliances, perfect for preparing meals after a day at the beach. Tucked away for privacy, the primary suite features sliding doors leading to the lanai, an ensuite bath with a walk-in shower, and an oversized closet. The two generously sized guest bedrooms share the guest bathroom, which is conveniently located next to the in-unit washer and dryer. Outside, you have a spacious attached one-car garage, offering direct access into the townhome. Living here means enjoying a maintenance-free lifestyle with LOW HOA fees and NO CDD! Stonehaven provides a resort-like feel with lush tropical landscaping, a community pool, and a playground, while covering essentials like roof maintenance, exterior pest control, and garbage pickup. Located for ultimate convenience, you have quick access to Siesta Key and Casey Key's mesmerizing sugar sand beaches, the Legacy Trail, I-75, dining, and shopping. This residence is ready to cater to a range of lifestyle needs, whether it's your primary residence or a vacation retreat. Schedule your showing today and start living the Gulf Coast lifestyle in paradise!
Listing Information
Property Type: Residential, Condominium
Status: Active
Bedrooms: 3
Bathrooms: 2
Lot Size: 18.74 Acres
Square Feet: 1,252 sq ft
Year Built: 2010
Garage: Yes
Stories: 1 Story
Construction: Block,Concrete
Subdivision: Stonehaven Ph 4, 5, 6, 7 & 25
Foundation: Slab
County: Sarasota
School Information
Elementary: Ashton Elementary
Middle: Sarasota Middle
High: Riverview High
Room Information
Main Floor
Primary Bedroom:
Living Room:
Kitchen:
Bathrooms
Full Baths: 2
Additonal Room Information
Laundry: Inside, Laundry Closet
Interior Features
Appliances: Electric Water Heater, Range, Refrigerator
Flooring: Tile
Additional Interior Features: Ceiling Fan(s), Walk-In Closet(s), Eat-In Kitchen, Open Floorplan, Solid Surface Counters, Main Level Primary, Kitchen/Family Room Combo
Utilities
Water: See Remarks
Sewer: Public Sewer
Other Utilities: Electricity Connected,Municipal Utilities,Sewer Connected,Underground Utilities,Water Connected
Cooling: Central Air, Ceiling Fan(s)
Heating: Central
Exterior / Lot Features
Attached Garage: Attached Garage
Garage Spaces: 1
Parking Description: driveway, Covered
Roof: Tile
Pool: Community
Lot View: Pond,Trees/Woods,Water
Additional Exterior/Lot Features: Private Entrance, Sprinkler/Irrigation, Lighting, Covered, Front Porch, Rear Porch, Screened, Landscaped, Buyer Approval Required
Community Features
Community Features: Street Lights, Pool, Playground, Sidewalks
Security Features: Secured Garage/Parking
HOA Dues Include: Maintenance Structure, Pool(s), Recreation Facilities, Maintenance Grounds, Pest Control, Trash
Driving Directions
From I-75 head west on Clark Rd. Turn right onto Moonstone Dr. Main entrance to Stonehaven, At the gate, Enter gate code, Continue on Moonstone Dr. Park in Guest Parking at the end of the street.
Financial Considerations
Terms: Cash,Conventional,FHA,VA Loan
Tax/Property ID: 0094121234
Tax Amount: 3641.67
Tax Year: 2024
A broker reciprocity listing courtesy: REDFIN CORPORATION
Based on information provided by Stellar MLS as distributed by the MLS GRID. Information from the Internet Data Exchange is provided exclusively for consumers’ personal, non-commercial use, and such information may not be used for any purpose other than to identify prospective properties consumers may be interested in purchasing. This data is deemed reliable but is not guaranteed to be accurate by Edina Realty, Inc., or by the MLS. Edina Realty, Inc., is not a multiple listing service (MLS), nor does it offer MLS access.
Copyright 2025 Stellar MLS as distributed by the MLS GRID. All Rights Reserved.
Payment Calculator
Interest rate and annual percentage rate (APR) are based on current market conditions, are for informational purposes only, are subject to change without notice and may be subject to pricing add-ons related to property type, loan amount, loan-to-value, credit score and other variables. Estimated closing costs used in the APR calculation are assumed to be paid by the borrower at closing. If the closing costs are financed, the loan, APR and payment amounts will be higher. If the down payment is less than 20%, mortgage insurance may be required and could increase the monthly payment and APR. Contact us for details. Additional loan programs may be available. Accuracy is not guaranteed, and all products may not be available in all borrower's geographical areas and are based on their individual situation. This is not a credit decision or a commitment to lend.
Sales History & Tax Summary for 7935 Moonstone Drive #26-101
Sales History
| Date | Price | Change |
|---|---|---|
| Currently not available. | ||
Tax Summary
| Tax Year | Estimated Market Value | Total Tax |
|---|---|---|
| Currently not available. | ||
Data powered by ATTOM Data Solutions. Copyright© 2025. Information deemed reliable but not guaranteed.
Schools
Schools nearby 7935 Moonstone Drive #26-101
| Schools in attendance boundaries | Grades | Distance | Rating |
|---|---|---|---|
| Loading... | |||
| Schools nearby | Grades | Distance | Rating |
|---|---|---|---|
| Loading... | |||
Data powered by ATTOM Data Solutions. Copyright© 2025. Information deemed reliable but not guaranteed.
The schools shown represent both the assigned schools and schools by distance based on local school and district attendance boundaries. Attendance boundaries change based on various factors and proximity does not guarantee enrollment eligibility. Please consult your real estate agent and/or the school district to confirm the schools this property is zoned to attend. Information is deemed reliable but not guaranteed.
SchoolDigger ® Rating
The SchoolDigger rating system is a 1-5 scale with 5 as the highest rating. SchoolDigger ranks schools based on test scores supplied by each state's Department of Education. They calculate an average standard score by normalizing and averaging each school's test scores across all tests and grades.
Coming soon properties will soon be on the market, but are not yet available for showings.