7953 Lake James Boulevard Lakeland, FL 33810
For Sale MLS# L4954430
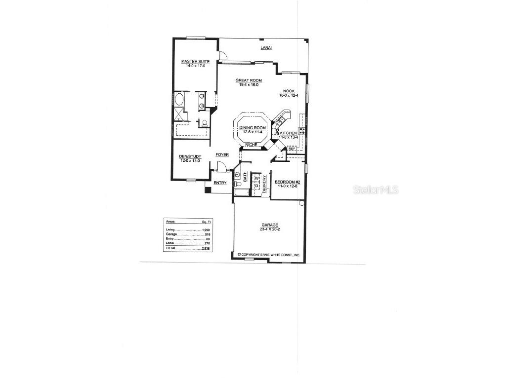
2 beds 2 baths 1,990 sq ft Single Family
Details for 7953 Lake James Boulevard
MLS# L4954430
Description for 7953 Lake James Boulevard, Lakeland, FL, 33810
BETTER THAN NEW! This stunning Ernie White-built home is less than 2 years young and sits on a premium, private lot in the beautiful gated, 55+ community of Lake James. With nearly 2,000 sq. ft. of living space, this 2-bedroom, 2-bath home with an office (easily used as a 3rd bedroom) offers comfort, style and a thoughtfully designed layout. From the moment you step inside, you’ll be impressed by the soaring 12-foot ceilings in the main living areas, enhancing the open and airy feel. The remainder of the home features 10-foot ceilings, creating a sense of spacious elegance throughout. The living and dining spaces flow seamlessly into a well-appointed kitchen boasting white cabinetry, quartz countertops, an upgraded stainless steel appliance package and a breakfast bar. Enjoy peaceful views of nature through the French doors in the dinette area, which lead to a screened lanai—perfect for morning coffee or evening relaxation. The primary suite features serene wooded views, an expansive ensuite bath with dual sinks, a large vanity area, a walk-in shower with custom glass door and a huge walk-in closet. Additional highlights include crown molding throughout, 8’ doors with bronze hardware and numerous upgrades completed after purchase—Luxury Vinyl Plank flooring throughout (excluding baths and laundry), Plantation Shutters, rain gutters, and sealed pavers. The oversized side-load garage includes an epoxy-coated floor, and the driveway, lanai and sitting area are beautifully finished with brick pavers. This move-in ready home gives you more time to enjoy the clubhouse, community pool and fitness center. The low-maintenance lifestyle is enhanced by an HOA fee that covers cable TV & internet, lawn care, fertilization & pest control, and irrigation system maintenance.
Listing Information
Property Type: Residential, Single Family Residence
Status: Active
Bedrooms: 2
Bathrooms: 2
Lot Size: 0.16 Acres
Square Feet: 1,990 sq ft
Year Built: 2023
Garage: Yes
Stories: 1 Story
Construction: Block,Stucco
Subdivision: Lake James Ph Four
Builder: Ernie White
Foundation: Slab
County: Polk
Room Information
Main Floor
Bathroom 2: 5x11
Dinette: 11x12
Laundry: 7x7
Office: 11x13
Bedroom 2: 11x13
Primary Bathroom: 9x13
Primary Bedroom: 13x16
Living Room: 18x15
Dining Room: 11x10
Kitchen: 11x15
Bathrooms
Full Baths: 2
Additonal Room Information
Laundry: Inside, Laundry Room, Washer Hookup, Electric Dryer Hookup
Interior Features
Appliances: Electric Water Heater, Microwave, Refrigerator, Cooktop, Dishwasher
Flooring: Ceramic Tile,Luxury Vinyl
Doors/Windows: Blinds, Window Treatments, Shutters
Additional Interior Features: Eat-In Kitchen, Ceiling Fan(s), Walk-In Closet(s), Split Bedrooms, Window Treatments, Open Floorplan, Crown Molding, High Ceilings, Living/Dining Room, Stone Counters
Utilities
Water: Public
Sewer: Public Sewer
Other Utilities: Cable Connected,High Speed Internet Available,Sewer Connected,Underground Utilities
Cooling: Ceiling Fan(s), Central Air
Heating: Central, Electric
Exterior / Lot Features
Attached Garage: Attached Garage
Garage Spaces: 2
Parking Description: Garage, Garage Door Opener, driveway, Garage Faces Side
Roof: Shingle
Pool: Community
Lot View: Trees/Woods
Additional Exterior/Lot Features: Rain Gutters, Sprinkler/Irrigation, French Patio Doors, Rear Porch, Screened, Covered, Landscaped, Buyer Approval Required, Outside City Limits
Community Features
Community Features: Fitness, Golf Carts OK, Pool, Clubhouse, Street Lights, Gated
Security Features: Gated Community
Association Amenities: Clubhouse, Fitness Center, Gated, Cable TV
HOA Dues Include: Maintenance Grounds, Pest Control, Pool(s), Cable TV, Recreation Facilities, Internet
Homeowners Association: Yes
HOA Dues: $1,860 / Semi-Annually
Driving Directions
Heading North on Hwy 98N, turn left on Bananna Rd. Continue on Banana to the Lake James Community on the left. Enter community and go left at the round about and follow to the end, road turns to the right, home will be on left just after you make the turn.
Financial Considerations
Terms: Cash,Conventional,FHA,VA Loan
Tax/Property ID: 23-27-10-000835-003520
Tax Amount: 3954
Tax Year: 2024
A broker reciprocity listing courtesy: REMAX EXPERTS
Based on information provided by Stellar MLS as distributed by the MLS GRID. Information from the Internet Data Exchange is provided exclusively for consumers’ personal, non-commercial use, and such information may not be used for any purpose other than to identify prospective properties consumers may be interested in purchasing. This data is deemed reliable but is not guaranteed to be accurate by Edina Realty, Inc., or by the MLS. Edina Realty, Inc., is not a multiple listing service (MLS), nor does it offer MLS access.
Copyright 2025 Stellar MLS as distributed by the MLS GRID. All Rights Reserved.
Payment Calculator
Interest rate and annual percentage rate (APR) are based on current market conditions, are for informational purposes only, are subject to change without notice and may be subject to pricing add-ons related to property type, loan amount, loan-to-value, credit score and other variables. Estimated closing costs used in the APR calculation are assumed to be paid by the borrower at closing. If the closing costs are financed, the loan, APR and payment amounts will be higher. If the down payment is less than 20%, mortgage insurance may be required and could increase the monthly payment and APR. Contact us for details. Additional loan programs may be available. Accuracy is not guaranteed, and all products may not be available in all borrower's geographical areas and are based on their individual situation. This is not a credit decision or a commitment to lend.
Sales History & Tax Summary for 7953 Lake James Boulevard
Sales History
| Date | Price | Change |
|---|---|---|
| Currently not available. | ||
Tax Summary
| Tax Year | Estimated Market Value | Total Tax |
|---|---|---|
| Currently not available. | ||
Data powered by ATTOM Data Solutions. Copyright© 2025. Information deemed reliable but not guaranteed.
Schools
Schools nearby 7953 Lake James Boulevard
| Schools in attendance boundaries | Grades | Distance | Rating |
|---|---|---|---|
| Loading... | |||
| Schools nearby | Grades | Distance | Rating |
|---|---|---|---|
| Loading... | |||
Data powered by ATTOM Data Solutions. Copyright© 2025. Information deemed reliable but not guaranteed.
The schools shown represent both the assigned schools and schools by distance based on local school and district attendance boundaries. Attendance boundaries change based on various factors and proximity does not guarantee enrollment eligibility. Please consult your real estate agent and/or the school district to confirm the schools this property is zoned to attend. Information is deemed reliable but not guaranteed.
SchoolDigger ® Rating
The SchoolDigger rating system is a 1-5 scale with 5 as the highest rating. SchoolDigger ranks schools based on test scores supplied by each state's Department of Education. They calculate an average standard score by normalizing and averaging each school's test scores across all tests and grades.
Coming soon properties will soon be on the market, but are not yet available for showings.