7957 South Park Place Orlando, FL 32819
For Sale MLS# O6303786
5 beds 6 baths 5,200 sq ft Single Family
Details for 7957 South Park Place
MLS# O6303786
Description for 7957 South Park Place, Orlando, FL, 32819
MOTIVATED SELLER. A Rare Opportunity Awaits: Own a Custom Estate in Coveted South Bay. Discover this exceptional, custom-designed residence in the highly desirable South Bay community of Southwest Orlando's Dr. Phillips area. Crafted by a renowned architect, this magnificent single-family home exudes sophistication from the moment you arrive via the improved brick paver circular driveway. Step inside this impeccably maintained home to experience refined living, greeted by a striking split staircase. The formal living spaces showcase soaring 16' pocket tray ceilings and designer chandeliers, setting a tone of understated elegance. The state-of-the-art kitchen, recently modernized with high-end GE Café appliances, seamlessly flows into the expansive family room, perfect for grand entertaining. Each of the five spacious bedroom suites offers a private sanctuary with walk-in closets and en-suite bathrooms. This home boasts superior construction, including solid block and steel-wrapped rafters, enhanced by a new air conditioning system. The screened outdoor living space is an entertainer's dream, featuring a stunning custom pool, spa, and fountain, plus a convenient pool house with a shower and grill. While move-in ready, this distinguished residence presents a unique canvas for the discerning buyer to apply their personal vision, offering an unparalleled return on investment for those ready to customize and elevate this luxurious space. South Bay offers residents exclusive amenities including private tennis courts and, most notably, private dock access to the renowned Butler Chain of Lakes via Lake Tibet. Its premier location provides unparalleled convenience to world-class dining on Restaurant Row, the Bay Hill Golf Course, major theme parks, and exemplary Dr. Phillips schools. This rare opportunity to own a custom estate has created an opening for an attractive and expedited transaction. The Sellers are highly motivated and receptive to all qualified offers. Bring us your vision.
Listing Information
Property Type: Residential, Single Family Residence
Status: Active
Bedrooms: 5
Bathrooms: 6
Lot Size: 0.35 Acres
Square Feet: 5,200 sq ft
Year Built: 1998
Garage: Yes
Stories: 2 Story
Construction: Block,Stucco
Construction Display: New Construction
Subdivision: South Bay Sec 4
Foundation: Slab
County: Orange
Construction Status: New Construction
School Information
Elementary: Dr. Phillips Elem
Middle: Southwest Middle
High: Dr. Phillips High
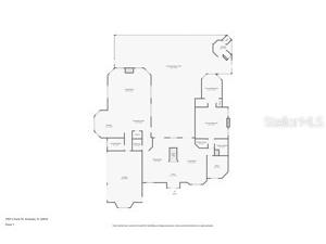
Room Information
Main Floor
Primary Bedroom: 22x18
Primary Bathroom: 18x11
Living Room: 23x24
Kitchen: 15x16
Dining Room: 11x14
Foyer: 14x7
Office: 12x11
Living Room: 25x16
Dining Room: 24x13
Laundry: 7x9
Upper Floor
Bedroom 3: 18x17
Bedroom 1: 17x17
Bedroom 3: 16x16
Bedroom 2: 17x16
Bathroom 1: 5x8
Bathrooms
Full Baths: 5
1/2 Baths: 1
Additonal Room Information
Laundry: Laundry Room, Inside
Interior Features
Appliances: Washer, Dryer, Microwave, Range, Refrigerator, Dishwasher, Disposal
Flooring: Carpet,Marble
Doors/Windows: Window Treatments
Fireplaces: Primary Bedroom, Living Room, Wood Burning
Additional Interior Features: Walk-In Closet(s), Eat-In Kitchen, Ceiling Fan(s), High Ceilings, Living/Dining Room, Built-in Features, Cathedral Ceiling(s), Split Bedrooms, Window Treatments, Open Floorplan, Kitchen/Family Room Combo, Main Level Primary, Crown Molding, Separate/Formal Dining Room, Coffered Ceiling(s), Separate/Formal Living Room, Stone Counters, Chair Rail
Utilities
Water: Public
Sewer: Septic Tank
Other Utilities: Cable Available,Cable Connected,Electricity Connected,High Speed Internet Available,Water Connected
Cooling: Ceiling Fan(s), Central Air
Heating: Central
Exterior / Lot Features
Attached Garage: Attached Garage
Garage Spaces: 3
Parking Description: Oversized, Circular Driveway, Garage, driveway, Garage Door Opener
Roof: Tile
Pool: Gunite, Screen Enclosure
Fencing: Vinyl
Additional Exterior/Lot Features: Sprinkler/Irrigation, French Patio Doors, Rain Gutters, Lighting, Outdoor Grill, Outdoor Shower, Balcony, Outdoor Kitchen, Screened, Balcony, Covered, Patio, Porch, Rear Porch
Community Features
Community Features: Dock, Sidewalks, Tennis Court(s), Playground, Park, Golf Carts OK
Security Features: Fire Hydrant(s)
Association Amenities: Tennis Court(s), Playground, Trail(s), Pickleball
HOA Dues Include: Common Areas, Reserve Fund, Association Management, Taxes, Recreation Facilities
Homeowners Association: Yes
HOA Dues: $1,500 / Annually
Driving Directions
From Downtown Orlando, take I-4 West to exit 74A for Sand Lake Road West. Continue onto Granada Boulevard, then make a slight right toward S Bay Drive, followed by a right onto S Bay Drive. Finally, turn left onto S Park Place. The destination at 7957 S Park Place will be on your right, approximately a 21-minute drive covering about 12 miles.
Financial Considerations
Terms: Cash,Conventional,VA Loan
Tax/Property ID: 27-23-28-8162-00-020
Tax Amount: 10791
Tax Year: 2024
A broker reciprocity listing courtesy: EXP REALTY LLC
Based on information provided by Stellar MLS as distributed by the MLS GRID. Information from the Internet Data Exchange is provided exclusively for consumers’ personal, non-commercial use, and such information may not be used for any purpose other than to identify prospective properties consumers may be interested in purchasing. This data is deemed reliable but is not guaranteed to be accurate by Edina Realty, Inc., or by the MLS. Edina Realty, Inc., is not a multiple listing service (MLS), nor does it offer MLS access.
Copyright 2026 Stellar MLS as distributed by the MLS GRID. All Rights Reserved.
Payment Calculator
Interest rate and annual percentage rate (APR) are based on current market conditions, are for informational purposes only, are subject to change without notice and may be subject to pricing add-ons related to property type, loan amount, loan-to-value, credit score and other variables. Estimated closing costs used in the APR calculation are assumed to be paid by the borrower at closing. If the closing costs are financed, the loan, APR and payment amounts will be higher. If the down payment is less than 20%, mortgage insurance may be required and could increase the monthly payment and APR. Contact us for details. Additional loan programs may be available. Accuracy is not guaranteed, and all products may not be available in all borrower's geographical areas and are based on their individual situation. This is not a credit decision or a commitment to lend.
Sales History & Tax Summary for 7957 South Park Place
Sales History
| Date | Price | |
|---|---|---|
| Currently not available. | ||
Tax Summary
| Tax Year | Estimated Market Value | Total Tax |
|---|---|---|
| Currently not available. | ||
Data powered by ATTOM Data Solutions. Copyright© 2026. Information deemed reliable but not guaranteed.
Schools
Schools nearby 7957 South Park Place
| Schools in attendance boundaries | Grades | Distance | Rating |
|---|---|---|---|
| Loading... | |||
| Schools nearby | Grades | Distance | Rating |
|---|---|---|---|
| Loading... | |||
Data powered by ATTOM Data Solutions. Copyright© 2026. Information deemed reliable but not guaranteed.
The schools shown represent both the assigned schools and schools by distance based on local school and district attendance boundaries. Attendance boundaries change based on various factors and proximity does not guarantee enrollment eligibility. Please consult your real estate agent and/or the school district to confirm the schools this property is zoned to attend. Information is deemed reliable but not guaranteed.
SchoolDigger ® Rating
The SchoolDigger rating system is a 1-5 scale with 5 as the highest rating. SchoolDigger ranks schools based on test scores supplied by each state's Department of Education. They calculate an average standard score by normalizing and averaging each school's test scores across all tests and grades.
Coming soon properties will soon be on the market, but are not yet available for showings.