7991 1st Avenue S Saint Petersburg, FL 33707
For Sale MLS# TB8427175
4 beds 2 baths 2,358 sq ft Single Family
Details for 7991 1st Avenue S
MLS# TB8427175
Description for 7991 1st Avenue S, Saint Petersburg, FL, 33707
This is a must-see home—fully remodeled with impeccable taste and attention to detail throughout! Nestled in the highly desirable waterfront community of Causeway Isles, this stunning residence offers the perfect blend of luxury, style, and coastal living. Step inside to discover a bright, open floor plan, 4 bedrooms, 2 bathrooms, with all-new walls, outlets, luxury vinyl and tile flooring, solid wood cabinets, quartz countertops and backsplash. The chef’s kitchen shines with brand-new appliances, a double oven, dishwasher, lots of cabinets, an island with storage, floating shelves, and a beautiful water view. There is a spacious butler's pantry with sink off the kitchen which can double as a mud room, with a plethora of cabinets for storage, and large separate laundry room for added function. You will love the stylish wine bar complete with wine refrigerator—perfect for entertaining. Every detail has been thoughtfully upgraded: Gorgeous new light fixtures throughout, Modern vanities and sinks in fully renovated bathrooms, a sunroom featuring all-new windows and slider, perfect for game night or relaxing with a good book. Primary Bedroom has double vanity in the en-suite bathroom, walk-in closet with custom built-ins, and a slider direct to the pool and backyard. Outside, enjoy a private pool and spa, (salt system), boater’s dream amenities including a dock, davits, 10,000 lb boat lift, and no fixed bridges for quick Gulf access. New roof in 2021, paver driveway 2023. Installed after storms: new pool pump and pool heater, new HVAC system with warranty, new electric water heater. Property treated for pests inside and out monthly, lawn treated with fertilizer when appropriate, cut and trimmed weekly. Located just 2 miles from Treasure Island beaches and minutes from vibrant downtown St. Petersburg, you’ll love the proximity to dining, music, art, and the scenic Pinellas Trail. This turnkey coastal retreat truly has it all—schedule your private tour today!
Listing Information
Property Type: Residential, Single Family Residence
Status: Active
Bedrooms: 4
Bathrooms: 2
Lot Size: 0.17 Acres
Square Feet: 2,358 sq ft
Year Built: 1958
Garage: Yes
Stories: 1 Story
Construction: Block
Construction Display: New Construction
Subdivision: South Cswy Isle 2nd Add
Foundation: Slab
County: Pinellas
Construction Status: New Construction
School Information
Elementary: Azalea Elementary-Pn
Middle: Azalea Middle-Pn
High: Boca Ciega High-Pn
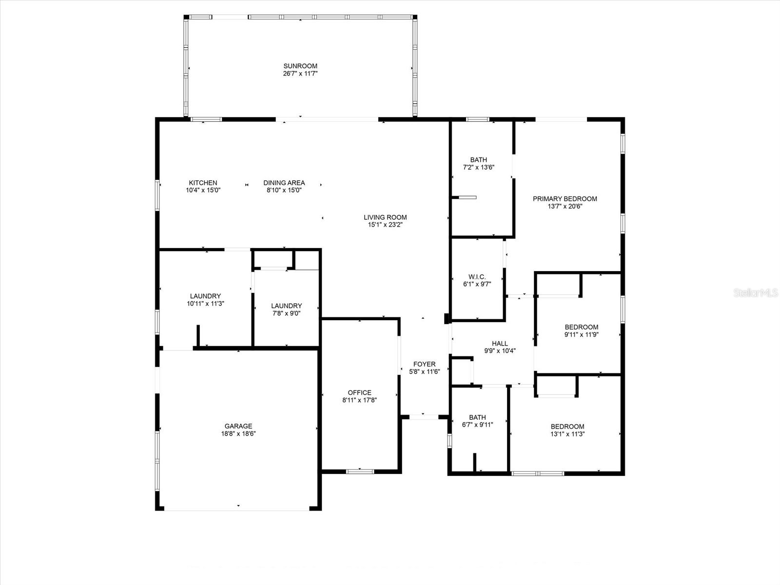
Room Information
Main Floor
Bedroom 3: 8x17
Bedroom 2: 9x11
Bedroom 1: 11x13
Primary Bedroom: 13.7x20
Dining Room: 8x15
Kitchen: 10x15
Florida Room: 11x26
Living Room: 15x23
Bathrooms
Full Baths: 2
Additonal Room Information
Laundry: Washer Hookup, Inside, Laundry Room, Electric Dryer Hookup
Interior Features
Appliances: Wine Refrigerator, Convection Oven, Built-In Oven, Electric Water Heater, Range Hood, Microwave, Refrigerator, Cooktop, Dishwasher, Dryer, Washer
Flooring: Luxury Vinyl,Tile
Additional Interior Features: Ceiling Fan(s), Eat-In Kitchen, Walk-In Closet(s), Main Level Primary, Kitchen/Family Room Combo, Crown Molding, Open Floorplan
Utilities
Water: Public
Sewer: Public Sewer
Other Utilities: Cable Connected,Electricity Connected,Municipal Utilities,Sewer Connected,Water Connected
Cooling: Ceiling Fan(s), Central Air
Heating: Central
Exterior / Lot Features
Attached Garage: Attached Garage
Garage Spaces: 2
Parking Description: Garage, Garage Door Opener, Circular Driveway
Roof: Tile
Pool: In Ground, Salt Water, Heated
Lot View: Canal,Pool,Water
Fencing: fenced
Additional Exterior/Lot Features: Sprinkler/Irrigation, Lighting, Cul-de-Sac, Landscaped, City Lot
Waterfront Details
Water Front Features: Canal Access, Bay Access, Gulf Access
Driving Directions
Central Ave towards Treasure Island, turn south onto 79th Street S, turn right onto 1st Ave S, the house is on the right towards the end, #7991
Financial Considerations
Terms: Cash,Conventional,VA Loan
Tax/Property ID: 24-31-15-84024-006-0140
Tax Amount: 12612
Tax Year: 2024
A broker reciprocity listing courtesy: KELLER WILLIAMS ST PETE REALTY
Based on information provided by Stellar MLS as distributed by the MLS GRID. Information from the Internet Data Exchange is provided exclusively for consumers’ personal, non-commercial use, and such information may not be used for any purpose other than to identify prospective properties consumers may be interested in purchasing. This data is deemed reliable but is not guaranteed to be accurate by Edina Realty, Inc., or by the MLS. Edina Realty, Inc., is not a multiple listing service (MLS), nor does it offer MLS access.
Copyright 2026 Stellar MLS as distributed by the MLS GRID. All Rights Reserved.
Payment Calculator
Interest rate and annual percentage rate (APR) are based on current market conditions, are for informational purposes only, are subject to change without notice and may be subject to pricing add-ons related to property type, loan amount, loan-to-value, credit score and other variables. Estimated closing costs used in the APR calculation are assumed to be paid by the borrower at closing. If the closing costs are financed, the loan, APR and payment amounts will be higher. If the down payment is less than 20%, mortgage insurance may be required and could increase the monthly payment and APR. Contact us for details. Additional loan programs may be available. Accuracy is not guaranteed, and all products may not be available in all borrower's geographical areas and are based on their individual situation. This is not a credit decision or a commitment to lend.
Sales History & Tax Summary for 7991 1st Avenue S
Sales History
| Date | Price | |
|---|---|---|
| Currently not available. | ||
Tax Summary
| Tax Year | Estimated Market Value | Total Tax |
|---|---|---|
| Currently not available. | ||
Data powered by ATTOM Data Solutions. Copyright© 2026. Information deemed reliable but not guaranteed.
Schools
Schools nearby 7991 1st Avenue S
| Schools in attendance boundaries | Grades | Distance | Rating |
|---|---|---|---|
| Loading... | |||
| Schools nearby | Grades | Distance | Rating |
|---|---|---|---|
| Loading... | |||
Data powered by ATTOM Data Solutions. Copyright© 2026. Information deemed reliable but not guaranteed.
The schools shown represent both the assigned schools and schools by distance based on local school and district attendance boundaries. Attendance boundaries change based on various factors and proximity does not guarantee enrollment eligibility. Please consult your real estate agent and/or the school district to confirm the schools this property is zoned to attend. Information is deemed reliable but not guaranteed.
SchoolDigger ® Rating
The SchoolDigger rating system is a 1-5 scale with 5 as the highest rating. SchoolDigger ranks schools based on test scores supplied by each state's Department of Education. They calculate an average standard score by normalizing and averaging each school's test scores across all tests and grades.
Coming soon properties will soon be on the market, but are not yet available for showings.