$359,900
8 Bannbury Lane Palm Coast, FL 32137
For Sale MLS# FC314599
4 beds 2 baths 2,052 sq ft Single Family
Details for 8 Bannbury Lane
MLS# FC314599
Description for 8 Bannbury Lane, Palm Coast, FL, 32137
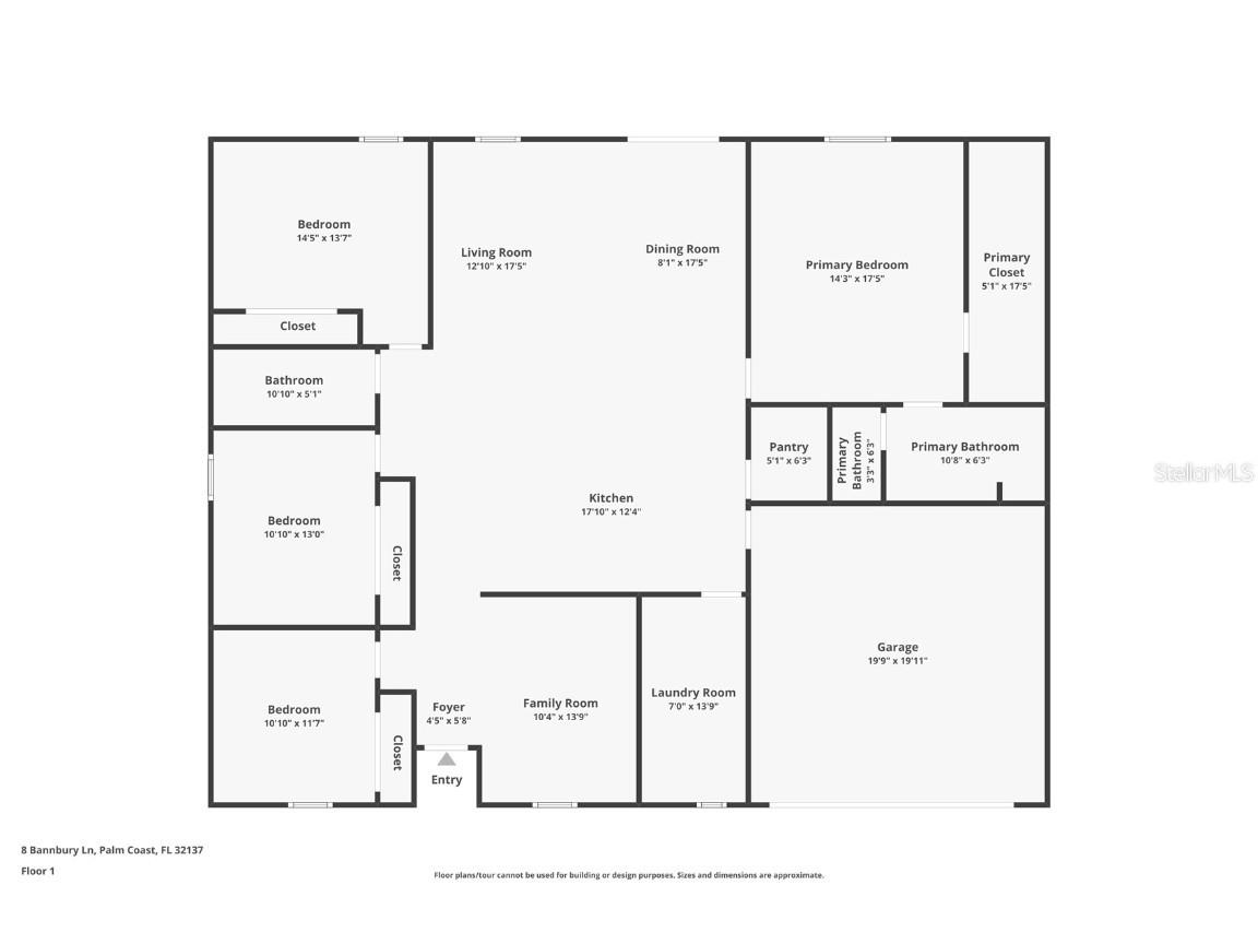
Short Sale. Welcome to 8 Bannbury Ln, a beautifully designed new construction home offering 2,053 square feet of practical comfort and modern style. Located in the desirable B-Section of Palm Coast, this spacious residence delivers the ideal layout for growing families, multi-generational living, or anyone seeking a thoughtful open-concept design. The clean, modern exterior includes a right-side garage and a welcoming entryway. Step inside to a bright, extended foyer that sets the tone for the home's inviting atmosphere. A versatile flex room sits to your right—perfect as a home office, formal dining room, playroom, or creative space. Just down the hall is a private guest bedroom, offering comfort and convenience for visiting family or friends. At the heart of the home, the expansive open-concept kitchen features a walk-in pantry and a large center island with sink, seamlessly flowing into the family room. Whether cooking dinner, entertaining guests, or enjoying everyday moments, this connected living area keeps everyone together. The main floor also includes a second guest bedroom, a full bathroom with double sinks, and a dedicated laundry room. The private primary suite is a true retreat, complete with two walk-in closets, a double vanity, and a spacious walk-in showerideal for unwinding after a long day. Perfect for families of all sizes or those ready to settle into their forever home, this thoughtfully crafted floor plan offers both comfort and functionality. Prime Palm Coast Location: " Only 15 minutes to the beach " 5 minutes to shopping, dining & everyday conveniences " Quick access to major roads, schools & local parks Don't miss this opportunity to own a brand-new home that blends style, comfort, and unbeatable convenience. Schedule your private showing today! This is a short sale.
Listing Information
Property Type: Residential, Single Family Residence
Status: Active
Bedrooms: 4
Bathrooms: 2
Lot Size: 0.29 Acres
Square Feet: 2,052 sq ft
Year Built: 2025
Garage: Yes
Stories: 1 Story
Construction: Concrete,Stucco
Construction Display: New Construction
Subdivision: Bayside Prcl C
Builder: MARONDA HOMES
Foundation: Slab
County: Flagler
Construction Status: New Construction
Room Information
Main Floor
Primary Bedroom: 17x14
Living Room: 17x13
Kitchen: 12x18
Bathrooms
Full Baths: 2
Additonal Room Information
Laundry: Inside, Laundry Room
Interior Features
Appliances: Dishwasher, Disposal, Dryer, Microwave, Range, Refrigerator, Washer
Flooring: Carpet,Ceramic Tile
Doors/Windows: Window Treatments
Additional Interior Features: Split Bedrooms, Walk-In Closet(s), Window Treatments, Open Floorplan, Solid Surface Counters, Wood Cabinets, Built-in Features, Main Level Primary
Utilities
Water: Public
Sewer: Public Sewer
Other Utilities: Cable Connected,Electricity Connected,Sewer Connected,Water Connected
Cooling: Central Air
Heating: Electric, Central
Exterior / Lot Features
Attached Garage: Attached Garage
Garage Spaces: 2
Roof: Shingle
Driving Directions
From I-95, take Exit 289 for Palm Coast Pkwy. Head west on Palm Coast Pkwy NW for about 1.1 miles. Turn right onto Belle Terre Pkwy and continue 1.1 miles. Turn right onto Bayside Dr, then left to stay on Bayside Dr. After 0.2 miles, turn right onto Bannbury Ln — the home will be on your right.
Financial Considerations
Terms: Cash,Conventional,FHA,Trade,VA Loan
Tax/Property ID: 07-11-31-7012-00050-0090
Tax Amount: 540
Tax Year: 2024
A broker reciprocity listing courtesy: FLORIDA HOMES REALTY & MORTGAGE
Based on information provided by Stellar MLS as distributed by the MLS GRID. Information from the Internet Data Exchange is provided exclusively for consumers’ personal, non-commercial use, and such information may not be used for any purpose other than to identify prospective properties consumers may be interested in purchasing. This data is deemed reliable but is not guaranteed to be accurate by Edina Realty, Inc., or by the MLS. Edina Realty, Inc., is not a multiple listing service (MLS), nor does it offer MLS access.
Copyright 2025 Stellar MLS as distributed by the MLS GRID. All Rights Reserved.
Payment Calculator
Interest rate and annual percentage rate (APR) are based on current market conditions, are for informational purposes only, are subject to change without notice and may be subject to pricing add-ons related to property type, loan amount, loan-to-value, credit score and other variables. Estimated closing costs used in the APR calculation are assumed to be paid by the borrower at closing. If the closing costs are financed, the loan, APR and payment amounts will be higher. If the down payment is less than 20%, mortgage insurance may be required and could increase the monthly payment and APR. Contact us for details. Additional loan programs may be available. Accuracy is not guaranteed, and all products may not be available in all borrower's geographical areas and are based on their individual situation. This is not a credit decision or a commitment to lend.
Sales History & Tax Summary for 8 Bannbury Lane
Sales History
| Date | Price | Change |
|---|---|---|
| Currently not available. | ||
Tax Summary
| Tax Year | Estimated Market Value | Total Tax |
|---|---|---|
| Currently not available. | ||
Data powered by ATTOM Data Solutions. Copyright© 2025. Information deemed reliable but not guaranteed.
Schools
Schools nearby 8 Bannbury Lane
| Schools in attendance boundaries | Grades | Distance | Rating |
|---|---|---|---|
| Loading... | |||
| Schools nearby | Grades | Distance | Rating |
|---|---|---|---|
| Loading... | |||
Data powered by ATTOM Data Solutions. Copyright© 2025. Information deemed reliable but not guaranteed.
The schools shown represent both the assigned schools and schools by distance based on local school and district attendance boundaries. Attendance boundaries change based on various factors and proximity does not guarantee enrollment eligibility. Please consult your real estate agent and/or the school district to confirm the schools this property is zoned to attend. Information is deemed reliable but not guaranteed.
SchoolDigger ® Rating
The SchoolDigger rating system is a 1-5 scale with 5 as the highest rating. SchoolDigger ranks schools based on test scores supplied by each state's Department of Education. They calculate an average standard score by normalizing and averaging each school's test scores across all tests and grades.
Coming soon properties will soon be on the market, but are not yet available for showings.