8 Ivey Lane Flagler Beach, FL 32136
Pending MLS# FC311882
4 beds 4 baths 3,824 sq ft Single Family
Details for 8 Ivey Lane
MLS# FC311882
Description for 8 Ivey Lane, Flagler Beach, FL, 32136
Tucked beneath towering oaks on a quiet cul-de-sac in prestigious gated Fairchild Oaks, this rare estate offers over 5,800 square feet including including a massive 1,000 square foot 4-car garage, all situated on one of only two double lots spanning over half an acre. The 3,832 square feet of luxurious living space flows from a chef's kitchen—featuring premium KitchenAid appliances including convection oven, gas range, wine cooler, and wet bar with roll-out drawers—into elegant entertaining areas with soaring tray ceilings, crown molding, surround sound, and a cozy gas fireplace. The master suite sanctuary boasts a spa-like light therapy jacuzzi tub, dual walk-in closets, dual-head shower with body jets, and separate bidet, while the backyard feels like a private nature preserve with mature landscaping and visiting wildlife. Built with quality throughout including concrete block construction, 2020 roof, 2024 main 5-ton AC system with 4-zone efficiency, dual water heaters including a new 2025 unit, hurricane-rated Pella windows with integrated blinds, smart 5-zone well-fed irrigation, gas patio hookup, pool wiring, and a concrete block safe room laundry with triple locked steel door. At $699,900, this exceptional home delivers incredible value at just $182.65 per square foot, offering coastal convenience with complete privacy just minutes from Flagler Beach.
Listing Information
Property Type: Residential, Single Family Residence
Status: Pending
Bedrooms: 4
Bathrooms: 4
Lot Size: 0.55 Acres
Square Feet: 3,824 sq ft
Year Built: 2004
Garage: Yes
Stories: 2 Story
Construction: Brick,Block,Stucco
Subdivision: Fairchild Oaks
Foundation: Block,Brick/Mortar,Slab,Stem Wall
County: Flagler
School Information
Elementary: Old Kings Elementary
Middle: Buddy Taylor Middle
High: Flagler-Palm Coast High
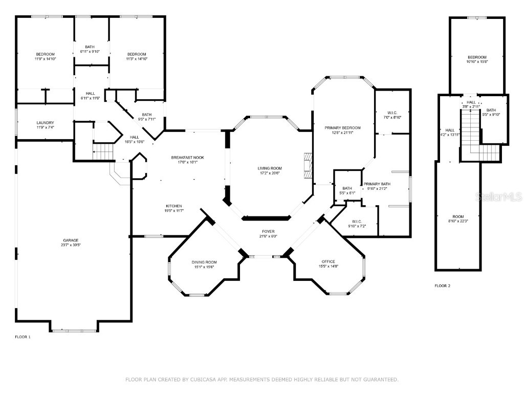
Room Information
Main Floor
Bathroom 4:
Kitchen: 21.4x20.4
Living Room: 17.5x21.5
Primary Bedroom: 13.2x22.11
Primary Bathroom:
Office: 15x16
Laundry: 12x8
Bedroom 2: 12.1x15.11
Bedroom 1: 12.3x15.11
Porch: 31.9x8.4
Upper Floor
Bonus Room: 38.5x9.1
Bedroom 3:
Bathrooms
Full Baths: 4
Additonal Room Information
Laundry: Electric Dryer Hookup, Gas Dryer Hookup, Inside, Washer Hookup
Interior Features
Appliances: Water Purifier, Exhaust Fan, Built-In Oven, Electric Water Heater, Washer, Range Hood, Cooktop, Dishwasher, Disposal, Dryer, Freezer, Microwave, Range, Refrigerator, Wine Refrigerator, Ice Maker
Flooring: Carpet,Ceramic Tile
Doors/Windows: Display Window(s), Window Treatments, Drapes, Storm Window(s), Blinds
Fireplaces: Gas, Living Room
Additional Interior Features: Walk-In Closet(s), Window Treatments, Split Bedrooms, Attic, Built-in Features, Separate/Formal Dining Room, High Ceilings, Coffered Ceiling(s), Main Level Primary, Crown Molding, Ceiling Fan(s), Eat-In Kitchen, Wet Bar, Vaulted Ceiling(s), Separate/Formal Living Room, Solid Surface Counters, Stone Counters, Open Floorplan, Wood Cabinets, Chair Rail
Utilities
Water: Public, Well
Sewer: Public Sewer
Other Utilities: Cable Connected,Electricity Connected,Propane,Municipal Utilities,Phone Available,Sewer Connected,Underground Utilities
Cooling: Zoned, Central Air, Ceiling Fan(s), Attic Fan
Heating: Electric, Central
Exterior / Lot Features
Attached Garage: Attached Garage
Garage Spaces: 4
Parking Description: driveway, Garage, Garage Door Opener, Garage Faces Side, Oversized
Roof: Shingle
Lot View: Trees/Woods
Additional Exterior/Lot Features: Rain Gutters, Sprinkler/Irrigation, Front Porch, Covered, Patio, Porch, Rear Porch, Landscaped, Cul-de-Sac, Dead End, Oversized Lot
Community Features
Community Features: Gated, Street Lights, Sidewalks, Golf Carts OK
Security Features: Fire Alarm, Smoke Detector(s), Gated Community, Gated with Guard
Association Amenities: Gated
HOA Dues Include: Maintenance Grounds, Road Maintenance
Homeowners Association: Yes
HOA Dues: $124 / Quarterly
Driving Directions
Old King Road to FairChild Oaks (Fairchild Oaks Blvd). Left on Ivey Lane. Home is on the left.
Financial Considerations
Terms: Assumable,Cash,Conventional,FHA,VA Loan
Tax/Property ID: 37-12-31-1927-00000-1080
Tax Amount: 429
Tax Year: 2024
A broker reciprocity listing courtesy: REALTY EXCHANGE, LLC
Based on information provided by Stellar MLS as distributed by the MLS GRID. Information from the Internet Data Exchange is provided exclusively for consumers’ personal, non-commercial use, and such information may not be used for any purpose other than to identify prospective properties consumers may be interested in purchasing. This data is deemed reliable but is not guaranteed to be accurate by Edina Realty, Inc., or by the MLS. Edina Realty, Inc., is not a multiple listing service (MLS), nor does it offer MLS access.
Copyright 2026 Stellar MLS as distributed by the MLS GRID. All Rights Reserved.
Sales History & Tax Summary for 8 Ivey Lane
Sales History
| Date | Price | |
|---|---|---|
| Currently not available. | ||
Tax Summary
| Tax Year | Estimated Market Value | Total Tax |
|---|---|---|
| Currently not available. | ||
Data powered by ATTOM Data Solutions. Copyright© 2026. Information deemed reliable but not guaranteed.
Schools
Schools nearby 8 Ivey Lane
| Schools in attendance boundaries | Grades | Distance | Rating |
|---|---|---|---|
| Loading... | |||
| Schools nearby | Grades | Distance | Rating |
|---|---|---|---|
| Loading... | |||
Data powered by ATTOM Data Solutions. Copyright© 2026. Information deemed reliable but not guaranteed.
The schools shown represent both the assigned schools and schools by distance based on local school and district attendance boundaries. Attendance boundaries change based on various factors and proximity does not guarantee enrollment eligibility. Please consult your real estate agent and/or the school district to confirm the schools this property is zoned to attend. Information is deemed reliable but not guaranteed.
SchoolDigger ® Rating
The SchoolDigger rating system is a 1-5 scale with 5 as the highest rating. SchoolDigger ranks schools based on test scores supplied by each state's Department of Education. They calculate an average standard score by normalizing and averaging each school's test scores across all tests and grades.
Coming soon properties will soon be on the market, but are not yet available for showings.