$117,500
8 Silver Doctor Lane Lake Wales, FL 33898 - SADDLEBAG LAKE
For Sale MLS# K4903328
2 beds 2 baths 708 sq ft Single Family
Details for 8 Silver Doctor Lane
MLS# K4903328
Description for 8 Silver Doctor Lane, Lake Wales, FL, 33898 - SADDLEBAG LAKE
This two bedroom, fully furnished and turnkey home is located in the 55+ community of Saddlebag Lake Resort, where you own the land, there's no lot rent. The home has been completely renovated in the last four years, and features beautiful laminate flooring throughout, making it easy to clean and pet friendly. The main living area is very spacious, and includes a living room with electric fireplace, a kitchen with lots of counter space and adjacent full-size dining room. plus the half bath. Upstairs you'll find two cozy bedrooms for you and your guests, and a full bathroom with shower stall. There's a patio at the back for outdoor entertaining, and a shed that's large enough for all your tools, which also houses the washer and dryer. The low HOA includes your water, sewer and trash pick up as well as use of all the amenities. Get to know your neighbors at the clubhouse during planned activities, take a dip in the heated community pool, relax in the hot tub, or practice your swing at the driving range. Play a game of tennis, pickle ball, shuffleboard or horse shoes. Use the boat ramp to launch a boat and go fishing, or take your dogs to the dog park to run around. Unwind in the saunas, or enjoy one of the many entertainment events at the beach house. For an active adult lifestyle, there's no better place to be than Saddlebag Lake Resort, so call now for your private tour!
Listing Information
Property Type: Residential, Manufactured Home
Status: Active
Bedrooms: 2
Bathrooms: 2
Lot Size: 0.09 Acres
Square Feet: 708 sq ft
Year Built: 1978
Stories: 2 Story
Construction: Vinyl Siding
Subdivision: Saddlebag
Foundation: Crawlspace,Slab
County: Polk
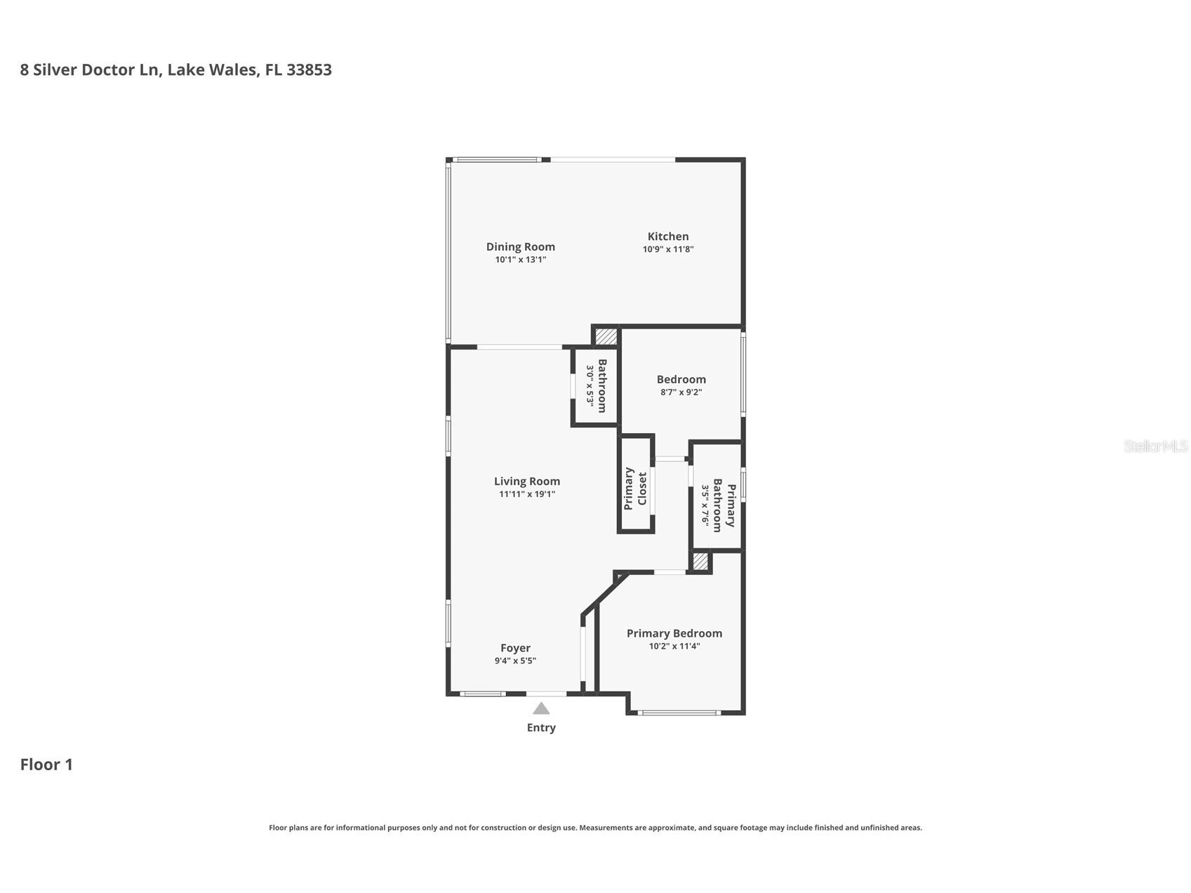
Room Information
Main Floor
Kitchen: 11.66x10.75
Dining Room: 13x10
Living Room: 19x12
Upper Floor
Bedroom 2: 9x8.5
Primary Bedroom: 11.33x11
Bathrooms
Full Baths: 1
1/2 Baths: 1
Additonal Room Information
Laundry: Other
Interior Features
Appliances: Dryer, Range, Refrigerator, Microwave, Washer
Flooring: Laminate
Basement: Crawl Space
Fireplaces: Electric, Living Room
Additional Interior Features: Ceiling Fan(s)
Utilities
Water: Private
Sewer: Private Sewer
Other Utilities: Electricity Connected,Sewer Connected,Water Connected
Cooling: Ceiling Fan(s), Wall/Window Unit(s)
Heating: Window Unit, Wall Furnace
Exterior / Lot Features
Roof: Metal
Pool: Community, Association
Additional Exterior/Lot Features: Rain Gutters
Waterfront Details
Standard Water Body: SADDLEBAG LAKE
Water Front Features: Lake Privileges
Community Features
Community Features: Pool, Boat Facilities, Dog Park, Gated, Marina, Fishing, Golf Carts OK
Security Features: Gated Community
Association Amenities: Sauna, Pool, Tennis Court(s), Recreation Facilities, Clubhouse, Fitness Center, Security, Shuffleboard Court, Pickleball, Spa/Hot Tub
HOA Dues Include: Water, Sewer, Trash
Homeowners Association: Yes
HOA Dues: $734 / Quarterly
Driving Directions
From Lake Wales, drive east on Hwy. 60 to Saddlebag Lake Rd and make a left. Follow to the parking lot, get out of your vehicle and ring the bell at the Call Box. Let them know who you are and where you are going, they will let you through the gate remotely. Once inside, follow Saddlebag Trail to Silverisdes Street and make a left, then turn right on Silver Doctor. The home will be on the left.
Financial Considerations
Terms: Cash
Tax/Property ID: 28-30-01-939030-059190
Tax Amount: 1066
Tax Year: 2025
A broker reciprocity listing courtesy: BENDER REALTY, LLC
Based on information provided by Stellar MLS as distributed by the MLS GRID. Information from the Internet Data Exchange is provided exclusively for consumers’ personal, non-commercial use, and such information may not be used for any purpose other than to identify prospective properties consumers may be interested in purchasing. This data is deemed reliable but is not guaranteed to be accurate by Edina Realty, Inc., or by the MLS. Edina Realty, Inc., is not a multiple listing service (MLS), nor does it offer MLS access.
Copyright 2026 Stellar MLS as distributed by the MLS GRID. All Rights Reserved.
Payment Calculator
Interest rate and annual percentage rate (APR) are based on current market conditions, are for informational purposes only, are subject to change without notice and may be subject to pricing add-ons related to property type, loan amount, loan-to-value, credit score and other variables. Estimated closing costs used in the APR calculation are assumed to be paid by the borrower at closing. If the closing costs are financed, the loan, APR and payment amounts will be higher. If the down payment is less than 20%, mortgage insurance may be required and could increase the monthly payment and APR. Contact us for details. Additional loan programs may be available. Accuracy is not guaranteed, and all products may not be available in all borrower's geographical areas and are based on their individual situation. This is not a credit decision or a commitment to lend.
Sales History & Tax Summary for 8 Silver Doctor Lane
Sales History
| Date | Price | |
|---|---|---|
| Currently not available. | ||
Tax Summary
| Tax Year | Estimated Market Value | Total Tax |
|---|---|---|
| Currently not available. | ||
Data powered by ATTOM Data Solutions. Copyright© 2026. Information deemed reliable but not guaranteed.
Schools
Schools nearby 8 Silver Doctor Lane
| Schools in attendance boundaries | Grades | Distance | Rating |
|---|---|---|---|
| Loading... | |||
| Schools nearby | Grades | Distance | Rating |
|---|---|---|---|
| Loading... | |||
Data powered by ATTOM Data Solutions. Copyright© 2026. Information deemed reliable but not guaranteed.
The schools shown represent both the assigned schools and schools by distance based on local school and district attendance boundaries. Attendance boundaries change based on various factors and proximity does not guarantee enrollment eligibility. Please consult your real estate agent and/or the school district to confirm the schools this property is zoned to attend. Information is deemed reliable but not guaranteed.
SchoolDigger ® Rating
The SchoolDigger rating system is a 1-5 scale with 5 as the highest rating. SchoolDigger ranks schools based on test scores supplied by each state's Department of Education. They calculate an average standard score by normalizing and averaging each school's test scores across all tests and grades.
Coming soon properties will soon be on the market, but are not yet available for showings.