$250,000
Off-Market Date: 02/26/2026801 14th Avenue SW Willmar, MN 56201
Pending MLS# 7003149
4 beds 2 baths 1,872 sq ft Townhouse/Twinhome
Details for 801 14th Avenue SW
MLS# 7003149
Description for 801 14th Avenue SW, Willmar, MN, 56201
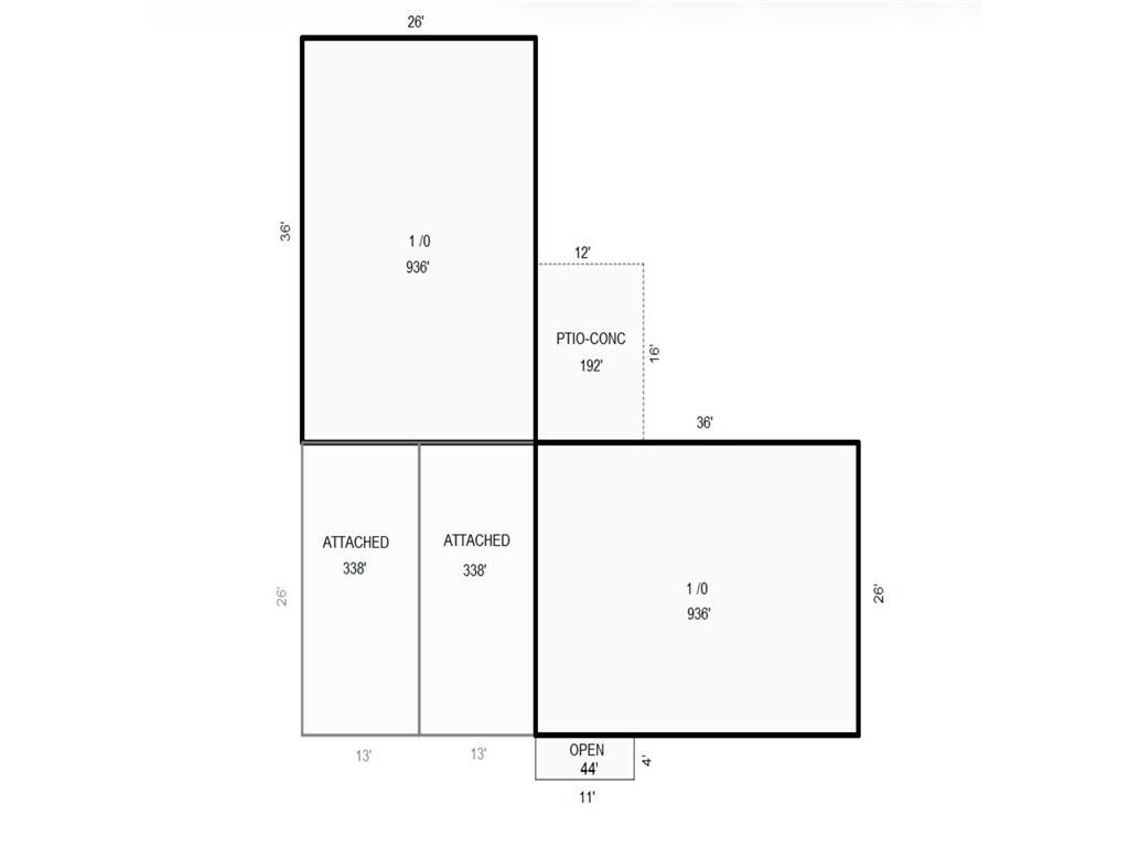
Rare Side-by-Side Duplex Opportunity!Opportunities like this don’t come along often. This well-built side-by-side duplex offers two units, each featuring 2 bedrooms, 1 full bath, and one-level living with an attached single insulated garage per side.The property has seen important mechanical and efficiency updates, including weatherization completed in 2021 (air-sealing, added insulation, weather stripping, and more) and a new roof in 2023. Each unit is equipped with forced-air central heat, and Unit 801 includes a newer gas stove (2024). Both units have separate laundry rooms and come equipped with appliances as seen.While the home hasn’t had extensive cosmetic updates, it offers solid construction and great bones, making it an excellent opportunity to add value. With some fresh paint and updated flooring, this property could truly shine. Or move in as-is and enjoy low payments with rental income from the other unit.Additional highlights include a concrete driveway, no association fees, and strong investment income potential—perfect for an owner-occupant or investor alike.Don’t miss the virtual tours or this versatile and affordable duplex opportunity! Some of the photos are virtually staged. Property comes with a pre list inspection.
Listing Information
Property Type: Residential, Twin Home, Patio Home
Status: Pending
Bedrooms: 4
Bathrooms: 2
Lot Size: 0.20 Acres
Square Feet: 1,872 sq ft
Year Built: 1966
Foundation: 936 sq ft
Garage: Yes
Stories: 1 Story
Property Attached: Yes
Subdivision: Sub-Div N1/2 Of Ne1/4
County: Kandiyohi
Days On Market: 58
Construction Status: Previously Owned
School Information
District: 347 - Willmar
Room Information
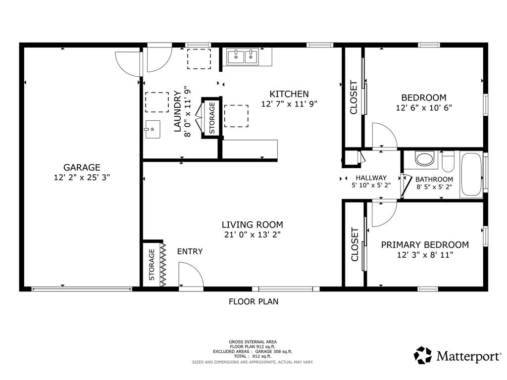
Main Floor
Bedroom 1: 9 x 12
Bedroom 2: 13 x 11
Dining Room: 13 x 11
Kitchen: 8 x 12
Laundry: 8 x 13
Living Room: 13 x 14
Bathrooms
Full Baths: 2
Additonal Room Information
Dining: Kitchen/Dining Room
Laundry: Main Level
Bath Description: Main Floor Full Bath
Interior Features
Square Footage above: 1,872 sq ft
Appliances: Dishwasher, Dryer, Microwave, Range, Refrigerator
Accessibility: Partially Wheelchair, No Stairs Internal
Additional Interior Features: Main Floor Laundry, All Living Facilities on One Level, Main Floor Bedroom
Utilities
Water: City Water/Connected
Sewer: City Sewer/Connected
Cooling: Central
Heating: Forced Air, Natural Gas
Exterior / Lot Features
Attached Garage: Attached Garage
Garage Spaces: 2
Parking Description: Insulated Garage, Attached Garage, Garage Dimensions - 26 x 13, 26 x 13, Garage Sq Ft - 676.0
Exterior: Vinyl
Roof: Age 8 Years or Less, Asphalt Shingles
Lot Dimensions: 86 x 103
Zoning: Residential-Single Family
Additional Exterior/Lot Features: Patio, Road Frontage - Paved Streets, City
Out Buildings: Shed - Storage
Driving Directions
Frrom Willmar Ave. turn left on 8th St SW to listing on corner
Financial Considerations
Tax/Property ID: 957500630
Tax Amount: 2382
Tax Year: 2025
HomeStead Description: Homesteaded
A broker reciprocity listing courtesy: eXp Realty
The data relating to real estate for sale on this web site comes in part from the Broker Reciprocity℠ Program of the Regional Multiple Listing Service of Minnesota, Inc. Real estate listings held by brokerage firms other than Edina Realty, Inc. are marked with the Broker Reciprocity℠ logo or the Broker Reciprocity℠ thumbnail and detailed information about them includes the name of the listing brokers. Edina Realty, Inc. is not a Multiple Listing Service (MLS), nor does it offer MLS access. This website is a service of Edina Realty, Inc., a broker Participant of the Regional Multiple Listing Service of Minnesota, Inc. IDX information is provided exclusively for consumers personal, non-commercial use and may not be used for any purpose other than to identify prospective properties consumers may be interested in purchasing. Open House information is subject to change without notice. Information deemed reliable but not guaranteed.
Copyright 2026 Regional Multiple Listing Service of Minnesota, Inc. All Rights Reserved.
Sales History & Tax Summary for 801 14th Avenue SW
Sales History
| Date | Price | |
|---|---|---|
| Currently not available. | ||
Tax Summary
| Tax Year | Estimated Market Value | Total Tax |
|---|---|---|
| Currently not available. | ||
Data powered by ATTOM Data Solutions. Copyright© 2026. Information deemed reliable but not guaranteed.
Schools
Schools nearby 801 14th Avenue SW
| Schools in attendance boundaries | Grades | Distance | Rating |
|---|---|---|---|
| Loading... | |||
| Schools nearby | Grades | Distance | Rating |
|---|---|---|---|
| Loading... | |||
Data powered by ATTOM Data Solutions. Copyright© 2026. Information deemed reliable but not guaranteed.
The schools shown represent both the assigned schools and schools by distance based on local school and district attendance boundaries. Attendance boundaries change based on various factors and proximity does not guarantee enrollment eligibility. Please consult your real estate agent and/or the school district to confirm the schools this property is zoned to attend. Information is deemed reliable but not guaranteed.
SchoolDigger ® Rating
The SchoolDigger rating system is a 1-5 scale with 5 as the highest rating. SchoolDigger ranks schools based on test scores supplied by each state's Department of Education. They calculate an average standard score by normalizing and averaging each school's test scores across all tests and grades.
Coming soon properties will soon be on the market, but are not yet available for showings.