$295,900
8017 N Maltese Drive Citrus Springs, FL 34433
For Sale MLS# O6363736
4 beds 2 baths 1,845 sq ft Single Family
Details for 8017 N Maltese Drive
MLS# O6363736
Description for 8017 N Maltese Drive, Citrus Springs, FL, 34433
One or more photo(s) has been virtually staged. Brand New Construction 4 BD 2 BA 1,845 SQFT HUGE 0.23-ACRE LOT Look no further , this is one of the LARGEST and most DESIRABLE new-construction homes available in Citrus Springs! Featuring 1,845 SQFT of modern living space on a HUGE CLEAN 0.23-ACRE LOT, this brand-new 4 bedroom, 2 bathroom home delivers comfort, style, and unbeatable value. Step inside and enjoy a bright, open floor plan with ALL-NEW APPLIANCES, NEW AC, NEW ROOF, NEW WATER HEATER. Everything is NEW and the full BUILDER WARRANTY TRANSFERS TO THE NEW OWNER, giving you peace of mind for years to come. You’ll love the inviting FRONT PORCH, perfect for morning coffee, plus the COVERED BACK LANAI ideal for relaxing, entertaining, and BBQ ON A HUGE BACKYARD. The home features a spacious kitchen with upgraded finishes, large bedrooms, and a generous PRIMARY SUITE with a LUXURY BATHROOM and DUAL WALK-IN CLOSETS. LOCATION MATTERS : and this one is a PREMIUM LOCATION: Situated directly behind Citrus Springs Elementary School, just 2.5 MILES from the Citrus County Library, close to local CHURCHES, and minutes from the CITRUS SPRINGS GOLF & COUNTRY CLUB. You’re also near parks, shopping, and everything that makes Citrus County one of the fastest-growing areas for affordable new homes. KEY FEATURES: • BRAND NEW CONSTRUCTION – 2025 • 1,845 SQ FT LIVING AREA ONE OF THE LARGEST MODELS IN THIS PRICE POINT • 4 BEDROOMS 2 BATHROOMS • 0.23-ACRE LOT – HUGE CLEAN BACKYARD • FRONT PORCH + COVERED BACK PORCH (LANAI) • ALL NEW APPLIANCES & SYSTEMS • BUILDER WARRANTY TRANSFERS TO BUYER • PREMIUM LOCATION NEAR SCHOOLS, LIBRARY, GOLF COURSE & MORE Whether you’re a FIRST-TIME BUYER or looking for a MOVE-IN-READY INVESTMENT PROPERTY, this home checks all the boxes. DON’T MISS THIS OPPORTUNITY
Listing Information
Property Type: Residential, Single Family Residence
Status: Active
Bedrooms: 4
Bathrooms: 2
Lot Size: 0.23 Acres
Square Feet: 1,845 sq ft
Year Built: 2025
Garage: Yes
Stories: 1 Story
Construction: Block
Construction Display: New Construction
Subdivision: Citrus Springs Unit 11
Foundation: Block
County: Citrus
Construction Status: New Construction
School Information
Elementary: Citrus Springs Elementar
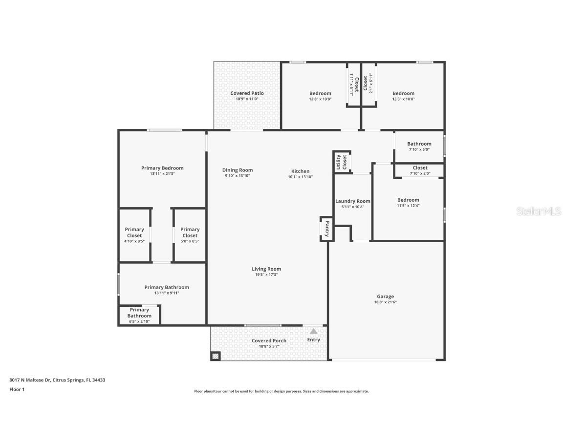
Room Information
Main Floor
Bathroom 2: 5x8
Bedroom 4: 12x12
Bedroom 3: 11x13
Bedroom 2: 11x13
Primary Bedroom: 21x13
Primary Bathroom: 9x13
Living Room:
Kitchen: 13x10
Dining Room: 13x10
Laundry: 11x6
Porch: 6x19
Porch: 11x11
Living Room: 17x20
Bathrooms
Full Baths: 2
Additonal Room Information
Laundry: Inside
Interior Features
Appliances: Dishwasher, Disposal, Microwave, Range, Refrigerator
Flooring: Laminate,Tile
Additional Interior Features: Walk-In Closet(s), Kitchen/Family Room Combo
Utilities
Water: Public
Sewer: Septic Tank
Other Utilities: Cable Available,Electricity Connected,Water Connected
Cooling: Central Air
Heating: Central
Exterior / Lot Features
Attached Garage: Attached Garage
Garage Spaces: 2
Roof: Shingle
Additional Exterior/Lot Features: Other
Driving Directions
head west on FL-44 W for approximately 50 miles, then turn right onto US-41 N/N Williams St, continue for about 5 miles, turn left onto W Dunnellon Rd, and finally turn right onto N Maltese Dr
Financial Considerations
Terms: Cash,Conventional,FHA,VA Loan
Tax/Property ID: 18E17S100110 06080 0050
Tax Amount: 211.48
Tax Year: 2025
A broker reciprocity listing courtesy: WRA BUSINESS & REAL ESTATE
Based on information provided by Stellar MLS as distributed by the MLS GRID. Information from the Internet Data Exchange is provided exclusively for consumers’ personal, non-commercial use, and such information may not be used for any purpose other than to identify prospective properties consumers may be interested in purchasing. This data is deemed reliable but is not guaranteed to be accurate by Edina Realty, Inc., or by the MLS. Edina Realty, Inc., is not a multiple listing service (MLS), nor does it offer MLS access.
Copyright 2025 Stellar MLS as distributed by the MLS GRID. All Rights Reserved.
Payment Calculator
Interest rate and annual percentage rate (APR) are based on current market conditions, are for informational purposes only, are subject to change without notice and may be subject to pricing add-ons related to property type, loan amount, loan-to-value, credit score and other variables. Estimated closing costs used in the APR calculation are assumed to be paid by the borrower at closing. If the closing costs are financed, the loan, APR and payment amounts will be higher. If the down payment is less than 20%, mortgage insurance may be required and could increase the monthly payment and APR. Contact us for details. Additional loan programs may be available. Accuracy is not guaranteed, and all products may not be available in all borrower's geographical areas and are based on their individual situation. This is not a credit decision or a commitment to lend.
Sales History & Tax Summary for 8017 N Maltese Drive
Sales History
| Date | Price | Change |
|---|---|---|
| Currently not available. | ||
Tax Summary
| Tax Year | Estimated Market Value | Total Tax |
|---|---|---|
| Currently not available. | ||
Data powered by ATTOM Data Solutions. Copyright© 2025. Information deemed reliable but not guaranteed.
Schools
Schools nearby 8017 N Maltese Drive
| Schools in attendance boundaries | Grades | Distance | Rating |
|---|---|---|---|
| Loading... | |||
| Schools nearby | Grades | Distance | Rating |
|---|---|---|---|
| Loading... | |||
Data powered by ATTOM Data Solutions. Copyright© 2025. Information deemed reliable but not guaranteed.
The schools shown represent both the assigned schools and schools by distance based on local school and district attendance boundaries. Attendance boundaries change based on various factors and proximity does not guarantee enrollment eligibility. Please consult your real estate agent and/or the school district to confirm the schools this property is zoned to attend. Information is deemed reliable but not guaranteed.
SchoolDigger ® Rating
The SchoolDigger rating system is a 1-5 scale with 5 as the highest rating. SchoolDigger ranks schools based on test scores supplied by each state's Department of Education. They calculate an average standard score by normalizing and averaging each school's test scores across all tests and grades.
Coming soon properties will soon be on the market, but are not yet available for showings.