805 Darby Lane Brooksville, FL 34601
For Sale MLS# TB8469732
2 beds 2 baths 992 sq ft Single Family
Details for 805 Darby Lane
MLS# TB8469732
Description for 805 Darby Lane, Brooksville, FL, 34601
Welcome home to this charming 2-bedroom, 2-bathroom residence located in the desirable Candlelight Village community of Brooksville, Florida. This well-maintained home offers an open-concept layout with a comfortable living room and dining room combination—perfect for everyday living and entertaining. Luxury vinyl flooring flows throughout most of the home, complemented by tile in the kitchen and bathrooms, with carpet reserved for added comfort in the primary bedroom. The updated kitchen features stainless steel appliances and a stylish mosaic backsplash with granite countertops, creating a functional and attractive space for cooking. Abundant natural light fills the home through updated windows and a sliding glass door that opens to the backyard. Major upgrades include new windows in 2021, a new HVAC system in 2024, and a roof replacement in 2017, offering peace of mind for years to come. Both bathrooms have been tastefully updated, and the large, fully fenced backyard provides plenty of space for outdoor enjoyment, pets, or gardening, along with a convenient storage shed. Candlelight Village has no HOA, adding flexibility and affordability. Ideally located with easy access to US-41 and a short drive to I-75, this home is close to Brooksville Square, Publix, restaurants, and shopping. Walmart Supercenter and Lowe’s Home Improvement are just minutes away, and golf enthusiasts will appreciate the nearby Hernando Oaks Golf Club and Southern Hills Plantation Club. Hernando Beach is only 20 miles away, making this a wonderful place to call home or invest.
Listing Information
Property Type: Residential, Villa
Status: Active
Bedrooms: 2
Bathrooms: 2
Lot Size: 0.08 Acres
Square Feet: 992 sq ft
Year Built: 1985
Stories: 1 Story
Construction: Block,Concrete,Stucco
Subdivision: Candlelight Village
Foundation: Slab
County: Hernando
School Information
Elementary: Moton Elementary School
Middle: D.S. Parrot Middle
High: Hernando High
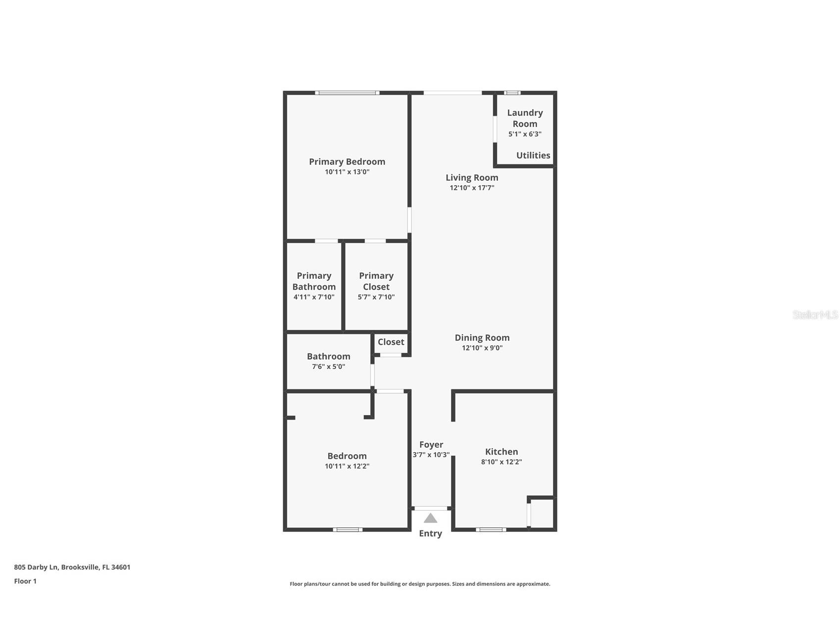
Room Information
Main Floor
Bathroom 2: 5x7.6
Bedroom 2: 12.2x10.11
Primary Bathroom: 7.1x4.11
Primary Bedroom: 13x10.11
Laundry: 6.3x5.1
Living Room: 17.7x12.1
Dining Room: 9x12.1
Kitchen: 12.2x8.1
Foyer: 10.3x3.7
Bathrooms
Full Baths: 2
Additonal Room Information
Laundry: Washer Hookup, Laundry Closet, Electric Dryer Hookup
Interior Features
Appliances: Dishwasher, Microwave, Range, Refrigerator
Flooring: Carpet,Luxury Vinyl,Tile
Doors/Windows: Blinds
Additional Interior Features: Ceiling Fan(s), Split Bedrooms, Walk-In Closet(s), Living/Dining Room, Built-in Features, Open Floorplan, Solid Surface Counters, Stone Counters, Wood Cabinets
Utilities
Water: Public
Sewer: Public Sewer
Other Utilities: Cable Available,Electricity Connected,Phone Available,Sewer Connected,Water Connected
Cooling: Ceiling Fan(s), Central Air
Heating: Central
Exterior / Lot Features
Parking Description: Guest
Roof: Shingle
Fencing: Wood
Additional Exterior/Lot Features: Lighting, Patio
Community Features
Community Features: Sidewalks
Driving Directions
From US-19 N/Commercial Way turn right on oFl-50 E/ Cortez Blvd. and continue to FL-50A E/W Jefferson St. Turn right onto Darby Ln and the property will be on the left.
Financial Considerations
Terms: Cash,Conventional,FHA,VA Loan
Tax/Property ID: R28-222-19-1568-0000-0900
Tax Amount: 2677
Tax Year: 2025
A broker reciprocity listing courtesy: KELLER WILLIAMS REALTY PORTFOLIO COLLECTION
Based on information provided by Stellar MLS as distributed by the MLS GRID. Information from the Internet Data Exchange is provided exclusively for consumers’ personal, non-commercial use, and such information may not be used for any purpose other than to identify prospective properties consumers may be interested in purchasing. This data is deemed reliable but is not guaranteed to be accurate by Edina Realty, Inc., or by the MLS. Edina Realty, Inc., is not a multiple listing service (MLS), nor does it offer MLS access.
Copyright 2026 Stellar MLS as distributed by the MLS GRID. All Rights Reserved.
Payment Calculator
Interest rate and annual percentage rate (APR) are based on current market conditions, are for informational purposes only, are subject to change without notice and may be subject to pricing add-ons related to property type, loan amount, loan-to-value, credit score and other variables. Estimated closing costs used in the APR calculation are assumed to be paid by the borrower at closing. If the closing costs are financed, the loan, APR and payment amounts will be higher. If the down payment is less than 20%, mortgage insurance may be required and could increase the monthly payment and APR. Contact us for details. Additional loan programs may be available. Accuracy is not guaranteed, and all products may not be available in all borrower's geographical areas and are based on their individual situation. This is not a credit decision or a commitment to lend.
Sales History & Tax Summary for 805 Darby Lane
Sales History
| Date | Price | |
|---|---|---|
| Currently not available. | ||
Tax Summary
| Tax Year | Estimated Market Value | Total Tax |
|---|---|---|
| Currently not available. | ||
Data powered by ATTOM Data Solutions. Copyright© 2026. Information deemed reliable but not guaranteed.
Schools
Schools nearby 805 Darby Lane
| Schools in attendance boundaries | Grades | Distance | Rating |
|---|---|---|---|
| Loading... | |||
| Schools nearby | Grades | Distance | Rating |
|---|---|---|---|
| Loading... | |||
Data powered by ATTOM Data Solutions. Copyright© 2026. Information deemed reliable but not guaranteed.
The schools shown represent both the assigned schools and schools by distance based on local school and district attendance boundaries. Attendance boundaries change based on various factors and proximity does not guarantee enrollment eligibility. Please consult your real estate agent and/or the school district to confirm the schools this property is zoned to attend. Information is deemed reliable but not guaranteed.
SchoolDigger ® Rating
The SchoolDigger rating system is a 1-5 scale with 5 as the highest rating. SchoolDigger ranks schools based on test scores supplied by each state's Department of Education. They calculate an average standard score by normalizing and averaging each school's test scores across all tests and grades.
Coming soon properties will soon be on the market, but are not yet available for showings.