8089 SE 174th Belhaven Loop The Villages, FL 32162
For Sale MLS# O6370078
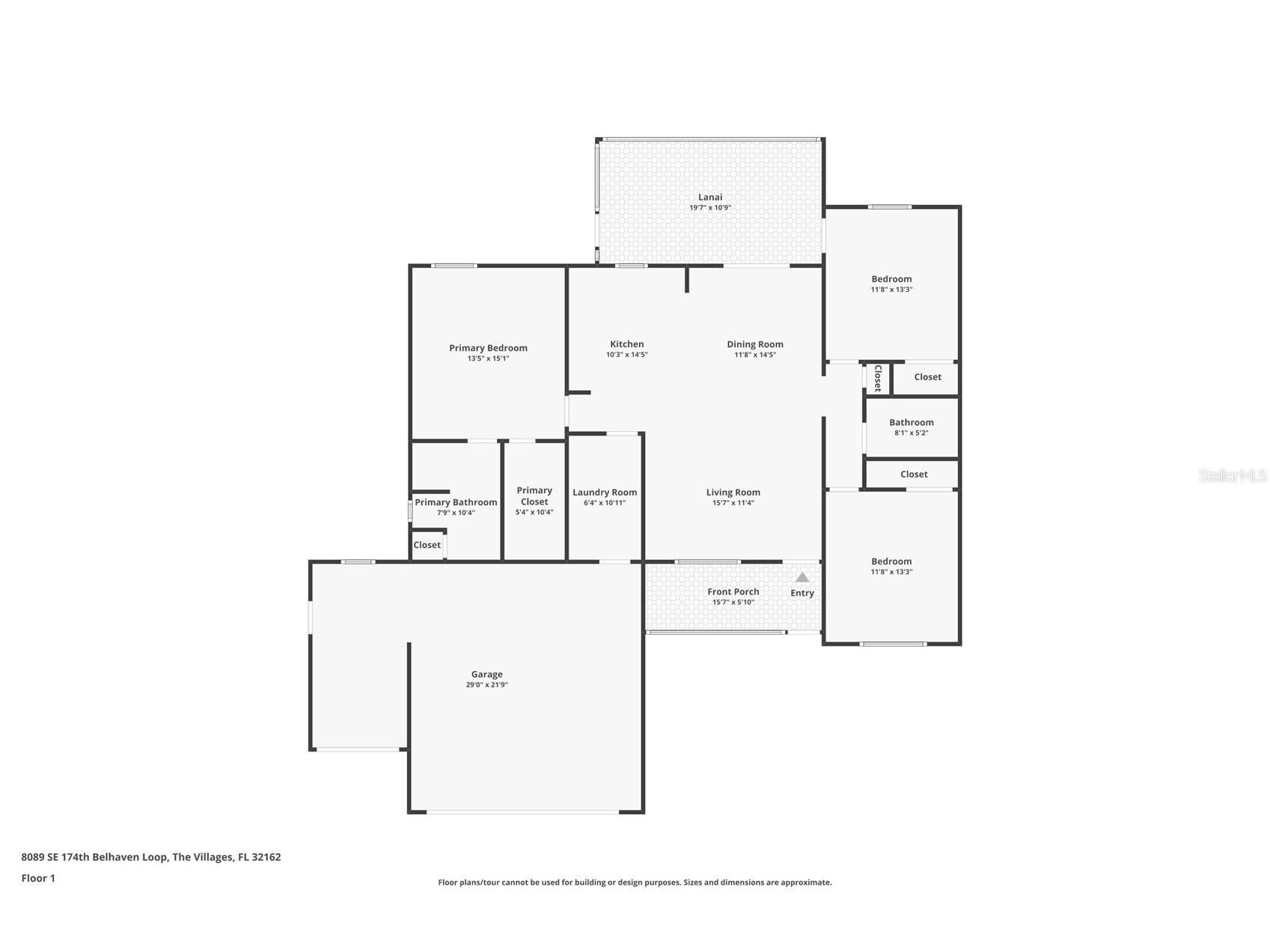
3 beds 2 baths 1,392 sq ft Single Family
Details for 8089 SE 174th Belhaven Loop
MLS# O6370078
Description for 8089 SE 174th Belhaven Loop, The Villages, FL, 32162
Welcome HOME to The Villages — where comfort, privacy, and peaceful living come together. Opportunities like this are rare: a one-owner residence on an oversized .27-acre lot offering exceptional space and thoughtful design. What truly sets this home apart is the gorgeous, serene cattle farm directly behind the property. With no rear neighbors and sweeping pastoral views, you’ll enjoy one of the most private and tranquil settings in all of The Villages. It’s the kind of backdrop that makes every morning feel peaceful and every evening feel like a retreat. This home also features a 2-car garage PLUS an oversized 3rd golf-cart garage, deep enough to fit two golf carts in tandem — an incredibly rare find in this community. Relax on the screened front porch with a cup of coffee or a good book, then step inside to an open-concept layout where the kitchen overlooks the living room, perfect for entertaining. A natural gas stove makes cooking a delight, and the split-floorplan ensures privacy for you and your guests. The spacious primary suite includes a custom walk-in closet with wooden built-ins and an en-suite bath with a walk-in shower. The secondary bedrooms are generously sized and ideal for guests, hobbies, or an office. Your screened and covered back lanai may quickly become your favorite place — a peaceful oasis overlooking mature landscaping and fruit trees. The extended patio offers room for grilling, lounging, or simply enjoying the quiet beauty of the farm views. Notable updates include: Gas Water Heater (2025) Roof (2020) HVAC (2016) WiFi-enabled garage door opener, Updated electrical outlets & dimmable LED lighting, WiFi-enabled thermostat, dishwasher & washer, newer ceiling fans, rain gutters, garage service door & window. Custom wood shelving in the laundry room for extra storage. Located near Nancy Lopez Legacy Country Club, tennis, aquatic centers, dining, Spanish Springs, Lake Sumter Landing, medical plazas, Costco, Lowe’s, and major highways including I-75 and the Florida Turnpike — this home offers both serenity and convenience. This is a property you truly must see in person to appreciate the privacy, upgrades, and thoughtful features throughout.
Listing Information
Property Type: Residential, Single Family Residence
Status: Active
Bedrooms: 3
Bathrooms: 2
Lot Size: 0.27 Acres
Square Feet: 1,392 sq ft
Year Built: 2002
Garage: Yes
Stories: 1 Story
Construction: Vinyl Siding
Subdivision: Villages/Marion Un 59
Foundation: Slab
County: Marion
Room Information
Main Floor
Porch: 5x15
Porch: 10x19
Bedroom 3: 13x11
Bedroom 2: 13x11
Primary Bedroom: 15x13
Living Room: 11x15
Dinette:
Kitchen: 14x10
Bathrooms
Full Baths: 2
Additonal Room Information
Laundry: Inside, Electric Dryer Hookup
Interior Features
Appliances: Electric Water Heater, Gas Water Heater, Washer, Range, Refrigerator, Microwave, Dishwasher, Disposal
Flooring: Luxury Vinyl,Tile
Doors/Windows: Window Treatments, Shutters, Blinds
Additional Interior Features: Window Treatments, Walk-In Closet(s), Kitchen/Family Room Combo, Open Floorplan, Eat-In Kitchen, Split Bedrooms, Ceiling Fan(s), Vaulted Ceiling(s)
Utilities
Water: Public
Sewer: Public Sewer
Other Utilities: Electricity Connected,Sewer Connected
Cooling: Ceiling Fan(s), Central Air, Attic Fan
Heating: Electric, Central
Exterior / Lot Features
Attached Garage: Attached Garage
Garage Spaces: 3
Parking Description: Golf Cart Garage, Garage, Garage Door Opener, Workshop in Garage
Roof: Shingle
Pool: Association, Community
Lot Dimensions: 90x133
Additional Exterior/Lot Features: Lighting, Sprinkler/Irrigation, Rain Gutters, Rear Porch, Front Porch, Screened, Patio, Porch, Covered, Flat, Level, Private, Landscaped, Oversized Lot, Near Golf Course
Out Buildings: Shed(s)
Community Features
Community Features: Golf Carts OK, Fitness, Park, Restaurant, Street Lights, Dog Park, Gated, Pool, Tennis Court(s), Clubhouse, Golf, Recreation Area, Community Mailbox
Security Features: Gated Community, Gated with Guard
Association Amenities: Recreation Facilities, Tennis Court(s), Pool, Clubhouse, Fitness Center, Shuffleboard Court, Park, Pickleball, Gated, Golf Course, Trail(s)
HOA Dues Include: Recreation Facilities, Pool(s)
Homeowners Association: Yes
HOA Dues: $240 / Monthly
Driving Directions
HWY 301 to (L) CR 42 to (R) to Villages Buena Vista Blvd to Legacy Ln to (L) Lovewood to (L) Ludlow to (R) Belhaven
Financial Considerations
Terms: Cash,Conventional,FHA,VA Loan
Tax/Property ID: 6759-034-000
Tax Amount: 3776.98
Tax Year: 2025
A broker reciprocity listing courtesy: CORCORAN PREMIER REALTY
Based on information provided by Stellar MLS as distributed by the MLS GRID. Information from the Internet Data Exchange is provided exclusively for consumers’ personal, non-commercial use, and such information may not be used for any purpose other than to identify prospective properties consumers may be interested in purchasing. This data is deemed reliable but is not guaranteed to be accurate by Edina Realty, Inc., or by the MLS. Edina Realty, Inc., is not a multiple listing service (MLS), nor does it offer MLS access.
Copyright 2026 Stellar MLS as distributed by the MLS GRID. All Rights Reserved.
Payment Calculator
Interest rate and annual percentage rate (APR) are based on current market conditions, are for informational purposes only, are subject to change without notice and may be subject to pricing add-ons related to property type, loan amount, loan-to-value, credit score and other variables. Estimated closing costs used in the APR calculation are assumed to be paid by the borrower at closing. If the closing costs are financed, the loan, APR and payment amounts will be higher. If the down payment is less than 20%, mortgage insurance may be required and could increase the monthly payment and APR. Contact us for details. Additional loan programs may be available. Accuracy is not guaranteed, and all products may not be available in all borrower's geographical areas and are based on their individual situation. This is not a credit decision or a commitment to lend.
Sales History & Tax Summary for 8089 SE 174th Belhaven Loop
Sales History
| Date | Price | |
|---|---|---|
| Currently not available. | ||
Tax Summary
| Tax Year | Estimated Market Value | Total Tax |
|---|---|---|
| Currently not available. | ||
Data powered by ATTOM Data Solutions. Copyright© 2026. Information deemed reliable but not guaranteed.
Schools
Schools nearby 8089 SE 174th Belhaven Loop
| Schools in attendance boundaries | Grades | Distance | Rating |
|---|---|---|---|
| Loading... | |||
| Schools nearby | Grades | Distance | Rating |
|---|---|---|---|
| Loading... | |||
Data powered by ATTOM Data Solutions. Copyright© 2026. Information deemed reliable but not guaranteed.
The schools shown represent both the assigned schools and schools by distance based on local school and district attendance boundaries. Attendance boundaries change based on various factors and proximity does not guarantee enrollment eligibility. Please consult your real estate agent and/or the school district to confirm the schools this property is zoned to attend. Information is deemed reliable but not guaranteed.
SchoolDigger ® Rating
The SchoolDigger rating system is a 1-5 scale with 5 as the highest rating. SchoolDigger ranks schools based on test scores supplied by each state's Department of Education. They calculate an average standard score by normalizing and averaging each school's test scores across all tests and grades.
Coming soon properties will soon be on the market, but are not yet available for showings.