81 San Juan Drive Palm Coast, FL 32137
For Sale MLS# FC314576
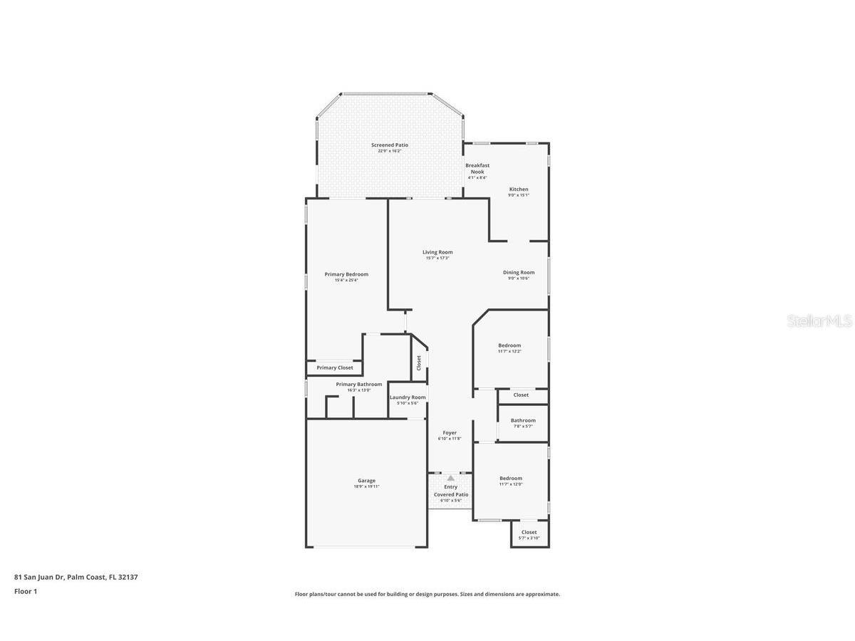
3 beds 2 baths 1,844 sq ft Single Family
Details for 81 San Juan Drive
MLS# FC314576
Description for 81 San Juan Drive, Palm Coast, FL, 32137
One or more photo(s) has been virtually staged. Price Improvement!!! Welcome to your new beachside retreat. This well maintained spanish style home is located in, Lakeside at Mantanzas Shores. Offering a 3 bedroom, 2 bath open split floor plan with updated porcelain tile flooring throughout the main living area, dinning room and kitchen. The kitchen has also been updated with solid wood soft close cabinets w/ pullout shelving, custom spice rack and solid surface counter tops. French doors offering beautiful water views while allowing access to the oversized screened lanai from the living room, master bedroom and kitchen. A custom privacy wall was designed and built in 2024 providing a peaceful and serene outdoor space. 81 San Juan is not only a beautful home but also offers an incredible lifestyle with community amenities such as, 2 pools, 3 clubhouses, deeded access to the Atlantic Ocean with private beach walkovers, deeded access to the Intracoastal Water Way, fishing pier with 2 cleaning stations, kayak storage, covered gathering/lookout area on Intracoastal Waterway, tennis courts, pickleball, shuffleboard, volleyball, basketball and walking trails. Schedule your showing today and start living the beachside life style you've always dreamed of! Updates to the property include, NEW TILE ROOF 2025, New Lanai Screens and Fortification 2025, Entire Home was Powerwashed 2025, Master Bedroom Painted 2025, Master Bedroom Carpet Replaced 2025, Custom Lanai Privacy Wall 2024, Porcelain Tile Flooring 2019, New AC 2018 and New Water Heater 2018. Also included is a comprehensive Home Warranty, schedule a showing today!
Listing Information
Property Type: Residential, Single Family Residence
Status: Active
Bedrooms: 3
Bathrooms: 2
Lot Size: 0.14 Acres
Square Feet: 1,844 sq ft
Year Built: 1995
Garage: Yes
Stories: 1 Story
Construction: Stucco
Construction Display: New Construction
Subdivision: Lakeside/Matanzas Shores
Foundation: Block
County: Flagler
Construction Status: New Construction
Room Information
Main Floor
Kitchen:
Dining Room:
Living Room:
Bathroom 2:
Bedroom 3:
Bedroom 2:
Primary Bathroom:
Primary Bedroom:
Bathrooms
Full Baths: 2
Additonal Room Information
Laundry: Inside
Interior Features
Appliances: Exhaust Fan, Washer, Electric Water Heater, Dishwasher, Disposal, Dryer, Microwave, Range, Refrigerator
Flooring: Carpet,Porcelain Tile,Tile
Additional Interior Features: Ceiling Fan(s), Built-in Features, High Ceilings, Split Bedrooms, Solid Surface Counters, Wood Cabinets, Main Level Primary
Utilities
Water: Public
Sewer: Private Sewer
Other Utilities: Cable Available,Electricity Connected,High Speed Internet Available,Phone Available,Sewer Connected,Underground Utilities,Water Connected
Cooling: Central Air, Ceiling Fan(s)
Heating: Central
Exterior / Lot Features
Attached Garage: Attached Garage
Garage Spaces: 2
Roof: Tile
Lot View: Pond,Water
Additional Exterior/Lot Features: Private Yard, Private Entrance, French Patio Doors, Sprinkler/Irrigation, Landscaped
Waterfront Details
Water Front Features: Pond
Community Features
Homeowners Association: Yes
HOA Dues: $76 / Quarterly
Driving Directions
Palm Coast Pkwy east to A1A. A1A north approx 7 miles. Lakeside at Matanza Shores community entrance on lefthand side. 3 miles south of Marineland on the righthand side.
Financial Considerations
Terms: Cash,Conventional,FHA,VA Loan
Tax/Property ID: 37-10-31-3725-00000-0930
Tax Amount: 3366
Tax Year: 2024
A broker reciprocity listing courtesy: FULL SAIL REALTY AND MANAGEMENT
Based on information provided by Stellar MLS as distributed by the MLS GRID. Information from the Internet Data Exchange is provided exclusively for consumers’ personal, non-commercial use, and such information may not be used for any purpose other than to identify prospective properties consumers may be interested in purchasing. This data is deemed reliable but is not guaranteed to be accurate by Edina Realty, Inc., or by the MLS. Edina Realty, Inc., is not a multiple listing service (MLS), nor does it offer MLS access.
Copyright 2026 Stellar MLS as distributed by the MLS GRID. All Rights Reserved.
Payment Calculator
Interest rate and annual percentage rate (APR) are based on current market conditions, are for informational purposes only, are subject to change without notice and may be subject to pricing add-ons related to property type, loan amount, loan-to-value, credit score and other variables. Estimated closing costs used in the APR calculation are assumed to be paid by the borrower at closing. If the closing costs are financed, the loan, APR and payment amounts will be higher. If the down payment is less than 20%, mortgage insurance may be required and could increase the monthly payment and APR. Contact us for details. Additional loan programs may be available. Accuracy is not guaranteed, and all products may not be available in all borrower's geographical areas and are based on their individual situation. This is not a credit decision or a commitment to lend.
Sales History & Tax Summary for 81 San Juan Drive
Sales History
| Date | Price | |
|---|---|---|
| Currently not available. | ||
Tax Summary
| Tax Year | Estimated Market Value | Total Tax |
|---|---|---|
| Currently not available. | ||
Data powered by ATTOM Data Solutions. Copyright© 2026. Information deemed reliable but not guaranteed.
Schools
Schools nearby 81 San Juan Drive
| Schools in attendance boundaries | Grades | Distance | Rating |
|---|---|---|---|
| Loading... | |||
| Schools nearby | Grades | Distance | Rating |
|---|---|---|---|
| Loading... | |||
Data powered by ATTOM Data Solutions. Copyright© 2026. Information deemed reliable but not guaranteed.
The schools shown represent both the assigned schools and schools by distance based on local school and district attendance boundaries. Attendance boundaries change based on various factors and proximity does not guarantee enrollment eligibility. Please consult your real estate agent and/or the school district to confirm the schools this property is zoned to attend. Information is deemed reliable but not guaranteed.
SchoolDigger ® Rating
The SchoolDigger rating system is a 1-5 scale with 5 as the highest rating. SchoolDigger ranks schools based on test scores supplied by each state's Department of Education. They calculate an average standard score by normalizing and averaging each school's test scores across all tests and grades.
Coming soon properties will soon be on the market, but are not yet available for showings.