810 Texas Street Englewood, FL 34223
For Sale MLS# N6136377
2 beds 2 baths 1,232 sq ft Single Family
Details for 810 Texas Street
MLS# N6136377
Description for 810 Texas Street, Englewood, FL, 34223
Back on the market with a NEW ROOF! Property has been cleared out and cleaned up. Seller will continue to do work on the property but will be more flexible before work is complete. Great location, newer electrical panel, cast iron has been replaced. Pool home. Oversized 2 car garage or workshop.
Listing Information
Property Type: Residential, Single Family Residence
Status: Active
Bedrooms: 2
Bathrooms: 2
Lot Size: 0.25 Acres
Square Feet: 1,232 sq ft
Year Built: 1979
Garage: Yes
Stories: 1 Story
Construction: Block,Stucco
Construction Display: New Construction
Subdivision: Gulf Coast Park
Foundation: Slab
County: Sarasota
Construction Status: Fixer
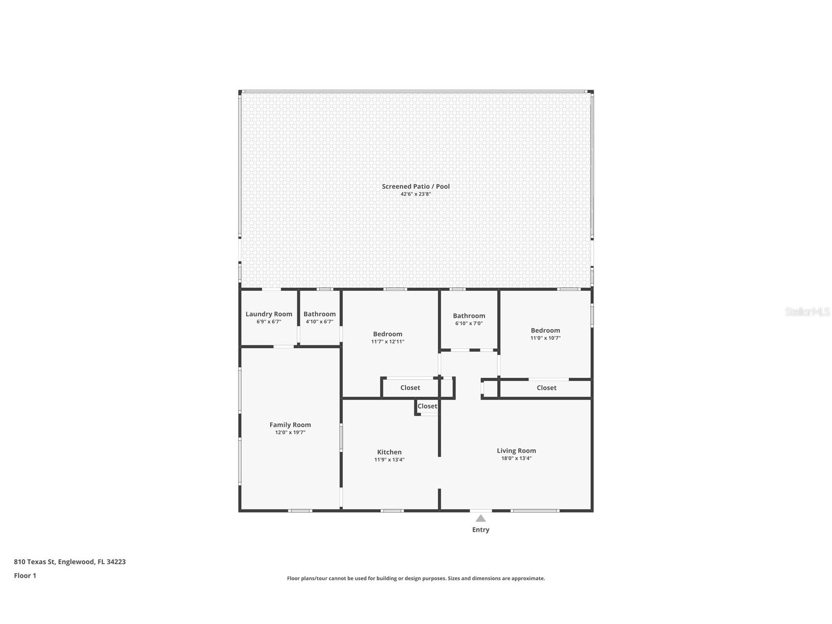
Room Information
Main Floor
Utility Room: 6x7
Bedroom 2: 12x12
Primary Bedroom: 11x11
Family Room: 12x20
Kitchen: 12x14
Living Room: 14x18
Bathrooms
Full Baths: 1
1/2 Baths: 1
Additonal Room Information
Laundry: Inside
Interior Features
Appliances: Electric Water Heater, Dryer, Range, Washer
Flooring: Concrete,Ceramic Tile
Additional Interior Features: Ceiling Fan(s)
Utilities
Water: Public
Sewer: Public Sewer
Other Utilities: Cable Available,Electricity Connected,Municipal Utilities,Sewer Connected,Water Connected
Cooling: Central Air, Ceiling Fan(s)
Heating: Electric, Central
Exterior / Lot Features
Garage Spaces: 2
Roof: Shingle
Pool: In Ground, Screen Enclosure, Gunite
Lot Dimensions: 76x145
Additional Exterior/Lot Features: Other, Corner Lot, Oversized Lot, Outside City Limits
Out Buildings: Workshop
Community Features
Community Features: Street Lights
Driving Directions
South on 776, right on Old Englewood Rd., on the corner of Texas St. and Old Englewood
Financial Considerations
Terms: Cash,Conventional
Tax/Property ID: 0493160018
Tax Amount: 1521.89
Tax Year: 2024
A broker reciprocity listing courtesy: SETTLES REAL ESTATE LLC
Based on information provided by Stellar MLS as distributed by the MLS GRID. Information from the Internet Data Exchange is provided exclusively for consumers’ personal, non-commercial use, and such information may not be used for any purpose other than to identify prospective properties consumers may be interested in purchasing. This data is deemed reliable but is not guaranteed to be accurate by Edina Realty, Inc., or by the MLS. Edina Realty, Inc., is not a multiple listing service (MLS), nor does it offer MLS access.
Copyright 2025 Stellar MLS as distributed by the MLS GRID. All Rights Reserved.
Payment Calculator
Interest rate and annual percentage rate (APR) are based on current market conditions, are for informational purposes only, are subject to change without notice and may be subject to pricing add-ons related to property type, loan amount, loan-to-value, credit score and other variables. Estimated closing costs used in the APR calculation are assumed to be paid by the borrower at closing. If the closing costs are financed, the loan, APR and payment amounts will be higher. If the down payment is less than 20%, mortgage insurance may be required and could increase the monthly payment and APR. Contact us for details. Additional loan programs may be available. Accuracy is not guaranteed, and all products may not be available in all borrower's geographical areas and are based on their individual situation. This is not a credit decision or a commitment to lend.
Sales History & Tax Summary for 810 Texas Street
Sales History
| Date | Price | Change |
|---|---|---|
| Currently not available. | ||
Tax Summary
| Tax Year | Estimated Market Value | Total Tax |
|---|---|---|
| Currently not available. | ||
Data powered by ATTOM Data Solutions. Copyright© 2025. Information deemed reliable but not guaranteed.
Schools
Schools nearby 810 Texas Street
| Schools in attendance boundaries | Grades | Distance | Rating |
|---|---|---|---|
| Loading... | |||
| Schools nearby | Grades | Distance | Rating |
|---|---|---|---|
| Loading... | |||
Data powered by ATTOM Data Solutions. Copyright© 2025. Information deemed reliable but not guaranteed.
The schools shown represent both the assigned schools and schools by distance based on local school and district attendance boundaries. Attendance boundaries change based on various factors and proximity does not guarantee enrollment eligibility. Please consult your real estate agent and/or the school district to confirm the schools this property is zoned to attend. Information is deemed reliable but not guaranteed.
SchoolDigger ® Rating
The SchoolDigger rating system is a 1-5 scale with 5 as the highest rating. SchoolDigger ranks schools based on test scores supplied by each state's Department of Education. They calculate an average standard score by normalizing and averaging each school's test scores across all tests and grades.
Coming soon properties will soon be on the market, but are not yet available for showings.