$160,000
811 Russell Lane #309 Brandon, FL 33510
For Sale MLS# TB8470157
2 beds 2 baths 1,068 sq ft Condo
Details for 811 Russell Lane #309
MLS# TB8470157
Description for 811 Russell Lane #309, Brandon, FL, 33510
Welcome to 811 Russell Ln #309 in Russellwood Condominium—a beautifully updated 2-bedroom, 1.5-bath condo offering nearly 1,100 sq ft of comfortable living space, strong rental appeal, and true turnkey convenience for investors and owner-occupants alike. Since the last sale, this home has been thoughtfully updated with an all-new kitchen featuring white cabinetry, granite countertops, designer hardware, and brand-new stainless steel appliances—a clean, modern look that stands out in the rental market. The interior also shines with fresh paint throughout, creating a bright, move-in-ready feel. Major updates include a new water heater and an updated full bathroom, plus durable, low-maintenance flooring - tile downstairs and laminate upstairs. Unwind on your covered balcony overlooking the central green space and the community pool—a peaceful view and a big lifestyle perk. Russellwood residents also enjoy access to a clubhouse, adding even more value and tenant appeal. Located in a central, commuter-friendly area with easy access to Tampa, Wesley Chapel, and Plant City, you’re also just minutes from everything you need—shopping and everyday services, dining, and local recreation. The unit includes in-unit laundry with a washer and dryer included, adding the convenience today’s buyers and renters want. For investors, the numbers are compelling—this property is expected to meet the coveted “1% rule,” where projected monthly rent equals 1% of the asking price, making it a rare opportunity in today’s market. Don’t miss your chance—schedule your private showing today and secure this updated, rent-ready condo in a prime location!
Listing Information
Property Type: Residential, Condominium
Status: Active
Bedrooms: 2
Bathrooms: 2
Square Feet: 1,068 sq ft
Year Built: 1981
Stories: 2 Story
Construction: Stucco,Wood Frame
Construction Display: New Construction
Subdivision: Russellwood A Condo
Foundation: Slab
County: Hillsborough
Construction Status: New Construction
School Information
Elementary: Limona-Hb
Middle: Mann-Hb
High: Brandon-Hb
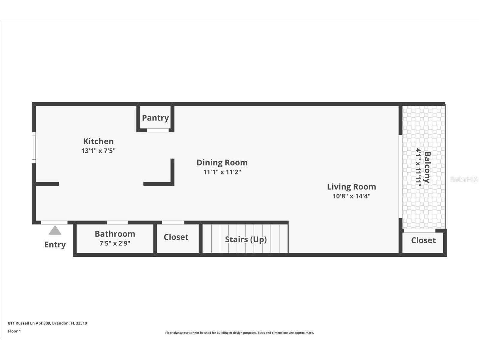
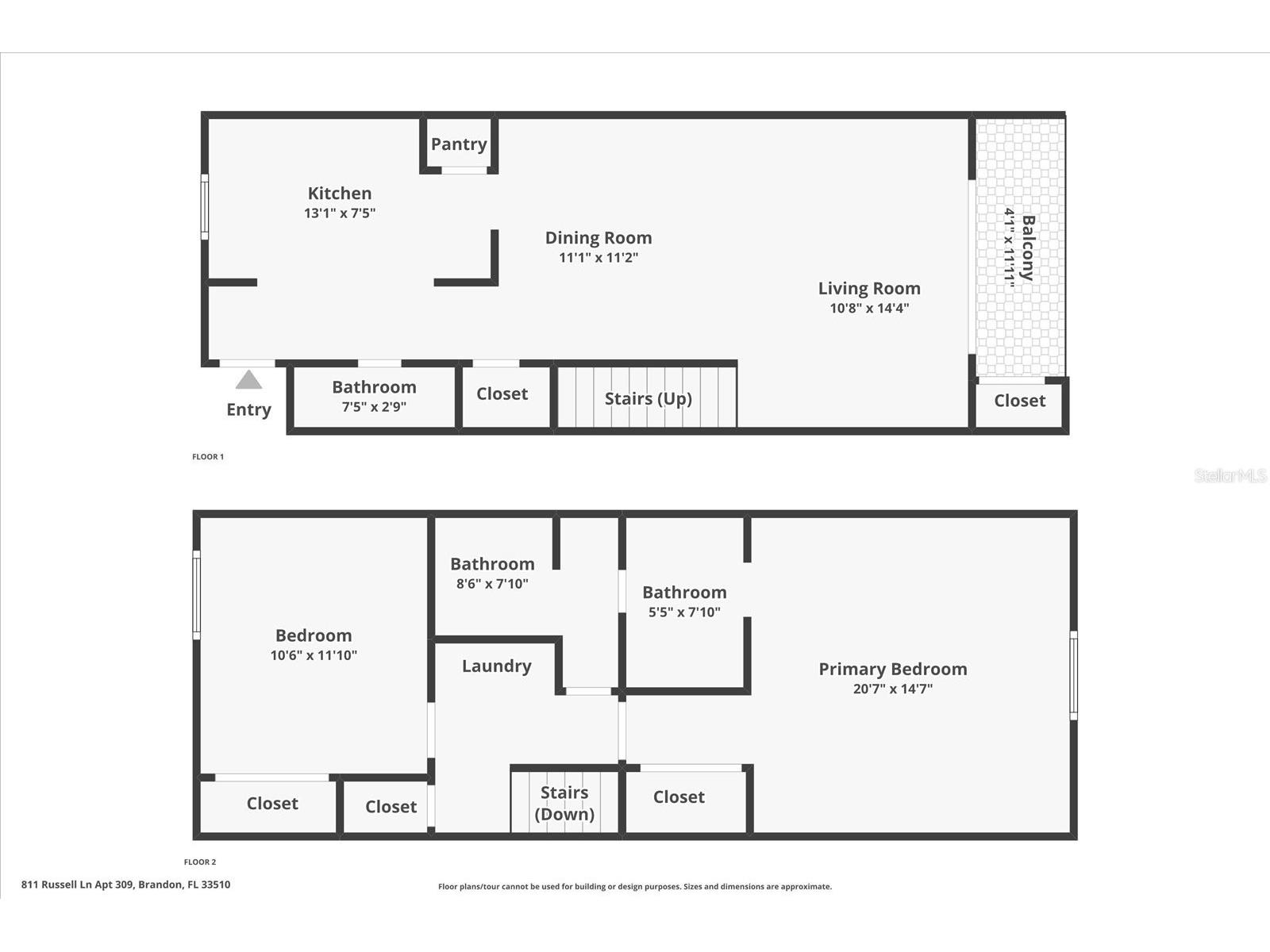
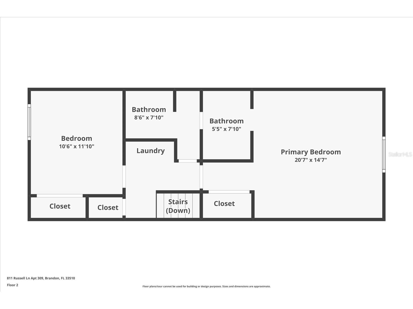
Room Information
Main Floor
Dining Room: 11x11
Great Room: 14x11
Kitchen: 8x13
Upper Floor
Bedroom 2: 12x11
Primary Bedroom: 15x21
Bathrooms
Full Baths: 1
1/2 Baths: 1
Additonal Room Information
Laundry: Inside, Washer Hookup, Laundry Closet, Upper Level, Electric Dryer Hookup
Interior Features
Appliances: Electric Water Heater, Range, Refrigerator, Microwave, Dishwasher, Disposal, Dryer
Flooring: Ceramic Tile,Laminate
Doors/Windows: Blinds
Additional Interior Features: Eat-In Kitchen, Split Bedrooms, Ceiling Fan(s), Living/Dining Room, Upper Level Primary, Open Floorplan, Solid Surface Counters, Stone Counters, Kitchen/Family Room Combo
Utilities
Water: Public
Sewer: Public Sewer
Other Utilities: Cable Available,Electricity Connected,High Speed Internet Available,Municipal Utilities,Phone Available,Sewer Connected,Water Connected
Cooling: Ceiling Fan(s), Central Air
Heating: Central
Exterior / Lot Features
Roof: Built-Up
Pool: Association, Community
Lot View: Park/Greenbelt,Garden,Pool,Trees/Woods
Additional Exterior/Lot Features: Rain Gutters, Balcony, Lighting, Balcony, Covered, Rear Porch, Front Porch, Flat, Level, Private, Landscaped, Near Public Transit, Outside City Limits
Community Features
Community Features: Community Mailbox, Recreation Area, Clubhouse, Pool, Sidewalks
Association Amenities: Park, Clubhouse, Pool
HOA Dues Include: Trash, Water, Association Management, Sewer, Taxes, Recreation Facilities, Maintenance Structure, Pool(s), Common Areas, Insurance, Maintenance Grounds, Reserve Fund, Road Maintenance
Homeowners Association: Yes
HOA Dues: $450 / Monthly
Driving Directions
Head east on Brandon Blvd (SR 60). Continue on Brandon Blvd to the Russellwood Condominium entrance, which is near Brandon Blvd & N Kings Ave. Turn into the community onto Clocktower Dr. Follow Clocktower Dr toward the back of the community, then turn left onto Russell Ln. Look for Building 811 and go to Unit #309
Financial Considerations
Terms: Cash,Conventional
Tax/Property ID: U-22-29-20-2E6-N00000-00309.0
Tax Amount: 2176.11
Tax Year: 2025
A broker reciprocity listing courtesy: RE/MAX REALTY UNLIMITED
Based on information provided by Stellar MLS as distributed by the MLS GRID. Information from the Internet Data Exchange is provided exclusively for consumers’ personal, non-commercial use, and such information may not be used for any purpose other than to identify prospective properties consumers may be interested in purchasing. This data is deemed reliable but is not guaranteed to be accurate by Edina Realty, Inc., or by the MLS. Edina Realty, Inc., is not a multiple listing service (MLS), nor does it offer MLS access.
Copyright 2026 Stellar MLS as distributed by the MLS GRID. All Rights Reserved.
Payment Calculator
Interest rate and annual percentage rate (APR) are based on current market conditions, are for informational purposes only, are subject to change without notice and may be subject to pricing add-ons related to property type, loan amount, loan-to-value, credit score and other variables. Estimated closing costs used in the APR calculation are assumed to be paid by the borrower at closing. If the closing costs are financed, the loan, APR and payment amounts will be higher. If the down payment is less than 20%, mortgage insurance may be required and could increase the monthly payment and APR. Contact us for details. Additional loan programs may be available. Accuracy is not guaranteed, and all products may not be available in all borrower's geographical areas and are based on their individual situation. This is not a credit decision or a commitment to lend.
Sales History & Tax Summary for 811 Russell Lane #309
Sales History
| Date | Price | |
|---|---|---|
| Currently not available. | ||
Tax Summary
| Tax Year | Estimated Market Value | Total Tax |
|---|---|---|
| Currently not available. | ||
Data powered by ATTOM Data Solutions. Copyright© 2026. Information deemed reliable but not guaranteed.
Schools
Schools nearby 811 Russell Lane #309
| Schools in attendance boundaries | Grades | Distance | Rating |
|---|---|---|---|
| Loading... | |||
| Schools nearby | Grades | Distance | Rating |
|---|---|---|---|
| Loading... | |||
Data powered by ATTOM Data Solutions. Copyright© 2026. Information deemed reliable but not guaranteed.
The schools shown represent both the assigned schools and schools by distance based on local school and district attendance boundaries. Attendance boundaries change based on various factors and proximity does not guarantee enrollment eligibility. Please consult your real estate agent and/or the school district to confirm the schools this property is zoned to attend. Information is deemed reliable but not guaranteed.
SchoolDigger ® Rating
The SchoolDigger rating system is a 1-5 scale with 5 as the highest rating. SchoolDigger ranks schools based on test scores supplied by each state's Department of Education. They calculate an average standard score by normalizing and averaging each school's test scores across all tests and grades.
Coming soon properties will soon be on the market, but are not yet available for showings.