8162 Terrace Garden Drive N #204 Saint Petersburg, FL 33709
For Sale MLS# A4678346
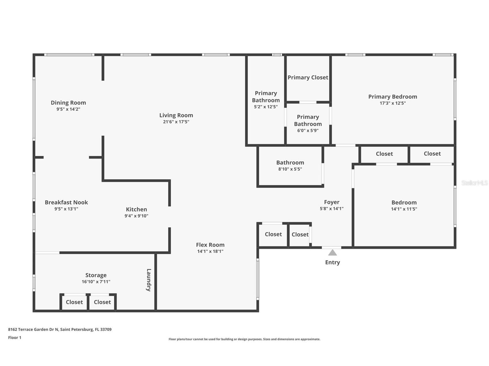
2 beds 2 baths 1,805 sq ft Condo
Details for 8162 Terrace Garden Drive N #204
MLS# A4678346
Description for 8162 Terrace Garden Drive N #204, Saint Petersburg, FL, 33709
PRICE IMPROVEMENT! Start living the Florida dream lifestyle today in this beautifully updated, move-in ready, amazingly spacious condo in the popular Terrace Park at Five Towns active adult community in St. Petersburg! This second floor condo is located in the Cambridge building which is one of three unique villa style condo buildings in the community with tile roofs, only 8 units per building, covered carport space in front along with plenty of guest parking that can be used by residents of the building for a second vehicle! From the moment you enter this lovely condo you will appreciate the custom touches and upgrades from vinyl plank flooring, crown molding to custom millwork in multiple areas. There's even a bonus or flex room that can be an office, music room, craft room, extra space for guests, etc. The chef will love the light and bright updated kitchen with gorgeous light cabinetry, stone countertops, tile backsplash, glass front doors on some cabinets, eat in kitchen area, stainless appliances and more! The open floor plan offers a spacious living room with plush carpet open to the dining room that easily fits a table for 6 surrounded in oversized windows with views of the trees and pond. The master bedroom is a true retreat with an on suite bath that includes a built-in makeup vanity plus storage cabinets, walk-in closet with organizers and large vanity with stone countertop. The shower is a therapeutic tub and shower combination. The guest bedroom is also spacious with double closets. There are ceiling fans throughout the condo, hurricane impact windows and hurricane shutters. The building has no special assessments and one of the lowest condo fees in the community. Terrace Park at Five Towns is ideal for newcomers—friendly neighbors, endless activities, multiple pools, clubhouses, fitness centers, walking paths, and more. Your low monthly fee of $711 covers cable, internet, natural gas, water, sewer, trash, reserves, and full access to amenities. A new RV/boat/vehicle storage area is nearly ready for use as well (spaces offered for lease). Looking for a spacious, move-in-ready Florida home with resort-style living and incredible value? See this condo and community today!
Listing Information
Property Type: Residential, Condominium
Status: Active
Bedrooms: 2
Bathrooms: 2
Lot Size: 999,999 Acres
Square Feet: 1,805 sq ft
Year Built: 1982
Stories: 1 Story
Construction: Block,Stucco
Subdivision: Terrace Park Of Five Towns
Foundation: Slab
County: Pinellas
Room Information
Upper Floor
Foyer: 6x8
Laundry: 6x14
Bedroom 2: 11x13
Primary Bedroom: 11x17
Bonus Room: 12x12
Kitchen: 8x19
Dining Room: 9x13
Living Room: 16x20
Bathrooms
Full Baths: 2
Additonal Room Information
Laundry: Laundry Room
Interior Features
Appliances: Washer, Microwave, Range, Refrigerator, Dishwasher, Disposal, Dryer
Flooring: Carpet,Ceramic Tile,Luxury Vinyl
Doors/Windows: Window Treatments
Additional Interior Features: Eat-In Kitchen, Walk-In Closet(s), Window Treatments, Living/Dining Room, Built-in Features, Ceiling Fan(s), Open Floorplan, Stone Counters, Crown Molding
Utilities
Water: Public
Sewer: Public Sewer
Other Utilities: Cable Connected,Electricity Connected,Natural Gas Connected,Municipal Utilities,Sewer Connected,Water Connected
Cooling: Ceiling Fan(s), Central Air
Heating: Central, Natural Gas
Exterior / Lot Features
Parking Description: Guest, Covered
Roof: Tile
Pool: Community
Lot View: Pond,Water
Additional Exterior/Lot Features: Storm/Security Shutters, Buyer Approval Required
Waterfront Details
Water Front Features: Pond
Community Features
Community Features: Recreation Area, Fitness, Clubhouse, Sidewalks, Pool, Tennis Court(s), Street Lights
HOA Dues Include: Internet, Cable TV, Water, Association Management, Maintenance Grounds, Pest Control, Trash, Reserve Fund, Sewer, Recreation Facilities, Maintenance Structure, Pool(s)
Driving Directions
54th Ave N to entrance to Terrace Park at Five Towns which is 80th St. N. Drive straight through the community almost to the end and where the road curves left it becomes Terrace Garden Dr. N. Building will be on your left. Park in any guest space.
Financial Considerations
Terms: Cash,Other
Tax/Property ID: 36-30-15-90336-003-2040
Tax Amount: 3832
Tax Year: 2025
A broker reciprocity listing courtesy: EXP REALTY LLC
Based on information provided by Stellar MLS as distributed by the MLS GRID. Information from the Internet Data Exchange is provided exclusively for consumers’ personal, non-commercial use, and such information may not be used for any purpose other than to identify prospective properties consumers may be interested in purchasing. This data is deemed reliable but is not guaranteed to be accurate by Edina Realty, Inc., or by the MLS. Edina Realty, Inc., is not a multiple listing service (MLS), nor does it offer MLS access.
Copyright 2026 Stellar MLS as distributed by the MLS GRID. All Rights Reserved.
Payment Calculator
Interest rate and annual percentage rate (APR) are based on current market conditions, are for informational purposes only, are subject to change without notice and may be subject to pricing add-ons related to property type, loan amount, loan-to-value, credit score and other variables. Estimated closing costs used in the APR calculation are assumed to be paid by the borrower at closing. If the closing costs are financed, the loan, APR and payment amounts will be higher. If the down payment is less than 20%, mortgage insurance may be required and could increase the monthly payment and APR. Contact us for details. Additional loan programs may be available. Accuracy is not guaranteed, and all products may not be available in all borrower's geographical areas and are based on their individual situation. This is not a credit decision or a commitment to lend.
Sales History & Tax Summary for 8162 Terrace Garden Drive N #204
Sales History
| Date | Price | |
|---|---|---|
| Currently not available. | ||
Tax Summary
| Tax Year | Estimated Market Value | Total Tax |
|---|---|---|
| Currently not available. | ||
Data powered by ATTOM Data Solutions. Copyright© 2026. Information deemed reliable but not guaranteed.
Schools
Schools nearby 8162 Terrace Garden Drive N #204
| Schools in attendance boundaries | Grades | Distance | Rating |
|---|---|---|---|
| Loading... | |||
| Schools nearby | Grades | Distance | Rating |
|---|---|---|---|
| Loading... | |||
Data powered by ATTOM Data Solutions. Copyright© 2026. Information deemed reliable but not guaranteed.
The schools shown represent both the assigned schools and schools by distance based on local school and district attendance boundaries. Attendance boundaries change based on various factors and proximity does not guarantee enrollment eligibility. Please consult your real estate agent and/or the school district to confirm the schools this property is zoned to attend. Information is deemed reliable but not guaranteed.
SchoolDigger ® Rating
The SchoolDigger rating system is a 1-5 scale with 5 as the highest rating. SchoolDigger ranks schools based on test scores supplied by each state's Department of Education. They calculate an average standard score by normalizing and averaging each school's test scores across all tests and grades.
Coming soon properties will soon be on the market, but are not yet available for showings.