8188 Saratoga Drive #703 Naples, FL 34113
For Sale MLS# 225029184
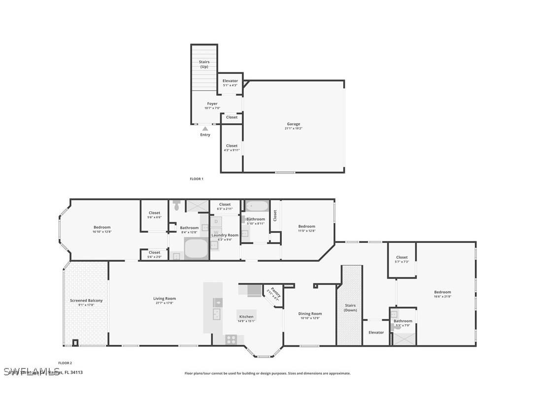
3 beds 3 baths 2,498 sq ft Condo
Details for 8188 Saratoga Drive #703
MLS# 225029184
Description for 8188 Saratoga Drive #703, Naples, FL, 34113
· Recently updated luxury coach home located in the highly desired Saratoga community of Lely Resort. · Enjoy low HOA fees with optional (vs. required) Players Club membership. · Furnishings negotiable if turn-key move-in desired. Discover luxury living in this elegant 3-bedroom, 3 bath condo located in the HIGHLY DESIRED Saratoga Community of Lely. This expansive water view and light-filled home features thoughtful updates, including new flooring and paint throughout, updated kitchen, fixtures and baths. The 3-bedroom home with abundant natural light also provides two separate en-suites and an in-unit elevator. The kitchen boasts bright cabinets, new quartz countertops, stainless steel appliances, and a convenient breakfast bar. The oversized great room provides access to the screened-in lania with direct water views. The spacious owner's suite offers a walk-in closet, and en-suite bath with dual vanities, a soaking tub, and a glass-enclosed shower. One guest bedroom provides its own en-suite bath with two additional bedrooms and a bath to accommodate all of your guests. This home blends timeless elegance with the ultimate in luxury and convenience. Your perfect lifestyle awaits!
Listing Information
Property Type: Residential, Condominium
Status: Active
Bedrooms: 3
Bathrooms: 3
Square Feet: 2,498 sq ft
Year Built: 2002
Garage: Yes
Stories: 2 Story
Construction: Block,Concrete,Stucco
Subdivision: Saratoga
Furnished: Yes
County: Collier
Days On Market: 351
Construction Status: Resale
School Information
Elementary: Manatee
Middle: Lely
High: Lely
Room Information
Bathrooms
Full Baths: 3
Additonal Room Information
Other: Bedroom (14x20), Dining Room (14x16), Bedroom (11x12), Bedroom (11x12), Great Room (22x18), Primary Bedroom (15x13), Kitchen (15x13)
Laundry: Inside, Laundry Tub
Interior Features
Appliances: Self Cleaning Oven, Electric Cooktop, Washer, Dishwasher, Disposal, Dryer, Freezer, Microwave, Range, Refrigerator
Flooring: Laminate
Doors/Windows: Single Hung
Accessibility: Wheelchair Access
Additional Interior Features: Handicap Access, Kitchen Island, Split Bedrooms, Eat-In Kitchen, Pantry, Elevator, Separate Shower, Separate/Formal Dining Room, Dual Sinks, Living/Dining Room, Walk-In Closet(s), High Speed Internet, Bar, Bathtub, Family/Dining Room, French Door(s)/Atrium Door(s), High Ceilings, Home Office
Utilities
Water: Public
Sewer: Public Sewer
Other Utilities: Cable Available,High Speed Internet Available
Cooling: Electric, Central Air
Heating: Central, Electric
Exterior / Lot Features
Attached Garage: Attached Garage
Garage Spaces: 2
Parking Description: driveway, Two Spaces, Garage Door Opener, Attached, Paved, Garage
Roof: Tile
Pool: Community
Lot View: Pond,Water
Zoning: Residential
Additional Exterior/Lot Features: None, Patio, Patio, Porch, Balcony, Lanai, Screened, Zero Lot Line
Community Features
Community Features: Street Lights, Gated
Security Features: Fire Sprinkler System, Smoke Detector(s), Gated Community, Security Gate
Association Amenities: Clubhouse, Pool, Sidewalks, Spa/Hot Tub, Trail(s), Management
HOA Dues Include: Association Management, Street Lights, Legal/Accounting, Insurance, Irrigation Water, Maintenance Grounds, Pest Control, Reserve Fund, Road Maintenance, Internet, Trash, Security, Sewer
Homeowners Association: Yes
HOA Dues: $100 / Annually
Driving Directions
US-41 N to Grand Lely Dr, Turn right on into subdivision Saratoga at Lely Resort. Enter community, through the gate and take an immediate left to unit 703.
Financial Considerations
Terms: All Financing Considered,Cash,FHA,VA Loan
Tax/Property ID: 72630010540
Tax Amount: 3926.59
Tax Year: 2024
A broker reciprocity listing courtesy: Exp Realty LLC
Based on information provided by FGCMLS. Internet Data Exchange information is provided exclusively for consumers’ personal, non-commercial use, and such information may not be used for any purpose other than to identify prospective properties consumers may be interested in purchasing. This data is deemed reliable but is not guaranteed to be accurate by Edina Realty, Inc., or by the MLS. Edina Realty, Inc., is not a multiple listing service (MLS), nor does it offer MLS access.
Copyright 2026 FGCMLS. All Rights Reserved.
Payment Calculator
Interest rate and annual percentage rate (APR) are based on current market conditions, are for informational purposes only, are subject to change without notice and may be subject to pricing add-ons related to property type, loan amount, loan-to-value, credit score and other variables. Estimated closing costs used in the APR calculation are assumed to be paid by the borrower at closing. If the closing costs are financed, the loan, APR and payment amounts will be higher. If the down payment is less than 20%, mortgage insurance may be required and could increase the monthly payment and APR. Contact us for details. Additional loan programs may be available. Accuracy is not guaranteed, and all products may not be available in all borrower's geographical areas and are based on their individual situation. This is not a credit decision or a commitment to lend.
Sales History & Tax Summary for 8188 Saratoga Drive #703
Sales History
| Date | Price | |
|---|---|---|
| Currently not available. | ||
Tax Summary
| Tax Year | Estimated Market Value | Total Tax |
|---|---|---|
| Currently not available. | ||
Data powered by ATTOM Data Solutions. Copyright© 2026. Information deemed reliable but not guaranteed.
Schools
Schools nearby 8188 Saratoga Drive #703
| Schools in attendance boundaries | Grades | Distance | Rating |
|---|---|---|---|
| Loading... | |||
| Schools nearby | Grades | Distance | Rating |
|---|---|---|---|
| Loading... | |||
Data powered by ATTOM Data Solutions. Copyright© 2026. Information deemed reliable but not guaranteed.
The schools shown represent both the assigned schools and schools by distance based on local school and district attendance boundaries. Attendance boundaries change based on various factors and proximity does not guarantee enrollment eligibility. Please consult your real estate agent and/or the school district to confirm the schools this property is zoned to attend. Information is deemed reliable but not guaranteed.
SchoolDigger ® Rating
The SchoolDigger rating system is a 1-5 scale with 5 as the highest rating. SchoolDigger ranks schools based on test scores supplied by each state's Department of Education. They calculate an average standard score by normalizing and averaging each school's test scores across all tests and grades.
Coming soon properties will soon be on the market, but are not yet available for showings.