$500,000
Off-Market Date: 09/12/2025
Listed by: Edina Realty, Inc.
8207 Norman Creek Trail Bloomington, MN 55437
Pending MLS# 6722428
3 beds 4 baths 2,920 sq ft Townhouse/Twinhome
Listed by: Edina Realty, Inc.
Details for 8207 Norman Creek Trail
MLS# 6722428
Description for 8207 Norman Creek Trail, Bloomington, MN, 55437
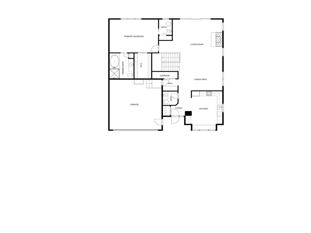
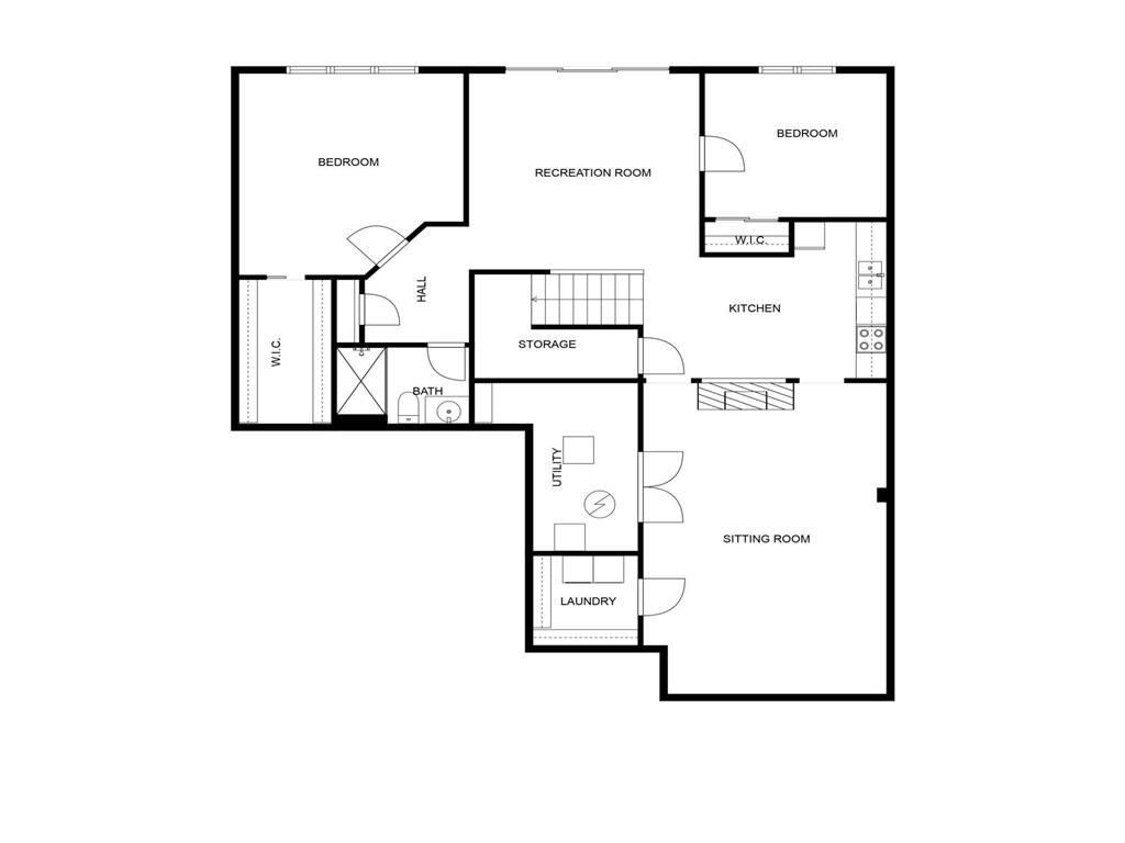
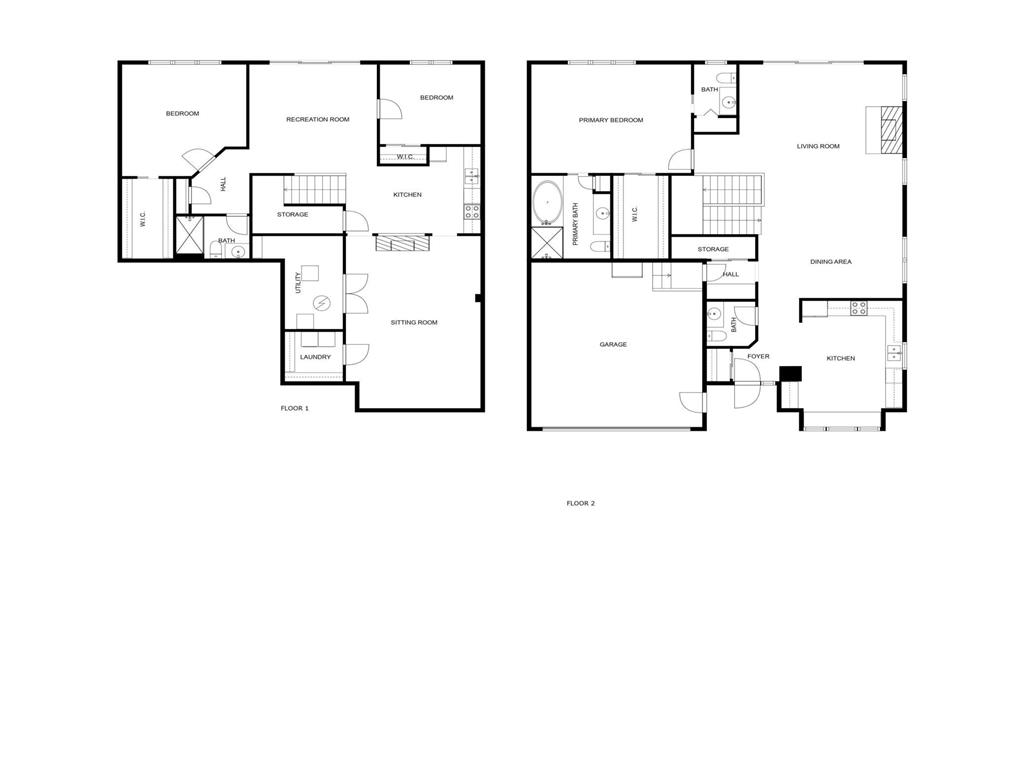
Rarely available end unit in sought-after Normandale Lake Townhomes offering one-level living! This soft contemporary home offers an open floor plan with vaulted ceilings, great natural light, and multiple entertaining spaces. Main level features vaulted ceilings, a spacious eat in kitchen with desk area, living/dining area with gas fireplace, and private deck. The primary suite includes a huge walk-in closet and dual ensuite baths. Walkout lower level boasts a large family room, amusement room, second kitchen, two-sided gas fireplace, two additional bedrooms, and a full bath. Prime location near Normandale Lake, Hyland Park trails, and minutes to the airport, shops, and highways.
Listing Information
Property Type: Residential, Side by Side, Patio Home
Status: Pending
Bedrooms: 3
Bathrooms: 4
Lot Size: 0.08 Acres
Square Feet: 2,920 sq ft
Year Built: 1995
Foundation: 1,520 sq ft
Garage: Yes
Stories: 1 Story
Property Attached: Yes
County: Hennepin
Days On Market: 103
Construction Status: Previously Owned
School Information
District: 271 - Bloomington
Room Information
Main Floor
Bedroom 1: 18x14
Deck: 15x08
Dining Room: 12x10
Kitchen: 16x14
Living Room: 21x19
Lower Floor
Amusement Room: 22x15
Bedroom 2: 15x12
Bedroom 3: 14x12
Family Room: 16x15
Patio: 16x08
Second Kitchen: 12x10
Bathrooms
Full Baths: 1
3/4 Baths: 1
1/2 Baths: 2
Additonal Room Information
Family: Lower Level
Dining: Eat In Kitchen,Living/Dining Room
Bath Description: 3/4 Basement,3/4 Primary,Full Primary,Main Floor 1/2 Bath,Private Primary,Two Primary Baths
Interior Features
Square Footage above: 1,520 sq ft
Square Footage below: 1,400 sq ft
Appliances: Washer, Range, Refrigerator, Dishwasher, Dryer, Microwave
Basement: Drain Tiled, Finished (Livable), Walkout, Poured Concrete
Facilities: Existing In-Law w/Bath, Existing In-Law w/Kitchen
Fireplaces: 2, Gas Burning, Living Room, 2-Sided
Accessibility: Soaking Tub
Additional Interior Features: Ceiling Fan(s), Kitchen Window, Natural Woodwork, Main Floor Bedroom, Main Floor Primary, Primary Bdr Suite, Hardwood Floors, Paneled Doors, Tile Floors, Vaulted Ceiling(s), Walk-In Closet
Utilities
Water: City Water/Connected
Sewer: City Sewer/Connected
Cooling: Central
Heating: Forced Air, Electric
Exterior / Lot Features
Attached Garage: Attached Garage
Garage Spaces: 2
Parking Description: Guest Parking, Attached Garage, Heated Garage, Garage Door Opener, Driveway - Asphalt, Garage Dimensions - 20x21, Garage Sq Ft - 420.0
Exterior: Vinyl, Brick/Stone
Roof: Age 8 Years or Less, Asphalt Shingles
Lot Dimensions: Common
Zoning: Residential-Single Family
Additional Exterior/Lot Features: Patio, Deck, End Unit, Tree Coverage - Medium, Public Transit (w/in 6 blks), Road Frontage - Street Lights, Private, Cul De Sac, Curbs, Paved Streets, No Outlet/Dead End
Community Features
HOA Dues Include: Lawn Care, Outside Maintenance, Hazard Insurance, Building Exterior, Cable TV, Professional Mgmt, Snow Removal
Pets Allowed: Yes
Homeowners Association: Yes
Association Name: Westport Properties
HOA Dues: $602 / Monthly
Driving Directions
494 to south on East Bush Lake Road, Left at American Blvd W, Right on Normal Creek Trail, Right at the "T" , home on the right.
Financial Considerations
Covenants/Deed Restrictions: Mandatory Owners Assoc, Pets - Dogs Allowed, Pets - Cats Allowed, Pets - Number Limit, Rentals not Permitted
Tax/Property ID: 1611621230009
Tax Amount: 6033
Tax Year: 2025
HomeStead Description: Homesteaded
The data relating to real estate for sale on this web site comes in part from the Broker Reciprocity℠ Program of the Regional Multiple Listing Service of Minnesota, Inc. Real estate listings held by brokerage firms other than Edina Realty, Inc. are marked with the Broker Reciprocity℠ logo or the Broker Reciprocity℠ thumbnail and detailed information about them includes the name of the listing brokers. Edina Realty, Inc. is not a Multiple Listing Service (MLS), nor does it offer MLS access. This website is a service of Edina Realty, Inc., a broker Participant of the Regional Multiple Listing Service of Minnesota, Inc. IDX information is provided exclusively for consumers personal, non-commercial use and may not be used for any purpose other than to identify prospective properties consumers may be interested in purchasing. Open House information is subject to change without notice. Information deemed reliable but not guaranteed.
Copyright 2025 Regional Multiple Listing Service of Minnesota, Inc. All Rights Reserved.
Sales History & Tax Summary for 8207 Norman Creek Trail
Sales History
| Date | Price | Change |
|---|---|---|
| Currently not available. | ||
Tax Summary
| Tax Year | Estimated Market Value | Total Tax |
|---|---|---|
| Currently not available. | ||
Data powered by ATTOM Data Solutions. Copyright© 2025. Information deemed reliable but not guaranteed.
Schools
Schools nearby 8207 Norman Creek Trail
| Schools in attendance boundaries | Grades | Distance | Rating |
|---|---|---|---|
| Loading... | |||
| Schools nearby | Grades | Distance | Rating |
|---|---|---|---|
| Loading... | |||
Data powered by ATTOM Data Solutions. Copyright© 2025. Information deemed reliable but not guaranteed.
The schools shown represent both the assigned schools and schools by distance based on local school and district attendance boundaries. Attendance boundaries change based on various factors and proximity does not guarantee enrollment eligibility. Please consult your real estate agent and/or the school district to confirm the schools this property is zoned to attend. Information is deemed reliable but not guaranteed.
SchoolDigger ® Rating
The SchoolDigger rating system is a 1-5 scale with 5 as the highest rating. SchoolDigger ranks schools based on test scores supplied by each state's Department of Education. They calculate an average standard score by normalizing and averaging each school's test scores across all tests and grades.
Coming soon properties will soon be on the market, but are not yet available for showings.