$169,900
Off-Market Date: 02/25/2026822 7th Street International Falls, MN 56649
Pending MLS# 6823421
3 beds 3 baths 1,290 sq ft Single Family
Details for 822 7th Street
MLS# 6823421
Description for 822 7th Street, International Falls, MN, 56649
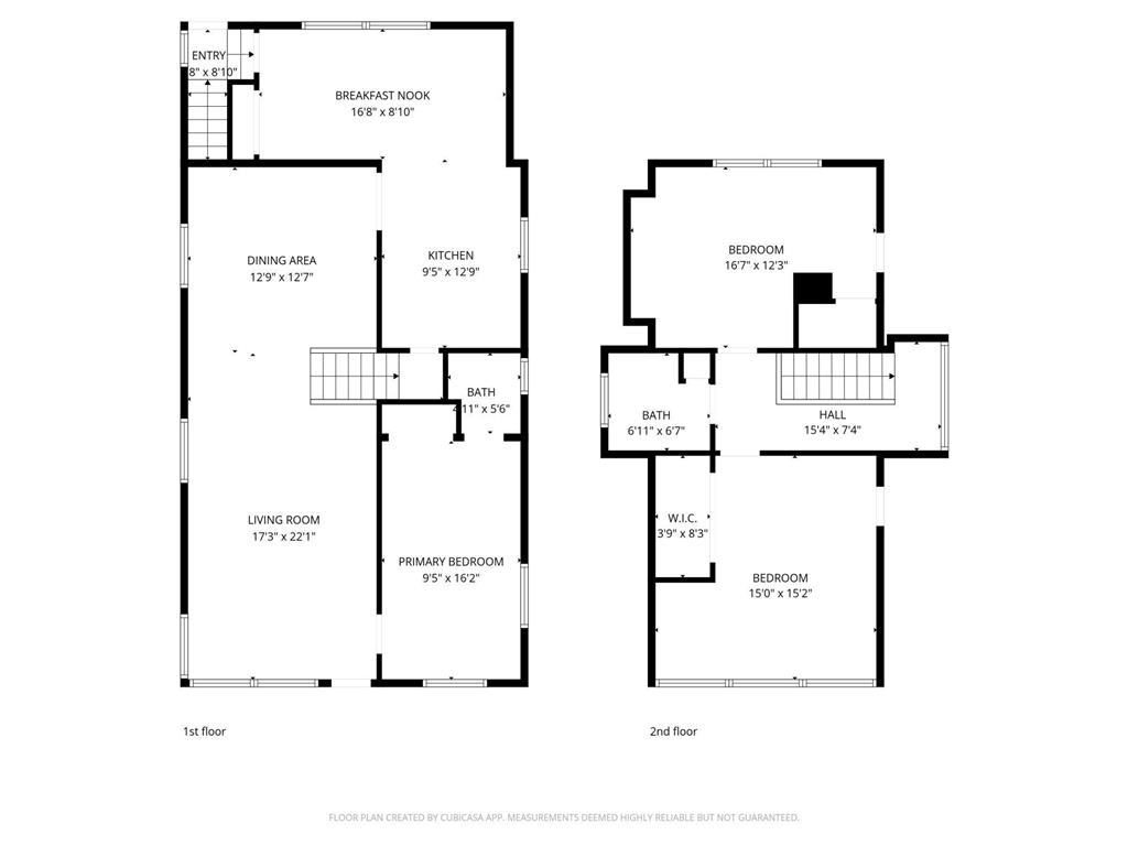
This unique property offers two adjacent parcels, fully fenced together for a combined .25 acres. The main home features 3 bedrooms and 3 baths, with wood floors in the living, dining, and main floor bedroom, plus a bright, newer kitchen and breakfast nook. Upstairs you will find two spacious bedrooms and a full bath. The roomy basement includes a 3/4 bath and abundant storage or potential for a family room. A second 808 sq ft home on the property provides 2 bedrooms, 1 bath; perfect as a guest house, or rental. Garages abound with a 24x30 garage on the main parcel and a 32x28 garage on the second. Whether you envision multi-generational living, income potential, or simply extra space to spread out, this property delivers endless possibilities.
Listing Information
Property Type: Residential, Single Family
Status: Pending
Bedrooms: 3
Bathrooms: 3
Lot Size: 0.25 Acres
Square Feet: 1,290 sq ft
Year Built: 1920
Foundation: 840 sq ft
Garage: Yes
Stories: 1 Story
Subdivision: International Falls
County: Koochiching
Days On Market: 83
Construction Status: Previously Owned
School Information
District: 361 - International Falls
Room Information
Main Floor
Bathroom:
Bedroom 1:
Kitchen:
Living Room:
Upper Floor
Bathroom:
Bedroom 2:
Bedroom 3:
Lower Floor
Bathroom:
Bathrooms
Full Baths: 1
3/4 Baths: 1
1/2 Baths: 1
Additonal Room Information
Bath Description: 3/4 Basement,Main Floor 1/2 Bath,Upper Level Full Bath
Interior Features
Square Footage above: 1,290 sq ft
Basement: Crawl Space
Facilities: Existing In-Law w/Bath, Existing In-Law w/Kitchen
Utilities
Water: City Water/Connected
Sewer: City Sewer/Connected
Heating: Boiler, Radiant, Hot Water, Natural Gas
Exterior / Lot Features
Garage Spaces: 4
Parking Description: Detached Garage, Multiple Garages, Garage Sq Ft - 1616.
Exterior: Vinyl
Lot Dimensions: 77x140
Zoning: Residential-Single Family
Fencing: Full, Other
Additional Exterior/Lot Features: Patio, Corner Lot
Out Buildings: Guest House, Garage(s)
Driving Directions
From Downtown I Falls, head W on 3rd St for .4 miles, turn left onto 9th Ave for .3 miles then left onto 7th St to property
Financial Considerations
Other Annual Tax: $210
Tax/Property ID: 9200756230
Tax Amount: 2626
Tax Year: 2025
HomeStead Description: Non-Homesteaded
A broker reciprocity listing courtesy: Move it Real Estate Group/Lake
The data relating to real estate for sale on this web site comes in part from the Broker Reciprocity℠ Program of the Regional Multiple Listing Service of Minnesota, Inc. Real estate listings held by brokerage firms other than Edina Realty, Inc. are marked with the Broker Reciprocity℠ logo or the Broker Reciprocity℠ thumbnail and detailed information about them includes the name of the listing brokers. Edina Realty, Inc. is not a Multiple Listing Service (MLS), nor does it offer MLS access. This website is a service of Edina Realty, Inc., a broker Participant of the Regional Multiple Listing Service of Minnesota, Inc. IDX information is provided exclusively for consumers personal, non-commercial use and may not be used for any purpose other than to identify prospective properties consumers may be interested in purchasing. Open House information is subject to change without notice. Information deemed reliable but not guaranteed.
Copyright 2026 Regional Multiple Listing Service of Minnesota, Inc. All Rights Reserved.
Sales History & Tax Summary for 822 7th Street
Sales History
| Date | Price | |
|---|---|---|
| Currently not available. | ||
Tax Summary
| Tax Year | Estimated Market Value | Total Tax |
|---|---|---|
| Currently not available. | ||
Data powered by ATTOM Data Solutions. Copyright© 2026. Information deemed reliable but not guaranteed.
Schools
Schools nearby 822 7th Street
| Schools in attendance boundaries | Grades | Distance | Rating |
|---|---|---|---|
| Loading... | |||
| Schools nearby | Grades | Distance | Rating |
|---|---|---|---|
| Loading... | |||
Data powered by ATTOM Data Solutions. Copyright© 2026. Information deemed reliable but not guaranteed.
The schools shown represent both the assigned schools and schools by distance based on local school and district attendance boundaries. Attendance boundaries change based on various factors and proximity does not guarantee enrollment eligibility. Please consult your real estate agent and/or the school district to confirm the schools this property is zoned to attend. Information is deemed reliable but not guaranteed.
SchoolDigger ® Rating
The SchoolDigger rating system is a 1-5 scale with 5 as the highest rating. SchoolDigger ranks schools based on test scores supplied by each state's Department of Education. They calculate an average standard score by normalizing and averaging each school's test scores across all tests and grades.
Coming soon properties will soon be on the market, but are not yet available for showings.