823 Folklore Lane Haines City, FL 33844
For Sale MLS# L4951637
5 beds 4 baths 3,106 sq ft Single Family
Details for 823 Folklore Lane
MLS# L4951637
Description for 823 Folklore Lane, Haines City, FL, 33844
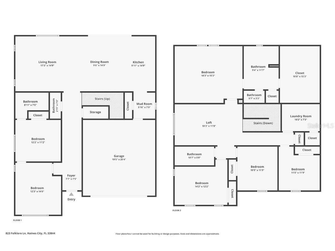
Short Sale. Welcome to this stunning 5-bedroom, 3.5-bathroom home offering the perfect balance of space, style, and smart energy efficiency. With 3,106 square feet of thoughtfully designed living space, this home truly has room for everyone—and everything! One of the standout features of this home is the **Private Mother-in-Law Suite**, thoughtfully designed with its own bedroom, full bathroom, and generously sized separate living area. Whether you're accommodating extended family, have a child needing more independence, multi-generational living, or need a quiet space for a home office to meet clients, this flexible suite offers endless possibilities! The main level is ideal for entertaining with a bright, open-concept layout featuring a spacious kitchen, mudroom, dining area, and a large living room perfect for gatherings and celebrations. Upstairs, a large loft area offers even more space to unwind or play, along with four generously sized bedrooms and a laundry room already pre-plumbed for a sink for added convenience. Step outside to a large covered patio, perfect for year-round outdoor dining and relaxation, and enjoy your own garden space for weekend projects or fresh herbs. And here’s where the Florida lifestyle really pays off—newly installed solar panels help you save hundreds each month on energy bills, especially during those hot summer months. Not only will you stay cool, but you'll also enjoy peace of mind with a more sustainable and cost-efficient home. Located in a fast-growing area, this home is an incredible opportunity to invest in comfort, functionality, and future savings. Don't miss your chance to make it yours—**sellers are motivated**, so act fast and schedule your showing today! This is an ideal opportunity for buyers or investors seeking strong value. Property sold as-is and is subject to lender approval.
Listing Information
Property Type: Residential, Single Family Residence
Status: Active
Bedrooms: 5
Bathrooms: 4
Lot Size: 0.14 Acres
Square Feet: 3,106 sq ft
Year Built: 2024
Garage: Yes
Stories: 2 Story
Construction: Block
Subdivision: Seasons/Heritage Square
Foundation: Slab
County: Polk
Room Information
Main Floor
Living Room: 14x12.3
Family Room: 14.9x17.3
Primary Bedroom: 11.2x12.2
Dining Room: 14.9x9.6
Kitchen: 14.9x9.11
Upper Floor
Primary Bedroom: 15.3x18.3
Bedroom 4: 11.9x10.9
Loft: 11x18.3
Bedroom 3: 11.9x11.1
Bedroom 2: 12.2x14.2
Laundry: 7.3x10.2
Bathrooms
Full Baths: 3
1/2 Baths: 1
Additonal Room Information
Laundry: Inside, Laundry Room
Interior Features
Appliances: Electric Water Heater, Microwave, Range, Refrigerator, Dishwasher, Disposal, Dryer
Flooring: Carpet,Ceramic Tile
Additional Interior Features: Eat-In Kitchen, Ceiling Fan(s), Loft, Walk-In Closet(s), Living/Dining Room, Upper Level Primary, Kitchen/Family Room Combo, Open Floorplan, Solid Surface Counters
Utilities
Water: Public
Sewer: Public Sewer
Other Utilities: Cable Connected,Electricity Connected,Fiber Optic Available,Municipal Utilities,Water Connected
Cooling: Ceiling Fan(s), Central Air
Heating: Central
Exterior / Lot Features
Attached Garage: Attached Garage
Garage Spaces: 2
Parking Description: Garage Door Opener, Garage, driveway
Roof: Shingle
Lot View: Pool
Fencing: Vinyl
Additional Exterior/Lot Features: Sprinkler/Irrigation, Lighting, Garden, Covered, Rear Porch, City Lot
Community Features
Community Features: Street Lights, Park, Sidewalks, Playground
Homeowners Association: Yes
HOA Dues: $302 / Quarterly
Driving Directions
Head north on 27, go 6.2 miles and turn right onto 92 east to Haines city and 17, go 1.7 miles and turn left onto 92, go 0.5 miles and turn right onto 580 E Johnson Ave, go 2.7miles and turn right onto Bice Grove RD, go 800ft and turn left onto heritage square dr, turn left onto heirloom dr, turn right onto Folklore Ln, destination is on your left.
Financial Considerations
Terms: Cash,Conventional,FHA,VA Loan
Tax/Property ID: 27-27-25-757864-001010
Tax Amount: 1205
Tax Year: 2024
A broker reciprocity listing courtesy: LIVE FLORIDA REALTY
Based on information provided by Stellar MLS as distributed by the MLS GRID. Information from the Internet Data Exchange is provided exclusively for consumers’ personal, non-commercial use, and such information may not be used for any purpose other than to identify prospective properties consumers may be interested in purchasing. This data is deemed reliable but is not guaranteed to be accurate by Edina Realty, Inc., or by the MLS. Edina Realty, Inc., is not a multiple listing service (MLS), nor does it offer MLS access.
Copyright 2026 Stellar MLS as distributed by the MLS GRID. All Rights Reserved.
Payment Calculator
Interest rate and annual percentage rate (APR) are based on current market conditions, are for informational purposes only, are subject to change without notice and may be subject to pricing add-ons related to property type, loan amount, loan-to-value, credit score and other variables. Estimated closing costs used in the APR calculation are assumed to be paid by the borrower at closing. If the closing costs are financed, the loan, APR and payment amounts will be higher. If the down payment is less than 20%, mortgage insurance may be required and could increase the monthly payment and APR. Contact us for details. Additional loan programs may be available. Accuracy is not guaranteed, and all products may not be available in all borrower's geographical areas and are based on their individual situation. This is not a credit decision or a commitment to lend.
Sales History & Tax Summary for 823 Folklore Lane
Sales History
| Date | Price | |
|---|---|---|
| Currently not available. | ||
Tax Summary
| Tax Year | Estimated Market Value | Total Tax |
|---|---|---|
| Currently not available. | ||
Data powered by ATTOM Data Solutions. Copyright© 2026. Information deemed reliable but not guaranteed.
Schools
Schools nearby 823 Folklore Lane
| Schools in attendance boundaries | Grades | Distance | Rating |
|---|---|---|---|
| Loading... | |||
| Schools nearby | Grades | Distance | Rating |
|---|---|---|---|
| Loading... | |||
Data powered by ATTOM Data Solutions. Copyright© 2026. Information deemed reliable but not guaranteed.
The schools shown represent both the assigned schools and schools by distance based on local school and district attendance boundaries. Attendance boundaries change based on various factors and proximity does not guarantee enrollment eligibility. Please consult your real estate agent and/or the school district to confirm the schools this property is zoned to attend. Information is deemed reliable but not guaranteed.
SchoolDigger ® Rating
The SchoolDigger rating system is a 1-5 scale with 5 as the highest rating. SchoolDigger ranks schools based on test scores supplied by each state's Department of Education. They calculate an average standard score by normalizing and averaging each school's test scores across all tests and grades.
Coming soon properties will soon be on the market, but are not yet available for showings.