8246 Aquila Street Port Richey, FL 34668
For Sale MLS# TB8316048
2 beds 2 baths 1,762 sq ft Townhouse/Twinhome
Details for 8246 Aquila Street
MLS# TB8316048
Description for 8246 Aquila Street, Port Richey, FL, 34668
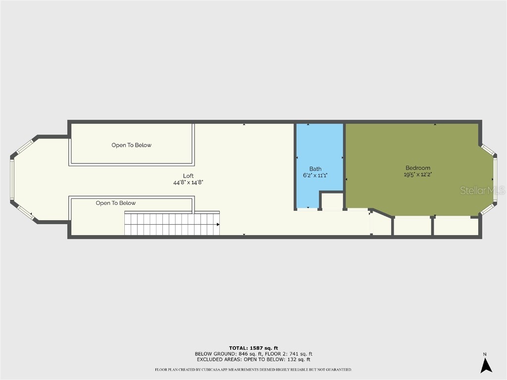
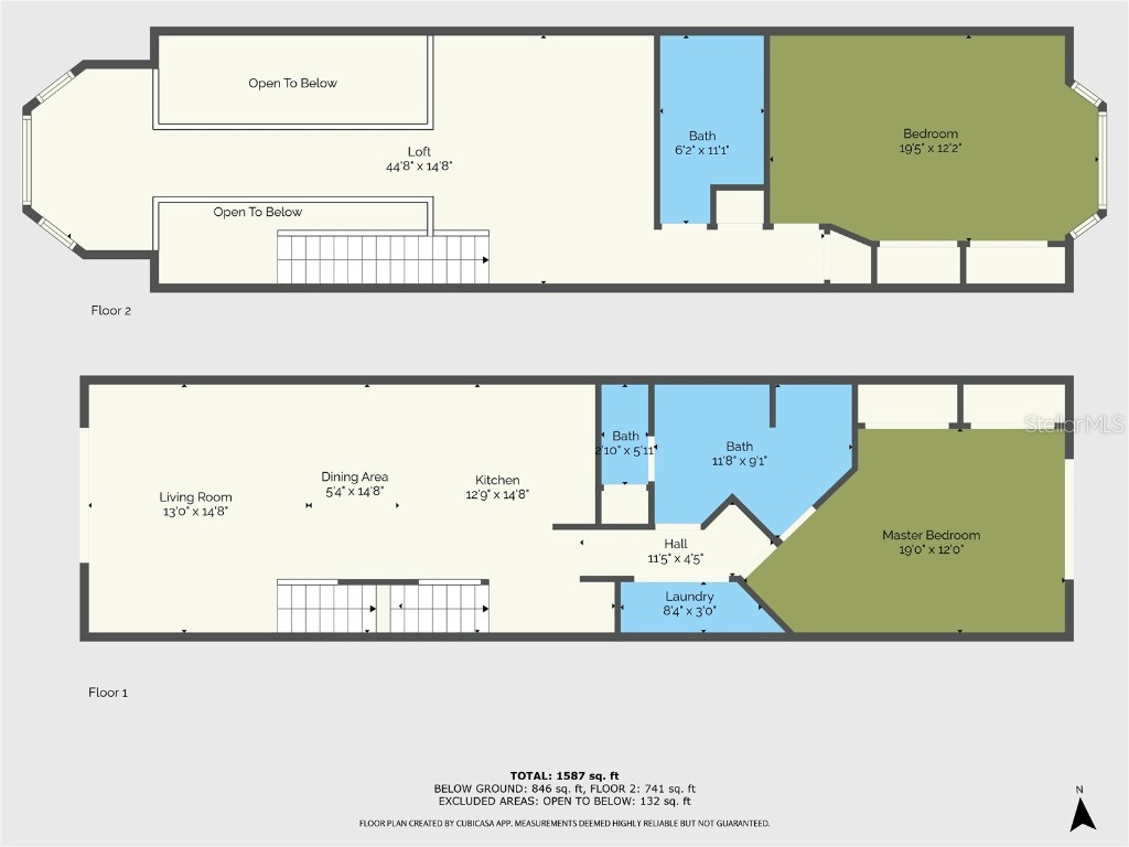
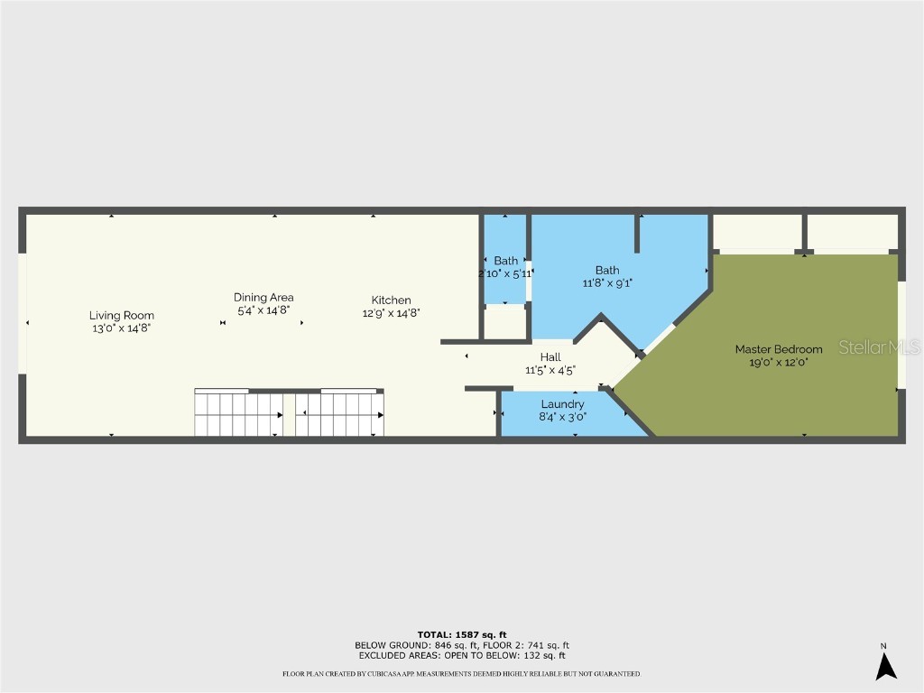
Short Sale Approved. Resort Style Living in Sand Pebble Coastal Community. This waterfront townhome features both sunrise and stunning sunset views. Bring the water toys, private deeded boat dock directly behind the home with quick access to the Gulf of Mexico. The home is just minutes from several waterfront restaurants, Historic Downtown New Port Richey, Islands, and Marinas. Updated kitchen with new stainless steel appliances, white craftsman-style cabinets, and beautiful glass backsplash. The main living area has a luxury vinyl plank. There are two bedrooms, with an additional sleeping loft/ home office on the third floor and two full bathrooms. The ground level has tandem parking with room for a golf cart, workshop, or game room. There is a great screen porch in the back for cookouts and entertaining on the water. SEE FLOOR PLAN. The open floor plan on the 2nd level features a front balcony, living room, dining room, kitchen, laundry, bathroom, and large bedroom. The bedroom has double closets and a bay window with sunrise views. The 3rd level has a LARGE SLEEPING LOFT/ HOME OFFICE with an amazing sunset view and a large main bedroom with sunrise views from the fully enclosed porch/office or sitting room. The community features 24-hour security, a boat ramp, a gorgeous Key West-style clubhouse with a fitness center, a swimming pool, tennis and pickleball courts, a putting green, a fishing pier, and a waterfront boardwalk. There are additional fees for kayak and trailer storage. You can go from your private dock, which is just minutes to the Cote River and the Gulf of Mexico. There are several boatable restaurants minutes away. You can access historic downtown New Port Richey by boat with docks along Sims Park. Great Islands and State Parks surround this area. ASSUMABLE MORTGAGE AT 5.250%
Listing Information
Property Type: Residential, Townhouse
Status: Active
Bedrooms: 2
Bathrooms: 2
Lot Size: 0.04 Acres
Square Feet: 1,762 sq ft
Year Built: 2000
Garage: Yes
Stories: 2 Story
Construction: Block,Stucco,Wood Frame
Subdivision: Twnhms By Gulf Sand Pebble Prcl 01, Sand Pebble
Foundation: Slab
County: Pasco
School Information
Elementary: Richey Elementary School
Middle: Chasco Middle-Po
High: Gulf High-Po
Room Information
Bathrooms
Full Baths: 2
Additonal Room Information
Laundry: Laundry Closet
Interior Features
Appliances: Dishwasher, Microwave, Range, Refrigerator
Flooring: Carpet,Tile,Vinyl
Additional Interior Features: Living/Dining Room, Open Floorplan, Main Level Primary
Utilities
Water: Public
Sewer: Public Sewer
Other Utilities: Cable Available,Electricity Connected,Water Connected
Cooling: Central Air
Heating: Central, Electric
Exterior / Lot Features
Attached Garage: Attached Garage
Garage Spaces: 2
Parking Description: driveway, Golf Cart Garage, Garage Door Opener, Garage, Tandem
Roof: Shingle
Pool: Community
Lot View: Canal,Water
Additional Exterior/Lot Features: Balcony, Balcony, Buyer Approval Required, Flood Zone
Waterfront Details
Water Front Features: Canal Access
Community Features
Community Features: Fishing, Fitness, Waterfront, Boat Facilities, Pool, Tennis Court(s), Water Access
HOA Dues Include: Cable TV, Trash, Maintenance Structure, Maintenance Grounds, Security, Pool(s)
Homeowners Association: Yes
HOA Dues: $530 / Monthly
Driving Directions
From US19 head west on Bay Blvd, turn left on Aquila St, property is in the 2nd bldg on the left.
Financial Considerations
Terms: Cash,Conventional
Tax/Property ID: 16-25-30-006.0-000.00-132.0
Tax Amount: 7473.19
Tax Year: 2023
A broker reciprocity listing courtesy: DALTON WADE INC
Based on information provided by Stellar MLS as distributed by the MLS GRID. Information from the Internet Data Exchange is provided exclusively for consumers’ personal, non-commercial use, and such information may not be used for any purpose other than to identify prospective properties consumers may be interested in purchasing. This data is deemed reliable but is not guaranteed to be accurate by Edina Realty, Inc., or by the MLS. Edina Realty, Inc., is not a multiple listing service (MLS), nor does it offer MLS access.
Copyright 2025 Stellar MLS as distributed by the MLS GRID. All Rights Reserved.
Payment Calculator
Interest rate and annual percentage rate (APR) are based on current market conditions, are for informational purposes only, are subject to change without notice and may be subject to pricing add-ons related to property type, loan amount, loan-to-value, credit score and other variables. Estimated closing costs used in the APR calculation are assumed to be paid by the borrower at closing. If the closing costs are financed, the loan, APR and payment amounts will be higher. If the down payment is less than 20%, mortgage insurance may be required and could increase the monthly payment and APR. Contact us for details. Additional loan programs may be available. Accuracy is not guaranteed, and all products may not be available in all borrower's geographical areas and are based on their individual situation. This is not a credit decision or a commitment to lend.
Sales History & Tax Summary for 8246 Aquila Street
Sales History
| Date | Price | Change |
|---|---|---|
| Currently not available. | ||
Tax Summary
| Tax Year | Estimated Market Value | Total Tax |
|---|---|---|
| Currently not available. | ||
Data powered by ATTOM Data Solutions. Copyright© 2025. Information deemed reliable but not guaranteed.
Schools
Schools nearby 8246 Aquila Street
| Schools in attendance boundaries | Grades | Distance | Rating |
|---|---|---|---|
| Loading... | |||
| Schools nearby | Grades | Distance | Rating |
|---|---|---|---|
| Loading... | |||
Data powered by ATTOM Data Solutions. Copyright© 2025. Information deemed reliable but not guaranteed.
The schools shown represent both the assigned schools and schools by distance based on local school and district attendance boundaries. Attendance boundaries change based on various factors and proximity does not guarantee enrollment eligibility. Please consult your real estate agent and/or the school district to confirm the schools this property is zoned to attend. Information is deemed reliable but not guaranteed.
SchoolDigger ® Rating
The SchoolDigger rating system is a 1-5 scale with 5 as the highest rating. SchoolDigger ranks schools based on test scores supplied by each state's Department of Education. They calculate an average standard score by normalizing and averaging each school's test scores across all tests and grades.
Coming soon properties will soon be on the market, but are not yet available for showings.