$759,000
830 Park Road Englewood, FL 34223
For Sale MLS# D6144879
3 beds 3 baths 1,503 sq ft Single Family
Details for 830 Park Road
MLS# D6144879
Description for 830 Park Road, Englewood, FL, 34223
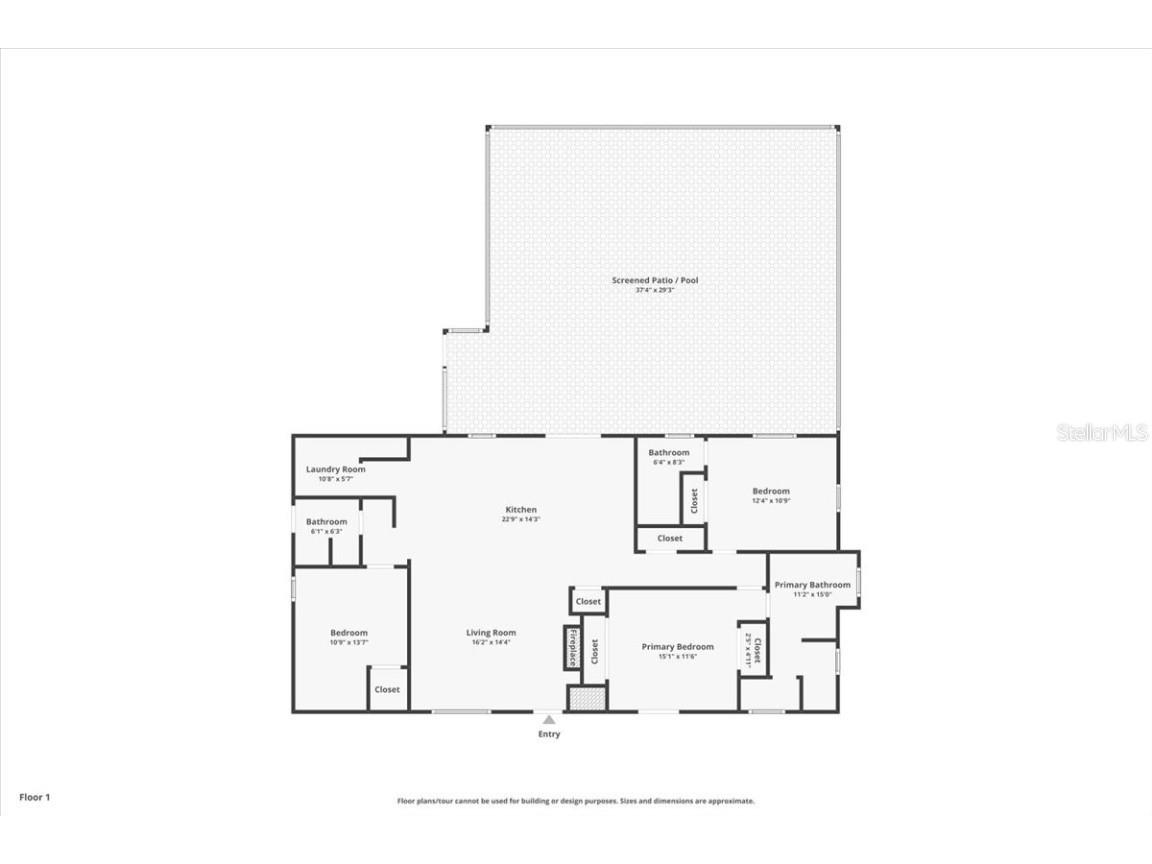
Experience the perfect blend of luxury, privacy, and coastal living in this beautifully renovated waterfront home, ideally positioned on sailboat water with no bridges to Lemon Bay. Located just two homes off the bay on an exclusive private lane of only five residences, this property offers exceptional boating access with a private dock, new boat lift, captain’s walk, additional mooring space for guests or a second vessel, and a convenient small-watercraft launch. Tucked away in the heart of Old Englewood, this tranquil retreat is just a short walk, bike ride, or golf cart ride to vibrant Dearborn Street—home to live music, local dining, boutique shops, the weekly Farmers Market, and community events at the new pavilion. You’re also only one block from Snook’s Marina waterfront restaurant for relaxed, waterside dining. Inside, the home showcases a meticulous, high-end renovation. The open-concept living and dining areas are unified by elegant porcelain plank tile, flowing seamlessly into a stunning chef’s kitchen. Designed for both style and function, the kitchen features premium stainless-steel appliances, a hooded island cooktop, solid wood cabinetry, stone countertops, and a modern tile backsplash. Each of the three bedrooms enjoys its own private, beautifully appointed en-suite bathroom, creating a comfortable and private retreat for family and guests. Step outside to an expansive lanai with a picture-window screen enclosure framing the resort-style pool and spa—the ultimate outdoor oasis. Whether you’re entertaining, soaking up the Florida sunshine, or unwinding after a day on the water, this inviting space is designed to impress. Major upgrades include: Roof (2018) with full wind mitigation report Impact windows and doors - $30k (2023) Boat lift (2024) – $35K Captains walk on dock (2024) Pool accessories (2025) Electrical updates (2025, due to storm) Additional features include lush tropical landscaping, an irrigation system on county water, and a generous laundry room with abundant storage. This rare, upgraded waterfront gem offers unmatched charm, convenience, and coastal access. Whether you’re an avid boater or simply love being steps from the culture and energy of Old Englewood, this home is a must-see. Don’t miss the opportunity to own one of the area’s most desirable waterfront locations.
Listing Information
Property Type: Residential, Single Family Residence
Status: Active
Bedrooms: 3
Bathrooms: 3
Lot Size: 0.27 Acres
Square Feet: 1,503 sq ft
Year Built: 1979
Stories: 1 Story
Construction: Block,Stucco
Subdivision: Lemon Bay Park
Foundation: Slab
County: Sarasota
Room Information
Main Floor
Porch: 10x15
Bedroom 3: 9x11
Bedroom 2: 11x13
Primary Bedroom: 12x12
Kitchen: 10x12
Living Room: 15x17
Bathrooms
Full Baths: 3
Additonal Room Information
Laundry: Laundry Room, Inside
Interior Features
Appliances: Electric Water Heater, Range, Refrigerator, Washer, Microwave, Dishwasher, Disposal, Dryer
Flooring: Ceramic Tile
Doors/Windows: Window Treatments
Additional Interior Features: Ceiling Fan(s), Window Treatments, Living/Dining Room, Open Floorplan, Stone Counters, Wood Cabinets, Built-in Features, Split Bedrooms
Utilities
Water: Public
Sewer: Public Sewer
Other Utilities: Cable Connected,Municipal Utilities,Water Connected
Cooling: Ceiling Fan(s), Central Air
Heating: Electric, Central
Exterior / Lot Features
Roof: Metal
Pool: In Ground, Screen Enclosure, Gunite
Lot View: Canal,Garden,Intercoastal,Pool,Trees/Woods,Water
Fencing: Wood, Other
Additional Exterior/Lot Features: French Patio Doors, Outdoor Shower, Covered, Landscaped, Outside City Limits
Waterfront Details
Water Front Features: Gulf Access, Canal Access
Community Features
Community Features: Street Lights
Driving Directions
McCall Rd North then left on E Dearborn Sr right on Old Englewood Rd left on Yale then right on Oak then left on Park Dr.
Financial Considerations
Terms: Cash,Conventional
Tax/Property ID: 0497040024
Tax Amount: 3441
Tax Year: 2025
A broker reciprocity listing courtesy: TALL PINES REALTY
Based on information provided by Stellar MLS as distributed by the MLS GRID. Information from the Internet Data Exchange is provided exclusively for consumers’ personal, non-commercial use, and such information may not be used for any purpose other than to identify prospective properties consumers may be interested in purchasing. This data is deemed reliable but is not guaranteed to be accurate by Edina Realty, Inc., or by the MLS. Edina Realty, Inc., is not a multiple listing service (MLS), nor does it offer MLS access.
Copyright 2025 Stellar MLS as distributed by the MLS GRID. All Rights Reserved.
Payment Calculator
Interest rate and annual percentage rate (APR) are based on current market conditions, are for informational purposes only, are subject to change without notice and may be subject to pricing add-ons related to property type, loan amount, loan-to-value, credit score and other variables. Estimated closing costs used in the APR calculation are assumed to be paid by the borrower at closing. If the closing costs are financed, the loan, APR and payment amounts will be higher. If the down payment is less than 20%, mortgage insurance may be required and could increase the monthly payment and APR. Contact us for details. Additional loan programs may be available. Accuracy is not guaranteed, and all products may not be available in all borrower's geographical areas and are based on their individual situation. This is not a credit decision or a commitment to lend.
Sales History & Tax Summary for 830 Park Road
Sales History
| Date | Price | Change |
|---|---|---|
| Currently not available. | ||
Tax Summary
| Tax Year | Estimated Market Value | Total Tax |
|---|---|---|
| Currently not available. | ||
Data powered by ATTOM Data Solutions. Copyright© 2025. Information deemed reliable but not guaranteed.
Schools
Schools nearby 830 Park Road
| Schools in attendance boundaries | Grades | Distance | Rating |
|---|---|---|---|
| Loading... | |||
| Schools nearby | Grades | Distance | Rating |
|---|---|---|---|
| Loading... | |||
Data powered by ATTOM Data Solutions. Copyright© 2025. Information deemed reliable but not guaranteed.
The schools shown represent both the assigned schools and schools by distance based on local school and district attendance boundaries. Attendance boundaries change based on various factors and proximity does not guarantee enrollment eligibility. Please consult your real estate agent and/or the school district to confirm the schools this property is zoned to attend. Information is deemed reliable but not guaranteed.
SchoolDigger ® Rating
The SchoolDigger rating system is a 1-5 scale with 5 as the highest rating. SchoolDigger ranks schools based on test scores supplied by each state's Department of Education. They calculate an average standard score by normalizing and averaging each school's test scores across all tests and grades.
Coming soon properties will soon be on the market, but are not yet available for showings.