8304 Revels Road Riverview, FL 33569
For Sale MLS# TB8431135
6 beds 3 baths 2,243 sq ft Single Family
Details for 8304 Revels Road
MLS# TB8431135
Description for 8304 Revels Road, Riverview, FL, 33569
Welcome to your private oasis on the Alafia River! This stunning 6-bedroom, 3-bath home sits on 1.62 acres surrounded by nature, offering both tranquility and breathtaking views. Enjoy direct river access perfect for boating, kayaking, or simply relaxing on the water’s edge. Inside, the spacious layout provides room for the entire family with multiple living and entertaining areas. Large windows invite natural light and capture serene views of the river and lush landscape. The kitchen and dining spaces are ideal for gatherings, while the bedrooms offer comfort and privacy. Step outside and experience the beauty of Florida living—towering trees, abundant wildlife, and plenty of room for outdoor activities. Whether you’re seeking a peaceful retreat or a place to host family and friends, this property offers the best of both worlds. All this, while still conveniently located near shopping, dining, and major roadways for an easy commute. Don’t miss the chance to own this rare riverfront gem in Riverview! This property comes with a 3-2-1 rate buydown, reducing the buyer’s interest rate by 3% for the first year of their loan, 2% the second year and 1% the third. Buyer is not obligated to use Matt Weaver of CrossCountry Mortgage to have offer accepted however must use Matt Weaver to receive the buydown. The Matt Weaver Team can issue loan approvals in as little as 5 days and close in 10. Restrictions apply. Matt Weaver NMLS175651.
Listing Information
Property Type: Residential, Single Family Residence
Status: Active
Bedrooms: 6
Bathrooms: 3
Lot Size: 1.62 Acres
Square Feet: 2,243 sq ft
Year Built: 1988
Stories: 2 Story
Construction: Wood Frame
Subdivision: Unplatted
Foundation: Slab
County: Hillsborough
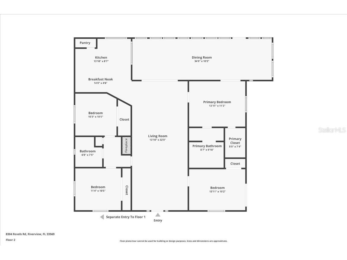
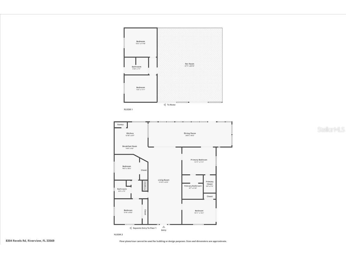
Room Information
Main Floor
Kitchen:
Upper Floor
Primary Bedroom:
Primary Bathroom:
Living Room:
Bathroom 1:
Bathrooms
Full Baths: 3
Additonal Room Information
Laundry: Inside, Laundry Closet
Interior Features
Appliances: Water Purifier, Range Hood, Electric Water Heater, Built-In Oven, Cooktop, Dishwasher, Dryer, Microwave, Refrigerator, Washer
Flooring: Ceramic Tile,Luxury Vinyl
Fireplaces: Living Room, Wood Burning
Additional Interior Features: High Ceilings, Walk-In Closet(s), Upper Level Primary, Stone Counters, Ceiling Fan(s), Vaulted Ceiling(s)
Utilities
Water: Private
Sewer: Private Sewer
Other Utilities: Electricity Available
Cooling: Ceiling Fan(s), Central Air
Heating: Central
Exterior / Lot Features
Roof: Metal
Lot View: River,Water
Lot Dimensions: 127.6x200
Additional Exterior/Lot Features: Balcony, Rain Gutters, Outdoor Grill, Garden, Lighting, Balcony
Waterfront Details
Water Front Features: River Access, River Front
Driving Directions
From Riverview, take US-301 South. Turn left onto Rhodine Road and continue east. Turn right onto Boyette Road, then left onto Balm Riverview Road. Continue south and turn left onto Riverview Drive. Turn right onto Revels Road, home will be on the left.
Financial Considerations
Terms: Cash,Conventional
Tax/Property ID: U-15-30-20-ZZZ-000002-88990.0
Tax Amount: 10592.65
Tax Year: 2024
A broker reciprocity listing courtesy: IMPACT REALTY TAMPA BAY
Based on information provided by Stellar MLS as distributed by the MLS GRID. Information from the Internet Data Exchange is provided exclusively for consumers’ personal, non-commercial use, and such information may not be used for any purpose other than to identify prospective properties consumers may be interested in purchasing. This data is deemed reliable but is not guaranteed to be accurate by Edina Realty, Inc., or by the MLS. Edina Realty, Inc., is not a multiple listing service (MLS), nor does it offer MLS access.
Copyright 2026 Stellar MLS as distributed by the MLS GRID. All Rights Reserved.
Payment Calculator
Interest rate and annual percentage rate (APR) are based on current market conditions, are for informational purposes only, are subject to change without notice and may be subject to pricing add-ons related to property type, loan amount, loan-to-value, credit score and other variables. Estimated closing costs used in the APR calculation are assumed to be paid by the borrower at closing. If the closing costs are financed, the loan, APR and payment amounts will be higher. If the down payment is less than 20%, mortgage insurance may be required and could increase the monthly payment and APR. Contact us for details. Additional loan programs may be available. Accuracy is not guaranteed, and all products may not be available in all borrower's geographical areas and are based on their individual situation. This is not a credit decision or a commitment to lend.
Sales History & Tax Summary for 8304 Revels Road
Sales History
| Date | Price | |
|---|---|---|
| Currently not available. | ||
Tax Summary
| Tax Year | Estimated Market Value | Total Tax |
|---|---|---|
| Currently not available. | ||
Data powered by ATTOM Data Solutions. Copyright© 2026. Information deemed reliable but not guaranteed.
Schools
Schools nearby 8304 Revels Road
| Schools in attendance boundaries | Grades | Distance | Rating |
|---|---|---|---|
| Loading... | |||
| Schools nearby | Grades | Distance | Rating |
|---|---|---|---|
| Loading... | |||
Data powered by ATTOM Data Solutions. Copyright© 2026. Information deemed reliable but not guaranteed.
The schools shown represent both the assigned schools and schools by distance based on local school and district attendance boundaries. Attendance boundaries change based on various factors and proximity does not guarantee enrollment eligibility. Please consult your real estate agent and/or the school district to confirm the schools this property is zoned to attend. Information is deemed reliable but not guaranteed.
SchoolDigger ® Rating
The SchoolDigger rating system is a 1-5 scale with 5 as the highest rating. SchoolDigger ranks schools based on test scores supplied by each state's Department of Education. They calculate an average standard score by normalizing and averaging each school's test scores across all tests and grades.
Coming soon properties will soon be on the market, but are not yet available for showings.