$195,000
8308 Princess Court Palmetto, FL 34221
For Sale MLS# TB8453497
2 beds 2 baths 1,456 sq ft Single Family
Details for 8308 Princess Court
MLS# TB8453497
Description for 8308 Princess Court, Palmetto, FL, 34221
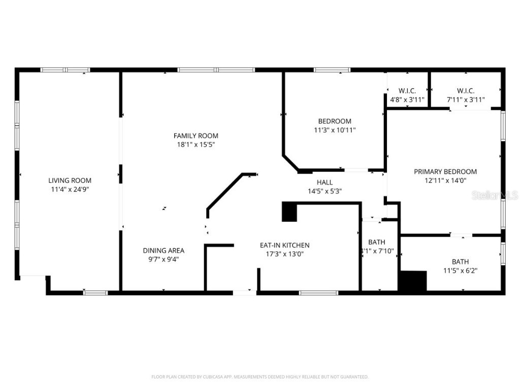
2 BR, 2 BA, large, manufactured home located in the Imperial Lakes Estates community. This spacious 1,450 sq ft home is furnished and move-in ready. Featuring a brand new 2025 roof, attached storage shed and extra-wide carport. Imperial Lakes Estates is an active, secured gated 55+ community, that is resident-owned (you own your lot, there is no rent! HOA fees only.) Amenities include 2 heated pools, a heated spa, tennis courts, shuffleboard, pickle ball and a 65-acre lake. The 12,000+ Sq. ft. clubhouse has a full kitchen, game room, 2 pool tables and entertainment area. We are a pet-friendly community (25 lb. limit). Imperial Lakes is located in a growing Parrish/Palmetto area, close to grocery stores and the Ellenton Outlet Mall. Easy access to I-75, a convenient drive to Sarasota, downtown Bradenton, Anna Maria beaches and St. Petersburg.
Listing Information
Property Type: Residential, Manufactured Home
Status: Active
Bedrooms: 2
Bathrooms: 2
Lot Size: 0.11 Acres
Square Feet: 1,456 sq ft
Year Built: 1988
Stories: 1 Story
Construction: Metal Siding
Subdivision: Imperial Lakes Estates
Foundation: Other
County: Manatee
School Information
Elementary: Barbara A. Harvey Elementary
Middle: Buffalo Creek Middle
High: Parrish Community High
Room Information
Main Floor
Living Room:
Dining Room:
Workshop:
Kitchen:
Family Room:
Bathroom 2:
Bedroom 2:
Primary Bathroom:
Primary Bedroom:
Bathrooms
Full Baths: 2
Additonal Room Information
Laundry: Outside
Interior Features
Appliances: Washer, Dishwasher, Dryer, Range, Refrigerator, Range Hood, Electric Water Heater
Flooring: Carpet,Tile,Vinyl
Additional Interior Features: Walk-In Closet(s)
Utilities
Water: Public
Sewer: Public Sewer
Other Utilities: Cable Connected,Electricity Connected,Sewer Connected,Water Connected
Cooling: Central Air
Heating: Central
Exterior / Lot Features
Parking Description: Covered
Roof: Membrane
Pool: Community
Additional Exterior/Lot Features: Awning(s), Rain Gutters, Private Road
Out Buildings: Shed(s)
Community Features
Community Features: Pool, Tennis Court(s), Clubhouse, Golf, Sidewalks, Gated, Park
Security Features: Gated Community
Homeowners Association: Yes
HOA Dues: $181 / Monthly
Driving Directions
I-75 Exit 229 to Buffalo Road
Financial Considerations
Terms: Cash,Conventional
Tax/Property ID: 647112200
Tax Amount: 1960.81
Tax Year: 2024
A broker reciprocity listing courtesy: LISTED SIMPLY
Based on information provided by Stellar MLS as distributed by the MLS GRID. Information from the Internet Data Exchange is provided exclusively for consumers’ personal, non-commercial use, and such information may not be used for any purpose other than to identify prospective properties consumers may be interested in purchasing. This data is deemed reliable but is not guaranteed to be accurate by Edina Realty, Inc., or by the MLS. Edina Realty, Inc., is not a multiple listing service (MLS), nor does it offer MLS access.
Copyright 2025 Stellar MLS as distributed by the MLS GRID. All Rights Reserved.
Payment Calculator
Interest rate and annual percentage rate (APR) are based on current market conditions, are for informational purposes only, are subject to change without notice and may be subject to pricing add-ons related to property type, loan amount, loan-to-value, credit score and other variables. Estimated closing costs used in the APR calculation are assumed to be paid by the borrower at closing. If the closing costs are financed, the loan, APR and payment amounts will be higher. If the down payment is less than 20%, mortgage insurance may be required and could increase the monthly payment and APR. Contact us for details. Additional loan programs may be available. Accuracy is not guaranteed, and all products may not be available in all borrower's geographical areas and are based on their individual situation. This is not a credit decision or a commitment to lend.
Sales History & Tax Summary for 8308 Princess Court
Sales History
| Date | Price | Change |
|---|---|---|
| Currently not available. | ||
Tax Summary
| Tax Year | Estimated Market Value | Total Tax |
|---|---|---|
| Currently not available. | ||
Data powered by ATTOM Data Solutions. Copyright© 2025. Information deemed reliable but not guaranteed.
Schools
Schools nearby 8308 Princess Court
| Schools in attendance boundaries | Grades | Distance | Rating |
|---|---|---|---|
| Loading... | |||
| Schools nearby | Grades | Distance | Rating |
|---|---|---|---|
| Loading... | |||
Data powered by ATTOM Data Solutions. Copyright© 2025. Information deemed reliable but not guaranteed.
The schools shown represent both the assigned schools and schools by distance based on local school and district attendance boundaries. Attendance boundaries change based on various factors and proximity does not guarantee enrollment eligibility. Please consult your real estate agent and/or the school district to confirm the schools this property is zoned to attend. Information is deemed reliable but not guaranteed.
SchoolDigger ® Rating
The SchoolDigger rating system is a 1-5 scale with 5 as the highest rating. SchoolDigger ranks schools based on test scores supplied by each state's Department of Education. They calculate an average standard score by normalizing and averaging each school's test scores across all tests and grades.
Coming soon properties will soon be on the market, but are not yet available for showings.