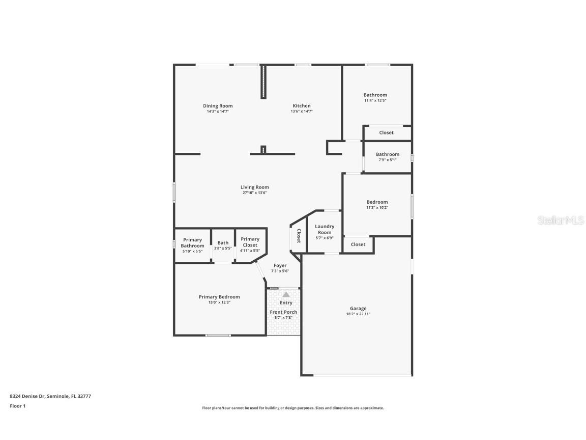
8324 Denise Drive Seminole, FL 33777
For Sale MLS# TB8461738
3 beds 2 baths 1,526 sq ft Single Family
Details for 8324 Denise Drive
MLS# TB8461738
Description for 8324 Denise Drive, Seminole, FL, 33777
Move-in-ready lakefront home in Seminole with no HOA, modern updates, and a fenced yard—just minutes from Gulf beaches, parks, and top local schools. This beautifully updated 3-bedroom, 2-bath home offers peaceful water views, functional living space, and upgrades ideal for everyday family living. Set on a tranquil pond, the home features scenic lake views from the kitchen, dining area, and backyard, creating a relaxing backdrop for meals, playtime, and entertaining. Inside, the light and bright interior has been refreshed with new paint, luxury vinyl plank flooring throughout (no carpet), and an inviting, easy-to-maintain layout. The updated kitchen showcases quartz countertops and flows seamlessly into the dining area, where sliding doors open to the fenced backyard with direct lake access. Both bathrooms have been tastefully updated with modern tile work and finishes. Major improvements include a new roof in 2023 and a two-car garage, offering peace of mind and everyday convenience. With no HOA or fees, there’s flexibility to truly enjoy the home and outdoor space. Ideally located approximately 6.5 miles from the Gulf beaches, just ½ mile from Lake Seminole Park trails, and close to Starkey Elementary School, Osceola Middle School, and Osceola High School, this home offers quick access to outdoor recreation, shopping, dining, and everyday conveniences—an excellent opportunity to enjoy Florida living at its best. Home was not impacted by any flooding during the historic Hurricanes of Helene or Milton in 2024. Homeowner Currently Paying : Approx $3,800/year for homeowner insurance and $2,198 for flood insurance
Listing Information
Property Type: Residential, Single Family Residence
Status: Active
Bedrooms: 3
Bathrooms: 2
Lot Size: 0.16 Acres
Square Feet: 1,526 sq ft
Year Built: 1980
Garage: Yes
Stories: 1 Story
Construction: Block
Subdivision: Seminole Pines Sub Phase Iii
Foundation: Slab
County: Pinellas
Room Information
Main Floor
Living Room: 13x13
Kitchen: 13x13
Primary Bedroom: 15x12
Dining Room: 16x14
Bathrooms
Full Baths: 2
Additonal Room Information
Laundry: Laundry Room
Interior Features
Appliances: Dishwasher, Disposal, Microwave, Range, Refrigerator, Electric Water Heater
Flooring: Laminate,Tile
Doors/Windows: Blinds
Additional Interior Features: Cathedral Ceiling(s), Living/Dining Room, Eat-In Kitchen, Kitchen/Family Room Combo, Walk-In Closet(s), Open Floorplan
Utilities
Water: Public
Sewer: Public Sewer
Other Utilities: Cable Available,Electricity Connected,High Speed Internet Available,Municipal Utilities,Sewer Connected,Water Connected
Cooling: Central Air
Heating: Central
Exterior / Lot Features
Attached Garage: Attached Garage
Garage Spaces: 2
Parking Description: Garage, Garage Door Opener, driveway
Roof: Shingle
Lot View: Canal,Water
Fencing: Vinyl, Wood, fenced
Additional Exterior/Lot Features: Storage
Driving Directions
Heading south on Starkey make a right onto 86th Ave. Travel straight and make a left on Denise Dr. Property will be on your right.
Financial Considerations
Tax/Property ID: 26-30-15-80057-000-0230
Tax Amount: 6268
Tax Year: 2025
A broker reciprocity listing courtesy: PARTNER AGENT REALTY INC
Based on information provided by Stellar MLS as distributed by the MLS GRID. Information from the Internet Data Exchange is provided exclusively for consumers’ personal, non-commercial use, and such information may not be used for any purpose other than to identify prospective properties consumers may be interested in purchasing. This data is deemed reliable but is not guaranteed to be accurate by Edina Realty, Inc., or by the MLS. Edina Realty, Inc., is not a multiple listing service (MLS), nor does it offer MLS access.
Copyright 2026 Stellar MLS as distributed by the MLS GRID. All Rights Reserved.
Payment Calculator
Interest rate and annual percentage rate (APR) are based on current market conditions, are for informational purposes only, are subject to change without notice and may be subject to pricing add-ons related to property type, loan amount, loan-to-value, credit score and other variables. Estimated closing costs used in the APR calculation are assumed to be paid by the borrower at closing. If the closing costs are financed, the loan, APR and payment amounts will be higher. If the down payment is less than 20%, mortgage insurance may be required and could increase the monthly payment and APR. Contact us for details. Additional loan programs may be available. Accuracy is not guaranteed, and all products may not be available in all borrower's geographical areas and are based on their individual situation. This is not a credit decision or a commitment to lend.
Sales History & Tax Summary for 8324 Denise Drive
Sales History
| Date | Price | |
|---|---|---|
| Currently not available. | ||
Tax Summary
| Tax Year | Estimated Market Value | Total Tax |
|---|---|---|
| Currently not available. | ||
Data powered by ATTOM Data Solutions. Copyright© 2026. Information deemed reliable but not guaranteed.
Schools
Schools nearby 8324 Denise Drive
| Schools in attendance boundaries | Grades | Distance | Rating |
|---|---|---|---|
| Loading... | |||
| Schools nearby | Grades | Distance | Rating |
|---|---|---|---|
| Loading... | |||
Data powered by ATTOM Data Solutions. Copyright© 2026. Information deemed reliable but not guaranteed.
The schools shown represent both the assigned schools and schools by distance based on local school and district attendance boundaries. Attendance boundaries change based on various factors and proximity does not guarantee enrollment eligibility. Please consult your real estate agent and/or the school district to confirm the schools this property is zoned to attend. Information is deemed reliable but not guaranteed.
SchoolDigger ® Rating
The SchoolDigger rating system is a 1-5 scale with 5 as the highest rating. SchoolDigger ranks schools based on test scores supplied by each state's Department of Education. They calculate an average standard score by normalizing and averaging each school's test scores across all tests and grades.
Coming soon properties will soon be on the market, but are not yet available for showings.