$379,900
Off-Market Date: 01/12/20268330 E 10th Street Stockton, MN 55987
Pending MLS# 6826037
4 beds 2 baths 2,580 sq ft Single Family
Details for 8330 E 10th Street
MLS# 6826037
Description for 8330 E 10th Street, Stockton, MN, 55987
Just minutes from Winona, this beautifully updated 4-bedroom, 2-bath home is tucked into the serene bluffs of Stockton—offering the perfect blend of comfort, space, and small-town charm.Inside, you’ll love the refreshed kitchen with modern updates, new flooring, and fresh paint throughout, creating a bright and move-in-ready feel. The layout provides room to grow, work, and relax, with two full bathrooms and generous bedroom sizes.Step outside to an amazing yard—ideal for playing, gardening, hosting gatherings, or simply soaking up the views. The great deck extends your living space and offers the perfect spot for morning coffee or evening unwinding.A 2+ car garage with TWO service doors gives you convenience, storage, and easy access for projects, toys, or outdoor gear.If you’ve been looking for peaceful bluff-side living with quick access to Winona, this is the one!
Listing Information
Property Type: Residential, Single Family
Status: Pending
Bedrooms: 4
Bathrooms: 2
Lot Size: 0.38 Acres
Square Feet: 2,580 sq ft
Year Built: 1999
Foundation: 1,234 sq ft
Garage: Yes
Stories: Modified Two Story
County: Winona
Days On Market: 31
Construction Status: Previously Owned
School Information
District: 0861 - Winona Area Public Schools
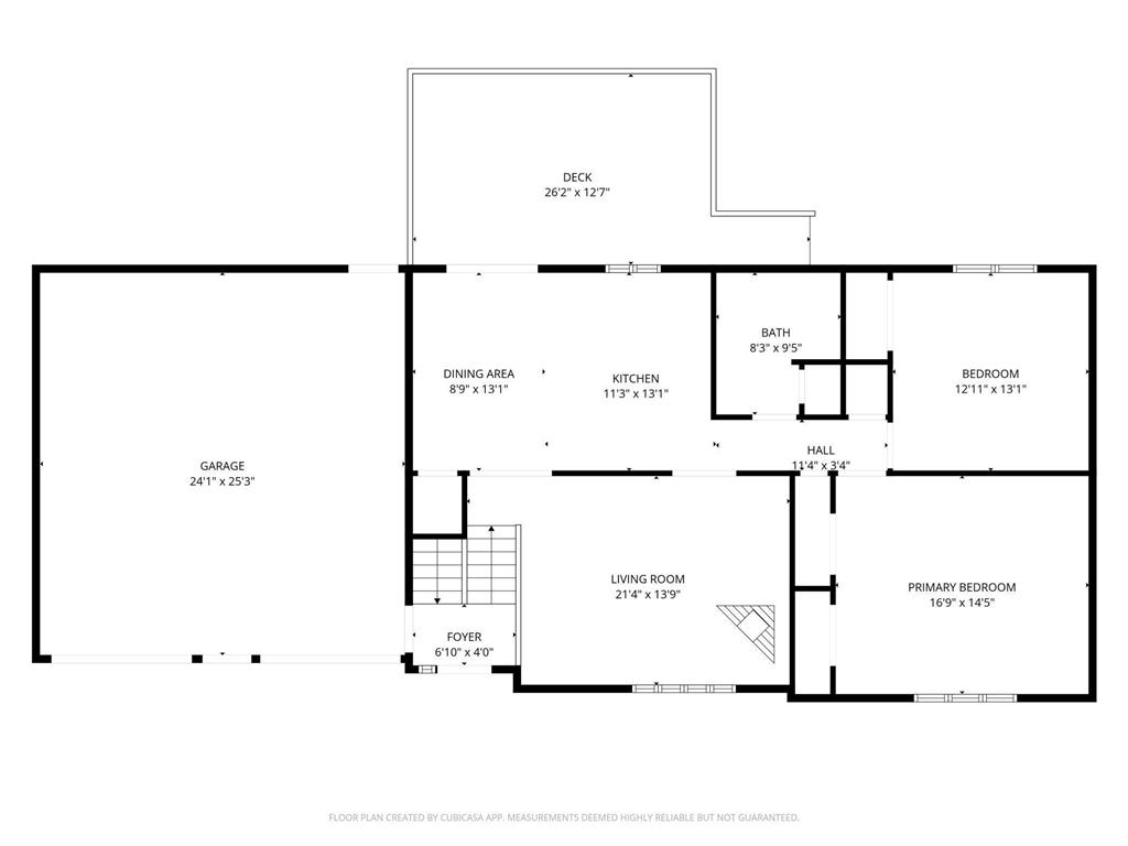
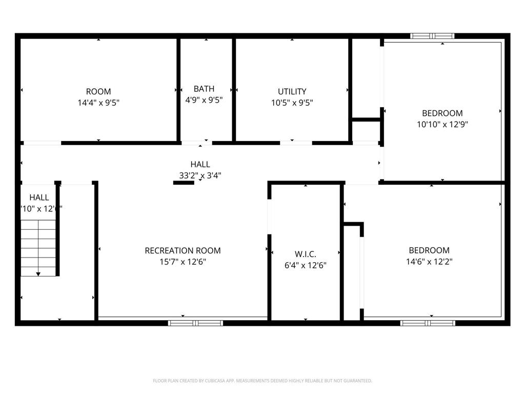
Room Information
Main Floor
Bedroom 1: 16.9x14.5
Bedroom 2: 13.1x12.11
Deck: 26.2x12.7
Dining Room: 13.1x8.9
Kitchen: 11.3x13.1
Living Room: 21.4x13.9
Lower Floor
Bedroom 3: 10.1x12.9
Bedroom 3: 10.1x12.9
Bedroom 4: 14.6x12.2
Bonus Room: 14.4x9.5
Family Room: 15.7x12.6
Utility Room: 10.5x9.5
Bathrooms
Full Baths: 2
Additonal Room Information
Bath Description: Main Floor 3/4 Bath
Interior Features
Square Footage above: 1,290 sq ft
Square Footage below: 1,290 sq ft
Appliances: Microwave, Range, Dishwasher, Washer, Refrigerator, Dryer
Basement: Full
Utilities
Water: City Water/Connected
Sewer: City Sewer/Connected
Cooling: Central
Heating: Forced Air, Natural Gas
Exterior / Lot Features
Attached Garage: Attached Garage
Garage Spaces: 2
Parking Description: Attached Garage, Garage Sq Ft - 728.0
Exterior: Vinyl
Lot Dimensions: 100x165
Zoning: Residential-Single Family
Driving Directions
HWY 61 N to Hwy 14 W. Left on to S Broadway. Right on to Old Country Rd 23. Left on to E 10th St. House is on the left.
Financial Considerations
Tax/Property ID: 300000473
Tax Amount: 2892
Tax Year: 2025
HomeStead Description: Homesteaded
A broker reciprocity listing courtesy: Coldwell Banker River Valley, REALTORS
The data relating to real estate for sale on this web site comes in part from the Broker Reciprocity℠ Program of the Regional Multiple Listing Service of Minnesota, Inc. Real estate listings held by brokerage firms other than Edina Realty, Inc. are marked with the Broker Reciprocity℠ logo or the Broker Reciprocity℠ thumbnail and detailed information about them includes the name of the listing brokers. Edina Realty, Inc. is not a Multiple Listing Service (MLS), nor does it offer MLS access. This website is a service of Edina Realty, Inc., a broker Participant of the Regional Multiple Listing Service of Minnesota, Inc. IDX information is provided exclusively for consumers personal, non-commercial use and may not be used for any purpose other than to identify prospective properties consumers may be interested in purchasing. Open House information is subject to change without notice. Information deemed reliable but not guaranteed.
Copyright 2026 Regional Multiple Listing Service of Minnesota, Inc. All Rights Reserved.
Sales History & Tax Summary for 8330 E 10th Street
Sales History
| Date | Price | |
|---|---|---|
| Currently not available. | ||
Tax Summary
| Tax Year | Estimated Market Value | Total Tax |
|---|---|---|
| Currently not available. | ||
Data powered by ATTOM Data Solutions. Copyright© 2026. Information deemed reliable but not guaranteed.
Schools
Schools nearby 8330 E 10th Street
| Schools in attendance boundaries | Grades | Distance | Rating |
|---|---|---|---|
| Loading... | |||
| Schools nearby | Grades | Distance | Rating |
|---|---|---|---|
| Loading... | |||
Data powered by ATTOM Data Solutions. Copyright© 2026. Information deemed reliable but not guaranteed.
The schools shown represent both the assigned schools and schools by distance based on local school and district attendance boundaries. Attendance boundaries change based on various factors and proximity does not guarantee enrollment eligibility. Please consult your real estate agent and/or the school district to confirm the schools this property is zoned to attend. Information is deemed reliable but not guaranteed.
SchoolDigger ® Rating
The SchoolDigger rating system is a 1-5 scale with 5 as the highest rating. SchoolDigger ranks schools based on test scores supplied by each state's Department of Education. They calculate an average standard score by normalizing and averaging each school's test scores across all tests and grades.
Coming soon properties will soon be on the market, but are not yet available for showings.