8332 Gower Trail Wildwood, FL 34785
For Sale MLS# OM714725
3 beds 3 baths 1,464 sq ft Townhouse/Twinhome
Details for 8332 Gower Trail
MLS# OM714725
Description for 8332 Gower Trail, Wildwood, FL, 34785
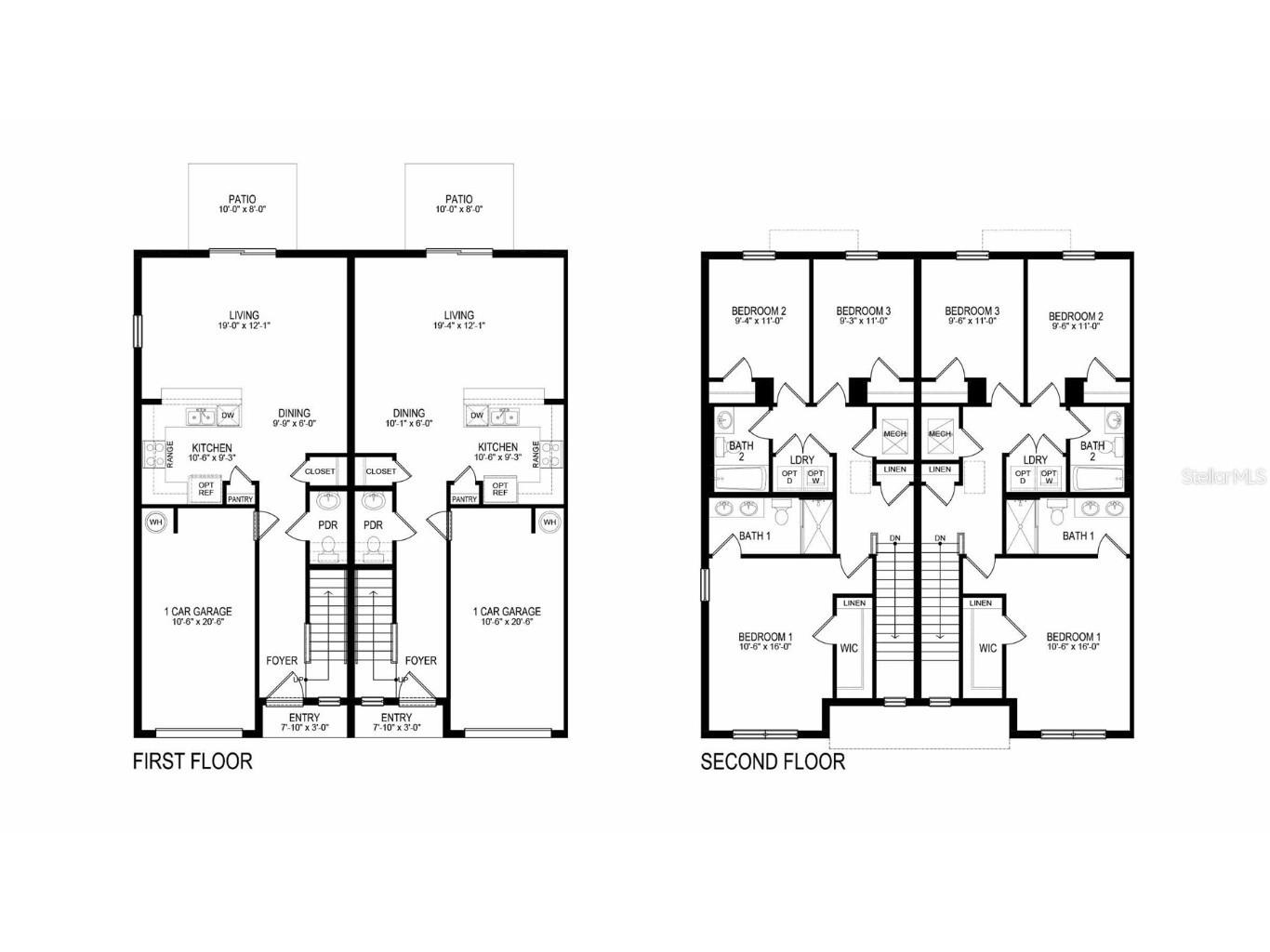
Under Construction. This two-story townhome has an open concept downstairs layout that includes a large open kitchen, a powder room, and spacious family room that overlooks a patio. The second floor includes a spacious Primary Suite with an ensuite bathroom, two additional bedrooms, a 2nd full bathroom, and a laundry area. This home comes with appliances including a built-in dishwasher, electric range, microwave. Pictures, photographs, colors, features, and sizes are for illustration purposes only and will vary from the homes as built. Home and community information including pricing, included features, terms, availability and amenities are subject to change and prior sale at any time without notice or obligation. CRC057592.
Listing Information
Property Type: Residential, Townhouse
Status: Active
Bedrooms: 3
Bathrooms: 3
Lot Size: 0.04 Acres
Square Feet: 1,464 sq ft
Year Built: 2025
Garage: Yes
Stories: 2 Story
Construction: Block
Construction Display: New Construction
Subdivision: Twisted Oaks
Builder: DR Horton INC
Foundation: Slab
County: Sumter
Construction Status: Under Construction
School Information
Elementary: Wildwood Elementary
Middle: Wildwood Middle
High: Wildwood High
Room Information
Main Floor
Porch: 8x10
Great Room: 12x19
Kitchen: 9x10
Upper Floor
Primary Bedroom: 16x10
Bathrooms
Full Baths: 2
1/2 Baths: 1
Additonal Room Information
Laundry: Laundry Room
Interior Features
Appliances: Dishwasher, Microwave, Range
Flooring: Carpet,Luxury Vinyl
Additional Interior Features: Open Floorplan
Utilities
Water: Public
Sewer: Public Sewer
Other Utilities: Other
Cooling: Central Air
Heating: Electric, Heat Pump
Exterior / Lot Features
Attached Garage: Attached Garage
Garage Spaces: 1
Roof: Shingle
Pool: Community
Additional Exterior/Lot Features: Sprinkler/Irrigation
Community Features
Community Features: Pool, Clubhouse
HOA Dues Include: Recreation Facilities, Pool(s), Association Management
Homeowners Association: Yes
HOA Dues: $124 / Monthly
Driving Directions
From I-75 South, take exit 329 towards Wildwood and turn right onto FL-44 E. In 0.3 miles, turn left onto Sumter County Rd 229 and travel for 1.3 miles. Turn right onto Co Rd 228 for 1 mile, then turn right onto Sumter County Rd 462 and travel for 2.2 miles. Turn right onto US-301 S for 0.5 miles and community entrance is on your right.
Financial Considerations
Tax/Property ID: D31B129
Tax Year: 2025
A broker reciprocity listing courtesy: DR HORTON REALTY OF WEST CENTRAL FLORIDA
Based on information provided by Stellar MLS as distributed by the MLS GRID. Information from the Internet Data Exchange is provided exclusively for consumers’ personal, non-commercial use, and such information may not be used for any purpose other than to identify prospective properties consumers may be interested in purchasing. This data is deemed reliable but is not guaranteed to be accurate by Edina Realty, Inc., or by the MLS. Edina Realty, Inc., is not a multiple listing service (MLS), nor does it offer MLS access.
Copyright 2025 Stellar MLS as distributed by the MLS GRID. All Rights Reserved.
Payment Calculator
Interest rate and annual percentage rate (APR) are based on current market conditions, are for informational purposes only, are subject to change without notice and may be subject to pricing add-ons related to property type, loan amount, loan-to-value, credit score and other variables. Estimated closing costs used in the APR calculation are assumed to be paid by the borrower at closing. If the closing costs are financed, the loan, APR and payment amounts will be higher. If the down payment is less than 20%, mortgage insurance may be required and could increase the monthly payment and APR. Contact us for details. Additional loan programs may be available. Accuracy is not guaranteed, and all products may not be available in all borrower's geographical areas and are based on their individual situation. This is not a credit decision or a commitment to lend.
Sales History & Tax Summary for 8332 Gower Trail
Sales History
| Date | Price | Change |
|---|---|---|
| Currently not available. | ||
Tax Summary
| Tax Year | Estimated Market Value | Total Tax |
|---|---|---|
| Currently not available. | ||
Data powered by ATTOM Data Solutions. Copyright© 2025. Information deemed reliable but not guaranteed.
Schools
Schools nearby 8332 Gower Trail
| Schools in attendance boundaries | Grades | Distance | Rating |
|---|---|---|---|
| Loading... | |||
| Schools nearby | Grades | Distance | Rating |
|---|---|---|---|
| Loading... | |||
Data powered by ATTOM Data Solutions. Copyright© 2025. Information deemed reliable but not guaranteed.
The schools shown represent both the assigned schools and schools by distance based on local school and district attendance boundaries. Attendance boundaries change based on various factors and proximity does not guarantee enrollment eligibility. Please consult your real estate agent and/or the school district to confirm the schools this property is zoned to attend. Information is deemed reliable but not guaranteed.
SchoolDigger ® Rating
The SchoolDigger rating system is a 1-5 scale with 5 as the highest rating. SchoolDigger ranks schools based on test scores supplied by each state's Department of Education. They calculate an average standard score by normalizing and averaging each school's test scores across all tests and grades.
Coming soon properties will soon be on the market, but are not yet available for showings.