8338 Quimby Circle Davenport, FL 33896
Pending MLS# O6289579
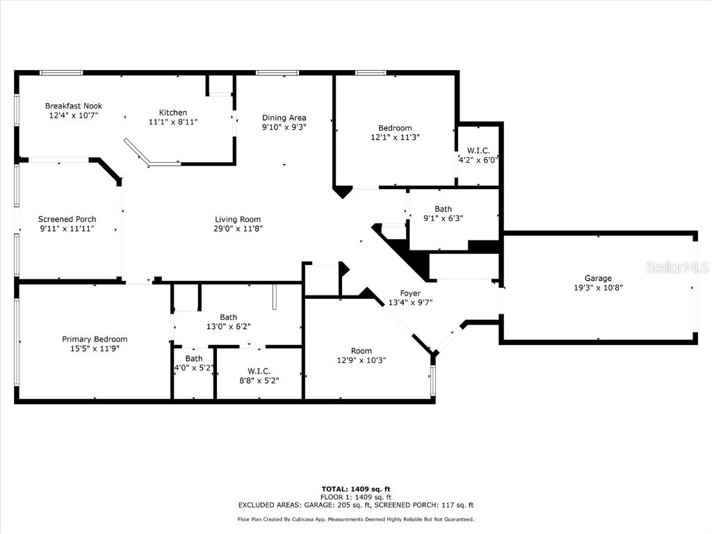
2 beds 2 baths 1,504 sq ft Condo
Details for 8338 Quimby Circle
MLS# O6289579
Description for 8338 Quimby Circle, Davenport, FL, 33896
Under contract-accepting backup offers. Major price reduction — seller is motivated and has priced this home to sell. With the right offer, the seller is also offering a contribution toward a new refrigerator. This immaculate 2-bedroom, 2-bath ground-floor corner unit with an additional private flex room is an exceptional value in the gated Bella Trae community. This desirable end unit offers enhanced privacy, open space to the side, extra windows that fill the home with natural light, and peaceful wooded views from the back. The flexible bonus room is ideal for a home office, guest space, or den. The open-concept living and dining area creates a welcoming flow, while the screened lanai provides a quiet outdoor retreat surrounded by nature. Located just two exits from Disney, the property is conveniently close to shopping, dining, and the Bella Trae clubhouse, giving easy access to the community’s resort-style amenities. Bella Trae features a luxurious clubhouse with a state-of-the-art fitness center, heated pool and spa, billiards room, library, social spaces, and tennis and pickleball courts. This home also includes a garage and private driveway, adding everyday convenience. Meticulously maintained by its original owner and only lightly used, the condo remains in outstanding condition. At this price, you can enjoy a phenomenal, maintenance-free lifestyle in one of the area’s most desirable communities. This is a rare opportunity to own a private end-unit in a prime location — schedule your showing today.
Listing Information
Property Type: Residential, Condominium
Status: Pending
Bedrooms: 2
Bathrooms: 2
Lot Size: 0.25 Acres
Square Feet: 1,504 sq ft
Year Built: 2006
Garage: Yes
Stories: 1 Story
Construction: Block,Stucco
Subdivision: Promenades At Bellatrae Condo Ph 3 Bldg 26
Builder: Pulte
Foundation: Slab
County: Osceola
Room Information
Main Floor
Bonus Room: 10.3x12.9
Bedroom 2: 11.3x12.1
Primary Bedroom: 11.9x15.5
Living Room: 11.8x29
Dinette: 10.7x12.4
Dining Room: 9.3x9.1
Kitchen: 8.11x11.1
Bathrooms
Full Baths: 2
Additonal Room Information
Laundry: Laundry Closet
Interior Features
Appliances: Washer, Dishwasher, Dryer, Microwave, Range
Flooring: Carpet,Tile
Additional Interior Features: Eat-In Kitchen, Split Bedrooms, Living/Dining Room, Main Level Primary
Utilities
Water: Public
Sewer: Public Sewer
Other Utilities: Cable Available,High Speed Internet Available
Cooling: Central Air
Heating: Central, Electric
Exterior / Lot Features
Attached Garage: Attached Garage
Garage Spaces: 1
Parking Description: Garage Door Opener, Garage, driveway
Roof: Tile
Pool: Community
Lot View: Trees/Woods
Additional Exterior/Lot Features: Rain Gutters, Enclosed, Landscaped
Community Features
Community Features: Pool, Tennis Court(s), Sidewalks, Gated, Fitness, Recreation Area, Clubhouse
Security Features: Gated Community
HOA Dues Include: Maintenance Grounds, Pest Control, Pool(s), Internet, Cable TV
Homeowners Association: Yes
HOA Dues: $438 / Monthly
Driving Directions
From I-4 take exit 58. Take a right on Master's Blvd and then a right onto Links. You will need to go through the guard gate for entry.
Financial Considerations
Terms: Cash,Conventional,FHA
Tax/Property ID: 33-25-27-2923-0001-0526
Tax Amount: 3299
Tax Year: 2024
A broker reciprocity listing courtesy: REAL BROKER, LLC
Based on information provided by Stellar MLS as distributed by the MLS GRID. Information from the Internet Data Exchange is provided exclusively for consumers’ personal, non-commercial use, and such information may not be used for any purpose other than to identify prospective properties consumers may be interested in purchasing. This data is deemed reliable but is not guaranteed to be accurate by Edina Realty, Inc., or by the MLS. Edina Realty, Inc., is not a multiple listing service (MLS), nor does it offer MLS access.
Copyright 2026 Stellar MLS as distributed by the MLS GRID. All Rights Reserved.
Sales History & Tax Summary for 8338 Quimby Circle
Sales History
| Date | Price | |
|---|---|---|
| Currently not available. | ||
Tax Summary
| Tax Year | Estimated Market Value | Total Tax |
|---|---|---|
| Currently not available. | ||
Data powered by ATTOM Data Solutions. Copyright© 2026. Information deemed reliable but not guaranteed.
Schools
Schools nearby 8338 Quimby Circle
| Schools in attendance boundaries | Grades | Distance | Rating |
|---|---|---|---|
| Loading... | |||
| Schools nearby | Grades | Distance | Rating |
|---|---|---|---|
| Loading... | |||
Data powered by ATTOM Data Solutions. Copyright© 2026. Information deemed reliable but not guaranteed.
The schools shown represent both the assigned schools and schools by distance based on local school and district attendance boundaries. Attendance boundaries change based on various factors and proximity does not guarantee enrollment eligibility. Please consult your real estate agent and/or the school district to confirm the schools this property is zoned to attend. Information is deemed reliable but not guaranteed.
SchoolDigger ® Rating
The SchoolDigger rating system is a 1-5 scale with 5 as the highest rating. SchoolDigger ranks schools based on test scores supplied by each state's Department of Education. They calculate an average standard score by normalizing and averaging each school's test scores across all tests and grades.
Coming soon properties will soon be on the market, but are not yet available for showings.