$795,000
8348 Bridgeport Bay Circle Mount Dora, FL 32757
For Sale MLS# O6328646
4 beds 3 baths 3,156 sq ft Single Family
Details for 8348 Bridgeport Bay Circle
MLS# O6328646
Description for 8348 Bridgeport Bay Circle, Mount Dora, FL, 32757
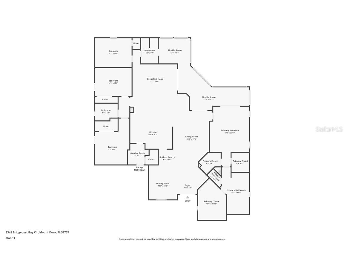
This luxury home was built as one of just a few BARBADOS models and was then modified, expanded and upgraded by these very particular owners. The gracious floorplan includes a beautiful dining room with an open butler's pantry/bar flowing from the living and dining rooms to the kitchen. The kitchen is perfect for the cook of the family with plenty of cabinetry and a cozy breakfast nook open to the Family Room. The PRIMARY SUITE is on the right side of the home and includes two walk-in closets, a COMPLETELY RE-DESIGNED BATH WITH NEW CABINETS, including a BUILT-IN HAMPER, LIGHTING AND A BIG BEAUTIFUL WALK-IN SHOWER...PLUS an incredible 10 x 15 WALK-IN CLOSET (originally built as a Den with access to the foyer). ALL CLOSETS IN THIS HOME WERE PROFESSIONALLY DESIGNED AND FINISHED. Two wall safes have been installed and are included. The 3 secondary bedrooms and two baths are on the left side of the home. Both of these baths were UPGRADED with NEW WALK-IN SHOWERS AND NEW LIGHTING. The KITCHEN was gutted and RE-BUILT with AN ISLAND, UPGRADED GRANITE and CLEAN DESIGN CABINETRY featuring PULL OUT SHELVES IN THE CABINETS, DRAWER STORAGE, SLIDE OUT PANTRY SHELVING AND MORE! The range is now electric, but the gas pipe remains behind it if gas is preferred. WOOD FLOORING was installed in the living room, dining room and family room. HIGH END LIGHTING is apparent everywhere. PELLA WINDOWS AND SLIDERS WITH BUILT-IN BLINDS AND A FABULOUS PELLA FRONT DOOR WITH A MATCHING TRANSOM were also installed. All feature special locking mechanisms for security. The living space was expanded by ENCLOSING the LANAI WITH PELLA WINDOWS, A/C, FANS AND A SUMMER KITCHEN. Flowers and shrubs were added to the garden, providing a beautiful view from the lanai and the perimeter of the home is finished with a paved border and large river rock. Even the GARAGE is upgraded with a CARPETED FLOOR, 2 FANS and a MINI-SPLIT A/C to keep it comfortable. Everything is impeccably cared for, and the A/C and tankless water heater get regular maintenance. Lakes of Mount Dora is one of Central Florida's most premier 55+ communities. From the 18,000 square foot club house with its billiard room, library, gigantic kitchen, theatre, and meeting rooms to the zero-entry pool and spa area to the outside pickleball and tennis courts, everything is immaculate and well kept. Downtown Mount Dora and its famous lake, shops and restaurants is less than a 15 minute ride.
Listing Information
Property Type: Residential, Single Family Residence
Status: Active
Bedrooms: 4
Bathrooms: 3
Lot Size: 0.21 Acres
Square Feet: 3,156 sq ft
Year Built: 2017
Garage: Yes
Stories: 1 Story
Construction: Block,Stucco
Subdivision: Lakes Of Mount Dora
Foundation: Slab
County: Lake
Room Information
Main Floor
Florida Room:
Dining Room: 12x13
Living Room: 20x14
Laundry:
Bedroom 4: 14x11
Bedroom 3: 14x11
Bedroom 2: 14x12
Primary Bathroom: 15x17
Primary Bedroom: 17x15
Family Room:
Kitchen: 16x15
Bathrooms
Full Baths: 3
Additonal Room Information
Laundry: Laundry Room, Gas Dryer Hookup
Interior Features
Appliances: Refrigerator, Washer, Dishwasher, Disposal, Dryer, Microwave, Tankless Water Heater
Flooring: Porcelain Tile,Wood
Doors/Windows: Window Treatments
Additional Interior Features: Eat-In Kitchen, Ceiling Fan(s), Split Bedrooms, Walk-In Closet(s), Tray Ceiling(s), Window Treatments, Stone Counters
Utilities
Sewer: Public Sewer
Other Utilities: Cable Connected,Electricity Connected,Natural Gas Connected,High Speed Internet Available,Water Not Available
Cooling: Ceiling Fan(s), Central Air
Heating: Natural Gas, Electric
Exterior / Lot Features
Attached Garage: Attached Garage
Garage Spaces: 3
Parking Description: Garage, Golf Cart Garage, Garage Door Opener
Roof: Shingle
Pool: Community, Association
Lot View: Trees/Woods
Lot Dimensions: 70x130
Additional Exterior/Lot Features: Sprinkler/Irrigation
Community Features
Community Features: Gated, Golf Carts OK
Security Features: Gated Community, Security System Owned
Association Amenities: Pickleball, Pool, Tennis Court(s), Other, Gated, Spa/Hot Tub, Clubhouse, Fitness Center
HOA Dues Include: Cable TV, Pool(s)
Homeowners Association: Yes
HOA Dues: $280 / Monthly
Driving Directions
441 to 44 Lakes of Mount Dora. Roundabout to 3rd Exit...Bridgeport Bay Circle. Follow to 8348 on the left.
Financial Considerations
Terms: Cash,Conventional
Tax/Property ID: 08-19-27-1206-000-57300
Tax Amount: 7277.58
Tax Year: 2024
A broker reciprocity listing courtesy: FLORIDA HOME TEAM REALTY LLC
Based on information provided by Stellar MLS as distributed by the MLS GRID. Information from the Internet Data Exchange is provided exclusively for consumers’ personal, non-commercial use, and such information may not be used for any purpose other than to identify prospective properties consumers may be interested in purchasing. This data is deemed reliable but is not guaranteed to be accurate by Edina Realty, Inc., or by the MLS. Edina Realty, Inc., is not a multiple listing service (MLS), nor does it offer MLS access.
Copyright 2025 Stellar MLS as distributed by the MLS GRID. All Rights Reserved.
Payment Calculator
Interest rate and annual percentage rate (APR) are based on current market conditions, are for informational purposes only, are subject to change without notice and may be subject to pricing add-ons related to property type, loan amount, loan-to-value, credit score and other variables. Estimated closing costs used in the APR calculation are assumed to be paid by the borrower at closing. If the closing costs are financed, the loan, APR and payment amounts will be higher. If the down payment is less than 20%, mortgage insurance may be required and could increase the monthly payment and APR. Contact us for details. Additional loan programs may be available. Accuracy is not guaranteed, and all products may not be available in all borrower's geographical areas and are based on their individual situation. This is not a credit decision or a commitment to lend.
Sales History & Tax Summary for 8348 Bridgeport Bay Circle
Sales History
| Date | Price | Change |
|---|---|---|
| Currently not available. | ||
Tax Summary
| Tax Year | Estimated Market Value | Total Tax |
|---|---|---|
| Currently not available. | ||
Data powered by ATTOM Data Solutions. Copyright© 2025. Information deemed reliable but not guaranteed.
Schools
Schools nearby 8348 Bridgeport Bay Circle
| Schools in attendance boundaries | Grades | Distance | Rating |
|---|---|---|---|
| Loading... | |||
| Schools nearby | Grades | Distance | Rating |
|---|---|---|---|
| Loading... | |||
Data powered by ATTOM Data Solutions. Copyright© 2025. Information deemed reliable but not guaranteed.
The schools shown represent both the assigned schools and schools by distance based on local school and district attendance boundaries. Attendance boundaries change based on various factors and proximity does not guarantee enrollment eligibility. Please consult your real estate agent and/or the school district to confirm the schools this property is zoned to attend. Information is deemed reliable but not guaranteed.
SchoolDigger ® Rating
The SchoolDigger rating system is a 1-5 scale with 5 as the highest rating. SchoolDigger ranks schools based on test scores supplied by each state's Department of Education. They calculate an average standard score by normalizing and averaging each school's test scores across all tests and grades.
Coming soon properties will soon be on the market, but are not yet available for showings.