$525,000
8408 Whispering Woods Court Lakewood Ranch, FL 34202
For Sale MLS# A4671961
3 beds 2 baths 1,679 sq ft Single Family
Details for 8408 Whispering Woods Court
MLS# A4671961
Description for 8408 Whispering Woods Court, Lakewood Ranch, FL, 34202
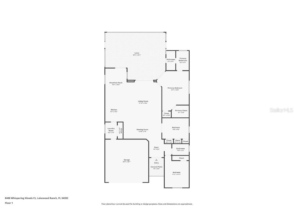
Freshly updated and sitting on one of Edgewater’s prime preserve lots, this home brings the privacy buyers want with the convenience they rarely find. Since late 2024, the owners have gone through the place top to bottom with new LG appliances in 2024, new flooring throughout in 2025, and a brand-new tile roof completed in October 2025. Nothing here feels dated or overlooked. The kitchen holds its own with solid wood cabinetry, pantry cabinets, granite counters, a new backsplash, and a built-in breakfast banquette with storage that looks straight out to the preserve. It’s a great use of space and gives the kitchen real personality. The owner’s suite includes a generous walk-in closet and granite-topped vanities, while the guest bath has been upgraded with quartz. The second bedroom features custom built-ins and overhead storage. Crown molding and plantation shutters run throughout the home and add timeless appeal. Outside, the expanded screened lanai gives you a quiet, private backdrop and plenty of room for entertaining or simply unwinding. Edgewater is one of Lakewood Ranch’s most established and sought-after maintenance-free gated neighborhoods. You have direct pathway access to Main Street so shops, dining, movies, and regular events are all a short walk or cart ride away. Residents also enjoy a clubhouse, heated pool and spa, pier and gazebo, walking trails, and access to the 3.5-mile path around Lake Uihlein for fishing, kayaking, and sunrise or sunset walks. Another community path connects to Lakewood Ranch County Park for additional recreation. You are minutes from I-75, UTC, top medical care, SRQ Airport, theaters, and the Gulf beaches. If you’re looking for a move-ready home in a proven Lakewood Ranch community with privacy, updates, and access that is tough to match, this one deserves a serious look. Make sure to check out the 3D tour by clicking on the virtual tour button
Listing Information
Property Type: Residential, Single Family Residence
Status: Active
Bedrooms: 3
Bathrooms: 2
Lot Size: 0.15 Acres
Square Feet: 1,679 sq ft
Year Built: 1999
Garage: Yes
Stories: 1 Story
Construction: Block,Stucco
Construction Display: New Construction
Subdivision: Edgewater Village Subphase A Unit 4b
Foundation: Slab
County: Manatee
Construction Status: New Construction
School Information
Elementary: Robert E Willis Elementary
Middle: Nolan Middle
High: Lakewood Ranch High
Room Information
Main Floor
Bedroom 3: 14.8x11.9
Bedroom 2: 9.5x13
Primary Bedroom: 18.5x16
Kitchen: 14.8x9.1
Dining Room: 8x10.8
Living Room: 19x15.11
Bathrooms
Full Baths: 2
Additonal Room Information
Laundry: Inside, Laundry Room
Interior Features
Appliances: Gas Water Heater, Washer, Dryer, Microwave, Range, Refrigerator, Dishwasher
Flooring: Laminate,Tile
Additional Interior Features: Built-in Features, Split Bedrooms, Walk-In Closet(s), Living/Dining Room, Ceiling Fan(s), Eat-In Kitchen, Main Level Primary, Open Floorplan, Kitchen/Family Room Combo, Crown Molding
Utilities
Water: Public
Sewer: Public Sewer
Other Utilities: Cable Available,Electricity Connected,Sewer Connected,Underground Utilities,Water Connected
Cooling: Ceiling Fan(s), Central Air
Heating: Central, Electric
Exterior / Lot Features
Attached Garage: Attached Garage
Garage Spaces: 2
Roof: Tile
Pool: Community, Association
Lot View: Trees/Woods
Additional Exterior/Lot Features: Buyer Approval Required
Community Features
Community Features: Fishing, Dock, Lake, Pool, Sidewalks, Clubhouse, Boat Facilities, Gated
Security Features: Gated Community, Gated with Guard
Association Amenities: Pool
HOA Dues Include: Maintenance Grounds, Recreation Facilities, Pool(s)
Homeowners Association: Yes
HOA Dues: $660 / Quarterly
Driving Directions
From University Parkway, turn onto Waterview Boulevard and continue straight. Make a right to stay on Waterview Boulevard. Turn right onto Oak Manor Drive, then right again onto Whispering Woods Court. The home will be on your right.
Financial Considerations
Terms: Cash,Conventional,FHA,VA Loan
Tax/Property ID: 588428300
Tax Amount: 7769.51
Tax Year: 2024
A broker reciprocity listing courtesy: COLDWELL BANKER REALTY
Based on information provided by Stellar MLS as distributed by the MLS GRID. Information from the Internet Data Exchange is provided exclusively for consumers’ personal, non-commercial use, and such information may not be used for any purpose other than to identify prospective properties consumers may be interested in purchasing. This data is deemed reliable but is not guaranteed to be accurate by Edina Realty, Inc., or by the MLS. Edina Realty, Inc., is not a multiple listing service (MLS), nor does it offer MLS access.
Copyright 2025 Stellar MLS as distributed by the MLS GRID. All Rights Reserved.
Payment Calculator
Interest rate and annual percentage rate (APR) are based on current market conditions, are for informational purposes only, are subject to change without notice and may be subject to pricing add-ons related to property type, loan amount, loan-to-value, credit score and other variables. Estimated closing costs used in the APR calculation are assumed to be paid by the borrower at closing. If the closing costs are financed, the loan, APR and payment amounts will be higher. If the down payment is less than 20%, mortgage insurance may be required and could increase the monthly payment and APR. Contact us for details. Additional loan programs may be available. Accuracy is not guaranteed, and all products may not be available in all borrower's geographical areas and are based on their individual situation. This is not a credit decision or a commitment to lend.
Sales History & Tax Summary for 8408 Whispering Woods Court
Sales History
| Date | Price | Change |
|---|---|---|
| Currently not available. | ||
Tax Summary
| Tax Year | Estimated Market Value | Total Tax |
|---|---|---|
| Currently not available. | ||
Data powered by ATTOM Data Solutions. Copyright© 2025. Information deemed reliable but not guaranteed.
Schools
Schools nearby 8408 Whispering Woods Court
| Schools in attendance boundaries | Grades | Distance | Rating |
|---|---|---|---|
| Loading... | |||
| Schools nearby | Grades | Distance | Rating |
|---|---|---|---|
| Loading... | |||
Data powered by ATTOM Data Solutions. Copyright© 2025. Information deemed reliable but not guaranteed.
The schools shown represent both the assigned schools and schools by distance based on local school and district attendance boundaries. Attendance boundaries change based on various factors and proximity does not guarantee enrollment eligibility. Please consult your real estate agent and/or the school district to confirm the schools this property is zoned to attend. Information is deemed reliable but not guaranteed.
SchoolDigger ® Rating
The SchoolDigger rating system is a 1-5 scale with 5 as the highest rating. SchoolDigger ranks schools based on test scores supplied by each state's Department of Education. They calculate an average standard score by normalizing and averaging each school's test scores across all tests and grades.
Coming soon properties will soon be on the market, but are not yet available for showings.