8421 Marlanas Place Tampa, FL 33637
For Sale MLS# TB8404792
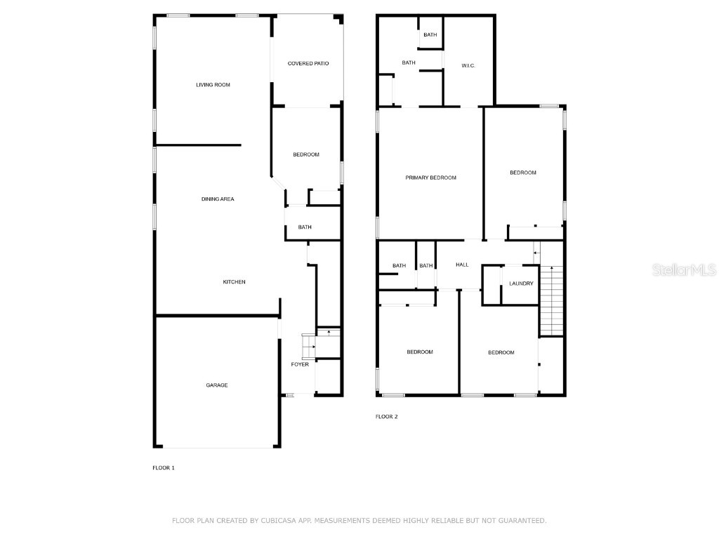
5 beds 3 baths 2,912 sq ft Single Family
Details for 8421 Marlanas Place
MLS# TB8404792
Description for 8421 Marlanas Place, Tampa, FL, 33637
Beautiful block construction 2025 BRAND NEW HOME featuring 5 Bedrooms, full 3 Baths, 2 car garage with huge driveway on a premier large corner lot. It is inside a very small and well-maintained association. This 2912 square ft open, bright and airy two-story open floor plan, offers a very spacious feel with its 10 feet ceiling and multiple windows. The kitchen boasts granite countertops, under-mount stainless steel kitchen sink, large basinets, all stainless-steel appliances, storage pantry and a large island. The family room is generous, it offers plenty of living space to entertain friends and family. Off the family room, you will find a double sliding glass door that leads to the back side patio and large backyard. The master-suite is pretty impressive and big, features large walk-in closets and dual vanities in the master bath along with a large glass door shower and separate toilet area. The first floor of whole house is composed of quality tiles and second floor finished with luxury vinyl. Some of this builder's Energy-friendly features: all impact doors and windows for energy efferent and hurricane proof, energy efficient Air Conditioner. This is a fantastic location, only a few minutes away from all banks and restaurants and easy access to all major highways I4. Hurry up, this new family home won’t last very long.
Listing Information
Property Type: Residential, Single Family Residence
Status: Active
Bedrooms: 5
Bathrooms: 3
Lot Size: 0.16 Acres
Square Feet: 2,912 sq ft
Year Built: 2025
Garage: Yes
Stories: 2 Story
Construction: Block,Concrete
Construction Display: New Construction
Subdivision: Country Way Twnhms Ph 2
Builder: Pukta Construction
Foundation: Block,Slab
County: Hillsborough
Construction Status: New Construction
Room Information
Main Floor
Living Room: 19x17
Kitchen: 10x17
Bathroom 5: 10x14
Upper Floor
Bathroom 4: 13x13
Bathroom 3: 18x12
Bathroom 2: 15x13
Primary Bedroom: 20x16
Bathrooms
Full Baths: 3
Additonal Room Information
Laundry: Common Area, Laundry Closet
Interior Features
Appliances: Ice Maker, Exhaust Fan, Electric Water Heater, Range Hood, Freezer, Microwave, Refrigerator, Dishwasher, Disposal
Flooring: Luxury Vinyl,Tile
Doors/Windows: ENERGY STAR Qualified Windows, Storm Window(s)
Additional Interior Features: Ceiling Fan(s), Walk-In Closet(s), High Ceilings, Living/Dining Room, Open Floorplan, Upper Level Primary
Utilities
Water: Public
Sewer: Public Sewer
Other Utilities: Electricity Available,Electricity Connected,Municipal Utilities,Sewer Connected
Cooling: Ceiling Fan(s), Central Air
Heating: Electric, Central, Exhaust Fan
Exterior / Lot Features
Attached Garage: Attached Garage
Garage Spaces: 2
Roof: Shingle
Lot Dimensions: 40x168.86
Fencing: Vinyl
Additional Exterior/Lot Features: Rain Gutters
Community Features
Homeowners Association: Yes
HOA Dues: $140 / Monthly
Driving Directions
Drive Bullard parkway then right turn 78 and cross street Henry turn right and left side is the community
Financial Considerations
Terms: Cash,Conventional,FHA,VA Loan
Tax/Property ID: T-25-28-19-9W6-000000-00023.0
Tax Amount: 1243.72
Tax Year: 2024
A broker reciprocity listing courtesy: REALNET FLORIDA REAL ESTATE
Based on information provided by Stellar MLS as distributed by the MLS GRID. Information from the Internet Data Exchange is provided exclusively for consumers’ personal, non-commercial use, and such information may not be used for any purpose other than to identify prospective properties consumers may be interested in purchasing. This data is deemed reliable but is not guaranteed to be accurate by Edina Realty, Inc., or by the MLS. Edina Realty, Inc., is not a multiple listing service (MLS), nor does it offer MLS access.
Copyright 2025 Stellar MLS as distributed by the MLS GRID. All Rights Reserved.
Payment Calculator
Interest rate and annual percentage rate (APR) are based on current market conditions, are for informational purposes only, are subject to change without notice and may be subject to pricing add-ons related to property type, loan amount, loan-to-value, credit score and other variables. Estimated closing costs used in the APR calculation are assumed to be paid by the borrower at closing. If the closing costs are financed, the loan, APR and payment amounts will be higher. If the down payment is less than 20%, mortgage insurance may be required and could increase the monthly payment and APR. Contact us for details. Additional loan programs may be available. Accuracy is not guaranteed, and all products may not be available in all borrower's geographical areas and are based on their individual situation. This is not a credit decision or a commitment to lend.
Sales History & Tax Summary for 8421 Marlanas Place
Sales History
| Date | Price | Change |
|---|---|---|
| Currently not available. | ||
Tax Summary
| Tax Year | Estimated Market Value | Total Tax |
|---|---|---|
| Currently not available. | ||
Data powered by ATTOM Data Solutions. Copyright© 2025. Information deemed reliable but not guaranteed.
Schools
Schools nearby 8421 Marlanas Place
| Schools in attendance boundaries | Grades | Distance | Rating |
|---|---|---|---|
| Loading... | |||
| Schools nearby | Grades | Distance | Rating |
|---|---|---|---|
| Loading... | |||
Data powered by ATTOM Data Solutions. Copyright© 2025. Information deemed reliable but not guaranteed.
The schools shown represent both the assigned schools and schools by distance based on local school and district attendance boundaries. Attendance boundaries change based on various factors and proximity does not guarantee enrollment eligibility. Please consult your real estate agent and/or the school district to confirm the schools this property is zoned to attend. Information is deemed reliable but not guaranteed.
SchoolDigger ® Rating
The SchoolDigger rating system is a 1-5 scale with 5 as the highest rating. SchoolDigger ranks schools based on test scores supplied by each state's Department of Education. They calculate an average standard score by normalizing and averaging each school's test scores across all tests and grades.
Coming soon properties will soon be on the market, but are not yet available for showings.