843 Cr 484 Lake Panasoffkee, FL 33538
For Sale MLS# O6362168
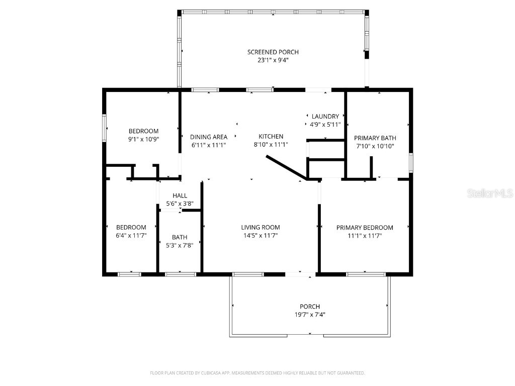
3 beds 2 baths 960 sq ft Single Family
Details for 843 Cr 484
MLS# O6362168
Description for 843 Cr 484, Lake Panasoffkee, FL, 33538
Seller offering $3,000 towards closing! Discover comfortable waterfront living in this beautifully updated 3-bedroom, 2-bath home located on a spring-fed, boatable canal with a short, scenic ride to Lake Panasoffkee. Enjoy peaceful mornings and breezy evenings on the spacious back porch overlooking the water, or relax on the welcoming front porch. This is a manufactured home, nothing like a mobile home! Currently being used as a Short Term Rental with consistent bookings! Accessing the water is a breeze with your own dock out back and with deeded access to a private boat ramp just 6 lots away. Inside, the fully furnished home offers a bright and open layout with a newly remodeled kitchen featuring granite countertops and modern cabinetry. All bedrooms include walk-in closets, and the primary suite impresses with an oversized bathroom complete with a garden tub, separate shower, and recent upgrades including new vanity, mirror, faucets, and toilets. Thoughtful improvements throughout add peace of mind, including new ceiling fans in the bedrooms, new central air, furnace, and hot water heater within the last 3 years, plus a freshly painted exterior. The washer and dryer are just 1 year old, and the roof is only 9 years old. A new privacy fence lines the front of the property with a 16-foot swing gate installed just last year, offering both curb appeal and security. Also included is a full year of trash pick up! Whether you're looking for a full-time residence, a serene weekend getaway, or as an Short Term Rental this waterfront home delivers comfort, convenience, and Florida outdoor living at its best.
Listing Information
Property Type: Residential, Manufactured Home
Status: Active
Bedrooms: 3
Bathrooms: 2
Lot Size: 0.14 Acres
Square Feet: 960 sq ft
Year Built: 1989
Stories: 1 Story
Construction: Wood Frame
Subdivision: Panasoffkee Retreats
Foundation: Other
County: Sumter
Room Information
Main Floor
Dining Room:
Living Room:
Kitchen:
Primary Bedroom:
Bathrooms
Full Baths: 2
Additonal Room Information
Laundry: Inside
Interior Features
Appliances: Dishwasher, Dryer, Microwave, Range, Refrigerator, Washer
Flooring: Tile,Vinyl
Additional Interior Features: Ceiling Fan(s)
Utilities
Water: Public
Sewer: Septic Tank
Other Utilities: Electricity Connected,Water Connected
Cooling: Ceiling Fan(s), Central Air
Heating: Electric
Exterior / Lot Features
Roof: Shingle
Lot View: Canal,Water
Additional Exterior/Lot Features: Private Yard, Private Entrance
Waterfront Details
Water Front Features: Lake Privileges, Canal Access
Driving Directions
Head east of CR 470. Turn right on CR 485. Turn left on CR 484.
Financial Considerations
Terms: Cash,Conventional,FHA,VA Loan
Tax/Property ID: J09A038
Tax Amount: 596
Tax Year: 2025
A broker reciprocity listing courtesy: PREFERRED RE BROKERS III
Based on information provided by Stellar MLS as distributed by the MLS GRID. Information from the Internet Data Exchange is provided exclusively for consumers’ personal, non-commercial use, and such information may not be used for any purpose other than to identify prospective properties consumers may be interested in purchasing. This data is deemed reliable but is not guaranteed to be accurate by Edina Realty, Inc., or by the MLS. Edina Realty, Inc., is not a multiple listing service (MLS), nor does it offer MLS access.
Copyright 2026 Stellar MLS as distributed by the MLS GRID. All Rights Reserved.
Payment Calculator
Interest rate and annual percentage rate (APR) are based on current market conditions, are for informational purposes only, are subject to change without notice and may be subject to pricing add-ons related to property type, loan amount, loan-to-value, credit score and other variables. Estimated closing costs used in the APR calculation are assumed to be paid by the borrower at closing. If the closing costs are financed, the loan, APR and payment amounts will be higher. If the down payment is less than 20%, mortgage insurance may be required and could increase the monthly payment and APR. Contact us for details. Additional loan programs may be available. Accuracy is not guaranteed, and all products may not be available in all borrower's geographical areas and are based on their individual situation. This is not a credit decision or a commitment to lend.
Sales History & Tax Summary for 843 Cr 484
Sales History
| Date | Price | |
|---|---|---|
| Currently not available. | ||
Tax Summary
| Tax Year | Estimated Market Value | Total Tax |
|---|---|---|
| Currently not available. | ||
Data powered by ATTOM Data Solutions. Copyright© 2026. Information deemed reliable but not guaranteed.
Schools
Schools nearby 843 Cr 484
| Schools in attendance boundaries | Grades | Distance | Rating |
|---|---|---|---|
| Loading... | |||
| Schools nearby | Grades | Distance | Rating |
|---|---|---|---|
| Loading... | |||
Data powered by ATTOM Data Solutions. Copyright© 2026. Information deemed reliable but not guaranteed.
The schools shown represent both the assigned schools and schools by distance based on local school and district attendance boundaries. Attendance boundaries change based on various factors and proximity does not guarantee enrollment eligibility. Please consult your real estate agent and/or the school district to confirm the schools this property is zoned to attend. Information is deemed reliable but not guaranteed.
SchoolDigger ® Rating
The SchoolDigger rating system is a 1-5 scale with 5 as the highest rating. SchoolDigger ranks schools based on test scores supplied by each state's Department of Education. They calculate an average standard score by normalizing and averaging each school's test scores across all tests and grades.
Coming soon properties will soon be on the market, but are not yet available for showings.