8449 River Branch Place Sanford, FL 32771
For Sale MLS# O6358156
5 beds 3 baths 2,400 sq ft Single Family
Details for 8449 River Branch Place
MLS# O6358156
Description for 8449 River Branch Place, Sanford, FL, 32771
Beautifully updated 5-bedroom, 3-bath pool home with a 3-car garage, now available in the highly desirable guard-gated community of River Crest in Sanford. Situated on a full acre, this property offers outstanding privacy and quiet surroundings. A circular driveway leads to a welcoming entrance with travertine tile, and indoors, wide wood-look tile plank flooring spans the entire home. The heart of the open layout is a stunning custom kitchen featuring dual islands, quartz countertops and backsplash, and new black stainless appliances. The spacious primary suite includes a generous walk-in closet with custom shelving and a beautifully designed bathroom with a large-format tiled shower and dual vanities. Just off the kitchen, the expansive living room showcases a floor-to-ceiling flagstone fireplace, adding warmth and character. Three bedrooms and an updated full bath with dual vanities extend down one hall, while a fifth bedroom with ensuite bath and walk-in tiled shower rests on the opposite side—ideal for guests or multigenerational living. French doors open to a fully screened rear porch overlooking the resurfaced pool and spa, complete with brand-new equipment. Additional upgrades include a new roof, newer AC system, updated sprinkler system, new garage doors and openers, updated doors and trim, new lighting and fixtures, fresh interior and exterior paint, resurfaced pool deck, and refreshed landscaping. Residents enjoy private access to community tennis courts and a scenic boardwalk along the Wekiva River, plus seasonal neighborhood events and gatherings. River Crest offers the perfect blend of nature and convenience—with easy access to major highways, shopping, dining, and everyday needs. A rare opportunity to own an exceptional home in a premier setting.
Listing Information
Property Type: Residential, Single Family Residence
Status: Active
Bedrooms: 5
Bathrooms: 3
Lot Size: 1 Acres
Square Feet: 2,400 sq ft
Year Built: 1994
Garage: Yes
Stories: 1 Story
Construction: Block,Stucco
Subdivision: River Crest
Foundation: Slab
County: Seminole
School Information
Elementary: Wilson Elementary School
Middle: Markham Woods Middle
High: Seminole High
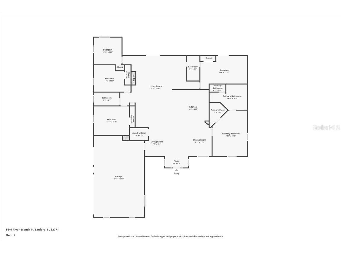
Room Information
Main Floor
Bedroom 5: 11.5x14
Bedroom 4: 10.5x14.6
Bedroom 3: 11x11
Bedroom 2: 13x18.6
Primary Bedroom: 18x13.8
Dining Room: 11x9
Living Room: 28x26
Kitchen: 14.9x14
Bathrooms
Full Baths: 3
Additonal Room Information
Laundry: Inside, Laundry Room
Interior Features
Appliances: Electric Water Heater, Range, Refrigerator, Dishwasher, Microwave
Flooring: Tile
Fireplaces: Living Room, Wood Burning
Additional Interior Features: Ceiling Fan(s)
Utilities
Water: Well, Private
Sewer: Septic Tank
Other Utilities: Electricity Connected
Cooling: Ceiling Fan(s), Central Air
Heating: Electric, Central
Exterior / Lot Features
Attached Garage: Attached Garage
Garage Spaces: 3
Parking Description: Circular Driveway, driveway, Garage Faces Side
Roof: Shingle
Pool: Gunite, In Ground, Screen Enclosure
Additional Exterior/Lot Features: Lighting, French Patio Doors, Rear Porch, Side Porch, Covered, Screened
Community Features
Community Features: Dock, River, Tennis Court(s), Gated, Golf Carts OK, Water Access
Security Features: Gated Community, Gated with Guard
Association Amenities: Gated
HOA Dues Include: Maintenance Grounds, Reserve Fund, Road Maintenance, Association Management, Security, Recreation Facilities
Homeowners Association: Yes
HOA Dues: $835 / Quarterly
Driving Directions
From 1-4 exit 46A / H E Thomas Jr Pkwy toward Heathrow, turn right on Orange Blvd. then left onto Markham Rd. follow to the community of River Crest on the left.
Financial Considerations
Terms: Cash,Conventional,FHA,VA Loan
Tax/Property ID: 34-19-29-5KC-0000-0130
Tax Amount: 4044.57
Tax Year: 2024
A broker reciprocity listing courtesy: R MICHAELS REALTY LLC
Based on information provided by Stellar MLS as distributed by the MLS GRID. Information from the Internet Data Exchange is provided exclusively for consumers’ personal, non-commercial use, and such information may not be used for any purpose other than to identify prospective properties consumers may be interested in purchasing. This data is deemed reliable but is not guaranteed to be accurate by Edina Realty, Inc., or by the MLS. Edina Realty, Inc., is not a multiple listing service (MLS), nor does it offer MLS access.
Copyright 2025 Stellar MLS as distributed by the MLS GRID. All Rights Reserved.
Payment Calculator
Interest rate and annual percentage rate (APR) are based on current market conditions, are for informational purposes only, are subject to change without notice and may be subject to pricing add-ons related to property type, loan amount, loan-to-value, credit score and other variables. Estimated closing costs used in the APR calculation are assumed to be paid by the borrower at closing. If the closing costs are financed, the loan, APR and payment amounts will be higher. If the down payment is less than 20%, mortgage insurance may be required and could increase the monthly payment and APR. Contact us for details. Additional loan programs may be available. Accuracy is not guaranteed, and all products may not be available in all borrower's geographical areas and are based on their individual situation. This is not a credit decision or a commitment to lend.
Sales History & Tax Summary for 8449 River Branch Place
Sales History
| Date | Price | Change |
|---|---|---|
| Currently not available. | ||
Tax Summary
| Tax Year | Estimated Market Value | Total Tax |
|---|---|---|
| Currently not available. | ||
Data powered by ATTOM Data Solutions. Copyright© 2025. Information deemed reliable but not guaranteed.
Schools
Schools nearby 8449 River Branch Place
| Schools in attendance boundaries | Grades | Distance | Rating |
|---|---|---|---|
| Loading... | |||
| Schools nearby | Grades | Distance | Rating |
|---|---|---|---|
| Loading... | |||
Data powered by ATTOM Data Solutions. Copyright© 2025. Information deemed reliable but not guaranteed.
The schools shown represent both the assigned schools and schools by distance based on local school and district attendance boundaries. Attendance boundaries change based on various factors and proximity does not guarantee enrollment eligibility. Please consult your real estate agent and/or the school district to confirm the schools this property is zoned to attend. Information is deemed reliable but not guaranteed.
SchoolDigger ® Rating
The SchoolDigger rating system is a 1-5 scale with 5 as the highest rating. SchoolDigger ranks schools based on test scores supplied by each state's Department of Education. They calculate an average standard score by normalizing and averaging each school's test scores across all tests and grades.
Coming soon properties will soon be on the market, but are not yet available for showings.