850 Van Gogh Road Englewood, FL 34223
For Sale MLS# D6141567
3 beds 3 baths 2,180 sq ft Single Family
Details for 850 Van Gogh Road
MLS# D6141567
Description for 850 Van Gogh Road, Englewood, FL, 34223
Welcome to your new Artist Acres home featuring a saltwater pool and jacuzzi surrounded by beautiful landscaping while conveniently located in the heart of Englewood. This 3-Bedroom 2 ½ Bath Home is the perfect Southwest Florida retreat home providing the perfect combination of nature and privacy. Hidden to the road by mature landscaping, you will feel right at home as you enter through the front, screened-in patio into the large, open-floor plan living and family rooms featuring bamboo flooring and vaulted ceilings. The sizable kitchen features wrapped around counters with ample cabinets, a new dishwasher, an island, a secluded desk area, and a breakfast bar that gives way to your inviting dining area. The dining area glistens with excellent natural lighting, views and access through French doors to the beautifully landscaped back patio and pool deck. Just off the Kitchen, is the Laundry Room with Washer/Dryer, large Pantry, and a half Bath with entry from the two Car Garage. Offering privacy indoors and out, the split floor plan holds two bedrooms and full bathroom on one side and the Master Bedroom across the home. The Master Bedroom features bamboo flooring, two Walk-In Closets, Master Bath with walk-in shower, separate garden tub, and French door access to the lanai. The covered lanai is home to an outdoor kitchen making entertaining a breeze and gives way to the custom landscaped pool deck with an oversized, heated, saltwater pool/spa, and an outdoor shower with both hot and cold. With a completely private backyard as well, this oversized 20,000 square-foot lot will truly feel like your own private oasis with mature trees and landscaping which includes Arika Palms, Mango Tree, Bird of Paradise Plants, Palmettos, and so much more. If you love all the art work throughout the home, most was done by local artist Marie Laforge and is also available for sale. Built-to-last since 1991, this updated block home features a 2024 Metal Roof, 2023 AC Unit, and 2022 Hot Water Heater, while the home is also on septic but sewer is available for connection if desired. While tucked away at home, you will enjoy being walking distance to Lemon Bay Park with miles of trails and water views as well as a local lake servicing as a fun fishing spot. Additionally, you will have quick access to countless local shops, restaurants, schools, beaches, and bays. You will also be merely minutes from the popular Dearborn Street which offers live local entertainment, art shows, car shows and fresh farmers’ market. One of the best-kept secrets in Florida Englewood is perfectly situated between Fort Myers & Sarasota for additional access to Marinas, Boating, Fishing, Parks, Playgrounds, Shopping, Restaurants, Baseball Spring Training, Myakka State Preserve, Wildlife, and Much More. Come relax and enjoy all that the Southwest Florida Lifestyle has to provide. You’ve found Your Piece of Paradise!
Listing Information
Property Type: Residential, Single Family Residence
Status: Active
Bedrooms: 3
Bathrooms: 3
Lot Size: 0.46 Acres
Square Feet: 2,180 sq ft
Year Built: 1991
Garage: Yes
Stories: 1 Story
Construction: Block,Stucco,Wood Frame
Construction Display: New Construction
Subdivision: Artist Acres
Foundation: Slab
County: Sarasota
Construction Status: New Construction
School Information
Elementary: Englewood Elementary
Middle: L.A. Ainger Middle
High: Lemon Bay High
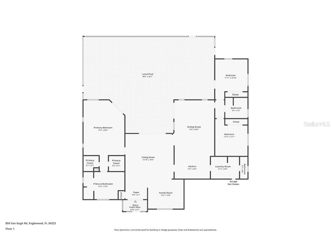
Room Information
Main Floor
Bathroom 2: 7x8
Living Room: 18x18
Primary Bathroom: 10x15
Primary Bedroom: 15x19
Bedroom 3: 11x11
Bedroom 2: 11x11
Porch: 35x21
Laundry: 7x10
Foyer: 4x8
Family Room: 10x13
Dining Room: 14x15
Kitchen: 12x13
Bathrooms
Full Baths: 2
1/2 Baths: 1
Additonal Room Information
Laundry: Other, Inside, Laundry Room, Electric Dryer Hookup
Interior Features
Appliances: Refrigerator, Microwave, Cooktop, Dishwasher, Disposal, Dryer, Washer, Electric Water Heater
Flooring: Bamboo,Concrete,Tile
Doors/Windows: Blinds, Window Treatments, Aluminum Frames
Additional Interior Features: Split Bedrooms, High Ceilings, Walk-In Closet(s), Eat-In Kitchen, Vaulted Ceiling(s), Ceiling Fan(s), Main Level Primary, Open Floorplan, Separate/Formal Dining Room
Utilities
Water: Public
Sewer: Septic Tank
Other Utilities: Cable Available,Electricity Connected,Sewer Connected,Water Connected
Cooling: Ceiling Fan(s), Central Air
Heating: Electric, Central
Exterior / Lot Features
Attached Garage: Attached Garage
Garage Spaces: 2
Parking Description: driveway, Garage Faces Side
Roof: Tile, Metal
Pool: Gunite, Salt Water, Screen Enclosure, In Ground, Heated
Lot View: Pool,Trees/Woods
Lot Dimensions: 100X200
Additional Exterior/Lot Features: Outdoor Grill, Outdoor Shower, Rain Gutters, French Patio Doors, Outdoor Kitchen, Enclosed, Screened, Covered, Deck, Patio, Porch, Private, Landscaped, Oversized Lot, Historic District
Out Buildings: Outdoor Kitchen
Community Features
Security Features: Fire Alarm
Driving Directions
Head north on S Indiana Ave toward 1st Ave. Turn Left onto Artists Ave. Turn Right onto Van Gogh Road. The Destination will be on the Left.
Financial Considerations
Terms: Cash,Conventional,FHA,VA Loan
Tax/Property ID: 0495130046
Tax Amount: 2432.68
Tax Year: 2024
A broker reciprocity listing courtesy: PARADISE EXCLUSIVE INC
Based on information provided by Stellar MLS as distributed by the MLS GRID. Information from the Internet Data Exchange is provided exclusively for consumers’ personal, non-commercial use, and such information may not be used for any purpose other than to identify prospective properties consumers may be interested in purchasing. This data is deemed reliable but is not guaranteed to be accurate by Edina Realty, Inc., or by the MLS. Edina Realty, Inc., is not a multiple listing service (MLS), nor does it offer MLS access.
Copyright 2025 Stellar MLS as distributed by the MLS GRID. All Rights Reserved.
Payment Calculator
Interest rate and annual percentage rate (APR) are based on current market conditions, are for informational purposes only, are subject to change without notice and may be subject to pricing add-ons related to property type, loan amount, loan-to-value, credit score and other variables. Estimated closing costs used in the APR calculation are assumed to be paid by the borrower at closing. If the closing costs are financed, the loan, APR and payment amounts will be higher. If the down payment is less than 20%, mortgage insurance may be required and could increase the monthly payment and APR. Contact us for details. Additional loan programs may be available. Accuracy is not guaranteed, and all products may not be available in all borrower's geographical areas and are based on their individual situation. This is not a credit decision or a commitment to lend.
Sales History & Tax Summary for 850 Van Gogh Road
Sales History
| Date | Price | Change |
|---|---|---|
| Currently not available. | ||
Tax Summary
| Tax Year | Estimated Market Value | Total Tax |
|---|---|---|
| Currently not available. | ||
Data powered by ATTOM Data Solutions. Copyright© 2025. Information deemed reliable but not guaranteed.
Schools
Schools nearby 850 Van Gogh Road
| Schools in attendance boundaries | Grades | Distance | Rating |
|---|---|---|---|
| Loading... | |||
| Schools nearby | Grades | Distance | Rating |
|---|---|---|---|
| Loading... | |||
Data powered by ATTOM Data Solutions. Copyright© 2025. Information deemed reliable but not guaranteed.
The schools shown represent both the assigned schools and schools by distance based on local school and district attendance boundaries. Attendance boundaries change based on various factors and proximity does not guarantee enrollment eligibility. Please consult your real estate agent and/or the school district to confirm the schools this property is zoned to attend. Information is deemed reliable but not guaranteed.
SchoolDigger ® Rating
The SchoolDigger rating system is a 1-5 scale with 5 as the highest rating. SchoolDigger ranks schools based on test scores supplied by each state's Department of Education. They calculate an average standard score by normalizing and averaging each school's test scores across all tests and grades.
Coming soon properties will soon be on the market, but are not yet available for showings.