$739,691
8508 Golden Dawn Court Sarasota, FL 34241
For Sale MLS# A4675604
4 beds 4 baths 3,053 sq ft Single Family
Details for 8508 Golden Dawn Court
MLS# A4675604
Description for 8508 Golden Dawn Court, Sarasota, FL, 34241
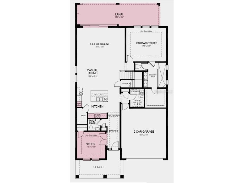
Under Construction. What's Special: Close to Park Close to Amenities Close to Trails Dedicated Study Gourmet Kitchen Popular Plan. New Construction – May Completion! Built by Taylor Morrison, America's Most Trusted Homebuilder. Welcome to the Bermuda at 8508 Golden Dawn Court in Cassia Skye Ranch! From the moment you enter the foyer, this stunning two-story home draws your eye to the extended lanai at the back. With 4 bedrooms, 3.5 baths, and a flexible layout, the Bermuda offers space for every need. Off the entry, a private study and powder room provide convenience and versatility. The open kitchen, casual dining area, and expansive great room create the perfect setting for gatherings, flowing seamlessly to the outdoor lanai. The kitchen shines with a large island, generous counter space, and a walk-in pantry. Your first-floor primary suite is a true retreat, featuring a spa-inspired bath with dual vanities, an oversized shower, and a spacious walk-in closet. Upstairs, three bedrooms and two full baths include one en suite, while the others share a centrally located bath. We chose a special place in the heart of Sarasota to build Skye Ranch. Located at the intersection of Clark Road and Lorraine Road, it’s a premier destination with opportunities to explore, experience and enjoy life, also zoned for Skye Ranch K-8 school. And we took care to preserve the natural beauty and character of the land with grand old oaks and lush palms, forested wetlands, pristine lakes and native wildlife. Miles of trails will connect you to nature, parks and the exceptional amenities within the Skye Ranch community. Additional Highlights include: gourmet kitchen, impact windows whole house, pocket sliding doors in gathering room, tray ceiling package, study, covered extended lanai, outdoor kitchen rough in only and 8' interior doors throughout. Photos are for representative purposes only. MLS#A4675604
Listing Information
Property Type: Residential, Single Family Residence
Status: Active
Bedrooms: 4
Bathrooms: 4
Lot Size: 0.14 Acres
Square Feet: 3,053 sq ft
Year Built: 2026
Garage: Yes
Stories: 2 Story
Construction: Block,Wood Frame
Construction Display: New Construction
Subdivision: Cassia At Skye Ranch
Builder: Taylor Morrison
Foundation: Slab
County: Sarasota
Construction Status: Under Construction
School Information
High: Riverview High
Room Information
Main Floor
Primary Bedroom: 14x16
Laundry:
Great Room: 15x18
Kitchen:
Dining Room: 10x18
Primary Bathroom:
Upper Floor
Loft:
Bedroom 4:
Bedroom 3:
Bedroom 2:
Bathrooms
Full Baths: 3
1/2 Baths: 1
Additonal Room Information
Laundry: Inside
Interior Features
Appliances: Cooktop, Dishwasher, Microwave, Built-In Oven, Gas Water Heater, Range Hood
Flooring: Carpet,Tile
Doors/Windows: Window Treatments
Additional Interior Features: Walk-In Closet(s), Window Treatments, Tray Ceiling(s), Split Bedrooms, Main Level Primary, Open Floorplan
Utilities
Water: Public
Sewer: Public Sewer
Other Utilities: Cable Available,Natural Gas Connected,Municipal Utilities,Underground Utilities,Water Connected
Cooling: Central Air
Heating: Central
Exterior / Lot Features
Attached Garage: Attached Garage
Garage Spaces: 2
Parking Description: driveway, Garage Door Opener, Garage
Roof: Shingle
Pool: Community, Association
Additional Exterior/Lot Features: Sprinkler/Irrigation
Community Features
Community Features: Sidewalks, Pool, Tennis Court(s), Playground, Clubhouse, Street Lights, Dog Park, Gated, Park, Fitness, Golf Carts OK, Community Mailbox
Security Features: Gated Community
Association Amenities: Recreation Facilities, Playground, Fitness Center, Tennis Court(s), Pool, Clubhouse, Spa/Hot Tub, Trail(s), Basketball Court, Park, Gated, Pickleball
HOA Dues Include: Pool(s), Maintenance Grounds, Road Maintenance, Association Management, Recreation Facilities
Homeowners Association: Yes
HOA Dues: $251 / Monthly
Driving Directions
From I-75 Take Exit 205 heading East onto Clark Road. Go about 3.5 Miles and Skye Ranch will be on the right (south) side of the road. Turn right onto Lorraine Road and proceed approximately one mile to gated entrance. Turn left onto Skye Ranch Blvd and follow signs to Taylor Morrison.
Financial Considerations
Terms: Cash,Conventional,FHA,VA Loan
Tax/Property ID: 0294-06-3041
Tax Year: 2025
A broker reciprocity listing courtesy: TAYLOR MORRISON RLTY OF FLA
Based on information provided by Stellar MLS as distributed by the MLS GRID. Information from the Internet Data Exchange is provided exclusively for consumers’ personal, non-commercial use, and such information may not be used for any purpose other than to identify prospective properties consumers may be interested in purchasing. This data is deemed reliable but is not guaranteed to be accurate by Edina Realty, Inc., or by the MLS. Edina Realty, Inc., is not a multiple listing service (MLS), nor does it offer MLS access.
Copyright 2026 Stellar MLS as distributed by the MLS GRID. All Rights Reserved.
Payment Calculator
Interest rate and annual percentage rate (APR) are based on current market conditions, are for informational purposes only, are subject to change without notice and may be subject to pricing add-ons related to property type, loan amount, loan-to-value, credit score and other variables. Estimated closing costs used in the APR calculation are assumed to be paid by the borrower at closing. If the closing costs are financed, the loan, APR and payment amounts will be higher. If the down payment is less than 20%, mortgage insurance may be required and could increase the monthly payment and APR. Contact us for details. Additional loan programs may be available. Accuracy is not guaranteed, and all products may not be available in all borrower's geographical areas and are based on their individual situation. This is not a credit decision or a commitment to lend.
Sales History & Tax Summary for 8508 Golden Dawn Court
Sales History
| Date | Price | |
|---|---|---|
| Currently not available. | ||
Tax Summary
| Tax Year | Estimated Market Value | Total Tax |
|---|---|---|
| Currently not available. | ||
Data powered by ATTOM Data Solutions. Copyright© 2026. Information deemed reliable but not guaranteed.
Schools
Schools nearby 8508 Golden Dawn Court
| Schools in attendance boundaries | Grades | Distance | Rating |
|---|---|---|---|
| Loading... | |||
| Schools nearby | Grades | Distance | Rating |
|---|---|---|---|
| Loading... | |||
Data powered by ATTOM Data Solutions. Copyright© 2026. Information deemed reliable but not guaranteed.
The schools shown represent both the assigned schools and schools by distance based on local school and district attendance boundaries. Attendance boundaries change based on various factors and proximity does not guarantee enrollment eligibility. Please consult your real estate agent and/or the school district to confirm the schools this property is zoned to attend. Information is deemed reliable but not guaranteed.
SchoolDigger ® Rating
The SchoolDigger rating system is a 1-5 scale with 5 as the highest rating. SchoolDigger ranks schools based on test scores supplied by each state's Department of Education. They calculate an average standard score by normalizing and averaging each school's test scores across all tests and grades.
Coming soon properties will soon be on the market, but are not yet available for showings.