856 Jade Forest Avenue Orlando, FL 32828
For Sale MLS# O6352874
4 beds 3 baths 2,390 sq ft Single Family
Details for 856 Jade Forest Avenue
MLS# O6352874
Description for 856 Jade Forest Avenue, Orlando, FL, 32828
Looking for a TURN KEY four bedroom, two and a half bathroom POOL home in Waterford Lakes? You have found it. New roof installed in 2022, a newer hot water tank, remodeled kitchen, stainless steal appliances, remodeled pool bath and upstairs bathroom, new first floor flooring, brand new staircase...This home is ready for its new owners. Open floor plan, tons of sunlight and serene view of the pool overlooking the conservation area will make for great meals and relaxing moments. The upstairs loft space is versatile, perfect for a home office, play area, or lounge space. Retreat to the giant primary suite featuring dual walk in closets, double vanities with ample counter space, a glass door shower, and a bathtub. The three additional guest bedrooms and an updated guest bath with a subway tile shower and sliding door vanity promise comfort for family and guests alike. The new awning addition to the paver patio creates the perfect spot for barbecues, overlooking the pool and spacious fenced in backyard. Enjoy access to Waterford's myriad of amenities including sports courts, playgrounds, a community pool, fitness equipment, beach volleyball, a running track, dog parks, and more! Experience the convenience of nearby shopping and dining at the Waterford Lakes Town Center, quick access to 408, and proximity to highly rated schools and the University of Central Florida. Immerse yourself in this home with the 3D virtual tour, and schedule a showing today. Your future of Florida living awaits!
Listing Information
Property Type: Residential, Single Family Residence
Status: Active
Bedrooms: 4
Bathrooms: 3
Lot Size: 0.17 Acres
Square Feet: 2,390 sq ft
Year Built: 1997
Garage: Yes
Stories: 2 Story
Construction: Stucco
Subdivision: Waterford Lakes Tr N19 Ph 01
Foundation: Slab
County: Orange
School Information
Elementary: Waterford Elem
Middle: Discovery Middle
High: Timber Creek High
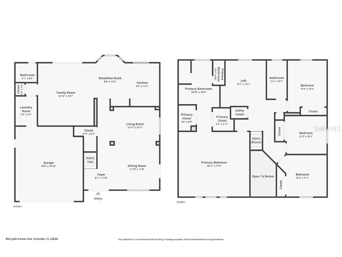
Room Information
Main Floor
Living Room: 16.7x14.1
Kitchen: 11.5x9.3
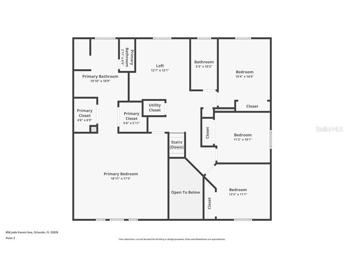
Upper Floor
Bedroom: 11.1x13.3
Primary Bedroom: 17.3x18.11
Bathrooms
Full Baths: 2
1/2 Baths: 1
Additonal Room Information
Laundry: Laundry Room
Interior Features
Appliances: Electric Water Heater, Microwave, Dishwasher
Flooring: Carpet,Luxury Vinyl
Additional Interior Features: Upper Level Primary, Separate/Formal Living Room, Loft
Utilities
Water: Public
Sewer: Public Sewer
Other Utilities: Electricity Connected,Fiber Optic Available,High Speed Internet Available
Cooling: Central Air
Heating: Electric
Exterior / Lot Features
Attached Garage: Attached Garage
Garage Spaces: 2
Roof: Shingle
Pool: In Ground, Community, Salt Water, Gunite, Association, Other, Heated
Additional Exterior/Lot Features: Covered, Patio
Community Features
Community Features: Pool, Playground, Tennis Court(s), Dog Park, Park
Association Amenities: Pool, Tennis Court(s), Basketball Court, Pickleball
Homeowners Association: Yes
HOA Dues: $250 / Quarterly
Driving Directions
From Downtown Orlando, take 408 E, exit 21 Alafaya Trail. Make a right on Alafaya and an immediate left on Lake Underhill. Stay on Lake underhill, it will become Jade Forest. The house will be on your right
Financial Considerations
Tax/Property ID: 26-22-31-8991-00-340
Tax Amount: 5788
Tax Year: 2024
A broker reciprocity listing courtesy: CHARLES RUTENBERG REALTY ORLANDO
Based on information provided by Stellar MLS as distributed by the MLS GRID. Information from the Internet Data Exchange is provided exclusively for consumers’ personal, non-commercial use, and such information may not be used for any purpose other than to identify prospective properties consumers may be interested in purchasing. This data is deemed reliable but is not guaranteed to be accurate by Edina Realty, Inc., or by the MLS. Edina Realty, Inc., is not a multiple listing service (MLS), nor does it offer MLS access.
Copyright 2025 Stellar MLS as distributed by the MLS GRID. All Rights Reserved.
Payment Calculator
Interest rate and annual percentage rate (APR) are based on current market conditions, are for informational purposes only, are subject to change without notice and may be subject to pricing add-ons related to property type, loan amount, loan-to-value, credit score and other variables. Estimated closing costs used in the APR calculation are assumed to be paid by the borrower at closing. If the closing costs are financed, the loan, APR and payment amounts will be higher. If the down payment is less than 20%, mortgage insurance may be required and could increase the monthly payment and APR. Contact us for details. Additional loan programs may be available. Accuracy is not guaranteed, and all products may not be available in all borrower's geographical areas and are based on their individual situation. This is not a credit decision or a commitment to lend.
Sales History & Tax Summary for 856 Jade Forest Avenue
Sales History
| Date | Price | Change |
|---|---|---|
| Currently not available. | ||
Tax Summary
| Tax Year | Estimated Market Value | Total Tax |
|---|---|---|
| Currently not available. | ||
Data powered by ATTOM Data Solutions. Copyright© 2025. Information deemed reliable but not guaranteed.
Schools
Schools nearby 856 Jade Forest Avenue
| Schools in attendance boundaries | Grades | Distance | Rating |
|---|---|---|---|
| Loading... | |||
| Schools nearby | Grades | Distance | Rating |
|---|---|---|---|
| Loading... | |||
Data powered by ATTOM Data Solutions. Copyright© 2025. Information deemed reliable but not guaranteed.
The schools shown represent both the assigned schools and schools by distance based on local school and district attendance boundaries. Attendance boundaries change based on various factors and proximity does not guarantee enrollment eligibility. Please consult your real estate agent and/or the school district to confirm the schools this property is zoned to attend. Information is deemed reliable but not guaranteed.
SchoolDigger ® Rating
The SchoolDigger rating system is a 1-5 scale with 5 as the highest rating. SchoolDigger ranks schools based on test scores supplied by each state's Department of Education. They calculate an average standard score by normalizing and averaging each school's test scores across all tests and grades.
Coming soon properties will soon be on the market, but are not yet available for showings.