860 Snell Isle Boulevard NE Saint Petersburg, FL 33704
For Sale MLS# A4665216
4 beds 5 baths 2,299 sq ft Single Family
Details for 860 Snell Isle Boulevard NE
MLS# A4665216
Description for 860 Snell Isle Boulevard NE, Saint Petersburg, FL, 33704
One or more photo(s) has been virtually staged. Timeless architecture meets thoughtful luxury in this beautifully restored 1938 estate, tucked within one of St. Petersburg’s most sought-after neighborhoods. Blending original character with refined upgrades, this property offers privacy, versatility, and exceptional indoor-outdoor living. The main residence features vaulted beamed ceilings, a stunning new gas fireplace, and warm gathering spaces that feel both versatile and inviting. The chef’s kitchen is designed for everyday ease and entertaining alike, showcasing quartz countertops, ceramic tile backsplash, gas range, generous cabinetry, and seamless flow to the dining area. A butler’s pantry, laundry room, and guest bath add convenience, while two bedrooms each include their own stylish en-suite bath with walk-in tiled showers. A private courtyard becomes your personal retreat complete with pool and spa, more than 1,500 sq. ft. of travertine pavers, and a 14x16 covered patio ideal for dining, lounging, and entertaining. Lush tropical landscaping and a 6-foot block privacy wall create a true sanctuary. The separate guest house enhances the property’s flexibility, offering two additional bedrooms with en-suite baths and walk-in closets, plus an office/studio with floor-to-ceiling windows overlooking the pool — perfect for remote work, fitness, or creative pursuits. Notable improvements include moisture-resistant materials such as Purple board and Hardie board in key areas, new plumbing in the walls, upgraded subflooring with vapor barrier and plywood, durable waterproof wiring beneath the home, new interior doors throughout, a brand-new gas fireplace, and a new AC system complemented by mini-splits for added comfort and efficiency. Together, these upgrades enhance durability while preserving the home’s historic charm. Located just minutes from Downtown St. Petersburg’s waterfront parks, dining, marinas, boutiques, and arts scene, this estate delivers the rare combination of heritage, design, and convenience. Homes like this are seldom available. Is this home your perfect match?!
Listing Information
Property Type: Residential, Single Family Residence
Status: Active
Bedrooms: 4
Bathrooms: 5
Lot Size: 0.19 Acres
Square Feet: 2,299 sq ft
Year Built: 1938
Garage: Yes
Stories: 2 Story
Construction: Brick,Block
Subdivision: Snell Isle Brightwaters Sec 2
Foundation: Crawlspace,Slab
County: Pinellas
School Information
Elementary: North Shore Elementary-Pn
Middle: John Hopkins Middle-Pn
High: St. Petersburg High-Pn
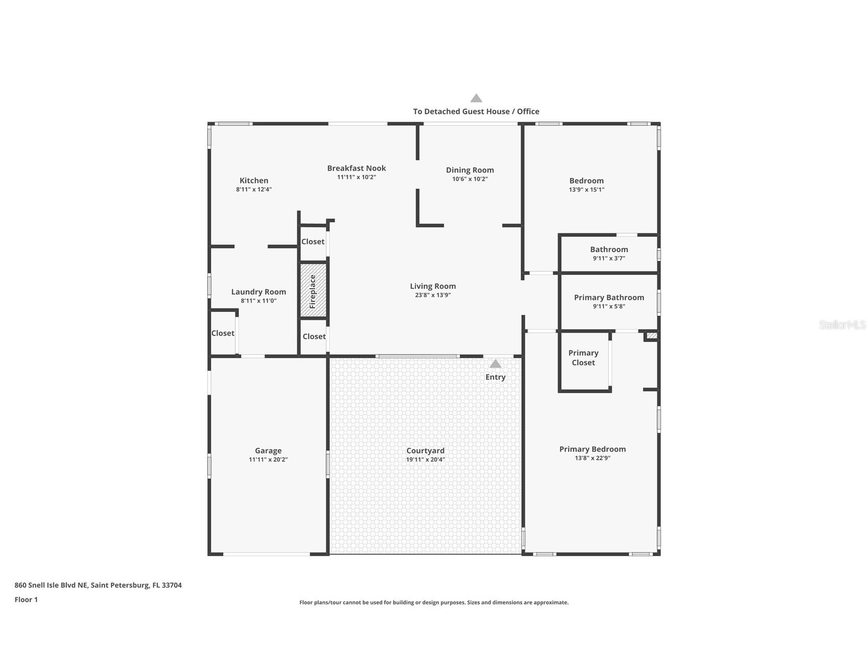
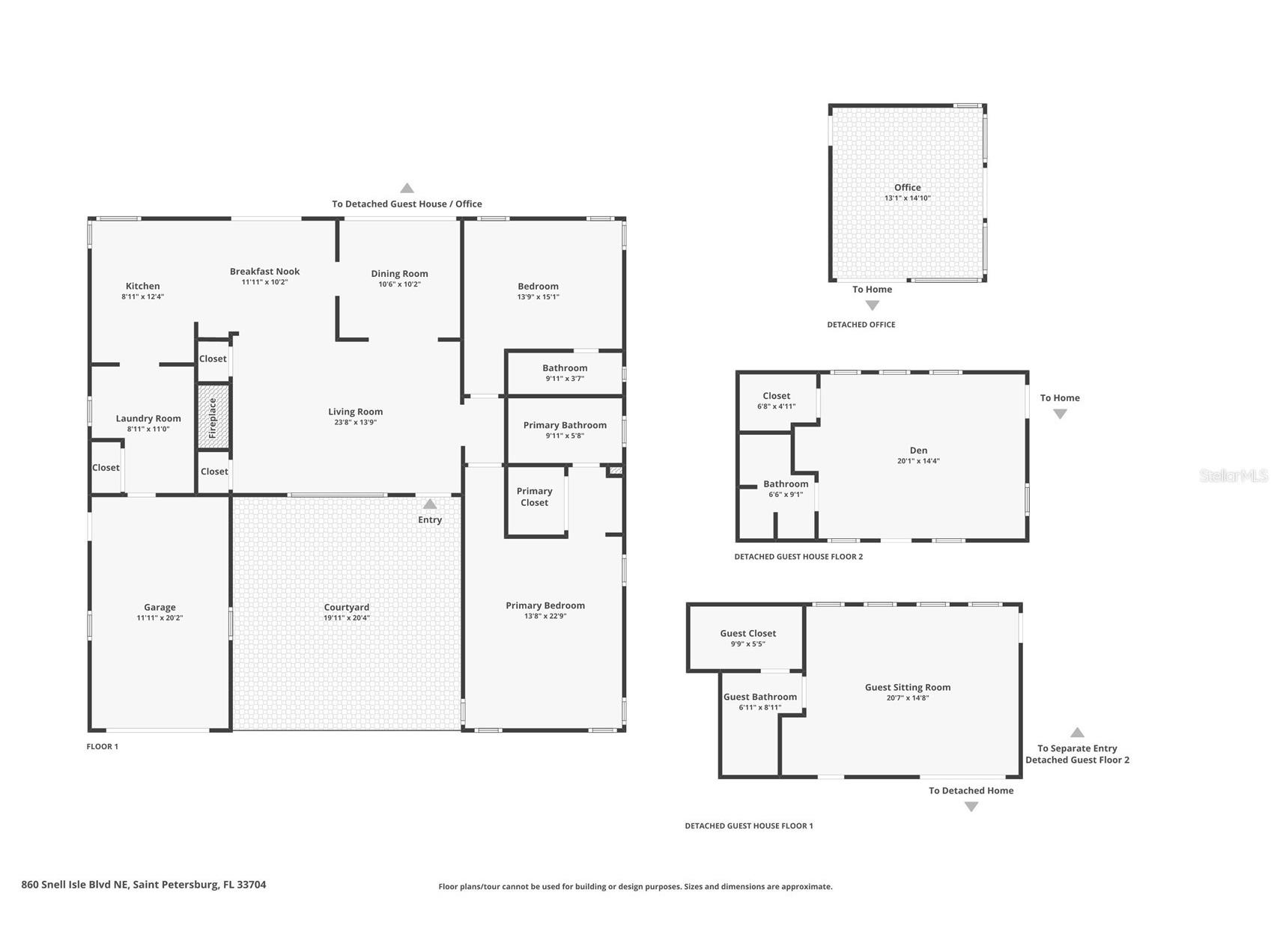
Room Information
Main Floor
Office:
Bedroom 3: 20x14
Bedroom 2: 13x11
Primary Bedroom: 13x22
Living Room: 9x10
Kitchen: 9.3x12.5
Dining Room: 11x10
Upper Floor
Bedroom 4: 14x18
Bathrooms
Full Baths: 4
1/2 Baths: 1
Additonal Room Information
Laundry: Inside, Laundry Room
Interior Features
Appliances: Wine Refrigerator, Gas Water Heater, Range Hood, Dishwasher, Disposal, Microwave, Range, Refrigerator
Flooring: Luxury Vinyl,Tile
Basement: Crawl Space
Doors/Windows: Window Treatments, Blinds
Fireplaces: Living Room, Gas
Additional Interior Features: Main Level Primary, Solid Surface Counters, Built-in Features, Open Floorplan, Vaulted Ceiling(s), Walk-In Closet(s), High Ceilings, Window Treatments, Ceiling Fan(s)
Utilities
Water: Public
Sewer: Public Sewer
Other Utilities: Electricity Connected,Natural Gas Connected,Municipal Utilities,Sewer Connected,Water Connected
Cooling: Ceiling Fan(s), Central Air, Ductless, Humidity Control
Heating: Zoned, Central
Exterior / Lot Features
Attached Garage: Attached Garage
Garage Spaces: 1
Parking Description: Garage Door Opener, Off Street, Garage, Circular Driveway, driveway
Roof: Tile, Metal
Pool: In Ground
Lot View: Garden,Pool
Lot Dimensions: 65X127
Fencing: fenced
Additional Exterior/Lot Features: Balcony, Rain Gutters, Sprinkler/Irrigation, Front Porch, Rear Porch, Balcony, Covered, Patio, Porch, Landscaped, Historic District, Near Golf Course
Out Buildings: Guest House
Community Features
Community Features: Sidewalks
Security Features: Smoke Detector(s)
Driving Directions
From I-75 N towards Tampa, take exit 228 toward St. Petersburg onto I-275 N. Take exit 24 toward 22nd Ave N. Turn right onto Coffee Pot Blvd NE. Turn left onto Snell Isle Blvd NE. Turn right toward Palmera Blvd NE. Turn left onto Snell Isle Blvd NE. End at 860 Snell Isle Blvd NE.
Financial Considerations
Terms: Cash,Conventional,FHA,VA Loan
Tax/Property ID: 08-31-17-83376-000-3260
Tax Amount: 16205
Tax Year: 2024
A broker reciprocity listing courtesy: HOUSE MATCH
Based on information provided by Stellar MLS as distributed by the MLS GRID. Information from the Internet Data Exchange is provided exclusively for consumers’ personal, non-commercial use, and such information may not be used for any purpose other than to identify prospective properties consumers may be interested in purchasing. This data is deemed reliable but is not guaranteed to be accurate by Edina Realty, Inc., or by the MLS. Edina Realty, Inc., is not a multiple listing service (MLS), nor does it offer MLS access.
Copyright 2026 Stellar MLS as distributed by the MLS GRID. All Rights Reserved.
Payment Calculator
Interest rate and annual percentage rate (APR) are based on current market conditions, are for informational purposes only, are subject to change without notice and may be subject to pricing add-ons related to property type, loan amount, loan-to-value, credit score and other variables. Estimated closing costs used in the APR calculation are assumed to be paid by the borrower at closing. If the closing costs are financed, the loan, APR and payment amounts will be higher. If the down payment is less than 20%, mortgage insurance may be required and could increase the monthly payment and APR. Contact us for details. Additional loan programs may be available. Accuracy is not guaranteed, and all products may not be available in all borrower's geographical areas and are based on their individual situation. This is not a credit decision or a commitment to lend.
Sales History & Tax Summary for 860 Snell Isle Boulevard NE
Sales History
| Date | Price | Change |
|---|---|---|
| Currently not available. | ||
Tax Summary
| Tax Year | Estimated Market Value | Total Tax |
|---|---|---|
| Currently not available. | ||
Data powered by ATTOM Data Solutions. Copyright© 2026. Information deemed reliable but not guaranteed.
Schools
Schools nearby 860 Snell Isle Boulevard NE
| Schools in attendance boundaries | Grades | Distance | Rating |
|---|---|---|---|
| Loading... | |||
| Schools nearby | Grades | Distance | Rating |
|---|---|---|---|
| Loading... | |||
Data powered by ATTOM Data Solutions. Copyright© 2026. Information deemed reliable but not guaranteed.
The schools shown represent both the assigned schools and schools by distance based on local school and district attendance boundaries. Attendance boundaries change based on various factors and proximity does not guarantee enrollment eligibility. Please consult your real estate agent and/or the school district to confirm the schools this property is zoned to attend. Information is deemed reliable but not guaranteed.
SchoolDigger ® Rating
The SchoolDigger rating system is a 1-5 scale with 5 as the highest rating. SchoolDigger ranks schools based on test scores supplied by each state's Department of Education. They calculate an average standard score by normalizing and averaging each school's test scores across all tests and grades.
Coming soon properties will soon be on the market, but are not yet available for showings.