$195,000
Off-Market Date: 02/01/20268666 Majestic Elm Court #8666 Lakewood Ranch, FL 34202
Pending MLS# A4680370
2 beds 3 baths 1,064 sq ft Townhouse/Twinhome
Details for 8666 Majestic Elm Court #8666
MLS# A4680370
Description for 8666 Majestic Elm Court #8666, Lakewood Ranch, FL, 34202
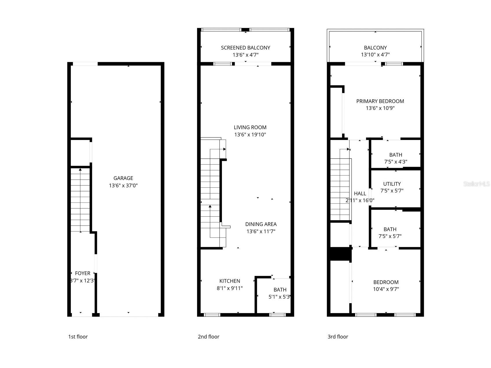
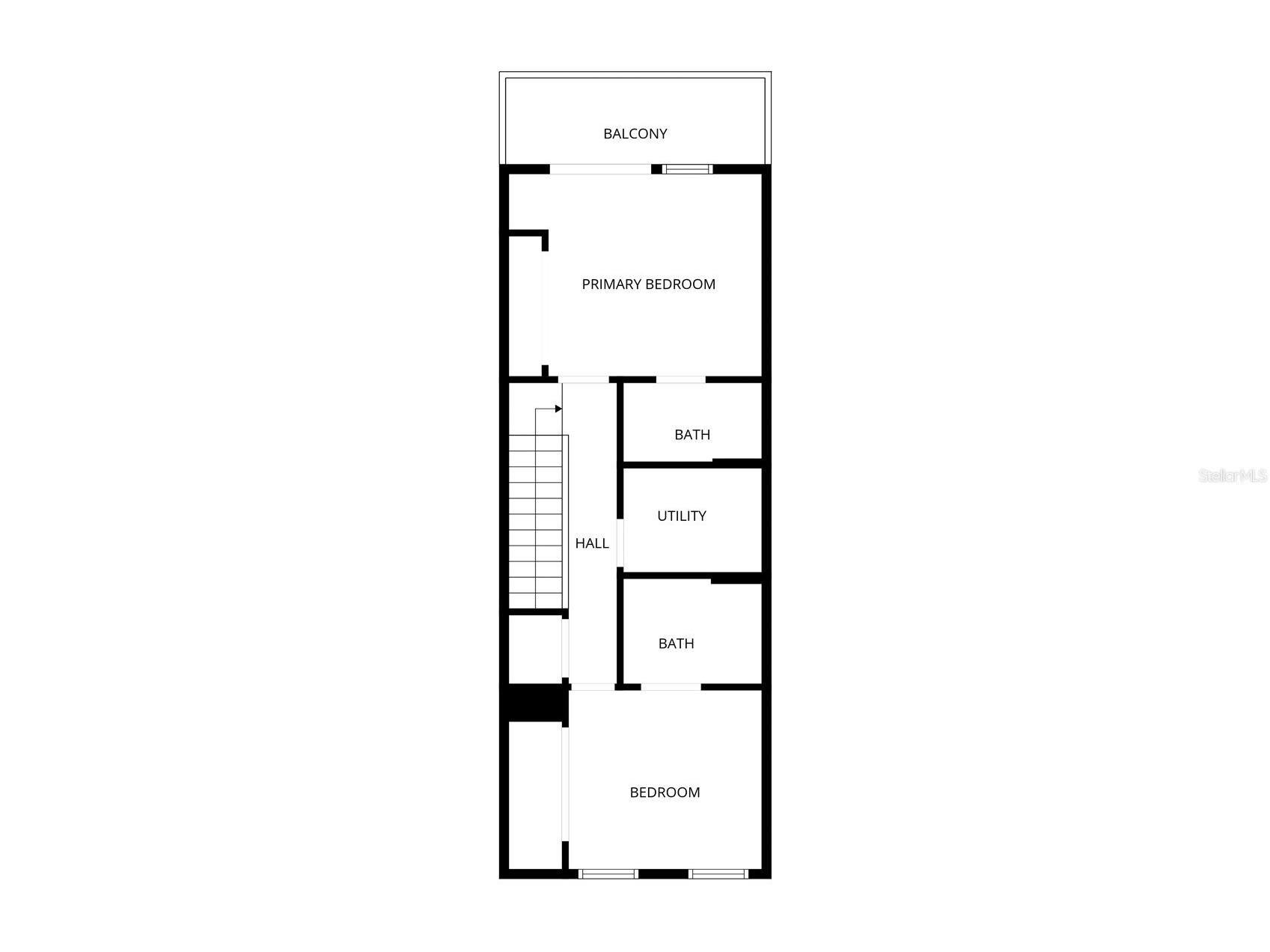
Under contract-accepting backup offers. This move-in-ready townhome stands out with major recent upgrades, including a new roof replaced by the association in 2022, a brand-new air conditioning system installed in 2025, all new ductwork, new kitchen appliances, and a new washer and dryer—improvements rarely found together at this price point. Located in the gated Willowbrook community, this home offers peace of mind, comfort, and true maintenance-free living in the heart of Lakewood Ranch. The main living level features a bright, open layout designed for everyday living and entertaining. The spacious living and dining areas flow seamlessly into the kitchen, creating a welcoming space filled with natural light. The kitchen is well appointed with newly updated appliances, ample cabinetry, and a functional layout that makes both casual meals and hosting guests easy and enjoyable. This level offers a comfortable balance of openness and privacy, ideal for modern living. Upstairs, the home offers two ensuite bedrooms, each with its own private bathroom, providing flexibility and privacy for residents and guests alike. The separation between living and sleeping spaces makes the layout especially appealing for full-time living, seasonal use, or a lock-and-leave lifestyle. The three-story design includes a tandem parking garage on the first-floor/basement level, offering secure parking along with additional storage space—an often overlooked but valuable feature for townhome living. Willowbrook at Lakewood Ranch delivers a true maintenance-free lifestyle, with lawn care, exterior maintenance, water, sewer, trash, internet, and cable all included, along with access to the community pool and no CDD fee. The location is exceptional, placing you just minutes from Lakewood Ranch’s best shopping, dining, and entertainment, with easy access to the University Parkway corridor, UTC Mall, I-75, and Sarasota’s world-famous beaches. With its new roof, 2025 A/C and ductwork, new appliances, maintenance-free living, community pool, and prime Lakewood Ranch location, this townhome presents an outstanding opportunity. Contact us today to schedule your private showing and see this beautifully upgraded home in person.
Listing Information
Property Type: Residential, Townhouse
Status: Pending
Bedrooms: 2
Bathrooms: 3
Square Feet: 1,064 sq ft
Year Built: 2007
Garage: Yes
Stories: 3 Story
Construction: Block
Subdivision: Willowbrook Phase 3
Foundation: Slab
County: Manatee
School Information
Elementary: Robert E Willis Elementary
Middle: Braden River Middle
High: Lakewood Ranch High
Room Information
Upper Floor
Living Room:
Porch:
Bedroom 2:
Primary Bedroom:
Dining Room:
Porch:
Kitchen:
Bathrooms
Full Baths: 2
1/2 Baths: 1
Additonal Room Information
Laundry: Laundry Room, Upper Level
Interior Features
Appliances: Washer, Microwave, Range, Refrigerator, Dishwasher, Dryer
Flooring: Ceramic Tile,Luxury Vinyl
Additional Interior Features: Split Bedrooms, Eat-In Kitchen, Ceiling Fan(s), Tray Ceiling(s), Living/Dining Room, Kitchen/Family Room Combo, Upper Level Primary, Solid Surface Counters, Open Floorplan
Utilities
Water: Public
Sewer: Public Sewer
Other Utilities: Other
Cooling: Ceiling Fan(s), Central Air
Heating: Electric, Central
Exterior / Lot Features
Attached Garage: Attached Garage
Garage Spaces: 1
Parking Description: Garage Door Opener, Garage, Underground, Tandem, driveway
Roof: Shingle
Pool: Association, Community
Lot View: Trees/Woods
Additional Exterior/Lot Features: Balcony, Balcony, Covered, Deck, Patio, Front Porch, Screened, Landscaped, Cul-de-Sac
Community Features
Community Features: Pool, Clubhouse, Sidewalks
Association Amenities: Clubhouse, Pool
HOA Dues Include: Water, Sewer, Recreation Facilities, Maintenance Structure, Pool(s), Association Management, Maintenance Grounds
Driving Directions
From I75 take exit 213 heading east on University Pkwy then turn left onto Market Street then turn left onto Town Center Pkwy then turn left into White Sage Loop then turn left onto Majestic Elm Ct. The unit will be on the left.
Financial Considerations
Terms: Cash
Tax/Property ID: 1918521659
Tax Amount: 2943.1
Tax Year: 2025
A broker reciprocity listing courtesy: RE/MAX ALLIANCE GROUP
Based on information provided by Stellar MLS as distributed by the MLS GRID. Information from the Internet Data Exchange is provided exclusively for consumers’ personal, non-commercial use, and such information may not be used for any purpose other than to identify prospective properties consumers may be interested in purchasing. This data is deemed reliable but is not guaranteed to be accurate by Edina Realty, Inc., or by the MLS. Edina Realty, Inc., is not a multiple listing service (MLS), nor does it offer MLS access.
Copyright 2026 Stellar MLS as distributed by the MLS GRID. All Rights Reserved.
Sales History & Tax Summary for 8666 Majestic Elm Court #8666
Sales History
| Date | Price | |
|---|---|---|
| Currently not available. | ||
Tax Summary
| Tax Year | Estimated Market Value | Total Tax |
|---|---|---|
| Currently not available. | ||
Data powered by ATTOM Data Solutions. Copyright© 2026. Information deemed reliable but not guaranteed.
Schools
Schools nearby 8666 Majestic Elm Court #8666
| Schools in attendance boundaries | Grades | Distance | Rating |
|---|---|---|---|
| Loading... | |||
| Schools nearby | Grades | Distance | Rating |
|---|---|---|---|
| Loading... | |||
Data powered by ATTOM Data Solutions. Copyright© 2026. Information deemed reliable but not guaranteed.
The schools shown represent both the assigned schools and schools by distance based on local school and district attendance boundaries. Attendance boundaries change based on various factors and proximity does not guarantee enrollment eligibility. Please consult your real estate agent and/or the school district to confirm the schools this property is zoned to attend. Information is deemed reliable but not guaranteed.
SchoolDigger ® Rating
The SchoolDigger rating system is a 1-5 scale with 5 as the highest rating. SchoolDigger ranks schools based on test scores supplied by each state's Department of Education. They calculate an average standard score by normalizing and averaging each school's test scores across all tests and grades.
Coming soon properties will soon be on the market, but are not yet available for showings.