$364,990
869 Gunnison Drive Orange City, FL 32763
For Sale MLS# O6384461
4 beds 2 baths 1,836 sq ft Single Family
Details for 869 Gunnison Drive
MLS# O6384461
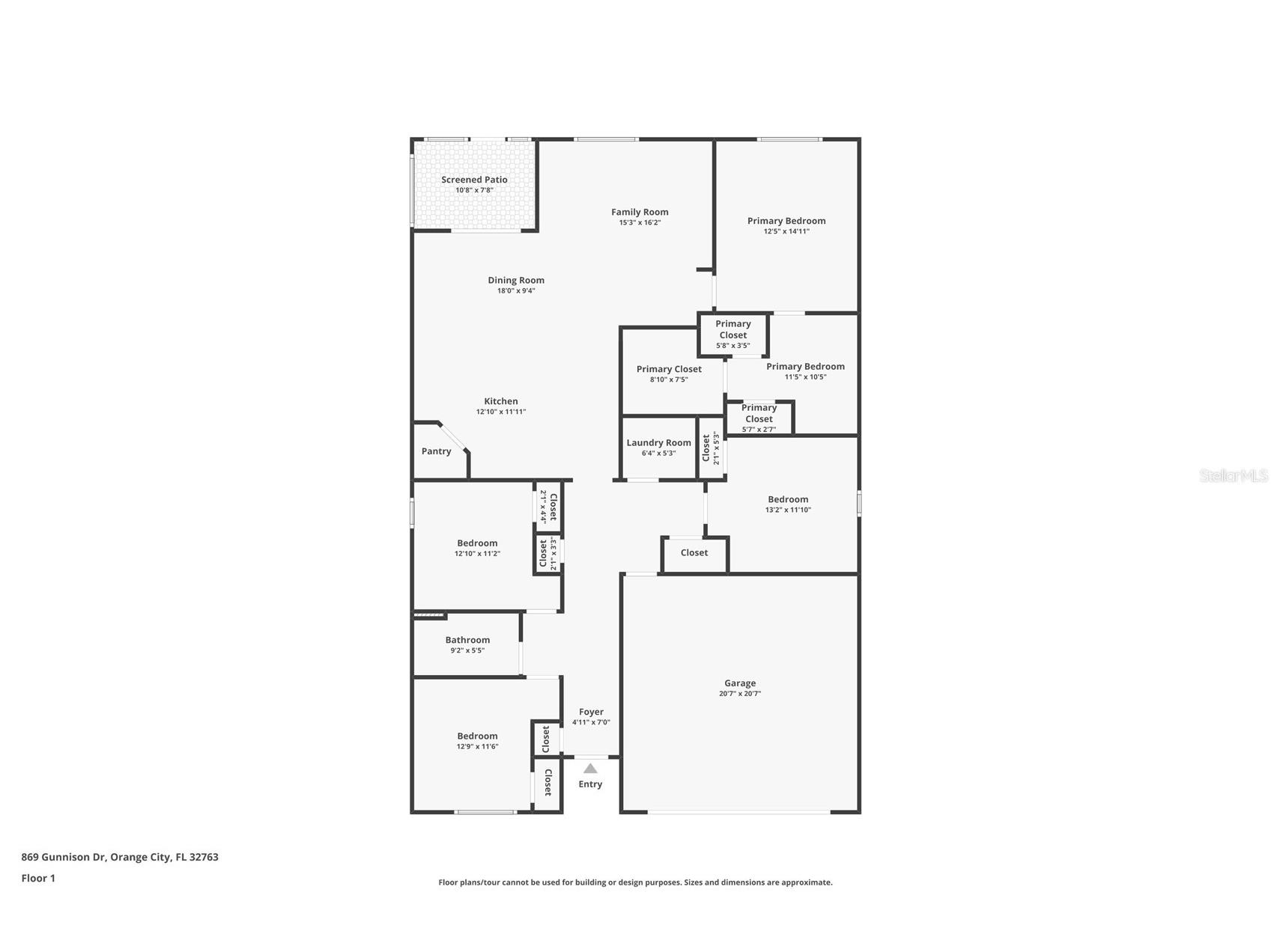
Description for 869 Gunnison Drive, Orange City, FL, 32763
Built in 2020 and designed with a popular OPEN CONCEPT floor plan, this light and bright 4-bedroom, 2-bath single story home in Cadence at Parc Hill is MOVE-IN READY and perfectly positioned on a desirable CORNER LOT! With all major systems still young and in great condition, you can enjoy peace of mind along with a stylish, modern interior. Step inside to TILE FLOORING throughout the main living areas, ceiling fans installed in every bedroom, and a spacious layout with 3-WAY SPLIT BEDROOMS that offers both comfort and privacy. The heart of the home is the modern kitchen, featuring a fresh color palette with gray cabinetry, complementary granite countertops, STAINLESS STEEL APPLIANCES, pantry storage, and a large ISLAND with bar seating, all open to the living and dining areas – ideal for everyday living or for those who love to entertain. Situated at the back of the home for added privacy, your PRIMARY SUITE offers a relaxing retreat with a WALK-IN CLOSET and private en-suite bath. Three additional bedrooms are thoughtfully positioned across the home, providing flexibility for guests, family, or a home office. Sliding glass doors lead to SCREENED LANAI overlooking the FENCED BACKYARD, where a paver patio creates the perfect outdoor space for grilling, relaxing, or hosting friends. Located in the welcoming Cadence at Parc Hill community, residents enjoy access to community amenities including a POOL & PLAYGROUND, while the convenient Orange City location offers quick access to S. Volusia Avenue, Veterans Memorial Parkway, and I-4 for easy commuting. You are also just minutes from shopping, dining, state parks, and Lake Monroe, putting outdoor recreation and everyday conveniences within easy reach. Call today to schedule a tour and let us say WELCOME HOME!
Listing Information
Property Type: Residential, Single Family Residence
Status: Active
Bedrooms: 4
Bathrooms: 2
Lot Size: 0.19 Acres
Square Feet: 1,836 sq ft
Year Built: 2020
Garage: Yes
Stories: 1 Story
Construction: Block,Stucco
Subdivision: Cadence/Parc Hill
Builder: DR HORTON
Foundation: Slab
County: Volusia
School Information
Elementary: Manatee Cove Elem
Middle: River Springs Middle School
High: University High School-Vol
Room Information
Main Floor
Bedroom 4: 12x13
Bedroom 3: 11x13
Bedroom 2: 12x13
Primary Bathroom: 11x12
Primary Bedroom: 13x15
Dining Room: 9x18
Living Room: 15x16
Kitchen: 12x13
Bathrooms
Full Baths: 2
Additonal Room Information
Laundry: Laundry Room
Interior Features
Appliances: Washer, Range, Refrigerator, Dishwasher, Disposal, Dryer, Microwave, Electric Water Heater
Flooring: Carpet,Tile
Doors/Windows: Rods, Blinds, Double Pane Windows, Window Treatments
Additional Interior Features: Eat-In Kitchen, Ceiling Fan(s), Split Bedrooms, Living/Dining Room, Window Treatments, Walk-In Closet(s), Open Floorplan, Stone Counters, Main Level Primary
Utilities
Water: Public
Sewer: Public Sewer
Other Utilities: Cable Available,Electricity Connected,High Speed Internet Available,Municipal Utilities,Sewer Connected,Underground Utilities,Water Connected
Cooling: Ceiling Fan(s), Central Air
Heating: Central
Exterior / Lot Features
Attached Garage: Attached Garage
Garage Spaces: 2
Parking Description: driveway
Roof: Shingle
Pool: Community
Fencing: fenced, Vinyl
Additional Exterior/Lot Features: Sprinkler/Irrigation, Lighting, Other, Patio, Covered, Screened, Rear Porch, Corner Lot, Landscaped
Community Features
Community Features: Pool, Playground, Sidewalks, Street Lights
HOA Dues Include: Maintenance Grounds, Pool(s)
Homeowners Association: Yes
HOA Dues: $120 / Monthly
Driving Directions
From Harley Strickland Blvd, Turn right onto Jr St, Turn right onto Denali Dr, Turn left onto Gunnison Dr. Home will be on the left.
Financial Considerations
Terms: Cash,Conventional,FHA,VA Loan
Tax/Property ID: 801436000890
Tax Amount: 5420
Tax Year: 2025
A broker reciprocity listing courtesy: WEMERT GROUP REALTY LLC
Based on information provided by Stellar MLS as distributed by the MLS GRID. Information from the Internet Data Exchange is provided exclusively for consumers’ personal, non-commercial use, and such information may not be used for any purpose other than to identify prospective properties consumers may be interested in purchasing. This data is deemed reliable but is not guaranteed to be accurate by Edina Realty, Inc., or by the MLS. Edina Realty, Inc., is not a multiple listing service (MLS), nor does it offer MLS access.
Copyright 2026 Stellar MLS as distributed by the MLS GRID. All Rights Reserved.
Payment Calculator
Interest rate and annual percentage rate (APR) are based on current market conditions, are for informational purposes only, are subject to change without notice and may be subject to pricing add-ons related to property type, loan amount, loan-to-value, credit score and other variables. Estimated closing costs used in the APR calculation are assumed to be paid by the borrower at closing. If the closing costs are financed, the loan, APR and payment amounts will be higher. If the down payment is less than 20%, mortgage insurance may be required and could increase the monthly payment and APR. Contact us for details. Additional loan programs may be available. Accuracy is not guaranteed, and all products may not be available in all borrower's geographical areas and are based on their individual situation. This is not a credit decision or a commitment to lend.
Sales History & Tax Summary for 869 Gunnison Drive
Sales History
| Date | Price | |
|---|---|---|
| Currently not available. | ||
Tax Summary
| Tax Year | Estimated Market Value | Total Tax |
|---|---|---|
| Currently not available. | ||
Data powered by ATTOM Data Solutions. Copyright© 2026. Information deemed reliable but not guaranteed.
Schools
Schools nearby 869 Gunnison Drive
| Schools in attendance boundaries | Grades | Distance | Rating |
|---|---|---|---|
| Loading... | |||
| Schools nearby | Grades | Distance | Rating |
|---|---|---|---|
| Loading... | |||
Data powered by ATTOM Data Solutions. Copyright© 2026. Information deemed reliable but not guaranteed.
The schools shown represent both the assigned schools and schools by distance based on local school and district attendance boundaries. Attendance boundaries change based on various factors and proximity does not guarantee enrollment eligibility. Please consult your real estate agent and/or the school district to confirm the schools this property is zoned to attend. Information is deemed reliable but not guaranteed.
SchoolDigger ® Rating
The SchoolDigger rating system is a 1-5 scale with 5 as the highest rating. SchoolDigger ranks schools based on test scores supplied by each state's Department of Education. They calculate an average standard score by normalizing and averaging each school's test scores across all tests and grades.
Coming soon properties will soon be on the market, but are not yet available for showings.