$723,470
Off-Market Date: 01/26/20268692 183rd Street W Lakeville, MN 55044
Pending MLS# 7001898
5 beds 4 baths 2,956 sq ft Single Family
Details for 8692 183rd Street W
MLS# 7001898
Description for 8692 183rd Street W, Lakeville, MN, 55044
Home is complete and move-in ready! Set on a spacious walkout homesite, this impressive two-story home features a three-car garage and a thoughtfully designed layout for modern living. The main level includes a generous Great Room with a cozy fireplace, an upgraded gourmet kitchen with stainless steel appliances, a casual dinette, a formal dining room, and a bright morning room—perfect for reading or relaxation. A first-floor suite offers flexibility for guests, extended stays, or a home office. Upstairs, three well-sized secondary bedrooms provide plenty of space, while the luxurious owner’s suite serves as a private retreat. Premium upgrades include luxury vinyl plank flooring on the main level, sleek quartz countertops, a center fireplace, and a brand-new Frigidaire appliance package. Located in Caslano, residents enjoy easy access to I-35, historic downtown Lakeville, excellent parks, and the 340-acre Ritter Farm Park. Eastview Elementary and Century Middle schools are less than a mile away, and this home is part of the award-winning Lakeville ISD 194—offering a perfect balance of style, convenience, and family-friendly living.
Listing Information
Property Type: Residential, Single Family
Status: Pending
Bedrooms: 5
Bathrooms: 4
Lot Size: 0.26 Acres
Square Feet: 2,956 sq ft
Year Built: 2025
Foundation: 1,415 sq ft
Garage: Yes
Stories: 2 Stories
Date Available: 12/20/2025
Construction Display: New Construction
Completion date: 2025-12-20T06:00:00Z
Subdivision: Caslano
Builder: LENNAR
County: Dakota
Construction Status: Completed New Construction
School Information
District: 194 - Lakeville
Room Information
Main Floor
Bedroom 5: 11x12
Dining Room: 12x13
Family Room: 17x17
Kitchen: 12x19
Sun Room: 16 x 10
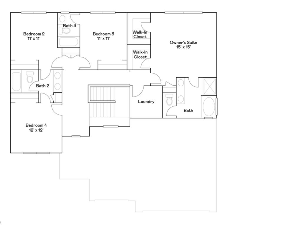
Upper Floor
Bedroom 1: 15x15
Bedroom 2: 11x11
Bedroom 3: 11x11
Bedroom 4: 11 x 12
Laundry: 4x7
Bathrooms
Full Baths: 3
3/4 Baths: 1
Additonal Room Information
Family: Family Room,Great Room,Main Level
Dining: Eat In Kitchen,Informal Dining Room,Kitchen/Dining Room,Living/Dining Room
Laundry: Washer Hookup, Laundry Room, Upper Level, Gas Dryer Hookup
Bath Description: Double Sink,Bathroom Ensuite,Full Primary,Main Floor 3/4 Bath,Private Primary,Upper Level Full Bath,Walk-In Shower Stall
Interior Features
Square Footage above: 2,956 sq ft
Appliances: Tankless Water Heater, Stainless Steel Appliances, Wall Oven, Refrigerator, Furnace Humidifier, Microwave, Air-To-Air Exchanger, Dishwasher, Disposal, Cooktop, Exhaust Fan/Hood
Basement: Storage Space, Unfinished, Walkout
Fireplaces: 1, Living Room, Electric, Family Room
Additional Interior Features: Natural Woodwork, Kitchen Window, Washer/Dryer Hookup, Kitchen Center Island, Walk-In Closet, Sun Room, 3 BR on One Level, 4 BR on One Level, Main Floor Bedroom, Paneled Doors, 2nd Floor Laundry, Primary Bdr Suite
Utilities
Water: City Water/Connected
Sewer: City Sewer/Connected
Cooling: Central
Heating: Fireplace, Forced Air, Natural Gas
Exterior / Lot Features
Attached Garage: Attached Garage
Garage Spaces: 3
Parking Description: Driveway - Asphalt, Attached Garage, Garage Door Opener, Garage Dimensions - 30x22, Garage Door Height - 8, Garage Door Width - 16, Garage Sq Ft - 660.0
Exterior: Brick/Stone, Vinyl
Roof: Age 8 Years or Less, Asphalt Shingles, Pitched
Lot Dimensions: TBD
Zoning: Residential-Single Family
Additional Exterior/Lot Features: Porch, In-Ground Sprinkler, Sod Included in Price, Underground Utilities, Road Frontage - Paved Streets, Sidewalks, Curbs, Storm Sewer
Driving Directions
S on Cedar Ave past Dodd. Turn onto 185th St W- first Left turn and right on 187th St W. Model on left.
Financial Considerations
Tax/Property ID: TBD
Tax Year: 2026
HomeStead Description: Non-Homesteaded
A broker reciprocity listing courtesy: Lennar Sales Corp
The data relating to real estate for sale on this web site comes in part from the Broker Reciprocity℠ Program of the Regional Multiple Listing Service of Minnesota, Inc. Real estate listings held by brokerage firms other than Edina Realty, Inc. are marked with the Broker Reciprocity℠ logo or the Broker Reciprocity℠ thumbnail and detailed information about them includes the name of the listing brokers. Edina Realty, Inc. is not a Multiple Listing Service (MLS), nor does it offer MLS access. This website is a service of Edina Realty, Inc., a broker Participant of the Regional Multiple Listing Service of Minnesota, Inc. IDX information is provided exclusively for consumers personal, non-commercial use and may not be used for any purpose other than to identify prospective properties consumers may be interested in purchasing. Open House information is subject to change without notice. Information deemed reliable but not guaranteed.
Copyright 2026 Regional Multiple Listing Service of Minnesota, Inc. All Rights Reserved.
Sales History & Tax Summary for 8692 183rd Street W
Sales History
| Date | Price | |
|---|---|---|
| Currently not available. | ||
Tax Summary
| Tax Year | Estimated Market Value | Total Tax |
|---|---|---|
| Currently not available. | ||
Data powered by ATTOM Data Solutions. Copyright© 2026. Information deemed reliable but not guaranteed.
Schools
Schools nearby 8692 183rd Street W
| Schools in attendance boundaries | Grades | Distance | Rating |
|---|---|---|---|
| Loading... | |||
| Schools nearby | Grades | Distance | Rating |
|---|---|---|---|
| Loading... | |||
Data powered by ATTOM Data Solutions. Copyright© 2026. Information deemed reliable but not guaranteed.
The schools shown represent both the assigned schools and schools by distance based on local school and district attendance boundaries. Attendance boundaries change based on various factors and proximity does not guarantee enrollment eligibility. Please consult your real estate agent and/or the school district to confirm the schools this property is zoned to attend. Information is deemed reliable but not guaranteed.
SchoolDigger ® Rating
The SchoolDigger rating system is a 1-5 scale with 5 as the highest rating. SchoolDigger ranks schools based on test scores supplied by each state's Department of Education. They calculate an average standard score by normalizing and averaging each school's test scores across all tests and grades.
Coming soon properties will soon be on the market, but are not yet available for showings.