8711 E Cresco Lane Inverness, FL 34450
For Sale MLS# TB8319110
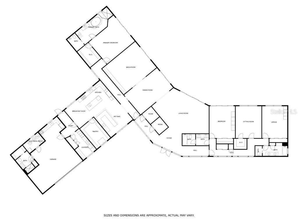
5 beds 6 baths 4,786 sq ft Single Family
Details for 8711 E Cresco Lane
MLS# TB8319110
Description for 8711 E Cresco Lane, Inverness, FL, 34450
Welcome to your dream oasis at 8711 East Cresco Lane, a non-flood zone brick construction masterpiece of elegance and wit nestled on a sprawling 1.23-acre waterfront estate mere steps away from the Inverness Golf and Country Club. The property is secured by a privacy hedge and luxurious custom Viking wrought iron motorized gates that open to your circular driveway. As you walk through the custom mahogany front doors in to the 4,786 square foot single-story that boasts 4 bedrooms and 5 bathrooms, offering a refined space with a true east and west wing for the buyer of the highest caliber. The property doesn’t just stop at the main house. The charming additional 1,388 square foot boat house also offers a waterfront retreat for your guests and water toys! Step inside to discover a world where sophistication meets comfort. The open floor plan seamlessly connects the living areas, creating an inviting atmosphere perfect for hosting soirées or enjoying quiet evenings with loved ones. The gourmet kitchen, a chef's delight, features a top-of-the-line Z Line 6 burner gas range, 2 electric ovens, Bosch dishwasher and refrigerator, leathered granite countertops with a seamless backsplash, a custom mahogany hood, custom mahogany waterfall countertops, and refined two tone soft close shaker cabinetry with below cabinet and in cabinet lighting. If that wasn’t enough, the adjacent bar comes complete with 2 SubZero refrigerator drawers, a copper sink, U-Line ice maker, custom mahogany bar cabinetry, and the walls are custom Venetian plaster throughout. The luxury is truly unparalleled in this home with herringbone bamboo flooring, 9 inch baseboards, custom crown moldings, coffered ceilings in the media room, vaulted ceilings in the living room, an octagonal tray ceiling in the dining room, Pella impact rated windows and sliders, recessed LED lighting, brass art work sconces, double cedar lined closets, and so much more. The updates are truly endless! Imagine mornings spent sipping coffee walking the estate, with the gentle breeze from the water. Outside, the expansive waterfront lot offers endless possibilities for outdoor enjoyment. Whether you're lounging by the water, practicing your swing, or simply soaking in the quintessential Florida lifestyle, this estate is your personal paradise. Embrace the elegance, relish the wit, and make this extraordinary home yours today. FAVORABLE OWNER FINANCING AVAILABLE WITH $500,000 DOWN!
Listing Information
Property Type: Residential, Single Family Residence
Status: Active
Bedrooms: 5
Bathrooms: 6
Lot Size: 1.23 Acres
Square Feet: 4,786 sq ft
Year Built: 1968
Garage: Yes
Stories: 1 Story
Construction: Brick
Subdivision: Davis Lake Golf Estates Unit 02
Foundation: Slab
County: Citrus
Room Information
Main Floor
Primary Bedroom:
Kitchen:
Dining Room:
Living Room:
Bathrooms
Full Baths: 6
Additonal Room Information
Laundry: Laundry Room, Inside
Interior Features
Appliances: Ice Maker, Electric Water Heater, Water Softener, Range Hood, Washer, Cooktop, Dishwasher, Disposal, Dryer, Microwave, Range, Refrigerator, Water Purifier
Flooring: Tile,Travertine,Wood
Doors/Windows: Window Treatments, Shutters
Fireplaces: Electric
Additional Interior Features: Wet Bar, Eat-In Kitchen, Vaulted Ceiling(s), High Ceilings, Walk-In Closet(s), Living/Dining Room, Tray Ceiling(s), Built-in Features, Window Treatments, Crown Molding, Dry Bar, Coffered Ceiling(s), Smart Home, Stone Counters, Wood Cabinets, Chair Rail, Open Floorplan, Kitchen/Family Room Combo
Utilities
Water: Well
Sewer: Septic Tank
Other Utilities: Cable Connected,Electricity Connected,Natural Gas Connected,Municipal Utilities,Sewer Connected,Water Connected
Cooling: Central Air, Ductless
Heating: Electric, Central
Exterior / Lot Features
Attached Garage: Attached Garage
Garage Spaces: 2
Parking Description: Bath In Garage, Circular Driveway
Roof: Shingle
Lot View: Lake,Water
Lot Dimensions: 196x233
Additional Exterior/Lot Features: Sprinkler/Irrigation, Lighting, Outdoor Shower, Front Porch, Rear Porch, Landscaped, Oversized Lot, Near Golf Course, Rolling Slope
Out Buildings: Boat House
Waterfront Details
Boat Facilities: Boat Facilities
Water Front Features: Lake, Lake Front, Lake Privileges
Driving Directions
From US 41N, get off and turn right on E Gobbler Dr, turn left on S Old Florida City Rd, turn right on E Sandpiper Rd, turn left on S Country Club Dr, turn left on E Cresco Lane, and home is on the right.
Financial Considerations
Terms: Cash,Conventional,Owner May Carry
Tax/Property ID: 20E-19S-22-0020-000A0-0190
Tax Amount: 4877.62
Tax Year: 2023
A broker reciprocity listing courtesy: COMPASS FLORIDA LLC
Based on information provided by Stellar MLS as distributed by the MLS GRID. Information from the Internet Data Exchange is provided exclusively for consumers’ personal, non-commercial use, and such information may not be used for any purpose other than to identify prospective properties consumers may be interested in purchasing. This data is deemed reliable but is not guaranteed to be accurate by Edina Realty, Inc., or by the MLS. Edina Realty, Inc., is not a multiple listing service (MLS), nor does it offer MLS access.
Copyright 2025 Stellar MLS as distributed by the MLS GRID. All Rights Reserved.
Payment Calculator
Interest rate and annual percentage rate (APR) are based on current market conditions, are for informational purposes only, are subject to change without notice and may be subject to pricing add-ons related to property type, loan amount, loan-to-value, credit score and other variables. Estimated closing costs used in the APR calculation are assumed to be paid by the borrower at closing. If the closing costs are financed, the loan, APR and payment amounts will be higher. If the down payment is less than 20%, mortgage insurance may be required and could increase the monthly payment and APR. Contact us for details. Additional loan programs may be available. Accuracy is not guaranteed, and all products may not be available in all borrower's geographical areas and are based on their individual situation. This is not a credit decision or a commitment to lend.
Sales History & Tax Summary for 8711 E Cresco Lane
Sales History
| Date | Price | Change |
|---|---|---|
| Currently not available. | ||
Tax Summary
| Tax Year | Estimated Market Value | Total Tax |
|---|---|---|
| Currently not available. | ||
Data powered by ATTOM Data Solutions. Copyright© 2025. Information deemed reliable but not guaranteed.
Schools
Schools nearby 8711 E Cresco Lane
| Schools in attendance boundaries | Grades | Distance | Rating |
|---|---|---|---|
| Loading... | |||
| Schools nearby | Grades | Distance | Rating |
|---|---|---|---|
| Loading... | |||
Data powered by ATTOM Data Solutions. Copyright© 2025. Information deemed reliable but not guaranteed.
The schools shown represent both the assigned schools and schools by distance based on local school and district attendance boundaries. Attendance boundaries change based on various factors and proximity does not guarantee enrollment eligibility. Please consult your real estate agent and/or the school district to confirm the schools this property is zoned to attend. Information is deemed reliable but not guaranteed.
SchoolDigger ® Rating
The SchoolDigger rating system is a 1-5 scale with 5 as the highest rating. SchoolDigger ranks schools based on test scores supplied by each state's Department of Education. They calculate an average standard score by normalizing and averaging each school's test scores across all tests and grades.
Coming soon properties will soon be on the market, but are not yet available for showings.