$255,900
8729 SW 60th Circle Ocala, FL 34476
For Sale MLS# OM704824
2 beds 2 baths 1,721 sq ft Single Family
Details for 8729 SW 60th Circle
MLS# OM704824
Description for 8729 SW 60th Circle, Ocala, FL, 34476
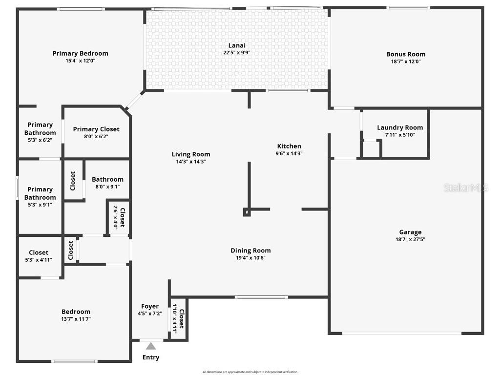
Updated Home • Flexible Layout • Premier 55+ Amenities — Welcome to Marion Landing. Located in one of Ocala’s most established and highly regarded 55+ communities, this light-filled 2-bedroom, 2-bath home offers surprising flexibility, major recent upgrades, and over 1,700 sq. ft. of comfortable living space. A standout feature is the bonus flex room just off the kitchen — ideal for an office, craft room, den, or easy conversion into a 3rd bedroom. To make it even simpler, the seller is including a $2,000 credit at closing toward the closet addition or buyer closing costs. The big-ticket updates are already done for you: ? Brand-new roof (2024) ? Fresh exterior paint (2024) ? Newer HVAC (2020) Inside, the home flows beautifully with vaulted ceilings, a spacious living room, and an open kitchen overlooking the main living area—perfect for entertaining or enjoying a quiet morning. The primary suite offers a walk-in closet and private bath, while the split bedroom layout ensures privacy for guests. One of the best features of the home is the 220 sq ft enclosed Florida room, filled with natural light and overlooking a peaceful backyard. It’s the perfect space to relax, read, sip your morning coffee, or enjoy your plants year-round. Additional highlights include: • Oversized 2-car garage • Irrigation system • Generous storage throughout • Low-maintenance yard • Move-in-ready condition And then there's the lifestyle — Marion Landing is the only 55+ community in Ocala with its own private bowling alley. The amenity package is outstanding, including: ?? Private bowling lanes ?? Pool & spa ?? Tennis & shuffleboard courts ?? Active clubhouse with planned events ?? Walking paths & green spaces ?? Beautiful, mature landscaping throughout Located right off SR-200, you’re minutes from shopping, dining, medical offices, and I-75. Offered at $255,900, this home combines updates, flexibility, and one of the best amenity packages in Ocala — a rare find at this price point. Schedule your private showing today and see why Marion Landing is one of Ocala’s most loved 55+ communities.
Listing Information
Property Type: Residential, Single Family Residence
Status: Active
Bedrooms: 2
Bathrooms: 2
Lot Size: 0.18 Acres
Square Feet: 1,721 sq ft
Year Built: 2002
Garage: Yes
Stories: 1 Story
Construction: Block,Stucco
Subdivision: Marion Landing Un 03
Foundation: Slab
County: Marion
Room Information
Main Floor
Primary Bedroom: 15x12
Kitchen: 15x10
Living Room: 25x14
Bathrooms
Full Baths: 2
Additonal Room Information
Laundry: Laundry Room
Interior Features
Appliances: Electric Water Heater, Microwave, Dishwasher, Disposal, Range, Refrigerator
Flooring: Carpet,Tile
Doors/Windows: Window Treatments, Skylight(s)
Additional Interior Features: Ceiling Fan(s), Walk-In Closet(s), Window Treatments, Open Floorplan, Living/Dining Room, Skylights, Tray Ceiling(s)
Utilities
Water: Private
Sewer: Private Sewer
Other Utilities: Electricity Connected
Cooling: Ceiling Fan(s), Central Air
Heating: Electric, Central
Exterior / Lot Features
Attached Garage: Attached Garage
Garage Spaces: 2
Roof: Shingle
Pool: Association, Community
Additional Exterior/Lot Features: Rain Gutters, Lighting
Community Features
Association Amenities: Spa/Hot Tub, Clubhouse, Fitness Center, Pool, Tennis Court(s), Shuffleboard Court
HOA Dues Include: Trash, Water, Sewer, Pool(s)
Homeowners Association: Yes
HOA Dues: $186 / Monthly
Driving Directions
Head north on US-441 (also known as S.E. Hwy 441 / S.R. 25A) from Belleview Continue into Ocala until you reach State Road 200 (SR-200 / S.W. College Road) Turn left (west) onto SR-200 After about 3.5?mi, turn left onto SW?60th?Ave Proceed and turn right onto SW?85th St Finally, turn left onto SW?60th?Cir — the home will be on your left
Financial Considerations
Terms: Cash,Conventional,FHA,VA Loan
Tax/Property ID: 35634-309-31
Tax Amount: 3741
Tax Year: 2024
A broker reciprocity listing courtesy: NEXTHOME PROFESSIONAL REALTY
Based on information provided by Stellar MLS as distributed by the MLS GRID. Information from the Internet Data Exchange is provided exclusively for consumers’ personal, non-commercial use, and such information may not be used for any purpose other than to identify prospective properties consumers may be interested in purchasing. This data is deemed reliable but is not guaranteed to be accurate by Edina Realty, Inc., or by the MLS. Edina Realty, Inc., is not a multiple listing service (MLS), nor does it offer MLS access.
Copyright 2025 Stellar MLS as distributed by the MLS GRID. All Rights Reserved.
Payment Calculator
Interest rate and annual percentage rate (APR) are based on current market conditions, are for informational purposes only, are subject to change without notice and may be subject to pricing add-ons related to property type, loan amount, loan-to-value, credit score and other variables. Estimated closing costs used in the APR calculation are assumed to be paid by the borrower at closing. If the closing costs are financed, the loan, APR and payment amounts will be higher. If the down payment is less than 20%, mortgage insurance may be required and could increase the monthly payment and APR. Contact us for details. Additional loan programs may be available. Accuracy is not guaranteed, and all products may not be available in all borrower's geographical areas and are based on their individual situation. This is not a credit decision or a commitment to lend.
Sales History & Tax Summary for 8729 SW 60th Circle
Sales History
| Date | Price | Change |
|---|---|---|
| Currently not available. | ||
Tax Summary
| Tax Year | Estimated Market Value | Total Tax |
|---|---|---|
| Currently not available. | ||
Data powered by ATTOM Data Solutions. Copyright© 2025. Information deemed reliable but not guaranteed.
Schools
Schools nearby 8729 SW 60th Circle
| Schools in attendance boundaries | Grades | Distance | Rating |
|---|---|---|---|
| Loading... | |||
| Schools nearby | Grades | Distance | Rating |
|---|---|---|---|
| Loading... | |||
Data powered by ATTOM Data Solutions. Copyright© 2025. Information deemed reliable but not guaranteed.
The schools shown represent both the assigned schools and schools by distance based on local school and district attendance boundaries. Attendance boundaries change based on various factors and proximity does not guarantee enrollment eligibility. Please consult your real estate agent and/or the school district to confirm the schools this property is zoned to attend. Information is deemed reliable but not guaranteed.
SchoolDigger ® Rating
The SchoolDigger rating system is a 1-5 scale with 5 as the highest rating. SchoolDigger ranks schools based on test scores supplied by each state's Department of Education. They calculate an average standard score by normalizing and averaging each school's test scores across all tests and grades.
Coming soon properties will soon be on the market, but are not yet available for showings.