8780 Moorhouse Avenue Clear Lake, MN 55319
For Sale MLS# 7024888
2 beds 1 baths 1,178 sq ft Single Family
Details for 8780 Moorhouse Avenue
MLS# 7024888
Description for 8780 Moorhouse Avenue, Clear Lake, MN, 55319
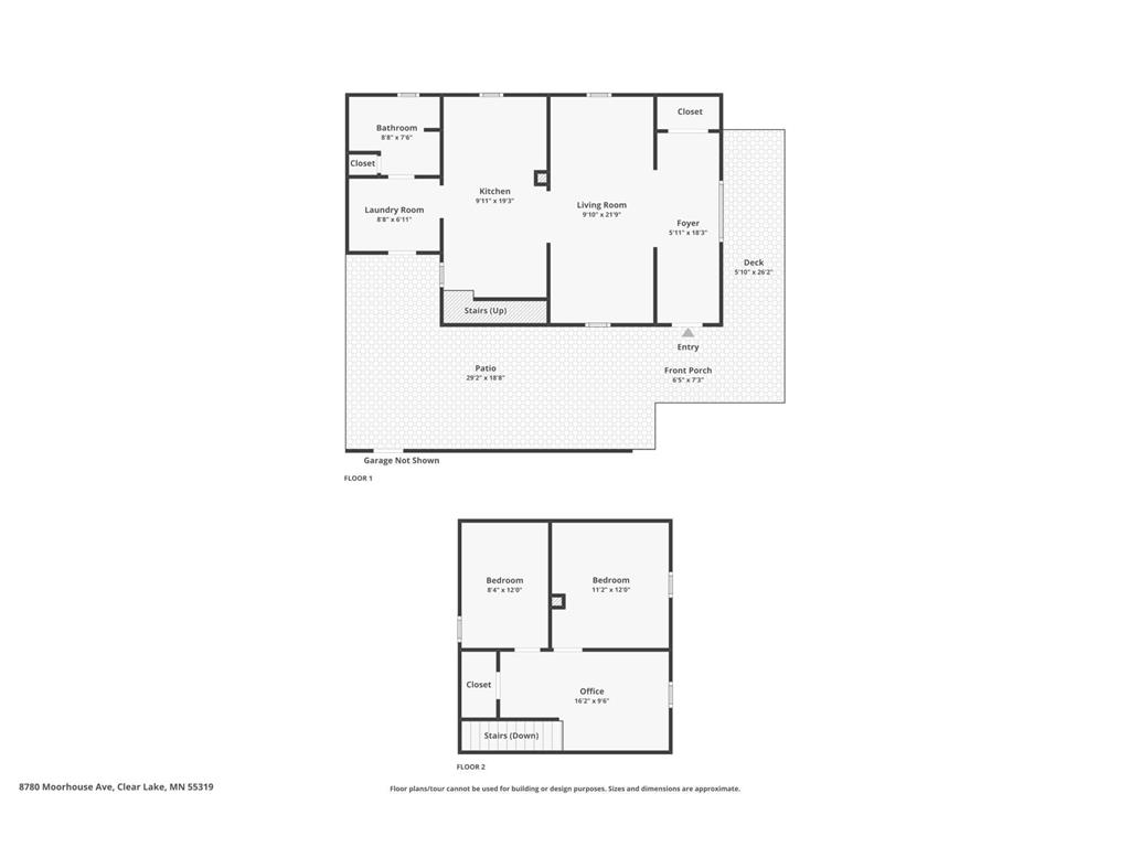
Nicely updated 1.5-story home in Clear Lake with 2 bedrooms, 1 bathroom, and an oversized heated 2+ car garage on a spacious 0.16-acre lot with fenced in area. Main level features tiled entry, large living room, informal dining, and kitchen with stainless steel appliances and new tile backsplash, plus full bath and mudroom. Upper level offers two bedrooms with vaulted ceilings and a cozy flex area with walk-in closet. Enjoy maintenance-free vinyl siding, wraparound deck, covered patio, storage shed, new carpet, and fresh paint. Convenient location with quick access to I-94 and Hwy 10.
Listing Information
Property Type: Residential, Single Family
Status: Active
Bedrooms: 2
Bathrooms: 1
Lot Size: 0.61 Acres
Square Feet: 1,178 sq ft
Year Built: 1910
Foundation: 737 sq ft
Garage: Yes
Stories: 1.5 Stories
County: Sherburne
Days On Market: 36
Construction Status: Previously Owned
School Information
District: 742 - St. Cloud
Room Information
Main Floor
Deck: 28x6
Dining Room: 10x10
Foyer: 17x6
Kitchen: 10x10
Laundry: 9x7
Living Room: 21x10
Patio: 25x7
Upper Floor
Bedroom 1: 12x11
Bedroom 2: 12x8
Flex Room: 15x9
Walk-In Closet: 6x3
Bathrooms
Full Baths: 1
Additonal Room Information
Family: Loft
Dining: Eat In Kitchen
Laundry: Laundry Room, Main Level
Bath Description: Main Floor Full Bath
Interior Features
Square Footage above: 1,178 sq ft
Appliances: Gas Water Heater, Stainless Steel Appliances, Refrigerator, Dryer, Microwave, Range, Dishwasher, Washer
Basement: Crawl Space
Additional Interior Features: Main Floor Laundry
Utilities
Water: City Water/Connected
Sewer: City Sewer/Connected
Cooling: Central
Heating: Forced Air, Natural Gas
Exterior / Lot Features
Garage Spaces: 2
Parking Description: Detached Garage, Heated Garage, Finished Garage, Garage Dimensions - 8x16, Garage Sq Ft - 676.0
Exterior: Vinyl
Roof: Asphalt Shingles
Lot Dimensions: 165x165
Zoning: Residential-Single Family
Fencing: Chain Link
Out Buildings: Shed - Storage
Driving Directions
Hwy 10 to west on Main, south on state st to Moorhouse Ave, Home on right side at end.
Financial Considerations
Tax/Property ID: 70000181100
Tax Amount: 2538
Tax Year: 2025
HomeStead Description: Homesteaded
A broker reciprocity listing courtesy: RE/MAX Results
The data relating to real estate for sale on this web site comes in part from the Broker Reciprocity℠ Program of the Regional Multiple Listing Service of Minnesota, Inc. Real estate listings held by brokerage firms other than Edina Realty, Inc. are marked with the Broker Reciprocity℠ logo or the Broker Reciprocity℠ thumbnail and detailed information about them includes the name of the listing brokers. Edina Realty, Inc. is not a Multiple Listing Service (MLS), nor does it offer MLS access. This website is a service of Edina Realty, Inc., a broker Participant of the Regional Multiple Listing Service of Minnesota, Inc. IDX information is provided exclusively for consumers personal, non-commercial use and may not be used for any purpose other than to identify prospective properties consumers may be interested in purchasing. Open House information is subject to change without notice. Information deemed reliable but not guaranteed.
Copyright 2026 Regional Multiple Listing Service of Minnesota, Inc. All Rights Reserved.
Payment Calculator
Interest rate and annual percentage rate (APR) are based on current market conditions, are for informational purposes only, are subject to change without notice and may be subject to pricing add-ons related to property type, loan amount, loan-to-value, credit score and other variables. Estimated closing costs used in the APR calculation are assumed to be paid by the borrower at closing. If the closing costs are financed, the loan, APR and payment amounts will be higher. If the down payment is less than 20%, mortgage insurance may be required and could increase the monthly payment and APR. Contact us for details. Additional loan programs may be available. Accuracy is not guaranteed, and all products may not be available in all borrower's geographical areas and are based on their individual situation. This is not a credit decision or a commitment to lend.
Sales History & Tax Summary for 8780 Moorhouse Avenue
Sales History
| Date | Price | |
|---|---|---|
| Currently not available. | ||
Tax Summary
| Tax Year | Estimated Market Value | Total Tax |
|---|---|---|
| Currently not available. | ||
Data powered by ATTOM Data Solutions. Copyright© 2026. Information deemed reliable but not guaranteed.
Schools
Schools nearby 8780 Moorhouse Avenue
| Schools in attendance boundaries | Grades | Distance | Rating |
|---|---|---|---|
| Loading... | |||
| Schools nearby | Grades | Distance | Rating |
|---|---|---|---|
| Loading... | |||
Data powered by ATTOM Data Solutions. Copyright© 2026. Information deemed reliable but not guaranteed.
The schools shown represent both the assigned schools and schools by distance based on local school and district attendance boundaries. Attendance boundaries change based on various factors and proximity does not guarantee enrollment eligibility. Please consult your real estate agent and/or the school district to confirm the schools this property is zoned to attend. Information is deemed reliable but not guaranteed.
SchoolDigger ® Rating
The SchoolDigger rating system is a 1-5 scale with 5 as the highest rating. SchoolDigger ranks schools based on test scores supplied by each state's Department of Education. They calculate an average standard score by normalizing and averaging each school's test scores across all tests and grades.
Coming soon properties will soon be on the market, but are not yet available for showings.