8832 Palisades Beach Avenue Orlando, FL 32829
For Sale MLS# O6340287
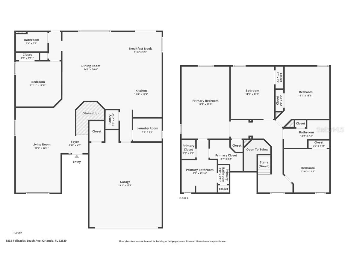
5 beds 3 baths 2,672 sq ft Single Family
Details for 8832 Palisades Beach Avenue
MLS# O6340287
Description for 8832 Palisades Beach Avenue, Orlando, FL, 32829
Welcome to 8832 Palisades Beach Avenue, an impeccably maintained 5-bedroom, 3-bathroom single-family home located in the highly sought-after Vista Lakes Village community in East Orlando. This move-in ready residence offers 2,672 sqft of open and functional living space. Enjoy a spacious split floor plan featuring a formal living and dining area, a large family room, and a well-appointed kitchen with solid surface countertops, ample cabinet storage, and a breakfast bar. The primary suite boasts a generous walk-in closet and an en-suite bath with dual vanities, a soaking tub, and separate shower. Four additional bedrooms provide flexibility for guests, a home office, or hobbies. Step outside to a lanai overlooking a fully fenced backyard, ideal for outdoor relaxation and entertaining. Vista Lakes is a master planned community offering resort-style amenities including a clubhouse, pool, fitness center, tennis courts, walking trails, and parks. Located just minutes from Orlando International Airport, Lake Nona Medical City, 417/528 expressways, shopping, dining, and more. Don’t miss this opportunity, schedule your private showing today!
Listing Information
Property Type: Residential, Single Family Residence
Status: Active
Bedrooms: 5
Bathrooms: 3
Lot Size: 0.14 Acres
Square Feet: 2,672 sq ft
Year Built: 2003
Garage: Yes
Stories: 2 Story
Construction: Block
Construction Display: New Construction
Subdivision: Vista Lakes Vlgs N-8 & N-9
Foundation: Slab
County: Orange
Construction Status: New Construction
School Information
Elementary: Vista Lakes Elem
Middle: Odyssey Middle
High: Colonial High
Room Information
Main Floor
Kitchen: 12.3x11
Dining Room: 20.3x14.8
Living Room: 22.3x15.6
Upper Floor
Primary Bedroom: 19x12.7
Bathrooms
Full Baths: 3
Additonal Room Information
Laundry: Inside, Laundry Room
Interior Features
Appliances: Dryer, Washer, Microwave, Range, Refrigerator
Flooring: Carpet,Ceramic Tile
Additional Interior Features: Ceiling Fan(s), Upper Level Primary, Kitchen/Family Room Combo
Utilities
Water: Public
Sewer: Public Sewer
Other Utilities: Cable Available,Cable Connected,Electricity Available,Electricity Connected,High Speed Internet Available,Sewer Available,Sewer Connected,Water Available,Water Connected
Cooling: Ceiling Fan(s), Central Air
Heating: Central, Electric
Exterior / Lot Features
Attached Garage: Attached Garage
Garage Spaces: 2
Roof: Shingle
Pool: Community, Association, Above Ground
Community Features
Community Features: Sidewalks, Pool, Tennis Court(s), Clubhouse, Park, Fitness
Association Amenities: Fitness Center, Park, Pickleball, Clubhouse, Tennis Court(s), Pool
HOA Dues Include: Pool(s)
Homeowners Association: Yes
HOA Dues: $556 / Annually
Driving Directions
Head north on Jeff Fuqua Blvd from the airport. Merge onto FL-528 E (Beachline Expressway) via the ramp to Cocoa (Toll road). Take Exit 16 toward FL-417 N (Central Florida Greeneway) toward Sanford (Toll road). Take Exit 27 for Lee Vista Blvd. Turn left onto Lee Vista Blvd. Continue then turn right onto Chickasaw Trail. Turn right onto Hastings Beach Blvd. Turn right onto Manchester Blvd Palisades Beach Avenue. Turn left onto Palisades Beach Ave and the home is on the right.
Financial Considerations
Tax/Property ID: 24-23-30-8983-02-130
Tax Amount: 4810.06
Tax Year: 2024
A broker reciprocity listing courtesy: KELLER WILLIAMS ADVANTAGE III
Based on information provided by Stellar MLS as distributed by the MLS GRID. Information from the Internet Data Exchange is provided exclusively for consumers’ personal, non-commercial use, and such information may not be used for any purpose other than to identify prospective properties consumers may be interested in purchasing. This data is deemed reliable but is not guaranteed to be accurate by Edina Realty, Inc., or by the MLS. Edina Realty, Inc., is not a multiple listing service (MLS), nor does it offer MLS access.
Copyright 2025 Stellar MLS as distributed by the MLS GRID. All Rights Reserved.
Payment Calculator
Interest rate and annual percentage rate (APR) are based on current market conditions, are for informational purposes only, are subject to change without notice and may be subject to pricing add-ons related to property type, loan amount, loan-to-value, credit score and other variables. Estimated closing costs used in the APR calculation are assumed to be paid by the borrower at closing. If the closing costs are financed, the loan, APR and payment amounts will be higher. If the down payment is less than 20%, mortgage insurance may be required and could increase the monthly payment and APR. Contact us for details. Additional loan programs may be available. Accuracy is not guaranteed, and all products may not be available in all borrower's geographical areas and are based on their individual situation. This is not a credit decision or a commitment to lend.
Sales History & Tax Summary for 8832 Palisades Beach Avenue
Sales History
| Date | Price | Change |
|---|---|---|
| Currently not available. | ||
Tax Summary
| Tax Year | Estimated Market Value | Total Tax |
|---|---|---|
| Currently not available. | ||
Data powered by ATTOM Data Solutions. Copyright© 2025. Information deemed reliable but not guaranteed.
Schools
Schools nearby 8832 Palisades Beach Avenue
| Schools in attendance boundaries | Grades | Distance | Rating |
|---|---|---|---|
| Loading... | |||
| Schools nearby | Grades | Distance | Rating |
|---|---|---|---|
| Loading... | |||
Data powered by ATTOM Data Solutions. Copyright© 2025. Information deemed reliable but not guaranteed.
The schools shown represent both the assigned schools and schools by distance based on local school and district attendance boundaries. Attendance boundaries change based on various factors and proximity does not guarantee enrollment eligibility. Please consult your real estate agent and/or the school district to confirm the schools this property is zoned to attend. Information is deemed reliable but not guaranteed.
SchoolDigger ® Rating
The SchoolDigger rating system is a 1-5 scale with 5 as the highest rating. SchoolDigger ranks schools based on test scores supplied by each state's Department of Education. They calculate an average standard score by normalizing and averaging each school's test scores across all tests and grades.
Coming soon properties will soon be on the market, but are not yet available for showings.