$850,695
8887 Binder Way Woodbury, MN 55129
For Sale MLS# 6819061
5 beds 5 baths 4,980 sq ft Single Family
Details for 8887 Binder Way
MLS# 6819061
Description for 8887 Binder Way, Woodbury, MN, 55129
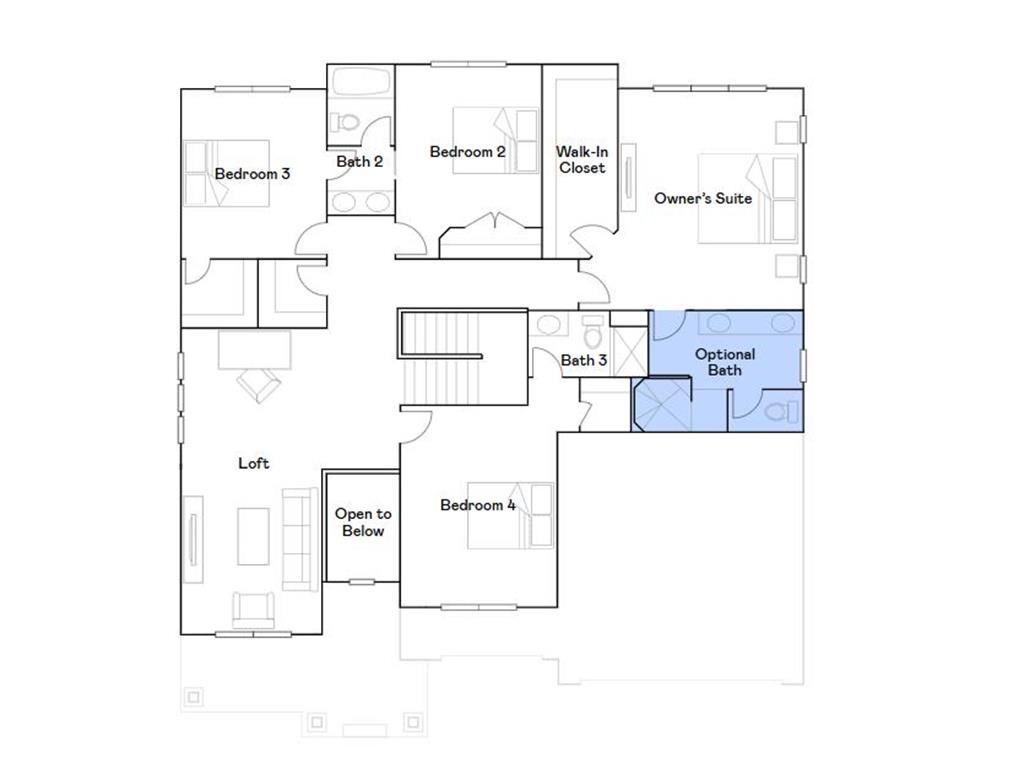
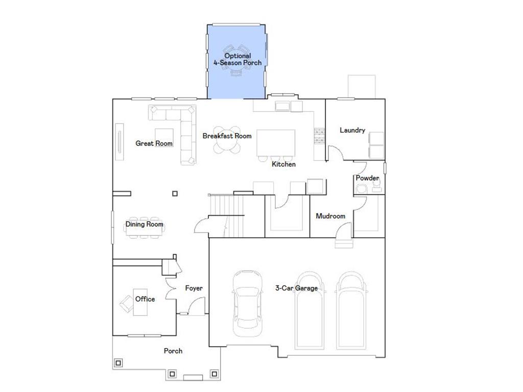
This home is under construction and available for a February closing date! Ask about savings up to $6,500 when using Seller's Preferred Lender! Thoughtfully designed for everyday comfort and effortless entertaining, the Snelling offers an inviting main level that truly lives at the heart of the home. Step into the bright Great Room that flows into a modern gourmet kitchen with sleek stainless steel appliances, a large square island perfect for casual meals and a convenient walk-in pantry. Just off the main living area, an upgraded four seasons porch provides extra space to relax and take in the view of your backyard. A generous laundry room, practical mudroom with closet and a versatile flex room give you plenty of options for work, play or hobbies. Upstairs, a central loft anchors the second level, leading to three secondary bedrooms with access to private or Jack-and-Jill baths. The luxurious owner’s suite is a true retreat, highlighted by a spa-inspired serenity shower. A finished walkout basement adds even more space for movie nights, game days or guests. With its thoughtful layout and in-demand upgrades, this home is poised to be a favorite among today’s buyers.Residents will enjoy access to elementary, middle and high schools in the highly sought-after South Washington County School District. In the local area there are tons of shops, restaurants and recreational options!
Listing Information
Property Type: Residential, Single Family
Status: Active
Bedrooms: 5
Bathrooms: 5
Lot Size: 0.24 Acres
Square Feet: 4,980 sq ft
Year Built: 2025
Foundation: 1,600 sq ft
Garage: Yes
Stories: 2 Stories
Date Available: 2/28/2026
Construction Display: New Construction
Completion date: 2026-02-28T06:00:00Z
Subdivision: Westwind
Builder: LENNAR
County: Washington
Days On Market: 29
Construction Status: Under Construc/Spec Homes
School Information
District: 833 - South Washington County
Room Information
Main Floor
Dining Room: 11x11
Four Season Porch: 11x13
Great Room: 16x17
Informal Dining Room: 9x17
Kitchen: 13x17
Office: 11x13
Upper Floor
Bedroom 1: 14x17
Bedroom 2: 11x13
Bedroom 3: 11x13
Bedroom 4: 12x16
Loft: 11x24
Lower Floor
Bedroom 5: 13x12
Flex Room: 35x16
Game Room: 16x12
Bathrooms
Full Baths: 1
3/4 Baths: 3
1/2 Baths: 1
Additonal Room Information
Family: 2 or More,Great Room,Loft,Main Level
Dining: Breakfast Area,Separate/Formal Dining Room
Laundry: Washer Hookup, Laundry Room, Gas Dryer Hookup, Main Level, Sink
Bath Description: 3/4 Basement,3/4 Primary,Main Floor 1/2 Bath,Private Primary,Upper Level 3/4 Bath,Upper Level Full Bath
Interior Features
Square Footage above: 3,590 sq ft
Square Footage below: 1,390 sq ft
Appliances: Stainless Steel Appliances, Double Oven, Wall Oven, Tankless Water Heater, Refrigerator, Furnace Humidifier, Microwave, Air-To-Air Exchanger, Cooktop, Dishwasher, Disposal, Exhaust Fan/Hood
Basement: Finished (Livable), Walkout, Storage Space
Fireplaces: 1, Gas Burning, Family Room
Additional Interior Features: Natural Woodwork, Kitchen Window, Sun Room, Walk-In Closet, Primary Bdr Suite, Washer/Dryer Hookup, Kitchen Center Island, French Doors, Paneled Doors, Main Floor Laundry, 3 BR on One Level, 4 BR on One Level
Utilities
Water: City Water/Connected
Sewer: City Sewer/Connected
Cooling: Central
Heating: Fireplace, Forced Air, Natural Gas
Exterior / Lot Features
Attached Garage: Attached Garage
Garage Spaces: 3
Parking Description: Garage Door Opener, Driveway - Asphalt, Attached Garage, Garage Sq Ft - 683.0
Exterior: Brick/Stone, Vinyl, Shakes, Wood
Roof: Age 8 Years or Less, Asphalt Shingles
Lot Dimensions: TBD
Zoning: Residential-Single Family
Additional Exterior/Lot Features: Porch, Sod Included in Price, Road Frontage - Paved Streets, City, Curbs
Community Features
HOA Dues Include: Sanitation, Professional Mgmt
Homeowners Association: Yes
Association Name: Associa Minnesota
HOA Dues: $108 / Quarterly
Driving Directions
Go west on Periwinkle Blvd.Model is on the right.
Financial Considerations
Tax/Property ID: TBD
Tax Year: 2025
HomeStead Description: Non-Homesteaded
A broker reciprocity listing courtesy: Lennar Sales Corp
The data relating to real estate for sale on this web site comes in part from the Broker Reciprocity℠ Program of the Regional Multiple Listing Service of Minnesota, Inc. Real estate listings held by brokerage firms other than Edina Realty, Inc. are marked with the Broker Reciprocity℠ logo or the Broker Reciprocity℠ thumbnail and detailed information about them includes the name of the listing brokers. Edina Realty, Inc. is not a Multiple Listing Service (MLS), nor does it offer MLS access. This website is a service of Edina Realty, Inc., a broker Participant of the Regional Multiple Listing Service of Minnesota, Inc. IDX information is provided exclusively for consumers personal, non-commercial use and may not be used for any purpose other than to identify prospective properties consumers may be interested in purchasing. Open House information is subject to change without notice. Information deemed reliable but not guaranteed.
Copyright 2025 Regional Multiple Listing Service of Minnesota, Inc. All Rights Reserved.
Payment Calculator
Interest rate and annual percentage rate (APR) are based on current market conditions, are for informational purposes only, are subject to change without notice and may be subject to pricing add-ons related to property type, loan amount, loan-to-value, credit score and other variables. Estimated closing costs used in the APR calculation are assumed to be paid by the borrower at closing. If the closing costs are financed, the loan, APR and payment amounts will be higher. If the down payment is less than 20%, mortgage insurance may be required and could increase the monthly payment and APR. Contact us for details. Additional loan programs may be available. Accuracy is not guaranteed, and all products may not be available in all borrower's geographical areas and are based on their individual situation. This is not a credit decision or a commitment to lend.
Sales History & Tax Summary for 8887 Binder Way
Sales History
| Date | Price | Change |
|---|---|---|
| Currently not available. | ||
Tax Summary
| Tax Year | Estimated Market Value | Total Tax |
|---|---|---|
| Currently not available. | ||
Data powered by ATTOM Data Solutions. Copyright© 2025. Information deemed reliable but not guaranteed.
Schools
Schools nearby 8887 Binder Way
| Schools in attendance boundaries | Grades | Distance | Rating |
|---|---|---|---|
| Loading... | |||
| Schools nearby | Grades | Distance | Rating |
|---|---|---|---|
| Loading... | |||
Data powered by ATTOM Data Solutions. Copyright© 2025. Information deemed reliable but not guaranteed.
The schools shown represent both the assigned schools and schools by distance based on local school and district attendance boundaries. Attendance boundaries change based on various factors and proximity does not guarantee enrollment eligibility. Please consult your real estate agent and/or the school district to confirm the schools this property is zoned to attend. Information is deemed reliable but not guaranteed.
SchoolDigger ® Rating
The SchoolDigger rating system is a 1-5 scale with 5 as the highest rating. SchoolDigger ranks schools based on test scores supplied by each state's Department of Education. They calculate an average standard score by normalizing and averaging each school's test scores across all tests and grades.
Coming soon properties will soon be on the market, but are not yet available for showings.