8950 Park Boulevard #508 Seminole, FL 33777
For Sale MLS# TB8408752
1 beds 1 baths 653 sq ft Condo
Details for 8950 Park Boulevard #508
MLS# TB8408752
Description for 8950 Park Boulevard #508, Seminole, FL, 33777
CHARMING ONE BEDROOM CONDO WITH RESORT-STYLE AMENTIES. Welcome to this bright efficient condo offering ease, low-maintenance living. This residence includes a full kitchen and private bathroom with a tub shower - perfect for year-round or seasonal getaway. Residents enjoy a host of amenities including a sparkling pool, a clubhouse with full kitchen, a billiard room and well-equipped fitness center. The building is adjacent to Seminole Lake Country Club, a scenic semi-private golf course and club ideal for golf and tennis enthusiasts. Ideally located just minutes from the sandy shores of Madeira Beach and vibrant Johns Pass, as well as Bay Pines VA and a variety of shopping and dining options. This studio places you close to everything while offering a peaceful, community-oriented lifestyle.
Listing Information
Property Type: Residential, Condominium
Status: Active
Bedrooms: 1
Bathrooms: 1
Lot Size: 2.20 Acres
Square Feet: 653 sq ft
Year Built: 1971
Stories: 1 Story
Construction: Concrete,Wood Frame
Subdivision: Seminole-On-The-Green Cavalier Bldg
Foundation: Slab
County: Pinellas
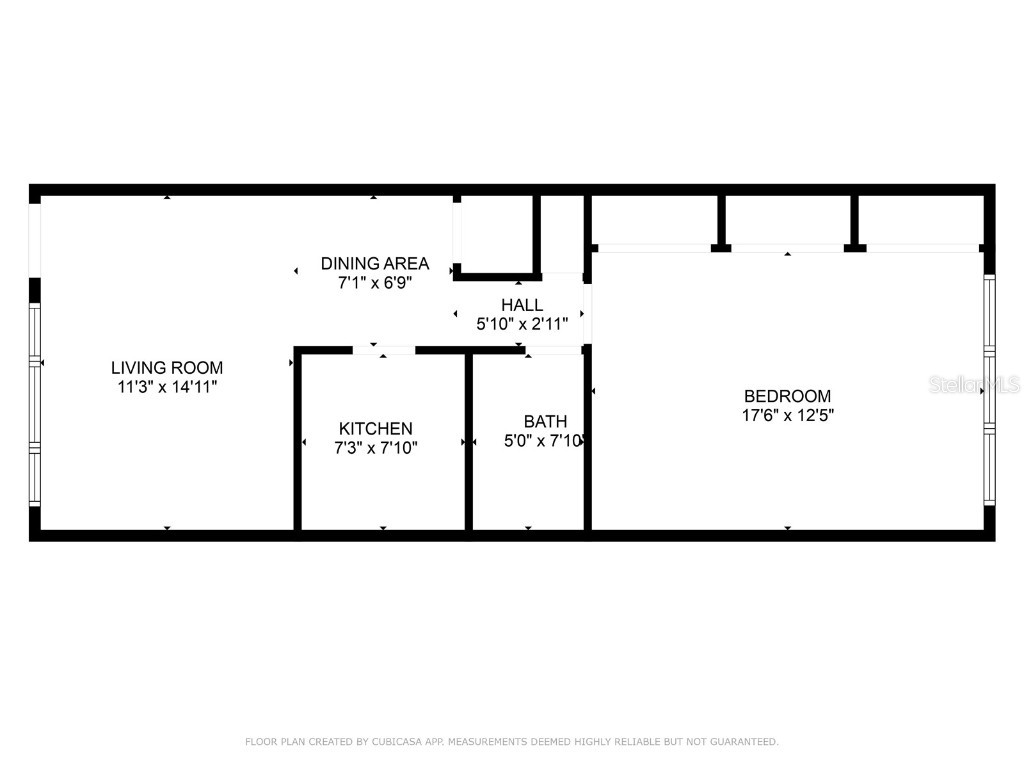
Room Information
Main Floor
Kitchen: 8x7
Primary Bedroom: 12.7x17.5
Dining Room: 6.75x7
Living Room: 14x11
Bathrooms
Full Baths: 1
Interior Features
Appliances: Dishwasher, Range
Flooring: Ceramic Tile
Additional Interior Features: Living/Dining Room
Utilities
Water: Public
Sewer: Public Sewer
Other Utilities: Cable Available,Electricity Connected
Cooling: Central Air
Heating: Electric
Exterior / Lot Features
Roof: Built-Up
Pool: Community
Lot View: Golf Course
Additional Exterior/Lot Features: Other
Community Features
Community Features: Pool, Clubhouse, Fitness
HOA Dues Include: Trash, Water, Maintenance Grounds, Sewer, Maintenance Structure, Pool(s)
Homeowners Association: Yes
HOA Dues: $537 / Monthly
Driving Directions
From I 275, go west on Park Blvd (SR 694) 5 miles to Starkey Rd. Turn LEFT, Take second right turn into Lake Seminole Country Club. Immediate second right turn. Follow parking lot to front of 8950 Park Blvd, park in VISTORS parking.
Financial Considerations
Terms: Cash,Conventional
Tax/Property ID: 26-30-15-80013-002-5080
Tax Amount: 1199.84
Tax Year: 2024
A broker reciprocity listing courtesy: KELLER WILLIAMS REALTY- PALM H
Based on information provided by Stellar MLS as distributed by the MLS GRID. Information from the Internet Data Exchange is provided exclusively for consumers’ personal, non-commercial use, and such information may not be used for any purpose other than to identify prospective properties consumers may be interested in purchasing. This data is deemed reliable but is not guaranteed to be accurate by Edina Realty, Inc., or by the MLS. Edina Realty, Inc., is not a multiple listing service (MLS), nor does it offer MLS access.
Copyright 2026 Stellar MLS as distributed by the MLS GRID. All Rights Reserved.
Payment Calculator
Interest rate and annual percentage rate (APR) are based on current market conditions, are for informational purposes only, are subject to change without notice and may be subject to pricing add-ons related to property type, loan amount, loan-to-value, credit score and other variables. Estimated closing costs used in the APR calculation are assumed to be paid by the borrower at closing. If the closing costs are financed, the loan, APR and payment amounts will be higher. If the down payment is less than 20%, mortgage insurance may be required and could increase the monthly payment and APR. Contact us for details. Additional loan programs may be available. Accuracy is not guaranteed, and all products may not be available in all borrower's geographical areas and are based on their individual situation. This is not a credit decision or a commitment to lend.
Sales History & Tax Summary for 8950 Park Boulevard #508
Sales History
| Date | Price | |
|---|---|---|
| Currently not available. | ||
Tax Summary
| Tax Year | Estimated Market Value | Total Tax |
|---|---|---|
| Currently not available. | ||
Data powered by ATTOM Data Solutions. Copyright© 2026. Information deemed reliable but not guaranteed.
Schools
Schools nearby 8950 Park Boulevard #508
| Schools in attendance boundaries | Grades | Distance | Rating |
|---|---|---|---|
| Loading... | |||
| Schools nearby | Grades | Distance | Rating |
|---|---|---|---|
| Loading... | |||
Data powered by ATTOM Data Solutions. Copyright© 2026. Information deemed reliable but not guaranteed.
The schools shown represent both the assigned schools and schools by distance based on local school and district attendance boundaries. Attendance boundaries change based on various factors and proximity does not guarantee enrollment eligibility. Please consult your real estate agent and/or the school district to confirm the schools this property is zoned to attend. Information is deemed reliable but not guaranteed.
SchoolDigger ® Rating
The SchoolDigger rating system is a 1-5 scale with 5 as the highest rating. SchoolDigger ranks schools based on test scores supplied by each state's Department of Education. They calculate an average standard score by normalizing and averaging each school's test scores across all tests and grades.
Coming soon properties will soon be on the market, but are not yet available for showings.