8976 Lake Drive New Port Richey, FL 34654
For Sale MLS# TB8430996
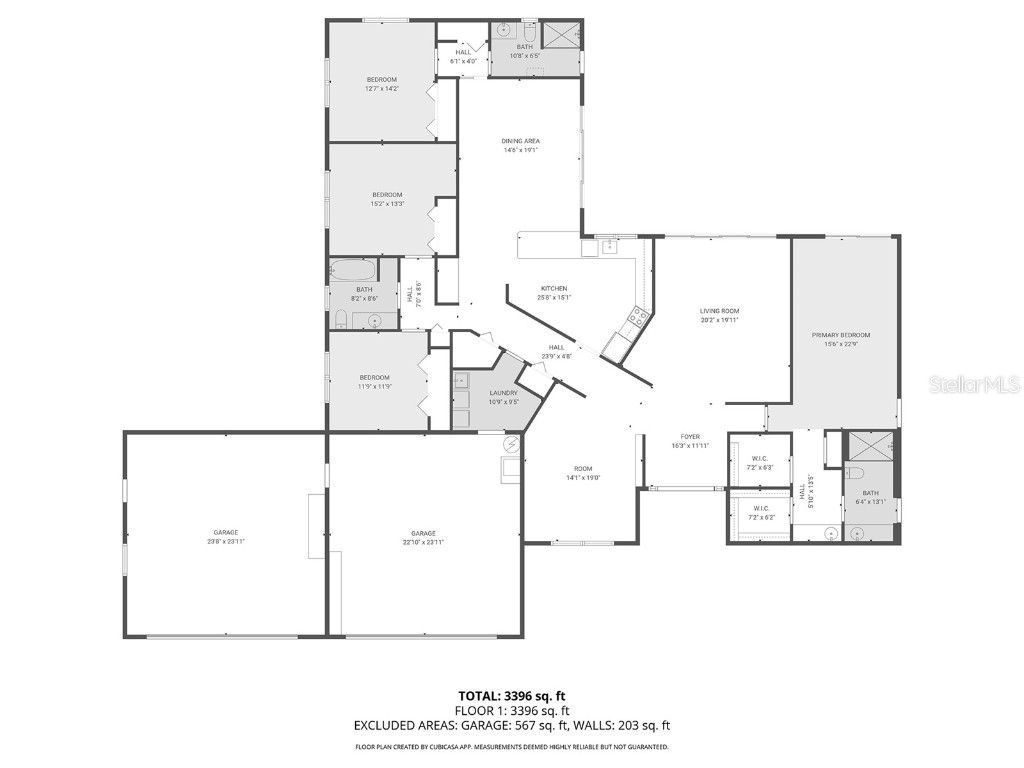
4 beds 3 baths 2,832 sq ft Single Family
Details for 8976 Lake Drive
MLS# TB8430996
Description for 8976 Lake Drive, New Port Richey, FL, 34654
Welcome to 8976 Lake Dr, a one-of-a-kind estate that combines old-school charm with rare, hard-to-find features in the heart of New Port Richey. Situated on three road-frontage lots totaling 1.14 acres, this solidly constructed 1976-built home offers timeless architecture along with the kind of land, space, and character that’s nearly impossible to find today — all with NO HOA on WELL WATER Boasting nearly 2,832 square feet of heated living space, this 4-bedroom, 3-bathroom residence exudes the charm of an old-school Florida mansion, offering timeless design and ample room to make it your own. Enjoy sunny afternoons by the SCREENED IN POOL — ideal for year-round Florida living — and spend your evenings watching the sunset over Moon Lake right from your porch. The views from this home are nothing short of breathtaking. Major updates include: ROOF replaced in 2019 SEPTIC TANK replaced in 2023 HVAC system replaced in 2018 Car enthusiasts and hobbyists will appreciate the RARE 4-CAR GARAGE, providing space not only for vehicles but also for storage or a workshop. The expansive lot and circular driveway offer endless possibilities — from lush landscaping to potential expansion or redevelopment of the adjoining lots. Located directly across the street from scenic Moon Lake Park, you’ll enjoy easy access to a public boat ramp, jet ski launch, and paddleboarding opportunities, making it easy to embrace the water lifestyle right outside your front door. Whether you're looking for a private estate, an investment property, or a chance to own a unique piece of New Port Richey history, 8976 Lake Dr delivers with space, views, and an unbeatable location. Don’t miss this rare opportunity — schedule your private showing today!
Listing Information
Property Type: Residential, Single Family Residence
Status: Active
Bedrooms: 4
Bathrooms: 3
Lot Size: 1.14 Acres
Square Feet: 2,832 sq ft
Year Built: 1976
Garage: Yes
Stories: 1 Story
Construction: Block,Concrete,Stucco
Subdivision: Moon Lake Estates
Foundation: Slab
County: Pasco
Room Information
Main Floor
Living Room: 18x14
Kitchen: 15x26
Primary Bedroom: 22x15
Bathrooms
Full Baths: 3
Additonal Room Information
Laundry: Washer Hookup, Electric Dryer Hookup, Inside, Laundry Room
Interior Features
Appliances: Electric Water Heater, Microwave, Dishwasher, Dryer, Range, Refrigerator, Washer
Flooring: Ceramic Tile,Wood
Additional Interior Features: Walk-In Closet(s), Ceiling Fan(s), Built-in Features, Wood Cabinets
Utilities
Water: Well
Sewer: Septic Tank
Other Utilities: Cable Connected,Electricity Connected,High Speed Internet Available,Water Connected
Cooling: Ceiling Fan(s), Central Air
Heating: Heat Pump
Exterior / Lot Features
Attached Garage: Attached Garage
Garage Spaces: 4
Parking Description: driveway, Oversized
Roof: Shingle
Pool: In Ground
Fencing: fenced, Wood
Additional Exterior/Lot Features: Rain Gutters, Other, Storage, Cleared, Oversized Lot
Out Buildings: Shed(s)
Driving Directions
Driving northbound on FL-589 Toll N (Veteran's Expressway), Take exit toward Ridge Road, Turn Left onto Ridge Road, Turn Right onto Moon Lake Road, Turn right onto Terra Ceia Ave, Stay on Terra Ceia Ave, Turn Right onto Lake Drive, Property will be on Left Hand Side.
Financial Considerations
Terms: Cash,Conventional,FHA
Tax/Property ID: 28-25-17-0210-28400-0080
Tax Amount: 7064.65
Tax Year: 2024
A broker reciprocity listing courtesy: FUTURE HOME REALTY INC
Based on information provided by Stellar MLS as distributed by the MLS GRID. Information from the Internet Data Exchange is provided exclusively for consumers’ personal, non-commercial use, and such information may not be used for any purpose other than to identify prospective properties consumers may be interested in purchasing. This data is deemed reliable but is not guaranteed to be accurate by Edina Realty, Inc., or by the MLS. Edina Realty, Inc., is not a multiple listing service (MLS), nor does it offer MLS access.
Copyright 2026 Stellar MLS as distributed by the MLS GRID. All Rights Reserved.
Payment Calculator
Interest rate and annual percentage rate (APR) are based on current market conditions, are for informational purposes only, are subject to change without notice and may be subject to pricing add-ons related to property type, loan amount, loan-to-value, credit score and other variables. Estimated closing costs used in the APR calculation are assumed to be paid by the borrower at closing. If the closing costs are financed, the loan, APR and payment amounts will be higher. If the down payment is less than 20%, mortgage insurance may be required and could increase the monthly payment and APR. Contact us for details. Additional loan programs may be available. Accuracy is not guaranteed, and all products may not be available in all borrower's geographical areas and are based on their individual situation. This is not a credit decision or a commitment to lend.
Sales History & Tax Summary for 8976 Lake Drive
Sales History
| Date | Price | |
|---|---|---|
| Currently not available. | ||
Tax Summary
| Tax Year | Estimated Market Value | Total Tax |
|---|---|---|
| Currently not available. | ||
Data powered by ATTOM Data Solutions. Copyright© 2026. Information deemed reliable but not guaranteed.
Schools
Schools nearby 8976 Lake Drive
| Schools in attendance boundaries | Grades | Distance | Rating |
|---|---|---|---|
| Loading... | |||
| Schools nearby | Grades | Distance | Rating |
|---|---|---|---|
| Loading... | |||
Data powered by ATTOM Data Solutions. Copyright© 2026. Information deemed reliable but not guaranteed.
The schools shown represent both the assigned schools and schools by distance based on local school and district attendance boundaries. Attendance boundaries change based on various factors and proximity does not guarantee enrollment eligibility. Please consult your real estate agent and/or the school district to confirm the schools this property is zoned to attend. Information is deemed reliable but not guaranteed.
SchoolDigger ® Rating
The SchoolDigger rating system is a 1-5 scale with 5 as the highest rating. SchoolDigger ranks schools based on test scores supplied by each state's Department of Education. They calculate an average standard score by normalizing and averaging each school's test scores across all tests and grades.
Coming soon properties will soon be on the market, but are not yet available for showings.