900 Carmillion Ct Groveland, FL 34736
For Sale MLS# G5100327
4 beds 3 baths 2,341 sq ft Single Family
Details for 900 Carmillion Ct
MLS# G5100327
Description for 900 Carmillion Ct, Groveland, FL, 34736
This elegant Groveland residence offers spacious living with four bedrooms and three bathrooms. Upon entry, the first floor welcomes you with a seamless tile flow through the kitchen, family room, and living room. The kitchen is a chef's delight, featuring quartz countertops, stainless steel appliances, and stylish pendant lighting. A convenient half bath is also located on this level.Ascend the stairs to find a thoughtful layout designed for comfort. The primary suite is a true retreat, boasting a large walk-in closet for ample storage. The second floor also includes three additional bedrooms, a full bathroom, and a second living room, providing flexible space for relaxation or entertainment. The upstairs is finished with plush carpeting in the living areas and bedrooms, while the bathrooms and laundry room are adorned with tile flooring. This home offers a perfect blend of style, comfort, and practicality for a well-rounded living experience.
Listing Information
Property Type: Residential, Single Family Residence
Status: Active
Bedrooms: 4
Bathrooms: 3
Lot Size: 0.16 Acres
Square Feet: 2,341 sq ft
Year Built: 2020
Garage: Yes
Stories: 2 Story
Construction: Block,Stucco,Wood Frame
Subdivision: Waterside At Estates At Cherry Lake
Foundation: Slab
County: Lake
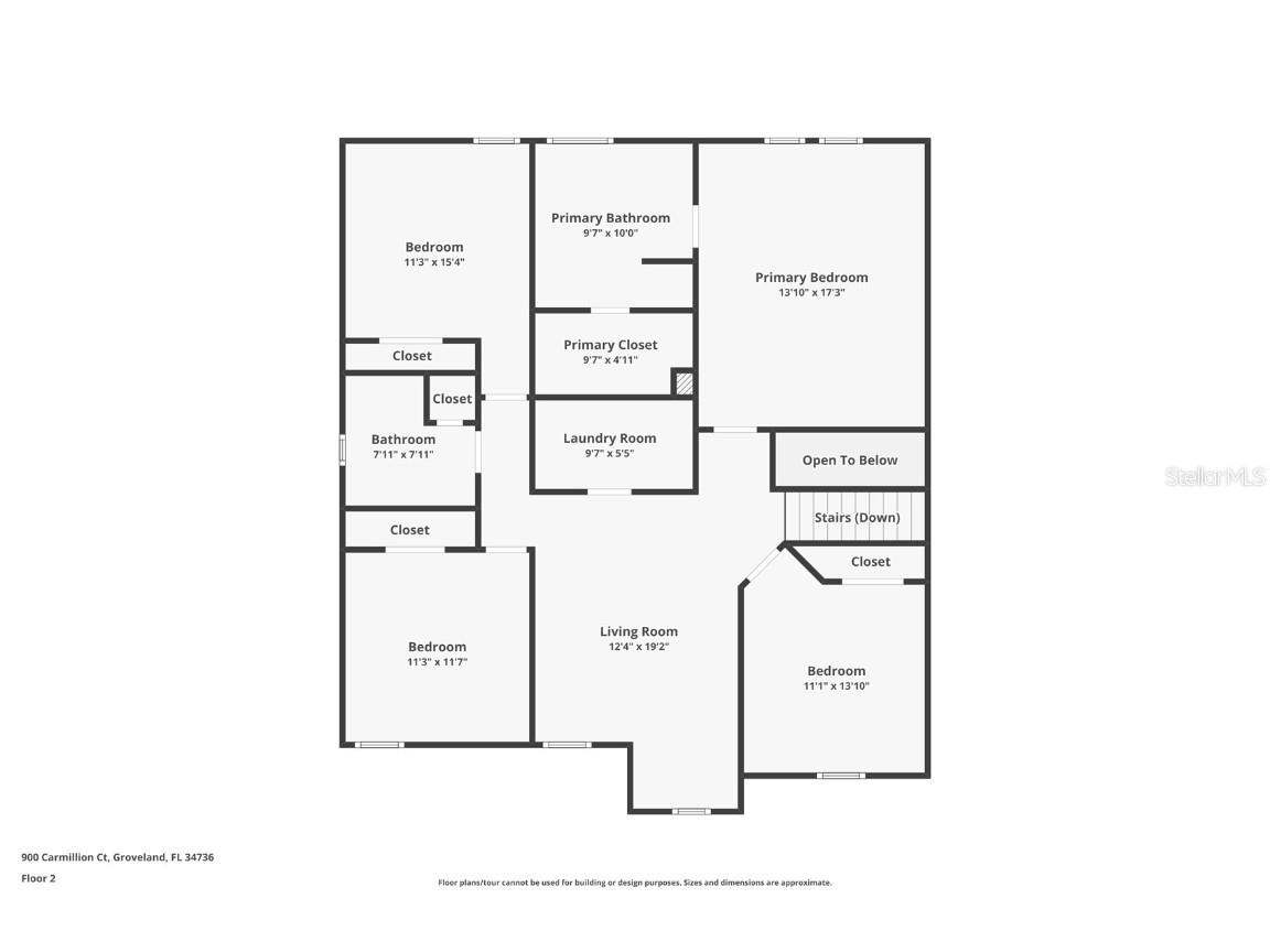
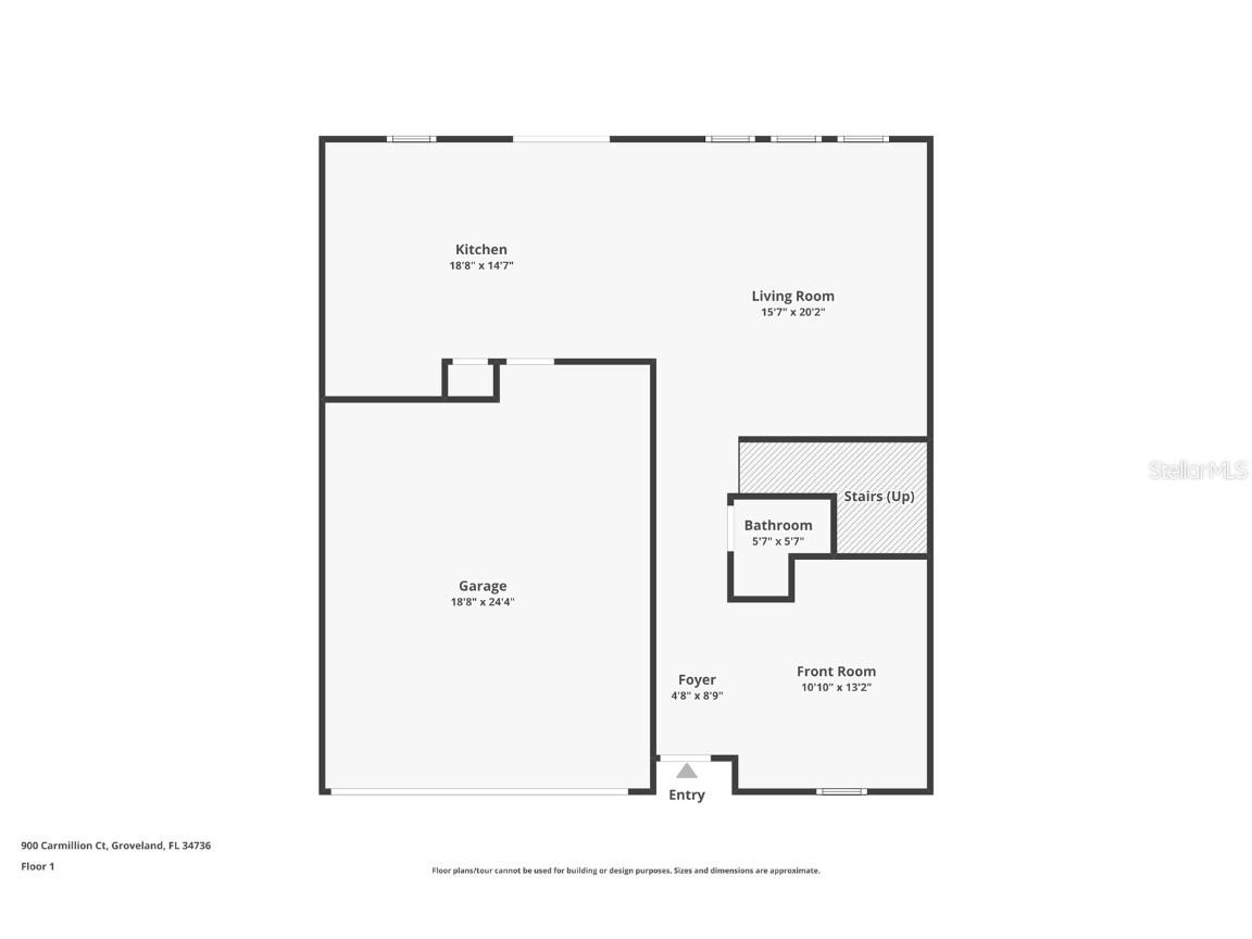
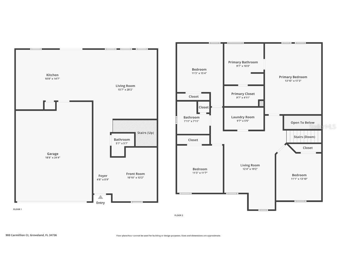
Room Information
Main Floor
Family Room: 13x11
Living Room: 20x15.5
Kitchen: 14.5x18.5
Bathroom 1: 5.5x5.5
Upper Floor
Living Room: 19x12
Bedroom 4: 14x11
Bedroom 3: 11.5x11
Bathroom 2: 8x8
Bedroom 2: 15x11
Laundry: 5.5x9.5
Primary Bathroom: 10x9.5
Primary Bedroom: 17x14
Bathrooms
Full Baths: 2
1/2 Baths: 1
Additonal Room Information
Laundry: Inside, Laundry Room, Upper Level
Interior Features
Appliances: Wine Refrigerator, Washer, Dishwasher, Dryer, Microwave, Range, Refrigerator
Flooring: Carpet,Tile
Additional Interior Features: Ceiling Fan(s), Stone Counters, Walk-In Closet(s)
Utilities
Water: Public
Sewer: Public Sewer
Other Utilities: Electricity Connected,Sewer Connected,Water Connected
Cooling: Central Air, Ceiling Fan(s)
Heating: Electric, Heat Pump, Central
Exterior / Lot Features
Attached Garage: Attached Garage
Garage Spaces: 2
Roof: Shingle
Fencing: Vinyl
Community Features
Community Features: Sidewalks
Homeowners Association: Yes
HOA Dues: $62 / Monthly
Driving Directions
Take US-27 N, Turn left onto Lake Minneola Shores. Turn right onto Jalarmy Rd. Turn left onto Cherry Lake Rd. Turn right onto Wilson Lake Pkwy. Turn left onto Cherry Valley Trail. At the traffic circle, take the 3rd exit. Turn right onto Carmillion Ct. House is on the right.
Financial Considerations
Terms: Cash,Conventional,FHA,VA Loan
Tax/Property ID: 03-22-25-0010-000-00600
Tax Amount: 4838.78
Tax Year: 2024
A broker reciprocity listing courtesy: WHEATLEY REALTY GROUP
Based on information provided by Stellar MLS as distributed by the MLS GRID. Information from the Internet Data Exchange is provided exclusively for consumers’ personal, non-commercial use, and such information may not be used for any purpose other than to identify prospective properties consumers may be interested in purchasing. This data is deemed reliable but is not guaranteed to be accurate by Edina Realty, Inc., or by the MLS. Edina Realty, Inc., is not a multiple listing service (MLS), nor does it offer MLS access.
Copyright 2025 Stellar MLS as distributed by the MLS GRID. All Rights Reserved.
Payment Calculator
Interest rate and annual percentage rate (APR) are based on current market conditions, are for informational purposes only, are subject to change without notice and may be subject to pricing add-ons related to property type, loan amount, loan-to-value, credit score and other variables. Estimated closing costs used in the APR calculation are assumed to be paid by the borrower at closing. If the closing costs are financed, the loan, APR and payment amounts will be higher. If the down payment is less than 20%, mortgage insurance may be required and could increase the monthly payment and APR. Contact us for details. Additional loan programs may be available. Accuracy is not guaranteed, and all products may not be available in all borrower's geographical areas and are based on their individual situation. This is not a credit decision or a commitment to lend.
Sales History & Tax Summary for 900 Carmillion Ct
Sales History
| Date | Price | Change |
|---|---|---|
| Currently not available. | ||
Tax Summary
| Tax Year | Estimated Market Value | Total Tax |
|---|---|---|
| Currently not available. | ||
Data powered by ATTOM Data Solutions. Copyright© 2025. Information deemed reliable but not guaranteed.
Schools
Schools nearby 900 Carmillion Ct
| Schools in attendance boundaries | Grades | Distance | Rating |
|---|---|---|---|
| Loading... | |||
| Schools nearby | Grades | Distance | Rating |
|---|---|---|---|
| Loading... | |||
Data powered by ATTOM Data Solutions. Copyright© 2025. Information deemed reliable but not guaranteed.
The schools shown represent both the assigned schools and schools by distance based on local school and district attendance boundaries. Attendance boundaries change based on various factors and proximity does not guarantee enrollment eligibility. Please consult your real estate agent and/or the school district to confirm the schools this property is zoned to attend. Information is deemed reliable but not guaranteed.
SchoolDigger ® Rating
The SchoolDigger rating system is a 1-5 scale with 5 as the highest rating. SchoolDigger ranks schools based on test scores supplied by each state's Department of Education. They calculate an average standard score by normalizing and averaging each school's test scores across all tests and grades.
Coming soon properties will soon be on the market, but are not yet available for showings.